賃貸アパート
ライフピア都立家政の賃貸物件情報(1K/1階)
| 家賃 | 管理費等 | 敷金 | 礼金 | 間取り | 専有面積 |
|---|---|---|---|---|---|
| 4.4万円 | 3,000円 | なし | なし | 1K | 14m2 |
入居決定でお祝い金最大100,000円
- 保証金
- -
- 償却・敷引
- -
- 築年数
- 築40年
- 所在階
- 1階
- 向き
- 東
Point
嬉しい礼金敷金0円☆仲介手数料無料☆西武新宿線「都立家政駅」徒歩9分☆西武池袋線も利用可能!《全物件》契約費用の分割払い、PayPay決済&クレジットカード決済可★他にも同条件で物件の紹介を致します。
提供:(株)ミルーム(SUUMO経由)

詳細情報 ライフピア都立家政
物件紹介
ライフピア都立家政は西武新宿線都立家政駅から徒歩9分にあり、駅近で通勤通学に便利なアパートです。
人気の角部屋で周囲の居住者の生活音も気になりにくく、また、フローリングのお部屋なのでお掃除もラクラク。室内にはウォークインクローゼットがありますので、たくさんの荷物も効率的に収納ができます。キッチンはシステムキッチン仕様になっていますので、お料理好きの方にもぴったり。
通信設備面では、インターネット接続が可能です。また、BSアンテナ・CSアンテナがありCATVにも対応しているので、おうち時間も充実するでしょう(別途工事、契約料が必要な場合あり)。
人気の角部屋で周囲の居住者の生活音も気になりにくく、また、フローリングのお部屋なのでお掃除もラクラク。室内にはウォークインクローゼットがありますので、たくさんの荷物も効率的に収納ができます。キッチンはシステムキッチン仕様になっていますので、お料理好きの方にもぴったり。
通信設備面では、インターネット接続が可能です。また、BSアンテナ・CSアンテナがありCATVにも対応しているので、おうち時間も充実するでしょう(別途工事、契約料が必要な場合あり)。
お金・契約の情報
※「-」と表示されているものは、実際は料金が発生するものもございます。詳細はお問い合わせください。
| 家賃 | 4.4万円 | 管理費・共益費 | 3,000円 |
|---|---|---|---|
| 敷金 | なし | 礼金 | なし |
| 入居決定でお祝い金最大100,000円 | |||
| 保証金 | - | 償却・敷引 | - |
| 住宅保険料 | - | 更新料 | - |
| 保証会社利用 | 必須 | 保証会社名 | - |
| 保証会社費用 | - | 保証会社備考 | 保証会社利用必 CASA、全保連、日本セーフティー、GTN等利用可能 |
| 契約形態 | - | 契約期間 | - |
| 入居・引渡期間 | 即時 | 現況 | - |
| 契約備考 | 巡回管理/《ライフピア都立家政》のおすすめポイント☆嬉しい礼金敷金0円☆当店なら仲介手数料無料☆初期費用をグッと抑えられます☆西武新宿線「都立家政駅」徒歩9分☆西武池袋線も利用可能!《全物件》当店なら契約費用のお支払いに『PayPay』と『クレジットカード』がご利用頂けます☆お問合せ物件以外にも類似物件をあわせて紹介いたします!短期解約違約金有(半年未満1ヵ月) 合計1.38万円(内訳:鍵交換代1.375万円) 1K 二人入居可/ルームシェア相談 普通借家2年 損保【1.7万円2年】 エアコン、ガスコンロ対応、クロゼット、フローリング、室内洗濯置、陽当り良好、システムキッチン、角住戸、駐輪場、CATV、光ファイバー、即入居可、礼金不要、閑静な住宅地、2面採光、BS・CS、敷金不要、防犯カメラ、照明付、ロフト、全居室洋室、保証人不要、仲介手数料不要、CATVインターネット、二人入居相談、全居室フローリング、玄関ホール、ネット専用回線、初期費用10万円以下、保証金不要、24時間換気システム、ルームシェア相談、納戸、吹抜け、3方角住戸、耐震構造、準耐火構造、3駅以上利用可、3沿線以上利用可、駅徒歩10分以内、敷地内ごみ置き場、リビング吹抜け、都市ガス、内装リフォーム後渡、年内入居可、年度内入居可、敷金・礼金不要、保証会社利用可、IT重説対応物件、初期費用カード決済可、全室照明付、通風良好 | ||
部屋の情報
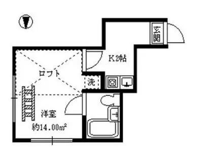
| 間取り | 1K | 専有面積 | 14m2 |
|---|---|---|---|
| 所在階 / 向き | 1階 / 東 | バルコニー面積 | - |
| 水道 / ガス | - | ||
| 設備 | インターネット対応、システムキッチン、エアコン、角部屋、フローリング、ロフトあり、コンロ:ガス、CATV、CSアンテナ、BSアンテナ、洗濯機:室内 | ||
| 当社物件ID | 5971075 | ||
建物の情報
| 建物名 | ライフピア都立家政 | ||
|---|---|---|---|
| 所在地 | 東京都練馬区中村南 | ||
| 交通 | 西武新宿線 都立家政駅 徒歩9分 西武新宿線 鷺ノ宮駅 徒歩11分 西武池袋線 中村橋駅 徒歩15分 | ||
| 階数 | 2階建 | 総戸数 | - |
| 築年月 | 1986年05月 / 築40年 | エレベーター | - |
| 駐車場 | なし | バイク置き場 | - |
| 駐輪場 | あり | 管理人/管理会社 | - |
| 周辺環境 | その他 立志舎(学校法人)杉並学園本部 東京IT会計専門学校杉並校(その他)まで2770m その他 国際短期大学(大学・短大)まで1859m その他 ジョナサン 鷺宮店(飲食店)まで336m その他 オーケーストア中杉店(スーパー)まで414m その他 (株)大丸ピーコック 都立家政店(スーパー)まで613m その他 100円ショップキャンドゥピーコックストア都立家政店(その他)まで623m | ||
| 建物種別 | アパート | 建物構造 | 木造 |
この部屋の取扱い不動産会社
| 会社名 | (株)ミルーム(SUUMO経由) | ||
|---|---|---|---|
| 所在地 | 東京都新宿区高田馬場2-14-9 | 交通 | - |
| 営業時間 | 10:00~19:00 | 定休日 | 無 |
| 免許番号 | 東京都知事92686 | 取引態様 | 仲介 |
| 不動産会社管理番号 | 100490080417 | 当社管理番号 | 89 |
| 所属団体 | (公社)全日本不動産協会東京都本部会員 | ||
| 公正取引協議会 | (公社)首都圏不動産公正取引協議会加盟 | ||
| 取扱い物件情報 | 物件詳細へ | ||
※各種情報と現状に差異がある場合は、現状優先となります。問い合わせをすることで、より詳しい条件、情報を確認する事ができます。
提供:(株)ミルーム(SUUMO経由)
この物件が気になったら掲載期限まであと10日
ライフピア都立家政に条件(家賃・エリア)が近い物件一覧
| 写真 | 家賃 管理費等 | 敷金 礼金 | 間取り 専有面積 | 築年数 | 最寄り駅 所在地 | キープ | 詳細 |
|---|---|---|---|---|---|---|---|
マンション 大栄パレス(ワンルーム/4階) | |||||||
![]() | 5.5万円 3,000円 | 5.5万円 なし | ワンルーム 19.14m2 | 築40年 | 西武新宿線 上井草駅 徒歩5分 西武新宿線 上石神井駅 徒歩15分 西武池袋線 石神井公園駅 徒歩26分 東京都練馬区下石神井 | 詳細を見る | |
マンション 貫井ビル(ワンルーム/8階) | |||||||
![]() | 6.5万円 なし | 6.5万円 なし | ワンルーム 19.5m2 | 築33年 | 西武池袋線 大泉学園駅 徒歩3分 東京都練馬区東大泉 | 詳細を見る | |
マンション マートルコート西台(ワンルーム/2階) | |||||||
![]() | 5万円 5,000円 | なし なし | ワンルーム 18.2m2 | 築38年 | 都営三田線 西台駅 徒歩10分 都営三田線 蓮根駅 徒歩14分 都営三田線 高島平駅 徒歩20分 東京都板橋区高島平 | 詳細を見る | |
アパート 第一高野荘(ワンルーム/2階) | |||||||
![]() | 3万円 なし | 3万円 3万円 | ワンルーム 10m2 | 築49年 | 東武東上線 中板橋駅 徒歩6分 都営三田線 板橋本町駅 徒歩12分 東武東上線 ときわ台駅(東京) 徒歩13分 東京都板橋区双葉町 | 詳細を見る | |
マンション グランドパルク常盤(1K/3階) | |||||||
![]() | 6.6万円 4,000円 | 6.6万円 6.6万円 | 1K 25.5m2 | 築21年 | 東武東上線 上板橋駅 徒歩7分 東京都板橋区常盤台 | 詳細を見る | |
アパート アーバンプレイス阿佐ヶ谷V(ワンルーム/1階) | |||||||
![]() | 5.6万円 3,000円 | なし 5.6万円 | ワンルーム 9.84m2 | 築11年 | JR総武線 高円寺駅 徒歩9分 東京メトロ丸ノ内線 南阿佐ケ谷駅 徒歩9分 JR総武線 阿佐ケ谷駅 徒歩9分 東京都杉並区阿佐谷南 | 詳細を見る | |
アパート いずみ荘(1K/2階) | |||||||
![]() | 5.1万円 3,000円 | 5.1万円 なし | 1K 19.5m2 | 築59年 | 京王井の頭線 西永福駅 徒歩4分 京王井の頭線 永福町駅 徒歩9分 京王井の頭線 浜田山駅 徒歩15分 東京都杉並区永福 | 詳細を見る | |
マンション アビティ井草(1K/4階) | |||||||
![]() | 6.8万円 7,000円 | なし 6.8万円 | 1K 18.32m2 | 築32年 | 西武鉄道新宿線 井荻駅 徒歩9分 東京都杉並区井草2丁目 | 詳細を見る | |









/105x80-f1-q70-wp1)