賃貸マンション
ワールドシティータワーズの賃貸物件情報(2LDK/31階)
| 家賃 | 管理費等 | 敷金 | 礼金 | 間取り | 専有面積 |
|---|---|---|---|---|---|
| 39万円 | 3万円 | 39万円 | 39万円 | 2LDK | 80.45m2 |
入居決定でお祝い金最大100,000円
- 保証金
- -
- 償却・敷引
- -
- 築年数
- 築20年
- 所在階
- 31階
- 向き
- 南
Point
5棟2000戸超のビッグコミュティ コンシェルジュサービス 敷地内に24時間スーパー、カフェ、保育園、クリニック、歯科、薬局、ATMあり 品川駅までの直通バスあり
提供:Kトラスト(株)(SUUMO経由)

詳細情報 ワールドシティータワーズ
物件紹介
ワールドシティータワーズは東京モノレール天王洲アイル駅から徒歩5分にあり、駅近で通勤通学に便利なマンションです。
このお部屋は2階以上に位置しているので通行人や周囲の住人からの視線が気になりにくく、建物のエントランスはオートロックがついているので防犯性が高くなっています。
人気の南向きのお部屋。また、フローリングなのでお掃除もラクラク。キッチンはシステムキッチン仕様になっていますので、お料理好きの方にもぴったり。バス・トイレは別なので、のんびりお風呂タイムも楽しめるでしょう。また、雨の日でも浴室乾燥機を使えば、お洗濯も問題ありません。
通信設備面では、インターネット接続が可能です(別途工事、契約料が必要な場合あり)。
床暖房があり、冬も足元から暖かく快適に過ごすことができます。建物にはエレベーターがついているので、重い荷物があっても安心。共用部には宅配ボックスが設定されているので、不在の時にも荷物を受け取ることができます。
このお部屋は2階以上に位置しているので通行人や周囲の住人からの視線が気になりにくく、建物のエントランスはオートロックがついているので防犯性が高くなっています。
人気の南向きのお部屋。また、フローリングなのでお掃除もラクラク。キッチンはシステムキッチン仕様になっていますので、お料理好きの方にもぴったり。バス・トイレは別なので、のんびりお風呂タイムも楽しめるでしょう。また、雨の日でも浴室乾燥機を使えば、お洗濯も問題ありません。
通信設備面では、インターネット接続が可能です(別途工事、契約料が必要な場合あり)。
床暖房があり、冬も足元から暖かく快適に過ごすことができます。建物にはエレベーターがついているので、重い荷物があっても安心。共用部には宅配ボックスが設定されているので、不在の時にも荷物を受け取ることができます。
お金・契約の情報
※「-」と表示されているものは、実際は料金が発生するものもございます。詳細はお問い合わせください。
| 家賃 | 39万円 | 管理費・共益費 | 3万円 |
|---|---|---|---|
| 敷金 | 39万円 | 礼金 | 39万円 |
| 入居決定でお祝い金最大100,000円 | |||
| 保証金 | - | 償却・敷引 | - |
| 住宅保険料 | - | 更新料 | - |
| 保証会社利用 | 必須 | 保証会社名 | - |
| 保証会社費用 | - | 保証会社備考 | 保証会社利用必 契約時に月総額の半額、保証継続料は毎月1,240円 |
| 契約形態 | - | 契約期間 | - |
| 入居・引渡期間 | - | 現況 | - |
| 契約備考 | 常駐管理/駐車場、駐輪場、バイク置場・要確認 24時間緊急サポート・16,500円/2年 2LDK 子供可/事務所利用不可/ルームシェア不可 損保【2万円2年】 バストイレ別、バルコニー、エアコン、フローリング、浴室乾燥機、オートロック、室内洗濯置、システムキッチン、南向き、追焚機能浴室、温水洗浄便座、エレベーター、洗面所独立、駐輪場、宅配ボックス、防犯カメラ、24時間有人管理、分譲賃貸、バイク置場、ネット専用回線、床暖房、敷地内ごみ置き場 入居日:'26年2月中旬 | ||
部屋の情報
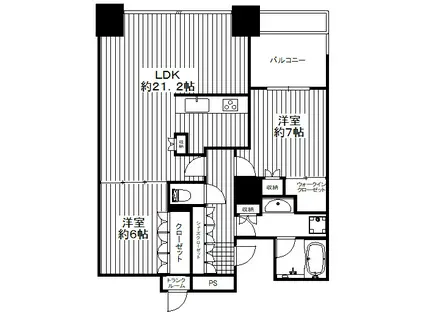
| 間取り | 2LDK | 専有面積 | 80.45m2 |
|---|---|---|---|
| 所在階 / 向き | 31階 / 南 | バルコニー面積 | - |
| 水道 / ガス | - | ||
| 設備 | バス・トイレ別、2階以上、オートロック、宅配ボックス、浴室乾燥機、追い焚き、インターネット対応、システムキッチン、エアコン、エレベーター、温水洗浄便座、南向き、バルコニー、フローリング、洗髪洗面化粧台、床暖房、洗濯機:室内 | ||
| 当社物件ID | 142169326 | ||
建物の情報
| 建物名 | ワールドシティータワーズ | ||
|---|---|---|---|
| 所在地 | 東京都港区港南 | ||
| 交通 | 東京モノレール 天王洲アイル駅 徒歩5分 りんかい線 天王洲アイル駅 徒歩8分 JR山手線 品川駅 徒歩13分 | ||
| 階数 | 40階建 | 総戸数 | - |
| 築年月 | 2006年10月 / 築20年 | エレベーター | あり |
| 駐車場 | 空有 33000円 | バイク置き場 | あり |
| 駐輪場 | あり | 管理人/管理会社 | - |
| 周辺環境 | その他 まいばすけっと天王洲アイル店(スーパー)まで781m その他 ゆうちょ銀行本店東京入国管理局内出張所(銀行)まで1511m その他 ファミリーマート港南四丁目店(コンビニ)まで412m その他 品川天王洲郵便局(郵便局)まで709m その他 天王洲シーフォートスクエア(ショッピングセンター)まで703m その他 湘南薬品港南薬局(ドラッグストア)まで220m | ||
| 建物種別 | マンション | 建物構造 | RC(鉄筋コンクリート) |
この部屋の取扱い不動産会社
| 会社名 | Kトラスト(株)(SUUMO経由) | ||
|---|---|---|---|
| 所在地 | 東京都品川区大崎5-8-5-209 | 交通 | - |
| 営業時間 | 10:00~18:00 | 定休日 | 水曜日 |
| 免許番号 | 東京都知事99866 | 取引態様 | 仲介 |
| 不動産会社管理番号 | 100355205057 | 当社管理番号 | 89 |
| 所属団体 | (公社)全日本不動産協会東京都本部会員 | ||
| 公正取引協議会 | (公社)首都圏不動産公正取引協議会加盟 | ||
| 取扱い物件情報 | 物件詳細へ | ||
※各種情報と現状に差異がある場合は、現状優先となります。問い合わせをすることで、より詳しい条件、情報を確認する事ができます。
提供:Kトラスト(株)(SUUMO経由)
この物件が気になったら掲載期限まであと9日
ワールドシティータワーズに条件(家賃・エリア)が近い物件一覧
| 写真 | 家賃 管理費等 | 敷金 礼金 | 間取り 専有面積 | 築年数 | 最寄り駅 所在地 | キープ | 詳細 |
|---|---|---|---|---|---|---|---|
マンション THE TOKYO TOWERS シータワー(2LDK/44階) | |||||||
![]() | 38.9万円 2.5万円 | 38.9万円 38.9万円 | 2LDK 80.23m2 | 築19年 | 都営大江戸線 勝どき駅 徒歩8分 東京メトロ有楽町線 月島駅 徒歩16分 東京メトロ日比谷線 築地駅 徒歩24分 東京都中央区勝どき | 詳細を見る | |
マンション SYFORME大井町Ⅱ(2LDK/13階) | |||||||
![]() | 28.2万円 1.5万円 | なし なし | 2LDK 56.15m2 | 築5年 | 京浜東北・根岸線 大井町駅 徒歩2分 京浜急行電鉄本線 鮫洲駅 徒歩8分 横須賀線 西大井駅 徒歩16分 東京都品川区東大井5丁目 | 詳細を見る | |
マンション SELENE御殿山(2SLDK/4階) | |||||||
![]() | 34.3万円 1.65万円 | 34.3万円 34.3万円 | 2SLDK 65.98m2 | 築1年 | JR山手線 大崎駅 徒歩5分 京急本線 北品川駅 徒歩15分 JR山手線 五反田駅 徒歩15分 東京都品川区北品川 | 詳細を見る | |
アパート 御殿山テラスⅡ(2LDK/1階) | |||||||
![]() | 23.9万円 3,000円 | 23.9万円 なし | 2LDK 57.6m2 | 築2年 | 山手線 大崎駅 徒歩8分 京浜急行電鉄本線 北品川駅 徒歩14分 東京都品川区北品川5丁目 | 詳細を見る | |
マンション パークアクシス池田山(1LDK/2階) | |||||||
![]() | 29.5万円 なし | 59万円 なし | 1LDK 53.44m2 | 築11年 | JR山手線 五反田駅 徒歩5分 都営浅草線 高輪台駅 徒歩8分 東急池上線 大崎広小路駅 徒歩14分 東京都品川区東五反田 | 詳細を見る | |
マンション THE TOKYO TOWERS MIDTOWER(1LDK/22階) | |||||||
![]() | 24.7万円 1.5万円 | 49.4万円 なし | 1LDK 53.74m2 | 築19年 | 東京都大江戸線 勝どき駅 徒歩6分 東京地下鉄有楽町線 月島駅 徒歩19分 東京都大江戸線 築地市場駅 徒歩20分 東京都中央区勝どき6丁目 | 詳細を見る | |
マンション シティタワーズ豊洲ザ・ツインサウスタワー(1LDK/5階) | |||||||
![]() | 29万円 なし | 58万円 29万円 | 1LDK 57.78m2 | 築17年 | ゆりかもめ 豊洲駅 徒歩6分 東京都江東区豊洲3丁目 | 詳細を見る | |
一戸建て 東京地下鉄東西線 木場駅 徒歩7分 築10年(2LDK) | |||||||
![]() | 24万円 なし | 48万円 24万円 | 2LDK 70.43m2 | 築10年 | 東京地下鉄東西線 木場駅 徒歩7分 東京都大江戸線 門前仲町駅 徒歩17分 京葉線 越中島駅 徒歩19分 東京都江東区木場6丁目 | 詳細を見る | |








/105x80-f1-q70-wp1)
