賃貸マンション
ビレッジハウス森1号棟の賃貸物件情報(3DK/5階)
| 家賃 | 管理費等 | 敷金 | 礼金 | 間取り | 専有面積 |
|---|---|---|---|---|---|
| 4.4万円 | なし | なし | なし | 3DK | 53.08m2 |
入居決定でお祝い金最大100,000円
- 保証金
- -
- 償却・敷引
- -
- 築年数
- 築38年
- 所在階
- 5階
- 向き
- 南
Point
まずはお問い合わせ!
不動産会社は街のプロ、あなたに合った物件がきっと見つかります。
提供:ビレッジハウス住まい相談センター

詳細情報 ビレッジハウス森1号棟
物件紹介
ビレッジハウス森1号棟は天竜浜名湖鉄道戸綿駅から徒歩6分にあり、駅近で通勤通学に便利なマンションです。
このお部屋は2階以上に位置しているので、通行人や周囲の住人からの視線が気になりにくく、防犯面でも安心です。
人気の南向きのお部屋。角部屋でもあるため、周囲の居住者の生活音も気になりにくい場所です。バス・トイレ別の仕様で、のんびりお風呂タイムも楽しめます。
ペット飼育の相談ができますので、あなたの大切な家族の一員も快適に暮らせるか、ぜひ確認してみてください。
このお部屋は2階以上に位置しているので、通行人や周囲の住人からの視線が気になりにくく、防犯面でも安心です。
人気の南向きのお部屋。角部屋でもあるため、周囲の居住者の生活音も気になりにくい場所です。バス・トイレ別の仕様で、のんびりお風呂タイムも楽しめます。
ペット飼育の相談ができますので、あなたの大切な家族の一員も快適に暮らせるか、ぜひ確認してみてください。
お金・契約の情報
※「-」と表示されているものは、実際は料金が発生するものもございます。詳細はお問い合わせください。
| 家賃 | 4.4万円 | 管理費・共益費 | なし |
|---|---|---|---|
| 敷金 | なし | 礼金 | なし |
| フリーレント | 1ヶ月 | ||
| 入居決定でお祝い金最大100,000円 | |||
| 保証金 | - | 償却・敷引 | - |
| 住宅保険料 | 1万円(2年) | 更新料 | - |
| 保証会社利用 | - | 保証会社名 | - |
| 保証会社費用 | - | 保証会社備考 | - |
| 契約形態 | - | 契約期間 | - |
| 入居・引渡期間 | - | 現況 | 空室 |
| 入居可能条件 | 2人入居可、高齢者相談、学生可、ペット相談 | ||
| 契約備考 | 契約種類:普通契約、24時間緊急対応、ウォシュレット、ウォームレット、洗面台 | ||
部屋の情報
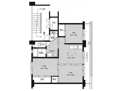
| 間取り | 3DK | 専有面積 | 53.08m2 |
|---|---|---|---|
| 所在階 / 向き | 5階 / 南 | バルコニー面積 | - |
| 水道 / ガス | - | ||
| 設備 | バス・トイレ別、エアコン、角部屋、バルコニー、給湯、洗濯機:室内 | ||
| 当社物件ID | 25473717 | ||
建物の情報
| 建物名 | ビレッジハウス森1号棟 | ||
|---|---|---|---|
| 所在地 | 静岡県周智郡森町森1502-15 | ||
| 交通 | 天竜浜名湖鉄道 戸綿駅 徒歩6分 天竜浜名湖鉄道 遠州森駅 徒歩10分 天竜浜名湖鉄道 森町病院前駅 徒歩21分 | ||
| 階数 | 5階建 | 総戸数 | - |
| 築年月 | 1989年02月 / 築38年 | エレベーター | - |
| 駐車場 | 空有 3,300円/月 円 | バイク置き場 | - |
| 駐輪場 | - | 管理人/管理会社 | 日勤 |
| 建物種別 | マンション | 建物構造 | RC(鉄筋コンクリート) |
この部屋の取扱い不動産会社
| 会社名 | ビレッジハウス住まい相談センター | ||
|---|---|---|---|
| 所在地 | 愛知県名古屋市中区大須4-10-32 上前津KDビル5階 | 交通 | 名城線「上前津駅」徒歩3分 |
| 営業時間 | 平日:9:00-18:30/土日祝:9:00-18:00 | 定休日 | 年中無休(年末年始を除く) |
| 免許番号 | 東京都知事(2)第100758号 | 取引態様 | 貸主 |
| 不動産会社管理番号 | 00013860722 | 当社管理番号 | 459 |
| 所属団体 | 公益社団法人東京都宅地建物取引業協会会員 日本賃貸住宅管理協会会員 | ||
| 取扱い物件情報 | 物件詳細へ | ||
※各種情報と現状に差異がある場合は、現状優先となります。問い合わせをすることで、より詳しい条件、情報を確認する事ができます。
提供:ビレッジハウス住まい相談センター
この物件が気になったら掲載期限まであと12日
ビレッジハウス森1号棟に条件(家賃・エリア)が近い物件一覧
| 写真 | 家賃 管理費等 | 敷金 礼金 | 間取り 専有面積 | 築年数 | 最寄り駅 所在地 | キープ | 詳細 |
|---|---|---|---|---|---|---|---|
アパート ルミエール(2DK/2階) | |||||||
![]() | 3.4万円 3,000円 | なし なし | 2DK 38.16m2 | 築34年 | JR東海道本線 磐田駅 徒歩21分 JR東海道本線 豊田町駅 徒歩35分 静岡県磐田市海老塚 | 詳細を見る | |
マンション プランドール(1DK/2階) | |||||||
![]() | 3.3万円 3,000円 | なし なし | 1DK 30.29m2 | 築27年 | 静岡県磐田市岡 | 詳細を見る | |
マンション 武藤ハイツII(2LDK/1階) | |||||||
![]() | 5.7万円 3,000円 | なし なし | 2LDK 54.09m2 | 築38年 | JR東海道本線 掛川駅 徒歩9分 東海道新幹線 掛川駅 徒歩9分 静岡県掛川市南 | 詳細を見る | |
テラスハウス セレーネ(2LDK) | |||||||
![]() | 6万円 3,800円 | なし なし | 2LDK 73.25m2 | 築22年 | 静岡県磐田市明ケ島原 | 詳細を見る | |
マンション 田畑ハイツそれいゆ上西郷A・B(2LDK/2階) | |||||||
![]() | 5.7万円 4,000円 | 8万円 なし | 2LDK 53.58m2 | 築18年 | JR東海道本線 掛川駅 徒歩36分 天竜浜名湖鉄道 掛川駅 徒歩36分 東海道新幹線 掛川駅 徒歩36分 静岡県掛川市上西郷 | 詳細を見る | |
アパート レジデンス高田Ⅰ(3DK/1階) | |||||||
![]() | 5.2万円 1,000円 | なし なし | 3DK 54.27m2 | 築29年 | 天竜浜名湖鉄道 いこいの広場駅 徒歩21分 静岡県掛川市高田 | 詳細を見る | |
アパート URANUS(1K/2階) | |||||||
![]() | 3.9万円 3,000円 | なし なし | 1K 22.35m2 | 築19年 | 静岡県磐田市見付 | 詳細を見る | |
マンション ランドスケイプ(2K/2階) | |||||||
![]() | 3.8万円 3,000円 | なし なし | 2K 31.68m2 | 築30年 | 静岡県磐田市上大之郷 | 詳細を見る | |









