賃貸一戸建て
京浜急行電鉄本線 能見台駅 徒歩19分 2階建 築16年の賃貸物件情報(4SLDK)
| 家賃 | 管理費等 | 敷金 | 礼金 | 間取り | 専有面積 |
|---|---|---|---|---|---|
| 20万円 | なし | 20万円 | 20万円 | 4SLDK | 134.97m2 |
入居決定でお祝い金最大100,000円
Point
来客が一目でわかるTVインターホン付き。前日の残り湯を使用できる追い焚き機能付きです。
提供:ハウスコム東神奈川株式会社 関内店

詳細情報 京浜急行電鉄本線 能見台駅 徒歩19分 2階建 築16年
物件紹介
京浜急行電鉄本線能見台駅から徒歩19分にある一戸建てです。
このお部屋のインターホンにはTVモニタがついているため、相手の顔を確認してから来客対応することができます。
こちらは楽器相談が可能な物件。楽器演奏をお考えの方はぜひ相談してみてください。フローリングのお部屋なのでお掃除もラクラク。キッチンはシステムキッチン仕様になっていますので、お料理好きの方にもぴったり。バス・トイレは別なので、のんびりお風呂タイムも楽しめるでしょう。また、雨の日でも浴室乾燥機を使えば、お洗濯も問題ありません。
ペット飼育の相談ができますので、あなたの大切な家族の一員も快適に暮らせるか、ぜひ確認してみてください。
コンビニまで徒歩8分の場所にあり、日用品や食料品のお買い物にも便利です。
このお部屋のインターホンにはTVモニタがついているため、相手の顔を確認してから来客対応することができます。
こちらは楽器相談が可能な物件。楽器演奏をお考えの方はぜひ相談してみてください。フローリングのお部屋なのでお掃除もラクラク。キッチンはシステムキッチン仕様になっていますので、お料理好きの方にもぴったり。バス・トイレは別なので、のんびりお風呂タイムも楽しめるでしょう。また、雨の日でも浴室乾燥機を使えば、お洗濯も問題ありません。
ペット飼育の相談ができますので、あなたの大切な家族の一員も快適に暮らせるか、ぜひ確認してみてください。
コンビニまで徒歩8分の場所にあり、日用品や食料品のお買い物にも便利です。
お金・契約の情報
※「-」と表示されているものは、実際は料金が発生するものもございます。詳細はお問い合わせください。
| 家賃 | 20万円 | 管理費・共益費 | なし |
|---|---|---|---|
| 敷金 | 20万円 | 礼金 | 20万円 |
| 入居決定でお祝い金最大100,000円 | |||
| 保証金 | - | 償却・敷引 | - |
| 住宅保険料 | 1円 | 更新料 | - |
| 保証会社利用 | 必須 | 保証会社名 | - |
| 保証会社費用 | - | 保証会社備考 | 初回保証料:月額総賃料50% 更新保証料:1年毎に1万円等 月額保証料:月額総賃料1.5% |
| 契約形態 | - | 契約期間 | 2年 |
| 入居・引渡期間 | 相談 | 現況 | - |
| 入居可能条件 | 楽器可、ペット相談 | ||
| 契約備考 | ペット飼育時敷金積増料金有 その他設備/条件:室内洗濯機置き場、独立洗面台、全居室収納、クローゼット、シューズボックス、照明器具付き、分譲賃貸 | ||
部屋の情報
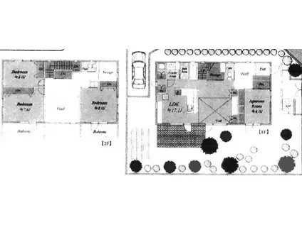
| 間取り | 4SLDK | 専有面積 | 134.97m2 |
|---|---|---|---|
| 間取り詳細 | LDK(17.1帖)、洋室(8帖)、洋室(7.6帖)、洋室(6帖)、洋室(6帖)、S(2帖) | ||
| 所在階 / 向き | 1階 / 南西 | バルコニー面積 | - |
| 水道 / ガス | 水道【公営】、ガス【都市】 | ||
| 設備 | バス・トイレ別、テレビドアホン、浴室乾燥機、追い焚き、システムキッチン、カウンターキッチン、エアコン、温水洗浄便座、バルコニー、フローリング、洗髪洗面化粧台、家具家電付き、3口コンロ、コンロ:IH、シャワー、冷蔵庫あり、専用庭、給湯 | ||
| 当社物件ID | 160536551 | ||
建物の情報
| 建物名 | 京浜急行電鉄本線 能見台駅 徒歩19分 2階建 築16年 | ||
|---|---|---|---|
| 所在地 | 神奈川県横浜市金沢区西柴2丁目 | ||
| 交通 | 京浜急行電鉄本線 能見台駅 徒歩19分 | ||
| 階数 | 2階建 | 総戸数 | 1戸 |
| 築年月 | 2010年10月 / 築16年 | エレベーター | - |
| 駐車場 | 空有 | バイク置き場 | あり |
| 駐輪場 | あり | 管理人/管理会社 | - |
| 周辺環境 | コンビニ 徒歩8分(632m) 販売店 徒歩12分(957m) その他 ドラッグストア その他 公園 その他 銀行 その他 * | ||
| 建物種別 | 一戸建て | 建物構造 | 木造 |
この部屋の取扱い不動産会社
| 会社名 | ハウスコム東神奈川株式会社 金沢文庫店 | ||
|---|---|---|---|
| 所在地 | 神奈川県横浜市金沢区3731階 | 交通 | - |
| 営業時間 | 10:00~18:00 | 定休日 | - |
| 免許番号 | 神奈川県知事(1)第31769号 | 取引態様 | 仲介 |
| 不動産会社管理番号 | HC1-5415788-1-0156 | 当社管理番号 | 468 |
| 所属団体 | 、 | ||
| 取扱い物件情報 | 物件詳細へ | ||
※各種情報と現状に差異がある場合は、現状優先となります。問い合わせをすることで、より詳しい条件、情報を確認する事ができます。
提供:ハウスコム東神奈川株式会社 金沢文庫店
この物件が気になったら掲載期限まであと5日
京浜急行電鉄本線 能見台駅 徒歩19分 2階建 築16年に条件(家賃・エリア)が近い物件一覧
| 写真 | 家賃 管理費等 | 敷金 礼金 | 間取り 専有面積 | 築年数 | 最寄り駅 所在地 | キープ | 詳細 |
|---|---|---|---|---|---|---|---|
マンション パークタワー向ケ丘遊園(2LDK/15階) | |||||||
![]() | 30万円 なし | 30万円 30万円 | 2LDK 69.65m2 | 築1年 | 小田急線 向ケ丘遊園駅 徒歩2分 小田急線 登戸駅 徒歩7分 JR南武線 登戸駅 徒歩8分 神奈川県川崎市多摩区登戸 | 詳細を見る | |
アパート MEDELLE(2LDK/1階) | |||||||
![]() | 23万円 8,000円 | 23万円 23万円 | 2LDK 56.82m2 | 新築 | 小田急多摩線 五月台駅 徒歩5分 小田急多摩線 栗平駅 徒歩15分 小田急線 新百合ケ丘駅 徒歩29分 神奈川県川崎市麻生区五力田 | 詳細を見る | |
マンション ポロニア(3LDK/3階) | |||||||
![]() | 12.7万円 8,000円 | 25.4万円 12.7万円 | 3LDK 70.5m2 | 築28年 | 小田急江ノ島線 六会日大前駅 徒歩5分 小田急江ノ島線 湘南台駅 徒歩21分 小田急江ノ島線 善行駅 徒歩29分 神奈川県藤沢市亀井野 | 詳細を見る | |
マンション BLESS宮崎台(3LDK/9階) | |||||||
![]() | 21.1万円 1万円 | 21.1万円 21.1万円 | 3LDK 62.4m2 | 築10年 | 東急田園都市線 宮崎台駅 徒歩4分 東急田園都市線 宮前平駅 徒歩11分 東急田園都市線 梶が谷駅 徒歩23分 神奈川県川崎市宮前区宮崎 | 詳細を見る | |
マンション カスタネア栗平(2LDK/3階) | |||||||
![]() | 16.2万円 5,000円 | 16.2万円 なし | 2LDK 68.42m2 | 築36年 | 小田急多摩線 栗平駅 徒歩3分 小田急多摩線 黒川駅(神奈川) 徒歩18分 小田急多摩線 五月台駅 徒歩20分 神奈川県川崎市麻生区栗平 | 詳細を見る | |
マンション 川崎サイトシティIV番館(2LDK/6階) | |||||||
![]() | 19万円 なし | 19万円 19万円 | 2LDK 61.88m2 | 築20年 | 京急本線 八丁畷駅 徒歩1分 京急本線 鶴見市場駅 徒歩13分 JR京浜東北線 川崎駅 徒歩14分 神奈川県川崎市川崎区下並木 | 詳細を見る | |
マンション シャイン湘南(2LDK/4階) | |||||||
![]() | 16.9万円 5,000円 | 16.9万円 16.9万円 | 2LDK 55.12m2 | 新築 | JR東海道本線 藤沢駅 徒歩8分 江ノ島電鉄線 石上駅 徒歩16分 小田急江ノ島線 藤沢本町駅 徒歩17分 神奈川県藤沢市藤沢 | 詳細を見る | |
マンション フルリアージュ(2LDK/3階) | |||||||
![]() | 19.9万円 1万円 | なし 39.8万円 | 2LDK 69.65m2 | 築1年 | 相鉄本線 大和駅(神奈川) 徒歩8分 相鉄本線 相模大塚駅 徒歩23分 相鉄本線 瀬谷駅 徒歩33分 神奈川県大和市中央 | 詳細を見る | |









