賃貸アパート
GRAND・CHARIOTの賃貸物件情報(1K/2階)
| 家賃 | 管理費等 | 敷金 | 礼金 | 間取り | 専有面積 |
|---|---|---|---|---|---|
| 3.8万円 | なし | なし | 5万円 | 1K | 19.87m2 |
入居決定でお祝い金最大100,000円
- 保証金
- -
- 償却・敷引
- -
- 築年数
- 築8年
- 所在階
- 2階
- 向き
- 南
Point
ウォシュレット等設備充実★案内は現地待ち合わせ可!電話予約&成約でQUOカード500円★【ピタットハウス姫路駅南口店】
提供:ピタットハウス(株)ライブデザイン(SUUMO経由)

詳細情報 GRAND・CHARIOT
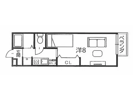
物件紹介
GRAND・CHARIOTは山陽電鉄網干線西飾磨駅から徒歩2分にあり、駅近で通勤通学に便利なアパートです。
このお部屋は2階以上に位置しているので、通行人や周囲の住人からの視線が気になりにくく、防犯面でも安心。インターホンにはTVモニタもついているため、相手の顔を確認してから来客対応することができます。
人気の南向き・フローリングのお部屋。角部屋でもあるため、周囲の居住者の生活音も気になりにくい場所です。キッチンはシステムキッチン仕様になっていますので、お料理好きの方にもぴったり。また、バス・トイレは別で、のんびりお風呂タイムも楽しめるでしょう。
通信設備面では、インターネット接続が可能です。また、BSアンテナ・CSアンテナがありCATVにも対応しているので、おうち時間も充実するでしょう(別途工事、契約料が必要な場合あり)。
このお部屋は2階以上に位置しているので、通行人や周囲の住人からの視線が気になりにくく、防犯面でも安心。インターホンにはTVモニタもついているため、相手の顔を確認してから来客対応することができます。
人気の南向き・フローリングのお部屋。角部屋でもあるため、周囲の居住者の生活音も気になりにくい場所です。キッチンはシステムキッチン仕様になっていますので、お料理好きの方にもぴったり。また、バス・トイレは別で、のんびりお風呂タイムも楽しめるでしょう。
通信設備面では、インターネット接続が可能です。また、BSアンテナ・CSアンテナがありCATVにも対応しているので、おうち時間も充実するでしょう(別途工事、契約料が必要な場合あり)。
お金・契約の情報
※「-」と表示されているものは、実際は料金が発生するものもございます。詳細はお問い合わせください。
| 家賃 | 3.8万円 | 管理費・共益費 | なし |
|---|---|---|---|
| 敷金 | なし | 礼金 | 5万円 |
| 入居決定でお祝い金最大100,000円 | |||
| 保証金 | - | 償却・敷引 | - |
| 住宅保険料 | - | 更新料 | - |
| 保証会社利用 | 必須 | 保証会社名 | - |
| 保証会社費用 | - | 保証会社備考 | 保証会社利用必 貸主指定 |
| 契約形態 | - | 契約期間 | - |
| 入居・引渡期間 | 即時 | 現況 | - |
| 契約備考 | 巡回管理/TVドアホン★エアコン★バストイレ別★ウォシュレット等設備充実★案内は現地待ち合わせ可!電話予約&成約でQUOカード500円★【ピタットハウス姫路駅南口店】 1K 普通借家2年 バストイレ別、バルコニー、エアコン、ガスコンロ対応、クロゼット、フローリング、TVインターホン、室内洗濯置、陽当り良好、シューズボックス、南向き、温水洗浄便座、駐輪場、CATV、光ファイバー、即入居可、閑静な住宅地、最上階、BS・CS、敷金不要、IHクッキングヒーター、CATVインターネット、全居室フローリング、2沿線利用可、ネット専用回線、駅まで平坦、眺望良好、24時間換気システム、平坦地、3駅以上利用可、駅前、駅徒歩5分以内、上階無し、オープンキッチン、プロパンガス、玄関収納、高速ネット対応、IT重説対応物件、初期費用カード決済可、通風良好 | ||
部屋の情報
| 間取り | 1K | 専有面積 | 19.87m2 |
|---|---|---|---|
| 所在階 / 向き | 2階 / 南 | バルコニー面積 | - |
| 水道 / ガス | - | ||
| 設備 | バス・トイレ別、2階以上、テレビドアホン、インターネット対応、エアコン、温水洗浄便座、南向き、バルコニー、フローリング、コンロ:IH、CATV、CSアンテナ、BSアンテナ、洗濯機:室内 | ||
| 当社物件ID | 26274285 | ||
建物の情報
| 建物名 | GRAND・CHARIOT | ||
|---|---|---|---|
| 所在地 | 兵庫県姫路市飾磨区今在家 | ||
| 交通 | 山陽電鉄網干線 西飾磨駅 徒歩2分 JR山陽本線 英賀保駅 徒歩18分 山陽電鉄網干線 夢前川駅 徒歩20分 | ||
| 階数 | 2階建 | 総戸数 | 4戸 |
| 築年月 | 2018年02月 / 築8年 | エレベーター | - |
| 駐車場 | 空有 5000円 | バイク置き場 | - |
| 駐輪場 | あり | 管理人/管理会社 | - |
| 周辺環境 | その他 スギドラッグ 飾磨中浜店(ドラッグストア)まで617m その他 ローソン 姫路飾磨城南町店(コンビニ)まで506m その他 ドラッグストアコスモス 英賀店(ドラッグストア)まで768m その他 マルアイ 英賀保店(スーパー)まで598m その他 ローソン 姫路飾磨加茂店(コンビニ)まで597m その他 ハローズ 姫路飾磨店(スーパー)まで813m | ||
| 建物種別 | アパート | 建物構造 | 木造 |
この部屋の取扱い不動産会社
| 会社名 | ピタットハウス姫路駅南口店(株)ライブデザイン(SUUMO経由) | ||
|---|---|---|---|
| 所在地 | 兵庫県姫路市南駅前町 100 ホテル日航姫路1階 | 交通 | - |
| 営業時間 | 09:00~19:00 | 定休日 | 年中無休 |
| 免許番号 | 国土交通大臣10464 | 取引態様 | 仲介 |
| 不動産会社管理番号 | 100479662652 | 当社管理番号 | 89 |
| 所属団体 | (公社)全日本不動産協会兵庫県本部会員 | ||
| 公正取引協議会 | (公社)近畿地区不動産公正取引協議会加盟 | ||
| 取扱い物件情報 | 物件詳細へ | ||
※各種情報と現状に差異がある場合は、現状優先となります。問い合わせをすることで、より詳しい条件、情報を確認する事ができます。
提供:ピタットハウス姫路駅南口店(株)ライブデザイン(SUUMO経由)
この物件が気になったら掲載期限まであと11日
GRAND・CHARIOTに条件(家賃・エリア)が近い物件一覧
| 写真 | 家賃 管理費等 | 敷金 礼金 | 間取り 専有面積 | 築年数 | 最寄り駅 所在地 | キープ | 詳細 |
|---|---|---|---|---|---|---|---|
マンション シティヒルズⅡ(1K/7階) | |||||||
![]() | 2.7万円 なし | なし なし | 1K 14.25m2 | 築30年 | 姫新線 播磨高岡駅 徒歩26分 姫新線 余部駅 徒歩43分 兵庫県姫路市田寺1 | 詳細を見る | |
アパート ソレアードⅠ(2LDK/2階) | |||||||
![]() | 4.6万円 2,000円 | なし なし | 2LDK 58.12m2 | 築25年 | 山陽電気鉄道本線 的形駅 徒歩13分 山陽電気鉄道本線 大塩駅 徒歩16分 山陽本線 曽根駅(兵庫) 徒歩39分 兵庫県高砂市北浜町西浜 | 詳細を見る | |
アパート サクライビル(2LDK/2階) | |||||||
![]() | 4万円 なし | なし 8万円 | 2LDK 66m2 | 築46年 | 播但線 野里駅 徒歩7分 兵庫県姫路市保城 | 詳細を見る | |
アパート ラフォーレ龍野Ⅱ(3LDK/2階) | |||||||
![]() | 5.9万円 4,000円 | なし 5.9万円 | 3LDK 61.15m2 | 築26年 | 姫新線 本竜野駅 徒歩14分 兵庫県たつの市龍野町末政 | 詳細を見る | |
一戸建て 山陽電気鉄道網干線 山陽天満駅 徒歩8分 築35年(4DK) | |||||||
![]() | 5万円 なし | なし 5万円 | 4DK 82.27m2 | 築35年 | 山陽電気鉄道網干線 山陽天満駅 徒歩8分 山陽電気鉄道網干線 平松駅 徒歩16分 山陽電気鉄道網干線 広畑駅 徒歩18分 兵庫県姫路市大津区恵美酒町1丁目 | 詳細を見る | |
アパート 玲巧ハイツ2(3DK/2階) | |||||||
![]() | 4.3万円 2,200円 | なし なし | 3DK 52.17m2 | 築33年 | JR姫新線 播磨高岡駅 徒歩20分 山陽電鉄本線 手柄駅 徒歩33分 山陽電鉄本線 亀山駅(兵庫) 徒歩42分 兵庫県姫路市西庄 | 詳細を見る | |
アパート マ・メゾンⅠ(1K/2階) | |||||||
![]() | 5.1万円 4,200円 | なし 5.1万円 | 1K 28.12m2 | 築14年 | 北条鉄道 北条町駅 徒歩5分 北条鉄道 播磨横田駅 徒歩25分 兵庫県加西市北条町北条 | 詳細を見る | |
アパート メゾンT(1DK/1階) | |||||||
![]() | 4.1万円 なし | 2万円 4.1万円 | 1DK 26.93m2 | 築35年 | JR播但線 砥堀駅 徒歩6分 JR播但線 野里駅 徒歩27分 兵庫県姫路市砥堀 | 詳細を見る | |








