賃貸マンション
サーパス窪本町の賃貸物件情報(2SLDK/1階)
| 家賃 | 管理費等 | 敷金 | 礼金 | 間取り | 専有面積 |
|---|---|---|---|---|---|
| 9万円 | 8,800円 | 9万円 | 9万円 | 2SLDK | 73.68m2 |
入居決定でお祝い金最大100,000円
Point
ゆとりの広さのお部屋と使いやすい間取りが新婚さん・ファミリーにおすすめです。奥田中学校前駅徒歩8分!!徒歩圏内にはスーパー・コンビニ・ドラッグストアや保育園・小中学校もあり利便性の高い立地です♪
提供:(株)アーバンホーム富山店(SUUMO経由)

詳細情報 サーパス窪本町
物件紹介
サーパス窪本町は富山地鉄富山港線奥田中学校前駅から徒歩8分にあり、駅近で通勤通学に便利なマンションです。
建物のエントランスはオートロックがついており、インターホンにはTVモニタもついているため、相手の顔を確認してから来客対応することができます。
フローリングのお部屋なのでお掃除もラクラク。キッチンはシステムキッチン仕様になっていますので、お料理好きの方にもぴったり。バス・トイレは別なので、のんびりお風呂タイムも楽しめるでしょう。また、雨の日でも浴室乾燥機を使えば、お洗濯も問題ありません。
通信設備面ではBSアンテナ・CSアンテナがあり、CATVにも対応しているので、おうち時間も充実するでしょう(別途工事、契約料が必要な場合あり)。
建物にはエレベーターがついているので、重い荷物があっても安心。共用部には宅配ボックスが設定されているので、不在の時にも荷物を受け取ることができます。
建物のエントランスはオートロックがついており、インターホンにはTVモニタもついているため、相手の顔を確認してから来客対応することができます。
フローリングのお部屋なのでお掃除もラクラク。キッチンはシステムキッチン仕様になっていますので、お料理好きの方にもぴったり。バス・トイレは別なので、のんびりお風呂タイムも楽しめるでしょう。また、雨の日でも浴室乾燥機を使えば、お洗濯も問題ありません。
通信設備面ではBSアンテナ・CSアンテナがあり、CATVにも対応しているので、おうち時間も充実するでしょう(別途工事、契約料が必要な場合あり)。
建物にはエレベーターがついているので、重い荷物があっても安心。共用部には宅配ボックスが設定されているので、不在の時にも荷物を受け取ることができます。
お金・契約の情報
※「-」と表示されているものは、実際は料金が発生するものもございます。詳細はお問い合わせください。
| 家賃 | 9万円 | 管理費・共益費 | 8,800円 |
|---|---|---|---|
| 敷金 | 9万円 | 礼金 | 9万円 |
| 入居決定でお祝い金最大100,000円 | |||
| 保証金 | - | 償却・敷引 | - |
| 住宅保険料 | - | 更新料 | - |
| 契約形態 | - | 契約期間 | - |
| 入居・引渡期間 | 相談 | 現況 | - |
| 契約備考 | 常駐管理/個人契約の場合は連帯保証人をたててください(三親等以内の方)。駐車場は敷地内に1台まで(2年ごとに抽選で位置が変わります)。 2台目以降は敷地外駐車場を個別にご契約ください。 自治会費 月額500円 2SLDK 損保【要】 バストイレ別、バルコニー、フローリング、TVインターホン、浴室乾燥機、オートロック、室内洗濯置、陽当り良好、シューズボックス、システムキッチン、追焚機能浴室、温水洗浄便座、エレベーター、洗面所独立、駐輪場、宅配ボックス、CATV、閑静な住宅地、BS・CS、3口以上コンロ、独立型キッチン、全居室収納、分譲賃貸、オートバス、グリル付、敷金1ヶ月、ディンプルキー、駅まで平坦、エアコン全室、トランクルーム、エアコン3台、クロゼット2ヶ所、納戸、2駅利用可、路面電車沿線、駅徒歩10分以内、敷地内ごみ置き場、来客用パーキング、日勤管理、リビングの隣和室、和室、都市ガス、洗面所にドア、礼金1ヶ月、IT重説対応物件、全室照明付、通風良好 | ||
部屋の情報
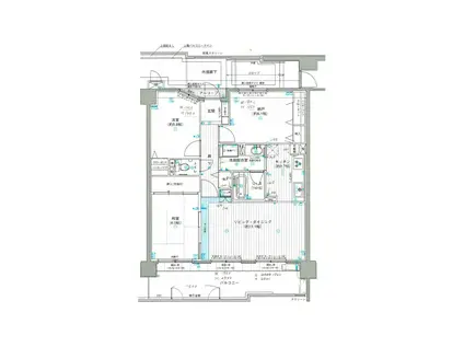
| 間取り | 2SLDK | 専有面積 | 73.68m2 |
|---|---|---|---|
| 所在階 / 向き | 1階 / 東 | バルコニー面積 | 16m2 |
| 水道 / ガス | - | ||
| 設備 | バス・トイレ別、オートロック、テレビドアホン、宅配ボックス、浴室乾燥機、追い焚き、システムキッチン、エアコン、エレベーター、温水洗浄便座、バルコニー、フローリング、トランクルーム、洗髪洗面化粧台、2口コンロ、CATV、CSアンテナ、BSアンテナ、洗濯機:室内 | ||
| 当社物件ID | 159509303 | ||
建物の情報
| 建物名 | サーパス窪本町 | ||
|---|---|---|---|
| 所在地 | 富山県富山市窪本町 | ||
| 交通 | 富山地鉄富山港線 奥田中学校前駅 徒歩8分 富山地鉄本線 稲荷町駅(富山) 徒歩12分 | ||
| 階数 | 7階建 | 総戸数 | - |
| 築年月 | 2000年02月 / 築26年 | エレベーター | あり |
| 駐車場 | 空有 5500円 | バイク置き場 | - |
| 駐輪場 | あり | 管理人/管理会社 | - |
| 周辺環境 | その他 ローソン富山窪本町店(コンビニ)まで91m その他 V・drug窪新店(ドラッグストア)まで326m その他 富山市立奥田小学校(小学校)まで1526m その他 認定こども園文化幼稚園(幼稚園・保育園)まで323m その他 アピアショッピングセンター(ショッピングセンター)まで948m その他 バロー窪新店(スーパー)まで412m | ||
| 建物種別 | マンション | 建物構造 | RC(鉄筋コンクリート) |
この部屋の取扱い不動産会社
| 会社名 | (株)アーバンホーム富山店(SUUMO経由) | ||
|---|---|---|---|
| 所在地 | 富山県富山市太郎丸本町1-3-6 | 交通 | - |
| 営業時間 | 9:30~17:00 | 定休日 | 水曜(祝日除く) |
| 免許番号 | 国土交通大臣8724 | 取引態様 | 仲介 |
| 不動産会社管理番号 | 100459334016 | 当社管理番号 | 89 |
| 所属団体 | (公社)富山県宅地建物取引業協会会員 | ||
| 公正取引協議会 | 北陸不動産公正取引協議会加盟 | ||
| 取扱い物件情報 | 物件詳細へ | ||
※各種情報と現状に差異がある場合は、現状優先となります。問い合わせをすることで、より詳しい条件、情報を確認する事ができます。
提供:(株)アーバンホーム富山店(SUUMO経由)
この物件が気になったら掲載期限まであと7日
サーパス窪本町に条件(家賃・エリア)が近い物件一覧
| 写真 | 家賃 管理費等 | 敷金 礼金 | 間取り 専有面積 | 築年数 | 最寄り駅 所在地 | キープ | 詳細 |
|---|---|---|---|---|---|---|---|
アパート 高山本線 速星駅 徒歩16分 新築(2LDK/2階) | |||||||
![]() | 8.5万円 6,300円 | なし 17万円 | 2LDK 51.68m2 | 新築 | 高山本線 速星駅 徒歩16分 高山本線 婦中鵜坂駅 徒歩21分 富山地鉄富山市内線 トヨタモビリティ富山Gスクエア五福前駅 徒歩50分 富山県富山市婦中町下轡田 | 詳細を見る | |
アパート D-GRANDE東田地方(2LDK/1階) | |||||||
![]() | 11.6万円 9,000円 | なし 23.2万円 | 2LDK 60.53m2 | 築1年 | 富山地鉄富山市内線 地鉄ビル前駅 徒歩10分 北陸新幹線 富山駅 徒歩16分 富山県富山市東田地方町2丁目 | 詳細を見る | |
アパート 高山本線 笹津駅 徒歩33分 築3年(2LDK/2階) | |||||||
![]() | 6.3万円 4,100円 | なし なし | 2LDK 63.03m2 | 築3年 | 高山本線 笹津駅 徒歩33分 富山県富山市長附 | 詳細を見る | |
アパート カーサセレナータ(1LDK/1階) | |||||||
![]() | 5.7万円 5,000円 | なし 7.7万円 | 1LDK 47.42m2 | 築16年 | あいの風とやま鉄道 小杉駅(あいの風) 徒歩12分 富山県射水市戸破 | 詳細を見る | |
アパート 富山地鉄本線 越中荏原駅 徒歩15分 築6年(1LDK/2階) | |||||||
![]() | 5.7万円 4,500円 | なし 5.7万円 | 1LDK 42.38m2 | 築6年 | 富山地鉄本線 越中荏原駅 徒歩15分 富山地鉄本線 新庄田中駅 徒歩23分 富山県富山市富岡町 | 詳細を見る | |
アパート 富山地鉄本線 稲荷町駅(富山) 徒歩12分 築4年(1LDK/1階) | |||||||
![]() | 7.8万円 7,000円 | なし 10万円 | 1LDK 46.97m2 | 築4年 | 富山地鉄本線 稲荷町駅(富山) 徒歩12分 富山地鉄不二越上滝 不二越駅 徒歩13分 富山県富山市東町1丁目 | 詳細を見る | |
アパート カーサレジオ(2LDK/2階) | |||||||
![]() | 6.5万円 4,000円 | なし 10万円 | 2LDK 59.92m2 | 築13年 | 城端線 東野尻駅 徒歩7分 城端線 高儀駅 徒歩21分 城端線 砺波駅 徒歩32分 富山県砺波市苗加 | 詳細を見る | |
アパート 富山地鉄富山港線 下奥井駅 徒歩6分 築16年(2DK/1階) | |||||||
![]() | 6万円 2,300円 | なし 8万円 | 2DK 52.47m2 | 築16年 | 富山地鉄富山港線 下奥井駅 徒歩6分 富山県富山市久方町 | 詳細を見る | |








