賃貸アパート
レオパレスエスポワールの賃貸物件情報(1K/2階)
| 家賃 | 管理費等 | 敷金 | 礼金 | 間取り | 専有面積 |
|---|---|---|---|---|---|
| 4.6万円 | 4,500円 | なし | 4.6万円 | 1K | 22.35m2 |
入居決定でお祝い金最大100,000円
- 保証金
- -
- 償却・敷引
- -
- 築年数
- 築21年
- 所在階
- 2階
- 向き
- -
Point
まずはお問い合わせ!
不動産会社は街のプロ、あなたに合った物件がきっと見つかります。
提供:(株)トリコム(SUUMO経由)

詳細情報 レオパレスエスポワール
物件紹介
レオパレスエスポワールはJR福塩線横尾駅から徒歩25分にあるアパートです。
このお部屋は2階以上に位置しているので、通行人や周囲の住人からの視線が気になりにくく、防犯面でも安心。インターホンにはTVモニタもついているため、相手の顔を確認してから来客対応することができます。
バス・トイレ別の仕様で、のんびりお風呂タイムも楽しめます。
通信設備面では、インターネット接続が可能です(別途工事、契約料が必要な場合あり)。
共用部には宅配ボックスが設定されているので、不在の時にも荷物を受け取ることができます。
このお部屋は2階以上に位置しているので、通行人や周囲の住人からの視線が気になりにくく、防犯面でも安心。インターホンにはTVモニタもついているため、相手の顔を確認してから来客対応することができます。
バス・トイレ別の仕様で、のんびりお風呂タイムも楽しめます。
通信設備面では、インターネット接続が可能です(別途工事、契約料が必要な場合あり)。
共用部には宅配ボックスが設定されているので、不在の時にも荷物を受け取ることができます。
お金・契約の情報
※「-」と表示されているものは、実際は料金が発生するものもございます。詳細はお問い合わせください。
| 家賃 | 4.6万円 | 管理費・共益費 | 4,500円 |
|---|---|---|---|
| 敷金 | なし | 礼金 | 4.6万円 |
| フリーレント | あり | ||
| 入居決定でお祝い金最大100,000円 | |||
| 保証金 | - | 償却・敷引 | - |
| 住宅保険料 | - | 更新料 | - |
| 保証会社利用 | 必須 | 保証会社名 | - |
| 保証会社費用 | - | 保証会社備考 | 保証会社利用必 保証料:61190円(契約内容により100~120%で変動有)※記載金額は120%の場合 |
| 契約形態 | - | 契約期間 | - |
| 入居・引渡期間 | 即時 | 現況 | - |
| 契約備考 | 合計7.63万円(内訳:退去時清掃費41800円、鍵交換費16500円、抗菌施工(任意)18040円(税込)) 環境維持費550円/月、更新手数料16500円/2年(税込) 1K フリーレント1ヶ月 損保【要】 バストイレ別、エアコン、TVインターホン、室内洗濯置、温水洗浄便座、宅配ボックス、光ファイバー、即入居可、最上階、電気コンロ、家電付、家具付 | ||
部屋の情報
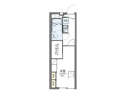
| 間取り | 1K | 専有面積 | 22.35m2 |
|---|---|---|---|
| 所在階 / 向き | 2階 / - | バルコニー面積 | - |
| 水道 / ガス | - | ||
| 設備 | バス・トイレ別、2階以上、テレビドアホン、宅配ボックス、インターネット対応、エアコン、温水洗浄便座、洗濯機:室内 | ||
| 当社物件ID | 40157132 | ||
建物の情報
| 建物名 | レオパレスエスポワール | ||
|---|---|---|---|
| 所在地 | 広島県福山市御幸町大字中津原 | ||
| 交通 | JR福塩線 横尾駅 徒歩25分 JR福塩線 横尾駅 バス乗車時間:10分 最寄りバス停で下車 徒歩2分 | ||
| 階数 | 2階建 | 総戸数 | 20戸 |
| 築年月 | 2005年11月 / 築21年 | エレベーター | - |
| 駐車場 | 空有 4950円 | バイク置き場 | - |
| 駐輪場 | - | 管理人/管理会社 | - |
| 建物種別 | アパート | 建物構造 | 軽量鉄骨造 |
この部屋の取扱い不動産会社
| 会社名 | (株)トリコム(SUUMO経由) | ||
|---|---|---|---|
| 所在地 | 広島県福山市多治米町5-24-15 | 交通 | - |
| 営業時間 | 9:00~18:00 | 定休日 | 無し |
| 免許番号 | 広島県知事10530 | 取引態様 | 仲介 |
| 不動産会社管理番号 | 100460363638 | 当社管理番号 | 89 |
| 所属団体 | (公社)広島県宅地建物取引業協会会員 | ||
| 公正取引協議会 | 中国地区不動産公正取引協議会加盟 | ||
| 取扱い物件情報 | 物件詳細へ | ||
※各種情報と現状に差異がある場合は、現状優先となります。問い合わせをすることで、より詳しい条件、情報を確認する事ができます。
提供:(株)トリコム(SUUMO経由)
この物件が気になったら掲載期限まであと0日
レオパレスエスポワールに条件(家賃・エリア)が近い物件一覧
| 写真 | 家賃 管理費等 | 敷金 礼金 | 間取り 専有面積 | 築年数 | 最寄り駅 所在地 | キープ | 詳細 |
|---|---|---|---|---|---|---|---|
アパート オリーブコート曙(2DK/1階) | |||||||
![]() | 5万円 なし | なし なし | 2DK 39.5m2 | 築37年 | 広島県福山市曙町 | 詳細を見る | |
マンション FREE SPACE1(ワンルーム/4階) | |||||||
![]() | 3万円 なし | なし なし | ワンルーム 17.52m2 | 築33年 | 広島県福山市松永町 | 詳細を見る | |
マンション SATOビル神辺(1K/3階) | |||||||
![]() | 3.6万円 2,000円 | なし なし | 1K 24.6m2 | 築38年 | 福塩線 道上駅 徒歩12分 広島県福山市神辺町神辺町字十九軒屋 | 詳細を見る | |
マンション T・Y MOTOYA(1K/4階) | |||||||
![]() | 4.4万円 2,000円 | なし 4.4万円 | 1K 38.1m2 | 築27年 | 広島県福山市春日町 | 詳細を見る | |
アパート プラシード カーサF(1K/1階) | |||||||
![]() | 4.45万円 2,900円 | なし 5.45万円 | 1K 31.7m2 | 築8年 | JR山陽本線 東福山駅 徒歩46分 JR山陽本線 福山駅 徒歩51分 JR福塩線 備後本庄駅 徒歩72分 広島県福山市東川口町 | 詳細を見る | |
アパート クラポティ新涯(2LDK/1階) | |||||||
![]() | 6.8万円 4,000円 | 6.8万円 なし | 2LDK 57.46m2 | 築1年 | 広島県福山市新涯町6丁目 | 詳細を見る | |
マンション AREAS福山港町(3LDK/2階) | |||||||
![]() | 7.2万円 なし | 7.2万円 7.2万円 | 3LDK 75m2 | 築37年 | JR山陽本線 福山駅 徒歩30分 JR山陽本線 東福山駅 徒歩35分 JR福塩線 備後本庄駅 徒歩52分 広島県福山市港町 | 詳細を見る | |
アパート ディマンシュ.M A(1LDK/1階) | |||||||
![]() | 4.4万円 2,200円 | なし なし | 1LDK 45.72m2 | 築20年 | JR福塩線 道上駅 徒歩44分 広島県福山市加茂町 | 詳細を見る | |







/105x80-f1-q70-wp1)

