賃貸一戸建て
小田急電鉄小田原線 下北沢駅 徒歩5分 3階建 築17年の賃貸物件情報(3LDK)
| 家賃 | 管理費等 | 敷金 | 礼金 | 間取り | 専有面積 |
|---|---|---|---|---|---|
| 49万円 | なし | 49万円 | 49万円 | 3LDK | 132.49m2 |
入居決定でお祝い金最大100,000円
Point
室内設備は浴室乾燥機・食器洗乾燥機など充実した設備を備え付けています。
提供:ハウスコム西東京株式会社 三軒茶屋店

詳細情報 小田急電鉄小田原線 下北沢駅 徒歩5分 3階建 築17年
物件紹介
小田急電鉄小田原線下北沢駅から徒歩5分にあり、駅近で通勤通学に便利な一戸建てです。
このお部屋は2階以上に位置しているので、通行人や周囲の住人からの視線が気になりにくく、防犯面でも安心です。
キッチンはシステムキッチン仕様になっていますので、お料理好きの方にもぴったり。バス・トイレは別なので、のんびりお風呂タイムも楽しめるでしょう。また、雨の日でも浴室乾燥機を使えば、お洗濯も問題ありません。
床暖房があり、冬も足元から暖かく快適に過ごすことができます。
このお部屋は2階以上に位置しているので、通行人や周囲の住人からの視線が気になりにくく、防犯面でも安心です。
キッチンはシステムキッチン仕様になっていますので、お料理好きの方にもぴったり。バス・トイレは別なので、のんびりお風呂タイムも楽しめるでしょう。また、雨の日でも浴室乾燥機を使えば、お洗濯も問題ありません。
床暖房があり、冬も足元から暖かく快適に過ごすことができます。
お金・契約の情報
※「-」と表示されているものは、実際は料金が発生するものもございます。詳細はお問い合わせください。
| 家賃 | 49万円 | 管理費・共益費 | なし |
|---|---|---|---|
| 敷金 | 49万円 | 礼金 | 49万円 |
| 入居決定でお祝い金最大100,000円 | |||
| 保証金 | - | 償却・敷引 | - |
| 住宅保険料 | 1円 | 更新料 | - |
| その他費用 | ダスキンムシ駆除サービス:1.65万円、16500円: | ||
| 保証会社利用 | 必須 | 保証会社名 | - |
| 保証会社費用 | - | 保証会社備考 | 初回契約時:100%、月額:1.5% |
| 契約形態 | - | 契約期間 | 2年 |
| 入居・引渡期間 | 即時 | 現況 | - |
| 契約備考 | 鍵交換費用:44000 その他設備/条件:室内洗濯機置き場、食器洗い乾燥機 | ||
部屋の情報
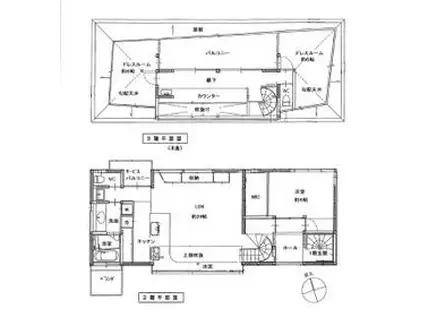
| 間取り | 3LDK | 専有面積 | 132.49m2 |
|---|---|---|---|
| 間取り詳細 | LDK(24帖)、洋室(6帖)、洋室(6帖)、洋室(6帖) | ||
| 所在階 / 向き | 2階 / 南西 | バルコニー面積 | - |
| 水道 / ガス | ガス【都市】 | ||
| 設備 | バス・トイレ別、浴室乾燥機、追い焚き、システムキッチン、エアコン、温水洗浄便座、バルコニー、床暖房、3口コンロ、コンロ:IH、シャワー、給湯 | ||
| 当社物件ID | 159908380 | ||
建物の情報
| 建物名 | 小田急電鉄小田原線 下北沢駅 徒歩5分 3階建 築17年 | ||
|---|---|---|---|
| 所在地 | 東京都世田谷区北沢1丁目 | ||
| 交通 | 小田急電鉄小田原線 下北沢駅 徒歩5分 京王電鉄井の頭線 池ノ上駅 徒歩6分 | ||
| 階数 | 3階建 | 総戸数 | 1戸 |
| 築年月 | 2009年07月 / 築17年 | エレベーター | - |
| 駐車場 | 空有 | バイク置き場 | - |
| 駐輪場 | - | 管理人/管理会社 | - |
| 周辺環境 | その他 ドラッグストア その他 公園 その他 銀行 その他 * | ||
| 建物種別 | 一戸建て | 建物構造 | 木造 |
この部屋の取扱い不動産会社
| 会社名 | ハウスコム西東京株式会社 三軒茶屋店 | ||
|---|---|---|---|
| 所在地 | 東京都世田谷区38-7ワコーレ三軒茶屋2階 | 交通 | - |
| 営業時間 | 10:00~18:00 | 定休日 | - |
| 免許番号 | 東京都知事(1)第108225号 | 取引態様 | 仲介 |
| 不動産会社管理番号 | HC4-5138261-2F-0098 | 当社管理番号 | 468 |
| 所属団体 | 、 | ||
| 取扱い物件情報 | 物件詳細へ | ||
※各種情報と現状に差異がある場合は、現状優先となります。問い合わせをすることで、より詳しい条件、情報を確認する事ができます。
提供:ハウスコム西東京株式会社 三軒茶屋店
この物件が気になったら掲載期限まであと5日
小田急電鉄小田原線 下北沢駅 徒歩5分 3階建 築17年に条件(家賃・エリア)が近い物件一覧
| 写真 | 家賃 管理費等 | 敷金 礼金 | 間取り 専有面積 | 築年数 | 最寄り駅 所在地 | キープ | 詳細 |
|---|---|---|---|---|---|---|---|
マンション TSハイム 碑文谷(3LDK/1階) | |||||||
![]() | 32.3万円 5,000円 | 32.3万円 32.3万円 | 3LDK 69.62m2 | 築1年 | 東急東横線 学芸大学駅 徒歩8分 東急東横線 都立大学駅 徒歩14分 東急東横線 祐天寺駅 徒歩24分 東京都目黒区碑文谷 | 詳細を見る | |
一戸建て 京王電鉄京王線 上北沢駅 徒歩11分 築1年(3LDK) | |||||||
![]() | 33.5万円 なし | 33.5万円 33.5万円 | 3LDK 81.14m2 | 築1年 | 京王電鉄京王線 上北沢駅 徒歩11分 京王電鉄京王線 桜上水駅 徒歩13分 東京都世田谷区上北沢1丁目 | 詳細を見る | |
マンション ヒューリック目黒三田(1LDK/4階) | |||||||
![]() | 38万円 1万円 | 38万円 38万円 | 1LDK 70.37m2 | 築24年 | JR山手線 目黒駅 徒歩6分 都営三田線 目黒駅 徒歩6分 JR山手線 恵比寿駅 徒歩10分 東京都目黒区三田 | 詳細を見る | |
マンション シティテラス西荻窪(3LDK/2階) | |||||||
![]() | 29.5万円 1.5万円 | 29.5万円 29.5万円 | 3LDK 70.11m2 | 築13年 | JR中央線 西荻窪駅 徒歩13分 JR総武線 西荻窪駅 徒歩13分 東京都杉並区宮前 | 詳細を見る | |
マンション ENETIAL代官山(2LDK/7階) | |||||||
![]() | 46.9万円 2万円 | 46.9万円 なし | 2LDK 66.15m2 | 築1年 | 東急東横線 代官山駅 徒歩3分 東急東横線 中目黒駅 徒歩9分 東京メトロ日比谷線 中目黒駅 徒歩9分 東京都渋谷区猿楽町 | 詳細を見る | |
マンション デュオフラッツ池尻大橋(1SLDK/5階) | |||||||
![]() | 29.5万円 1.5万円 | 29.5万円 なし | 1SLDK 45.92m2 | 築1年 | 東急田園都市線 池尻大橋駅 徒歩7分 京王井の頭線 神泉駅 徒歩14分 東京メトロ日比谷線 中目黒駅 徒歩15分 東京都目黒区大橋 | 詳細を見る | |
マンション オープンレジデンシア代々木(2LDK/2階) | |||||||
![]() | 35万円 3万円 | 35万円 35万円 | 2LDK 54.52m2 | 築8年 | JR山手線 代々木駅 徒歩3分 小田急線 南新宿駅 徒歩3分 東京メトロ副都心線 北参道駅 徒歩9分 東京都渋谷区代々木 | 詳細を見る | |
マンション エルデンシア中野(3LDK/3階) | |||||||
![]() | 36万円 1.8万円 | 36万円 36万円 | 3LDK 70.38m2 | 築15年 | JR中央線 中野駅(東京) 徒歩8分 東京メトロ丸ノ内線 東高円寺駅 徒歩10分 JR中央線 高円寺駅 徒歩13分 東京都杉並区高円寺南 | 詳細を見る | |









