賃貸一戸建て
東海道本線 大船駅 バス乗車時間:10分 渡内第三会館前バス停で下車 徒歩4分 1階建 築55年の賃貸物件情報(2K)
| 家賃 | 管理費等 | 敷金 | 礼金 | 間取り | 専有面積 |
|---|---|---|---|---|---|
| 6万円 | なし | 12万円 | 6万円 | 2K | 36.4m2 |
入居決定でお祝い金最大100,000円
Point
室内設備は追い焚き・専用庭など豊富に揃っており、過ごしやすいお部屋になっております。
提供:ハウスコム西神奈川株式会社 藤沢店

詳細情報 東海道本線 大船駅 バス乗車時間:10分 渡内第三会館前バス停で下車 徒歩4分 1階建 築55年
物件紹介
人気の南向きのお部屋。バス・トイレ別の仕様で、のんびりお風呂タイムも楽しめます。
コンビニまで徒歩22分の場所にあり、日用品や食料品のお買い物にも便利です。
コンビニまで徒歩22分の場所にあり、日用品や食料品のお買い物にも便利です。
お金・契約の情報
※「-」と表示されているものは、実際は料金が発生するものもございます。詳細はお問い合わせください。
| 家賃 | 6万円 | 管理費・共益費 | なし |
|---|---|---|---|
| 敷金 | 12万円 | 礼金 | 6万円 |
| 入居決定でお祝い金最大100,000円 | |||
| 保証金 | - | 償却・敷引 | - |
| 住宅保険料 | 1円 | 更新料 | - |
| その他費用 | 退去時室内クリーニング:3.85万円 | ||
| 保証会社利用 | 必須 | 保証会社名 | - |
| 保証会社費用 | - | 保証会社備考 | 株式会社オリコフォレントインシュア 初回保証委託料:月額賃料等の50%、月額保証委託料:月額賃料等の1% |
| 契約形態 | - | 契約期間 | 2年 |
| 入居・引渡期間 | 相談 | 現況 | - |
| 契約備考 | その他設備/条件:室内洗濯機置き場、全居室収納、シューズボックス | ||
部屋の情報
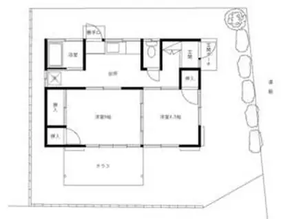
| 間取り | 2K | 専有面積 | 36.4m2 |
|---|---|---|---|
| 所在階 / 向き | 1階 / 南 | バルコニー面積 | - |
| 水道 / ガス | ガス【プロパン】 | ||
| 設備 | バス・トイレ別、追い焚き、専用庭 | ||
| 当社物件ID | 160418250 | ||
建物の情報
| 建物名 | 東海道本線 大船駅 バス乗車時間:10分 渡内第三会館前バス停で下車 徒歩4分 1階建 築55年 | ||
|---|---|---|---|
| 所在地 | 神奈川県鎌倉市城廻 | ||
| 交通 | 東海道本線 大船駅 バス乗車時間:10分 渡内第三会館前バス停で下車 徒歩4分 | ||
| 階数 | 1階建 | 総戸数 | - |
| 築年月 | 1971年07月 / 築55年 | エレベーター | - |
| 駐車場 | なし | バイク置き場 | - |
| 駐輪場 | - | 管理人/管理会社 | - |
| 周辺環境 | コンビニ 徒歩22分(1727m) 販売店 徒歩24分(1851m) その他 ドラッグストア その他 公園 その他 銀行 その他 * | ||
| 建物種別 | 一戸建て | 建物構造 | 木造 |
この部屋の取扱い不動産会社
| 会社名 | ハウスコム西神奈川株式会社 藤沢店 | ||
|---|---|---|---|
| 所在地 | 神奈川県藤沢市1-3-2第一興産20号館1階 | 交通 | - |
| 営業時間 | 10:00~18:00 | 定休日 | 水曜定休 |
| 免許番号 | 神奈川県知事(1)第31770号 | 取引態様 | 仲介 |
| 不動産会社管理番号 | HC4-5271850-106-0007 | 当社管理番号 | 468 |
| 所属団体 | 、 | ||
| 取扱い物件情報 | 物件詳細へ | ||
※各種情報と現状に差異がある場合は、現状優先となります。問い合わせをすることで、より詳しい条件、情報を確認する事ができます。
提供:ハウスコム西神奈川株式会社 藤沢店
この物件が気になったら掲載期限まであと5日
東海道本線 大船駅 バス乗車時間:10分 渡内第三会館前バス停で下車 徒歩4分 1階建 築55年に条件(家賃・エリア)が近い物件一覧
| 写真 | 家賃 管理費等 | 敷金 礼金 | 間取り 専有面積 | 築年数 | 最寄り駅 所在地 | キープ | 詳細 |
|---|---|---|---|---|---|---|---|
アパート グリーコーポ第一(2DK/2階) | |||||||
![]() | 5.8万円 2,000円 | 5.8万円 5.8万円 | 2DK 37.19m2 | 築47年 | 京急本線 弘明寺駅(京急) 徒歩11分 京急本線 井土ケ谷駅 徒歩12分 ブルーライン 弘明寺駅(横浜市営) 徒歩16分 神奈川県横浜市南区永田南 | 詳細を見る | |
アパート アルカンシエル湘南B(1LDK/2階) | |||||||
![]() | 7.4万円 6,000円 | なし 7.4万円 | 1LDK 42.5m2 | 築18年 | 小田急江ノ島線 長後駅 徒歩18分 小田急江ノ島線 高座渋谷駅 徒歩20分 相鉄いずみ野線 いずみ中央駅 徒歩27分 神奈川県藤沢市高倉 | 詳細を見る | |
マンション イアース横濱関内(ワンルーム/8階) | |||||||
![]() | 7.4万円 1万円 | なし 7.4万円 | ワンルーム 22.08m2 | 築7年 | 京急本線 日ノ出町駅 徒歩5分 ブルーライン 伊勢佐木長者町駅 徒歩6分 JR京浜東北線 関内駅 徒歩8分 神奈川県横浜市中区長者町 | 詳細を見る | |
アパート メイプルカサマ(1K/1階) | |||||||
![]() | 4.3万円 なし | 4.3万円 なし | 1K 20.26m2 | 築34年 | JR横須賀線 大船駅 徒歩15分 湘南新宿ライン高海 大船駅 徒歩15分 JR京浜東北線 本郷台駅 徒歩27分 神奈川県横浜市栄区笠間 | 詳細を見る | |
マンション グランパーク六角橋(1K/4階) | |||||||
![]() | 6.5万円 3,000円 | 6.5万円 6.5万円 | 1K 24m2 | 築38年 | 東急東横線 白楽駅 徒歩14分 ブルーライン 片倉町駅 徒歩14分 神奈川県横浜市神奈川区六角橋 | 詳細を見る | |
マンション HSビル(1DK/4階) | |||||||
![]() | 6.7万円 2,000円 | なし なし | 1DK 25.1m2 | 築39年 | 相鉄本線 星川駅(神奈川) 徒歩4分 相鉄本線 天王町駅 徒歩16分 相鉄本線 和田町駅 徒歩17分 神奈川県横浜市保土ケ谷区峰岡町 | 詳細を見る | |
マンション サンフォレスタ2番館(1DK/2階) | |||||||
![]() | 8.6万円 3,000円 | 8.6万円 8.6万円 | 1DK 33.54m2 | 築14年 | 京急本線 生麦駅 徒歩24分 神奈川県横浜市鶴見区東寺尾 | 詳細を見る | |
マンション クラリッサ横浜ウエスト(ワンルーム/3階) | |||||||
![]() | 8.2万円 9,000円 | 12.3万円 12.3万円 | ワンルーム 21m2 | 築8年 | 相鉄本線 西横浜駅 徒歩8分 相鉄本線 天王町駅 徒歩8分 京急本線 戸部駅 徒歩21分 神奈川県横浜市西区浅間町 | 詳細を見る | |









