賃貸マンション
RJRプレシア東十条ガーデンの賃貸物件情報(3LDK/8階)
| 家賃 | 管理費等 | 敷金 | 礼金 | 間取り | 専有面積 |
|---|---|---|---|---|---|
| 25.6万円 | 1.5万円 | 25.6万円 | なし | 3LDK | 65.02m2 |
入居決定でお祝い金最大100,000円
Point
アパマンショップ大森店へお気軽にお問い合わせ下さい♪
提供:アパマンショップ新宿東南口店

詳細情報 RJRプレシア東十条ガーデン
物件紹介
RJRプレシア東十条ガーデンは京浜東北・根岸線東十条駅から徒歩4分にあり、駅近で通勤通学に便利なマンションです。
このお部屋は2階以上に位置しているので、通行人や周囲の住人からの視線が気になりにくく、防犯面でも安心。建物のエントランスはオートロックがついており、インターホンにはTVモニタもついているため、相手の顔を確認してから来客対応することができます。
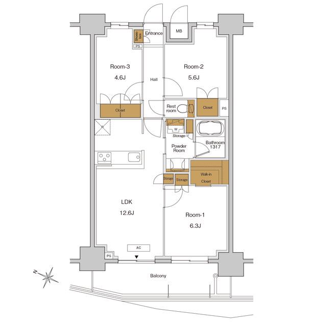
人気の南向き・フローリングのお部屋。室内にはウォークインクローゼットがありますので、たくさんの荷物も効率的に収納ができます。キッチンはシステムキッチン仕様になっていますので、お料理好きの方にもぴったり。バス・トイレは別なので、のんびりお風呂タイムも楽しめるでしょう。また、雨の日でも浴室乾燥機を使えば、お洗濯も問題ありません。
通信設備面では、インターネットが無料で使えるので、月々の出費を抑えられるのも魅力です。また、BSアンテナもありますので、おうち時間も充実するでしょう(別途工事、BSの契約料等が必要な場合あり)。
建物にはエレベーターがついているので、重い荷物があっても安心。共用部には宅配ボックスが設定されているので、不在の時にも荷物を受け取ることができます。また、ペット飼育の相談ができますので、あなたの大切な家族の一員も快適に暮らせるか、ぜひ確認してみてください。
コンビニまで徒歩2分の場所にあり、日用品や食料品のお買い物にも便利です。
このお部屋は2階以上に位置しているので、通行人や周囲の住人からの視線が気になりにくく、防犯面でも安心。建物のエントランスはオートロックがついており、インターホンにはTVモニタもついているため、相手の顔を確認してから来客対応することができます。
人気の南向き・フローリングのお部屋。室内にはウォークインクローゼットがありますので、たくさんの荷物も効率的に収納ができます。キッチンはシステムキッチン仕様になっていますので、お料理好きの方にもぴったり。バス・トイレは別なので、のんびりお風呂タイムも楽しめるでしょう。また、雨の日でも浴室乾燥機を使えば、お洗濯も問題ありません。
通信設備面では、インターネットが無料で使えるので、月々の出費を抑えられるのも魅力です。また、BSアンテナもありますので、おうち時間も充実するでしょう(別途工事、BSの契約料等が必要な場合あり)。
建物にはエレベーターがついているので、重い荷物があっても安心。共用部には宅配ボックスが設定されているので、不在の時にも荷物を受け取ることができます。また、ペット飼育の相談ができますので、あなたの大切な家族の一員も快適に暮らせるか、ぜひ確認してみてください。
コンビニまで徒歩2分の場所にあり、日用品や食料品のお買い物にも便利です。
お金・契約の情報
※「-」と表示されているものは、実際は料金が発生するものもございます。詳細はお問い合わせください。
| 家賃 | 25.6万円 | 管理費・共益費 | 1.5万円 |
|---|---|---|---|
| 敷金 | 25.6万円 | 礼金 | なし |
| 入居決定でお祝い金最大100,000円 | |||
| 保証金 | - | 償却・敷引 | - |
| 住宅保険料 | - | 更新料 | - |
| 保証会社利用 | 利用可 | 保証会社名 | レジデントアシスタント |
| 保証会社費用 | - | 保証会社備考 | 初回:月額賃料(共益費・駐車場料金含む)の50%、年間:9,600円 |
| 契約形態 | - | 契約期間 | 2年 |
| 入居・引渡期間 | 相談 | 現況 | - |
| 入居可能条件 | ペット可 | ||
| 契約備考 | 口座振替事務手数料 110円、[退去時費用:室内清掃費 121,587円 ※故意・過失等別途実費] | ||
部屋の情報
| 間取り | 3LDK | 専有面積 | 65.02m2 |
|---|---|---|---|
| 所在階 / 向き | 8階 / 南西 | バルコニー面積 | - |
| 水道 / ガス | - | ||
| 設備 | バス・トイレ別、オートロック、宅配ボックス、浴室乾燥機、ウォークインクローゼット、追い焚き、システムキッチン、エレベーター、バルコニー、フローリング、BSアンテナ、洗濯機:室内 | ||
| 当社物件ID | 157772704 | ||
建物の情報
| 建物名 | RJRプレシア東十条ガーデン | ||
|---|---|---|---|
| 所在地 | 東京都北区東十条3丁目 | ||
| 交通 | 京浜東北・根岸線 東十条駅 徒歩4分 | ||
| 階数 | 14階建 | 総戸数 | - |
| 築年月 | 2025年02月 / 築1年 | エレベーター | あり |
| 駐車場 | - | バイク置き場 | あり |
| 駐輪場 | - | 管理人/管理会社 | - |
| 周辺環境 | その他 セブンイレブン 徒歩6分(419m) | ||
| 建物種別 | マンション | 建物構造 | RC(鉄筋コンクリート) |
この部屋の取扱い不動産会社
| 会社名 | アパマンショップ大森店 | ||
|---|---|---|---|
| 所在地 | 東京都大田区大森北1丁目 3-12プラザ荻野2階 | 交通 | 京浜東北・根岸線大森から徒歩1分 |
| 営業時間 | 10:00〜18:30 | 定休日 | - |
| 免許番号 | 東京都知事(5)83411 | 取引態様 | 仲介 |
| 不動産会社管理番号 | 103252505 | 当社管理番号 | 4 |
| 所属団体 | (公社)全日本不動産協会東京都本部 | ||
| 公正取引協議会 | (公社) 首都圏不動産公正取引協議会加盟 | ||
| 取扱い物件情報 | 物件詳細へ | ||
※各種情報と現状に差異がある場合は、現状優先となります。問い合わせをすることで、より詳しい条件、情報を確認する事ができます。
提供:アパマンショップ大森店
この物件が気になったら掲載期限まであと6日
RJRプレシア東十条ガーデンの空き部屋一覧
全部で42の空き部屋があります。
