賃貸マンション
エトワールの賃貸物件情報(3LDK/2階)
| 家賃 | 管理費等 | 敷金 | 礼金 | 間取り | 専有面積 |
|---|---|---|---|---|---|
| 8万円 | 2,000円 | なし | なし | 3LDK | 68.52m2 |
入居決定でお祝い金最大100,000円
- 保証金
- 24.0万円
- 償却・敷引
- -
- 築年数
- 築32年
- 所在階
- 2階
- 向き
- 南
Point
おうち時間を有意義に過ごしたいご家族にオススメの物件!!広さ十分の物件で様々な用途でお部屋をお使いいただけます◎
提供:ルームセレクト東別院店(株)洞口(SUUMO経由)

詳細情報 エトワール
物件紹介
エトワールは地下鉄東山線高畑駅から徒歩12分にあるマンションです。
このお部屋は2階以上に位置しているので、通行人や周囲の住人からの視線が気になりにくく、防犯面でも安心。インターホンにはTVモニタもついているため、相手の顔を確認してから来客対応することができます。
人気の南向きのお部屋。また、フローリングなのでお掃除もラクラク。キッチンはシステムキッチン仕様になっていますので、お料理好きの方にもぴったり。また、バス・トイレは別で、のんびりお風呂タイムも楽しめるでしょう。
通信設備面では、インターネット接続が可能です(別途工事、契約料が必要な場合あり)。
このお部屋は2階以上に位置しているので、通行人や周囲の住人からの視線が気になりにくく、防犯面でも安心。インターホンにはTVモニタもついているため、相手の顔を確認してから来客対応することができます。
人気の南向きのお部屋。また、フローリングなのでお掃除もラクラク。キッチンはシステムキッチン仕様になっていますので、お料理好きの方にもぴったり。また、バス・トイレは別で、のんびりお風呂タイムも楽しめるでしょう。
通信設備面では、インターネット接続が可能です(別途工事、契約料が必要な場合あり)。
お金・契約の情報
※「-」と表示されているものは、実際は料金が発生するものもございます。詳細はお問い合わせください。
| 家賃 | 8万円 | 管理費・共益費 | 2,000円 |
|---|---|---|---|
| 敷金 | なし | 礼金 | なし |
| 入居決定でお祝い金最大100,000円 | |||
| 保証金 | 24.0万円 | 償却・敷引 | - |
| 住宅保険料 | - | 更新料 | - |
| 契約形態 | - | 契約期間 | - |
| 入居・引渡期間 | 即時 | 現況 | - |
| 契約備考 | 3LDK 二人入居可 損保【要】 バストイレ別、バルコニー、ガスコンロ対応、フローリング、TVインターホン、室内洗濯置、システムキッチン、洗面所独立、駐輪場、光ファイバー、閑静な住宅地、3口以上コンロ、対面式キッチン、保証人不要、二人入居相談、2沿線利用可、2駅利用可、3駅以上利用可、3沿線以上利用可、IT重説対応物件、初期費用カード決済可 | ||
部屋の情報
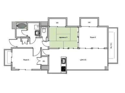
| 間取り | 3LDK | 専有面積 | 68.52m2 |
|---|---|---|---|
| 所在階 / 向き | 2階 / 南 | バルコニー面積 | - |
| 水道 / ガス | - | ||
| 設備 | バス・トイレ別、2階以上、テレビドアホン、インターネット対応、システムキッチン、南向き、バルコニー、フローリング、洗髪洗面化粧台、2口コンロ、コンロ:ガス、洗濯機:室内 | ||
| 当社物件ID | 158168181 | ||
建物の情報
| 建物名 | エトワール | ||
|---|---|---|---|
| 所在地 | 愛知県名古屋市中川区打中 | ||
| 交通 | 地下鉄東山線 高畑駅 徒歩12分 JR関西本線 八田駅(JR) 徒歩20分 近鉄名古屋線 伏屋駅 徒歩24分 | ||
| 階数 | 7階建 | 総戸数 | - |
| 築年月 | 1994年11月 / 築32年 | エレベーター | - |
| 駐車場 | 空有 9000円 | バイク置き場 | - |
| 駐輪場 | あり | 管理人/管理会社 | - |
| 周辺環境 | その他 名古屋市立野田小学校(小学校)まで500m その他 名古屋市立一柳中学校(中学校)まで800m その他 愛知県立中川商業高等学校(高校・高専)まで1100m その他 名古屋音楽大学(大学・短大)まで3000m その他 セブン-イレブン 名古屋打中1丁目店(コンビニ)まで300m その他 フィールアイアイプラザ(スーパー)まで800m | ||
| 建物種別 | マンション | 建物構造 | RC(鉄筋コンクリート) |
この部屋の取扱い不動産会社
| 会社名 | ルームセレクト八田店(株)洞口(SUUMO経由) | ||
|---|---|---|---|
| 所在地 | 愛知県名古屋市中村区並木2-120 イースクエア並木1階 | 交通 | - |
| 営業時間 | 9時30分から18時30分 | 定休日 | 水曜日 (繁忙期を除く) |
| 免許番号 | 国土交通大臣7901 | 取引態様 | 仲介 |
| 不動産会社管理番号 | 100460825641 | 当社管理番号 | 89 |
| 取扱い物件情報 | 物件詳細へ | ||
※各種情報と現状に差異がある場合は、現状優先となります。問い合わせをすることで、より詳しい条件、情報を確認する事ができます。
提供:ルームセレクト八田店(株)洞口(SUUMO経由)
この物件が気になったら掲載期限まであと10日
エトワールに条件(家賃・エリア)が近い物件一覧
| 写真 | 家賃 管理費等 | 敷金 礼金 | 間取り 専有面積 | 築年数 | 最寄り駅 所在地 | キープ | 詳細 |
|---|---|---|---|---|---|---|---|
アパート ミラコスタ(1LDK/2階) | |||||||
![]() | 6.3万円 6,000円 | なし なし | 1LDK 41.26m2 | 築9年 | 愛知県名古屋市港区秋葉 | 詳細を見る | |
アパート レオパレス川口(1K/1階) | |||||||
![]() | 5.3万円 7,000円 | なし なし | 1K 22.35m2 | 築18年 | 名鉄名古屋本線 西枇杷島駅 徒歩4分 愛知県清須市西枇杷島町川口 | 詳細を見る | |
アパート レオパレスエクセレント(1K/2階) | |||||||
![]() | 4.8万円 5,000円 | なし なし | 1K 22.35m2 | 築20年 | 名鉄瀬戸線 旭前駅 徒歩7分 愛知県尾張旭市城前町3丁目 | 詳細を見る | |
マンション グランメール春日(3K/1階) | |||||||
![]() | 5.3万円 3,000円 | なし なし | 3K 51.75m2 | 築26年 | JR東海道本線 清洲駅 徒歩20分 名鉄犬山線 上小田井駅 徒歩32分 愛知県清須市春日 | 詳細を見る | |
アパート ホームアリウム(2DK/1階) | |||||||
![]() | 5.4万円 3,000円 | 5.4万円 なし | 2DK 61.5m2 | 築21年 | 近鉄名古屋線 戸田駅(愛知) 徒歩20分 近鉄名古屋線 伏屋駅 徒歩23分 JR関西本線 春田駅 徒歩25分 愛知県名古屋市中川区 | 詳細を見る | |
アパート サンレジデンス岩塚(1LDK/3階) | |||||||
![]() | 6.1万円 4,000円 | なし なし | 1LDK 28.36m2 | 築1年 | 地下鉄東山線 岩塚駅 徒歩3分 地下鉄東山線 中村公園駅 徒歩10分 JR関西本線 八田駅(JR) 徒歩17分 愛知県名古屋市中村区鈍池町 | 詳細を見る | |
アパート SUCCESSVII(1K/3階) | |||||||
![]() | 4.9万円 4,000円 | なし なし | 1K 23.91m2 | 築5年 | 地下鉄東山線 岩塚駅 徒歩17分 地下鉄東山線 中村公園駅 徒歩25分 JR関西本線 八田駅(JR) 徒歩27分 愛知県名古屋市中村区小鴨町 | 詳細を見る | |






