賃貸マンション
ビレッジハウス春日1 2号棟の賃貸物件情報(3DK/4階)
| 家賃 | 管理費等 | 敷金 | 礼金 | 間取り | 専有面積 |
|---|---|---|---|---|---|
| 5.81万円 | なし | なし | なし | 3DK | 57.96m2 |
入居決定でお祝い金最大100,000円
- 保証金
- -
- 償却・敷引
- -
- 築年数
- 築59年
- 所在階
- 4階
- 向き
- 南
Point
まずはお問い合わせ!
不動産会社は街のプロ、あなたに合った物件がきっと見つかります。
提供:ビレッジハウス住まい相談センター

詳細情報 ビレッジハウス春日1 2号棟
物件紹介
ビレッジハウス春日1 2号棟は片町線津田駅から徒歩12分にあるマンションです。
このお部屋は2階以上に位置しているので、通行人や周囲の住人からの視線が気になりにくく、防犯面でも安心。インターホンにはTVモニタもついているため、相手の顔を確認してから来客対応することができます。
人気の南向きのお部屋。角部屋でもあるため、周囲の居住者の生活音も気になりにくい場所です。バス・トイレ別の仕様で、のんびりお風呂タイムも楽しめます。
ペット飼育の相談ができますので、あなたの大切な家族の一員も快適に暮らせるか、ぜひ確認してみてください。
このお部屋は2階以上に位置しているので、通行人や周囲の住人からの視線が気になりにくく、防犯面でも安心。インターホンにはTVモニタもついているため、相手の顔を確認してから来客対応することができます。
人気の南向きのお部屋。角部屋でもあるため、周囲の居住者の生活音も気になりにくい場所です。バス・トイレ別の仕様で、のんびりお風呂タイムも楽しめます。
ペット飼育の相談ができますので、あなたの大切な家族の一員も快適に暮らせるか、ぜひ確認してみてください。
お金・契約の情報
※「-」と表示されているものは、実際は料金が発生するものもございます。詳細はお問い合わせください。
| 家賃 | 5.81万円 | 管理費・共益費 | なし |
|---|---|---|---|
| 敷金 | なし | 礼金 | なし |
| フリーレント | 1ヶ月 | ||
| 入居決定でお祝い金最大100,000円 | |||
| 保証金 | - | 償却・敷引 | - |
| 住宅保険料 | 1万円(2年) | 更新料 | - |
| 保証会社利用 | - | 保証会社名 | - |
| 保証会社費用 | - | 保証会社備考 | - |
| 契約形態 | - | 契約期間 | - |
| 入居・引渡期間 | - | 現況 | 空室 |
| 入居可能条件 | 2人入居可、高齢者相談、学生可、ペット相談 | ||
| 契約備考 | 契約種類:普通契約、24時間緊急対応、洗面台 | ||
部屋の情報
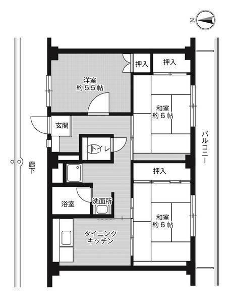
| 間取り | 3DK | 専有面積 | 57.96m2 |
|---|---|---|---|
| 所在階 / 向き | 4階 / 南 | バルコニー面積 | - |
| 水道 / ガス | - | ||
| 設備 | バス・トイレ別、テレビドアホン、追い焚き、エアコン、角部屋、バルコニー、給湯、洗濯機:室内 | ||
| 当社物件ID | 124433690 | ||
建物の情報
| 建物名 | ビレッジハウス春日1 2号棟 | ||
|---|---|---|---|
| 所在地 | 大阪府枚方市春日東町2丁目3-2 | ||
| 交通 | 片町線 津田駅 徒歩12分 京阪電気鉄道交野線 郡津駅 徒歩28分 片町線 藤阪駅 徒歩34分 | ||
| 階数 | 5階建 | 総戸数 | - |
| 築年月 | 1967年07月 / 築59年 | エレベーター | - |
| 駐車場 | 空有 円 | バイク置き場 | - |
| 駐輪場 | - | 管理人/管理会社 | 日勤 |
| 建物種別 | マンション | 建物構造 | RC(鉄筋コンクリート) |
この部屋の取扱い不動産会社
| 会社名 | ビレッジハウス住まい相談センター | ||
|---|---|---|---|
| 所在地 | 愛知県名古屋市中区大須4-10-32 上前津KDビル5階 | 交通 | 名城線「上前津駅」徒歩3分 |
| 営業時間 | 平日:9:00-18:30/土日祝:9:00-18:00 | 定休日 | 年中無休(年末年始を除く) |
| 免許番号 | 東京都知事(2)第100758号 | 取引態様 | 貸主 |
| 不動産会社管理番号 | 00013195372 | 当社管理番号 | 459 |
| 所属団体 | 公益社団法人東京都宅地建物取引業協会会員 日本賃貸住宅管理協会会員 | ||
| 取扱い物件情報 | 物件詳細へ | ||
※各種情報と現状に差異がある場合は、現状優先となります。問い合わせをすることで、より詳しい条件、情報を確認する事ができます。
提供:ビレッジハウス住まい相談センター
この物件が気になったら掲載期限まであと13日
ビレッジハウス春日1 2号棟に条件(家賃・エリア)が近い物件一覧
| 写真 | 家賃 管理費等 | 敷金 礼金 | 間取り 専有面積 | 築年数 | 最寄り駅 所在地 | キープ | 詳細 |
|---|---|---|---|---|---|---|---|
アパート 片町線 津田駅 徒歩9分 築16年(1K/1階) | |||||||
![]() | 4.8万円 5,000円 | なし 4.8万円 | 1K 19.87m2 | 築16年 | 片町線 津田駅 徒歩9分 片町線 藤阪駅 徒歩14分 大阪府枚方市津田元町1丁目 | 詳細を見る | |
アパート 高槻市古曽部共同(1LDK/1階) | |||||||
| 9万円 4,500円 | なし 18万円 | 1LDK 37.67m2 | 築1年 | 東海道本線 高槻駅 徒歩17分 阪急電鉄京都線 高槻市駅 徒歩18分 東海道本線 摂津富田駅 徒歩54分 大阪府高槻市古曽部町3丁目10-7 | 詳細を見る | ||
アパート 片町線 長尾駅(大阪) 徒歩11分 築24年(2LDK/2階) | |||||||
![]() | 6.7万円 4,400円 | なし なし | 2LDK 59.77m2 | 築24年 | 片町線 長尾駅(大阪) 徒歩11分 片町線 藤阪駅 徒歩28分 大阪府枚方市長尾元町7丁目 | 詳細を見る | |
マンション ピコットⅤ(1DK/2階) | |||||||
![]() | 5.2万円 5,000円 | なし 10万円 | 1DK 27.18m2 | 築21年 | 京阪本線 御殿山駅 徒歩25分 京阪本線 牧野駅 徒歩26分 大阪府枚方市田口 | 詳細を見る | |
マンション 片町線 藤阪駅 徒歩33分 築31年(1K/2階) | |||||||
![]() | 3.5万円 なし | なし 5万円 | 1K 23m2 | 築31年 | 片町線 藤阪駅 徒歩33分 京阪電気鉄道京阪線 枚方市駅 徒歩39分 大阪府枚方市田口3丁目 | 詳細を見る | |
マンション 片町線 津田駅 徒歩3分 築17年(1LDK/4階) | |||||||
![]() | 6.5万円 7,000円 | なし 15万円 | 1LDK 35.2m2 | 築17年 | 片町線 津田駅 徒歩3分 片町線 藤阪駅 徒歩22分 大阪府枚方市津田駅前1丁目 | 詳細を見る | |
アパート ドリームハイツ 長尾(1K/3階) | |||||||
![]() | 3.8万円 2,000円 | なし 10万円 | 1K 21.28m2 | 築29年 | 片町線 長尾駅(大阪) 徒歩5分 片町線 藤阪駅 徒歩17分 大阪府枚方市長尾元町 | 詳細を見る | |







