賃貸マンション
マストスクエア白壁の賃貸物件情報(3LDK/1階)
| 家賃 | 管理費等 | 敷金 | 礼金 | 間取り | 専有面積 |
|---|---|---|---|---|---|
| 19万円 | 2.6万円 | 38万円 | 38万円 | 3LDK | 85.79m2 |
入居決定でお祝い金最大100,000円
Point
まずはお問い合わせ!
不動産会社は街のプロ、あなたに合った物件がきっと見つかります。
提供:積和レント(株)シャーメゾンショップ名駅店(SUUMO経由)

詳細情報 マストスクエア白壁
物件紹介
マストスクエア白壁は名鉄瀬戸線東大手駅から徒歩3分にあり、駅近で通勤通学に便利なマンションです。
建物のエントランスはオートロックがついており、インターホンにはTVモニタもついているため、相手の顔を確認してから来客対応することができます。
人気の南向きのお部屋。バス・トイレ別の仕様で、のんびりお風呂タイムも楽しめます。また、浴室乾燥機を使えば、雨の日でもお洗濯は問題ありません。
床暖房があり、冬も足元から暖かく快適に過ごすことができます。建物にはエレベーターがついているので、重い荷物があっても安心。共用部には宅配ボックスが設定されているので、不在の時にも荷物を受け取ることができます。
建物のエントランスはオートロックがついており、インターホンにはTVモニタもついているため、相手の顔を確認してから来客対応することができます。
人気の南向きのお部屋。バス・トイレ別の仕様で、のんびりお風呂タイムも楽しめます。また、浴室乾燥機を使えば、雨の日でもお洗濯は問題ありません。
床暖房があり、冬も足元から暖かく快適に過ごすことができます。建物にはエレベーターがついているので、重い荷物があっても安心。共用部には宅配ボックスが設定されているので、不在の時にも荷物を受け取ることができます。
お金・契約の情報
※「-」と表示されているものは、実際は料金が発生するものもございます。詳細はお問い合わせください。
| 家賃 | 19万円 | 管理費・共益費 | 2.6万円 |
|---|---|---|---|
| 敷金 | 38万円 | 礼金 | 38万円 |
| 入居決定でお祝い金最大100,000円 | |||
| 保証金 | - | 償却・敷引 | - |
| 住宅保険料 | - | 更新料 | - |
| 保証会社利用 | 必須 | 保証会社名 | - |
| 保証会社費用 | - | 保証会社備考 | 保証会社利用必 【個人契約】 初回契約事務手数料:33,000円(税込)、月額保証料:賃料等の2%、保証会社:積水ハウスシャーメゾンパートナーズ |
| 契約形態 | - | 契約期間 | - |
| 入居・引渡期間 | 相談 | 現況 | - |
| 契約備考 | 巡回管理/シャーメゾンライフSUPPORT24(月額1,320円税込)加入要/諸費用及びその他契約費用は別途打合せ/ シャーメゾンライフSUPPORT24月額:1320円/月 3LDK 普通借家2年 損保【要】 バストイレ別、ガスコンロ対応、TVインターホン、浴室乾燥機、オートロック、南向き、温水洗浄便座、エレベーター、宅配ボックス、3口以上コンロ、対面式キッチン、防犯カメラ、分譲賃貸、保証人不要、2沿線利用可、専用庭、敷金2ヶ月、床暖房、食器洗乾燥機、複層ガラス、エアコン3台、シャッター車庫、防犯ガラス、2駅利用可、駅徒歩5分以内、駅徒歩10分以内、敷地内ごみ置き場、平面駐車場、都市ガス、三面鏡付洗面化粧台、エコジョーズ、初期費用カード決済可 | ||
部屋の情報
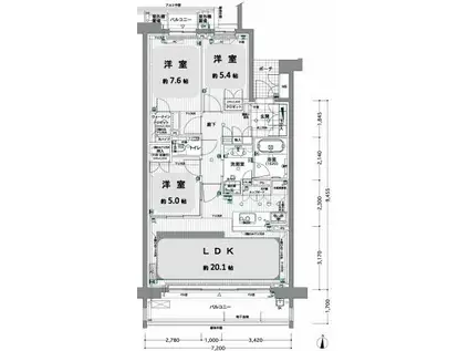
| 間取り | 3LDK | 専有面積 | 85.79m2 |
|---|---|---|---|
| 所在階 / 向き | 1階 / 南 | バルコニー面積 | - |
| 水道 / ガス | - | ||
| 設備 | バス・トイレ別、オートロック、テレビドアホン、宅配ボックス、浴室乾燥機、エアコン、エレベーター、温水洗浄便座、南向き、床暖房、2口コンロ、コンロ:ガス、専用庭 | ||
| 当社物件ID | 160296322 | ||
建物の情報
| 建物名 | マストスクエア白壁 | ||
|---|---|---|---|
| 所在地 | 愛知県名古屋市東区白壁 | ||
| 交通 | 名鉄瀬戸線 東大手駅 徒歩3分 地下鉄名城線 名古屋城駅 徒歩7分 | ||
| 階数 | 9階建 | 総戸数 | - |
| 築年月 | 2013年05月 / 築13年 | エレベーター | あり |
| 駐車場 | 空有 16500円/シャッタ付屋内駐 | バイク置き場 | - |
| 駐輪場 | - | 管理人/管理会社 | - |
| 周辺環境 | その他 金シャチ横丁宗春ゾーン(ショッピングセンター)まで781m その他 フランテロゼ白壁(スーパー)まで714m その他 ファミリーマート明和高校前店(コンビニ)まで217m その他 スギドラッグ清水口店(ドラッグストア)まで262m その他 ガスト清水口店(から好し取扱店)(飲食店)まで328m その他 名古屋市役所(役所)まで631m | ||
| 建物種別 | マンション | 建物構造 | RC(鉄筋コンクリート) |
この部屋の取扱い不動産会社
| 会社名 | 積和レント(株)シャーメゾンショップ名駅店(SUUMO経由) | ||
|---|---|---|---|
| 所在地 | 愛知県名古屋市中村区名駅4-24-16 広小路ガーデンアベニュー1階 | 交通 | - |
| 営業時間 | 10:00~17:00 | 定休日 | 水曜・祝日 |
| 免許番号 | 国土交通大臣10668 | 取引態様 | 仲介 |
| 不動産会社管理番号 | 100485295647 | 当社管理番号 | 89 |
| 所属団体 | (公社)愛知県宅地建物取引業協会会員 | ||
| 公正取引協議会 | 東海不動産公正取引協議会加盟 | ||
| 取扱い物件情報 | 物件詳細へ | ||
※各種情報と現状に差異がある場合は、現状優先となります。問い合わせをすることで、より詳しい条件、情報を確認する事ができます。
提供:積和レント(株)シャーメゾンショップ名駅店(SUUMO経由)
この物件が気になったら掲載期限まであと10日
マストスクエア白壁に条件(家賃・エリア)が近い物件一覧
| 写真 | 家賃 管理費等 | 敷金 礼金 | 間取り 専有面積 | 築年数 | 最寄り駅 所在地 | キープ | 詳細 |
|---|---|---|---|---|---|---|---|
アパート クレアクレール(2LDK/3階) | |||||||
![]() | 13.9万円 8,000円 | 13.9万円 20.85万円 | 2LDK 64.65m2 | 新築 | JR中央本線 勝川駅(JR) 徒歩8分 名鉄小牧線 味美駅(名鉄) 徒歩24分 名鉄小牧線 味鋺駅 徒歩35分 愛知県春日井市旭町 | 詳細を見る | |
マンション GRANPASEO丸の内(3LDK/6階) | |||||||
![]() | 21.2万円 1.5万円 | なし なし | 3LDK 63.54m2 | 築3年 | 地下鉄鶴舞線 丸の内駅(愛知) 徒歩6分 地下鉄名城線 久屋大通駅 徒歩9分 地下鉄東山線 伏見駅(愛知) 徒歩15分 愛知県名古屋市中区丸の内 | 詳細を見る | |
マンション ラヴィータ 泉(2LDK/3階) | |||||||
![]() | 14.6万円 1.2万円 | なし 7.3万円 | 2LDK 64.31m2 | 築9年 | 地下鉄桜通線 高岳駅 徒歩7分 地下鉄東山線 新栄町駅(愛知) 徒歩12分 地下鉄桜通線 車道駅 徒歩14分 愛知県名古屋市東区泉 | 詳細を見る | |
マンション レジディア泉(3LDK/14階) | |||||||
![]() | 18万円 1.5万円 | 18万円 18万円 | 3LDK 75.83m2 | 築21年 | 地下鉄名城線 久屋大通駅 徒歩7分 地下鉄名城線 名古屋城駅 徒歩9分 地下鉄桜通線 高岳駅 徒歩13分 愛知県名古屋市東区泉 | 詳細を見る | |
マンション IZUMI ONE(1LDK/12階) | |||||||
![]() | 20万円 1.1万円 | なし なし | 1LDK 75.24m2 | 築19年 | 地下鉄桜通線 久屋大通駅 徒歩4分 名鉄瀬戸線 栄町駅(愛知) 徒歩9分 地下鉄東山線 栄駅(名古屋) 徒歩11分 愛知県名古屋市東区泉 | 詳細を見る | |
マンション QREST葵(1SLDK/9階) | |||||||
![]() | 16万円 1.53万円 | なし なし | 1SLDK 65.81m2 | 築10年 | 地下鉄東山線 千種駅 徒歩4分 地下鉄桜通線 車道駅 徒歩5分 地下鉄東山線 新栄町駅(愛知) 徒歩6分 愛知県名古屋市東区葵 | 詳細を見る | |
マンション S-RESIDENCE高岳ARDENT(2LDK/7階) | |||||||
![]() | 15.3万円 1万円 | なし 15.3万円 | 2LDK 48.94m2 | 築1年 | 名古屋市桜通線 高岳駅 徒歩7分 愛知県名古屋市東区東片端町 | 詳細を見る | |
マンション レジデンシア久屋大通(1LDK/4階) | |||||||
![]() | 13.4万円 1万円 | なし 13.4万円 | 1LDK 43.74m2 | 築6年 | 地下鉄桜通線 久屋大通駅 徒歩2分 名鉄瀬戸線 栄町駅(愛知) 徒歩3分 地下鉄名城線 栄駅(名古屋) 徒歩5分 愛知県名古屋市東区東桜 | 詳細を見る | |









