賃貸マンション
CASCADEの賃貸物件情報(ワンルーム/2階)
| 家賃 | 管理費等 | 敷金 | 礼金 | 間取り | 専有面積 |
|---|---|---|---|---|---|
| 7.8万円 | 6,000円 | 7.8万円 | 7.8万円 | ワンルーム | 20.17m2 |
入居決定でお祝い金最大100,000円
- 保証金
- -
- 償却・敷引
- -
- 築年数
- 築50年
- 所在階
- 2階
- 向き
- 南西
Point
主要な3路線が徒歩圏内で使いこなす事の出来る好立地物件。自然豊で閑静住宅街に佇むデザイナーズマンションです。上階南向きのお部屋!!
提供:i-Room(株)ルーク不動産(SUUMO経由)

詳細情報 CASCADE
物件紹介
CASCADEはJR山手線駒込駅から徒歩5分にあり、駅近で通勤通学に便利なマンションです。
このお部屋は2階以上に位置しているので、通行人や周囲の住人からの視線が気になりにくく、防犯面でも安心。建物のエントランスはオートロックがついており、インターホンにはTVモニタもついているため、相手の顔を確認してから来客対応することができます。
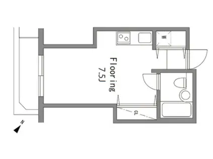
おしゃれなデザイナーズ物件!人気の南向きのお部屋。また、フローリングなのでお掃除もラクラク。キッチンはシステムキッチン仕様になっていますので、お料理好きの方にもぴったり。また、浴室乾燥機付きで、雨の日でもお洗濯は問題ありません。
通信設備面では、インターネット接続が可能です。また、BSアンテナ・CSアンテナがありCATVにも対応しているので、おうち時間も充実するでしょう(別途工事、契約料が必要な場合あり)。
共用部には宅配ボックスが設定されているので、不在の時にも荷物を受け取ることができます。
このお部屋は2階以上に位置しているので、通行人や周囲の住人からの視線が気になりにくく、防犯面でも安心。建物のエントランスはオートロックがついており、インターホンにはTVモニタもついているため、相手の顔を確認してから来客対応することができます。
おしゃれなデザイナーズ物件!人気の南向きのお部屋。また、フローリングなのでお掃除もラクラク。キッチンはシステムキッチン仕様になっていますので、お料理好きの方にもぴったり。また、浴室乾燥機付きで、雨の日でもお洗濯は問題ありません。
通信設備面では、インターネット接続が可能です。また、BSアンテナ・CSアンテナがありCATVにも対応しているので、おうち時間も充実するでしょう(別途工事、契約料が必要な場合あり)。
共用部には宅配ボックスが設定されているので、不在の時にも荷物を受け取ることができます。
お金・契約の情報
※「-」と表示されているものは、実際は料金が発生するものもございます。詳細はお問い合わせください。
| 家賃 | 7.8万円 | 管理費・共益費 | 6,000円 |
|---|---|---|---|
| 敷金 | 7.8万円 | 礼金 | 7.8万円 |
| 入居決定でお祝い金最大100,000円 | |||
| 保証金 | - | 償却・敷引 | - |
| 住宅保険料 | - | 更新料 | - |
| 契約形態 | - | 契約期間 | - |
| 入居・引渡期間 | 即時 | 現況 | - |
| 契約備考 | 更新料 新賃料1.00ヶ月分 ワンルーム 女性限定 普通借家2年 損保【1.8万円2年】 バルコニー、エアコン、ガスコンロ対応、クロゼット、フローリング、シャワー付洗面台、オートロック、室内洗濯置、陽当り良好、システムキッチン、2口コンロ、駐輪場、宅配ボックス、CATV、光ファイバー、即入居可、閑静な住宅地、BS・CS、防犯カメラ、グリル付、全居室洋室、デザイナーズ、2沿線利用可、ネット専用回線、外壁コンクリート、2駅利用可、3駅以上利用可、駅徒歩5分以内、セキュリティ会社加入済、都市ガス、南面バルコニー、玄関収納、リノベーション、礼金1ヶ月、初期費用カード決済可、通風良好 | ||
部屋の情報
| 間取り | ワンルーム | 専有面積 | 20.17m2 |
|---|---|---|---|
| 所在階 / 向き | 2階 / 南西 | バルコニー面積 | - |
| 水道 / ガス | - | ||
| 設備 | 2階以上、オートロック、宅配ボックス、インターネット対応、システムキッチン、エアコン、南向き、バルコニー、フローリング、2口コンロ、コンロ:ガス、デザイナーズ、CATV、CSアンテナ、BSアンテナ、洗濯機:室内 | ||
| 当社物件ID | 12330770 | ||
建物の情報
| 建物名 | CASCADE | ||
|---|---|---|---|
| 所在地 | 東京都豊島区駒込 | ||
| 交通 | JR山手線 駒込駅 徒歩5分 JR山手線 巣鴨駅 徒歩10分 JR京浜東北線 上中里駅 徒歩18分 | ||
| 階数 | 3階建 | 総戸数 | - |
| 築年月 | 1977年01月 / 築50年 | エレベーター | - |
| 駐車場 | 近隣 35m30000円 | バイク置き場 | - |
| 駐輪場 | あり | 管理人/管理会社 | - |
| 周辺環境 | その他 西友 巣鴨店(スーパー)まで680m その他 アトレヴィ巣鴨(その他)まで780m その他 サカガミ駒込店(スーパー)まで572m その他 文京グリーンコート(ショッピングセンター)まで1187m その他 ファミリーマート 駒込3丁目(コンビニ)まで181m その他 門と蔵のある広場(公園)まで225m | ||
| 建物種別 | マンション | 建物構造 | 鉄骨造 |
この部屋の取扱い不動産会社
| 会社名 | i-Room巣鴨店(株)ルーク不動産(SUUMO経由) | ||
|---|---|---|---|
| 所在地 | 東京都豊島区巣鴨3-25-10 | 交通 | - |
| 営業時間 | 9:00~18:00 | 定休日 | 火曜日 |
| 免許番号 | 東京都知事95272 | 取引態様 | 仲介 |
| 不動産会社管理番号 | 100487494086 | 当社管理番号 | 89 |
| 所属団体 | (公社)東京都宅地建物取引業協会会員 | ||
| 公正取引協議会 | (公社)首都圏不動産公正取引協議会加盟 | ||
| 取扱い物件情報 | 物件詳細へ | ||
※各種情報と現状に差異がある場合は、現状優先となります。問い合わせをすることで、より詳しい条件、情報を確認する事ができます。
提供:i-Room巣鴨店(株)ルーク不動産(SUUMO経由)
この物件が気になったら掲載期限まであと10日
CASCADEに条件(家賃・エリア)が近い物件一覧
| 写真 | 家賃 管理費等 | 敷金 礼金 | 間取り 専有面積 | 築年数 | 最寄り駅 所在地 | キープ | 詳細 |
|---|---|---|---|---|---|---|---|
マンション ORSUS新江古田(ワンルーム/1階) | |||||||
![]() | 10.8万円 1万円 | 10.8万円 10.8万円 | ワンルーム 25.23m2 | 築5年 | 都営大江戸線 新江古田駅 徒歩7分 西武池袋線 江古田駅 徒歩13分 西武池袋線 桜台駅(東京) 徒歩15分 東京都練馬区豊玉北 | 詳細を見る | |
マンション ECREDE赤羽サウス(1DK/2階) | |||||||
![]() | 11.3万円 1万円 | なし 11.3万円 | 1DK 25.47m2 | 築1年 | JR京浜東北線 東十条駅 徒歩10分 JR埼京線 赤羽駅 徒歩14分 東京メトロ南北線 王子神谷駅 徒歩15分 東京都北区神谷 | 詳細を見る | |
マンション L-FLAT板橋(1K/3階) | |||||||
![]() | 9.4万円 1万円 | なし 9.4万円 | 1K 28.17m2 | 築18年 | JR埼京線 板橋駅 徒歩5分 都営三田線 新板橋駅 徒歩9分 都営三田線 西巣鴨駅 徒歩10分 東京都北区滝野川 | 詳細を見る | |
アパート ハーモニーテラス貫井(ワンルーム/2階) | |||||||
![]() | 6.3万円 4,000円 | なし 6.3万円 | ワンルーム 11.11m2 | 築7年 | 西武池袋線 中村橋駅 徒歩6分 西武池袋線 富士見台駅 徒歩8分 西武豊島線 豊島園駅 徒歩26分 東京都練馬区貫井 | 詳細を見る | |
マンション 松下ビル(ワンルーム/3階) | |||||||
![]() | 7.3万円 2,000円 | 7.3万円 なし | ワンルーム 15.21m2 | 築44年 | 東京メトロ東西線 早稲田駅(メトロ) 徒歩7分 東京メトロ有楽町線 江戸川橋駅 徒歩8分 都電荒川線 早稲田駅(都電) 徒歩12分 東京都新宿区早稲田鶴巻町 | 詳細を見る | |
マンション グランド・ガーラ池袋(1K/4階) | |||||||
![]() | 8.1万円 9,000円 | 8.1万円 16.2万円 | 1K 21.8m2 | 築16年 | 東武東上線 北池袋駅 徒歩11分 JR山手線 池袋駅 徒歩13分 東武東上線 下板橋駅 徒歩13分 東京都豊島区池袋本町 | 詳細を見る | |
アパート 渥美ハイツ(1SLDK/1階) | |||||||
![]() | 12万円 5,000円 | 12万円 12万円 | 1SLDK 47.55m2 | 築44年 | 東武東上線 上板橋駅 徒歩10分 東武東上線 ときわ台駅(東京) 徒歩10分 東京メトロ有楽町線 氷川台駅 徒歩25分 東京都板橋区東新町 | 詳細を見る | |
マンション カーサ・ブリランテ(2DK/2階) | |||||||
![]() | 12.5万円 1.5万円 | 12.5万円 12.5万円 | 2DK 34.42m2 | 築40年 | 山手線 高田馬場駅 徒歩5分 東京地下鉄副都心線 西早稲田駅 徒歩10分 東京都新宿区高田馬場2丁目 | 詳細を見る | |








