賃貸マンション
ビレッジハウス神辺第二2号棟の賃貸物件情報(2K/2階)
| 家賃 | 管理費等 | 敷金 | 礼金 | 間取り | 専有面積 |
|---|---|---|---|---|---|
| 3.81万円 | なし | なし | なし | 2K | 33.09m2 |
入居決定でお祝い金最大100,000円
- 保証金
- -
- 償却・敷引
- -
- 築年数
- 築55年
- 所在階
- 2階
- 向き
- 南
Point
まずはお問い合わせ!
不動産会社は街のプロ、あなたに合った物件がきっと見つかります。
提供:アパマンショップ福山駅前店

詳細情報 ビレッジハウス神辺第二2号棟
物件紹介
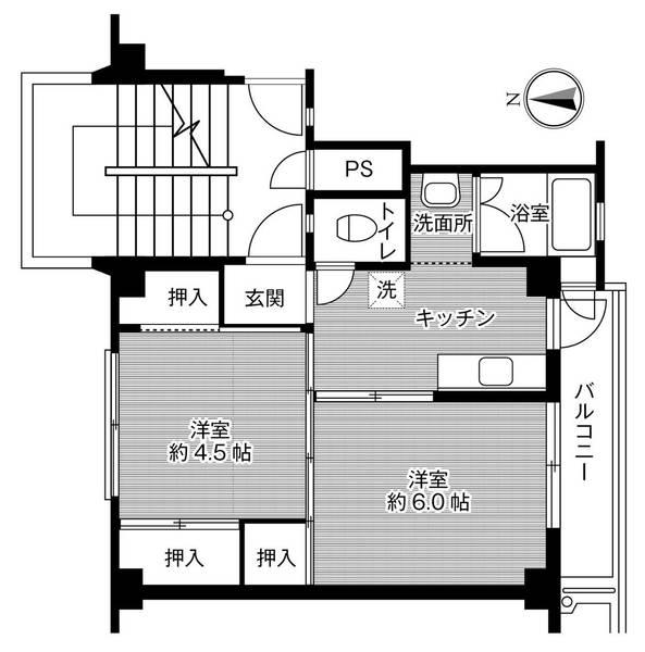
ビレッジハウス神辺第二2号棟は井原鉄道湯野駅から徒歩14分にあるマンションです。
このお部屋は2階以上に位置しているので、通行人や周囲の住人からの視線が気になりにくく、防犯面でも安心です。
人気の南向き・フローリングのお部屋。角部屋でもあるため、周囲の居住者の生活音も気になりにくい場所です。バス・トイレ別の仕様で、のんびりお風呂タイムも楽しめます。
通信設備面では、インターネット接続が可能です(別途工事、契約料が必要な場合あり)。
このお部屋は2階以上に位置しているので、通行人や周囲の住人からの視線が気になりにくく、防犯面でも安心です。
人気の南向き・フローリングのお部屋。角部屋でもあるため、周囲の居住者の生活音も気になりにくい場所です。バス・トイレ別の仕様で、のんびりお風呂タイムも楽しめます。
通信設備面では、インターネット接続が可能です(別途工事、契約料が必要な場合あり)。
お金・契約の情報
※「-」と表示されているものは、実際は料金が発生するものもございます。詳細はお問い合わせください。
| 家賃 | 3.81万円 | 管理費・共益費 | なし |
|---|---|---|---|
| 敷金 | なし | 礼金 | なし |
| フリーレント | 1ヶ月 | ||
| 入居決定でお祝い金最大100,000円 | |||
| 保証金 | - | 償却・敷引 | - |
| 住宅保険料 | 1万円(2年) | 更新料 | - |
| 保証会社利用 | - | 保証会社名 | - |
| 保証会社費用 | - | 保証会社備考 | - |
| 契約形態 | - | 契約期間 | - |
| 入居・引渡期間 | - | 現況 | 空室 |
| 入居可能条件 | 2人入居可、高齢者相談、学生可 | ||
| 契約備考 | 契約種類:普通契約、24時間緊急対応、ウォシュレット、ウォームレット | ||
部屋の情報
| 間取り | 2K | 専有面積 | 33.09m2 |
|---|---|---|---|
| 所在階 / 向き | 2階 / 南 | バルコニー面積 | - |
| 水道 / ガス | - | ||
| 設備 | バス・トイレ別、エアコン、角部屋、バルコニー、給湯、洗濯機:室内 | ||
| 当社物件ID | 34037068 | ||
建物の情報
| 建物名 | ビレッジハウス神辺第二2号棟 | ||
|---|---|---|---|
| 所在地 | 広島県福山市神辺町大字川北神辺町大字川北838-1 | ||
| 交通 | 井原鉄道 湯野駅 徒歩14分 福塩線 神辺駅 徒歩19分 福塩線 湯田村駅 徒歩24分 | ||
| 階数 | 5階建 | 総戸数 | - |
| 築年月 | 1971年01月 / 築55年 | エレベーター | - |
| 駐車場 | 空有 円 | バイク置き場 | - |
| 駐輪場 | - | 管理人/管理会社 | 日勤 |
| 建物種別 | マンション | 建物構造 | RC(鉄筋コンクリート) |
この部屋の取扱い不動産会社
| 会社名 | ビレッジハウス住まい相談センター | ||
|---|---|---|---|
| 所在地 | 愛知県名古屋市中区大須4-10-32 上前津KDビル5階 | 交通 | 名城線「上前津駅」徒歩3分 |
| 営業時間 | 平日:9:00-18:30/土日祝:9:00-18:00 | 定休日 | 年末年始休業:2025年12月27日~2026年1月4日 |
| 免許番号 | 東京都知事(2)第100758号 | 取引態様 | 貸主 |
| 不動産会社管理番号 | 00012048977 | 当社管理番号 | 459 |
| 所属団体 | 公益社団法人東京都宅地建物取引業協会会員 日本賃貸住宅管理協会会員 | ||
| 取扱い物件情報 | 物件詳細へ | ||
※各種情報と現状に差異がある場合は、現状優先となります。問い合わせをすることで、より詳しい条件、情報を確認する事ができます。
提供:ビレッジハウス住まい相談センター
この物件が気になったら掲載期限まであと12日
ビレッジハウス神辺第二2号棟に条件(家賃・エリア)が近い物件一覧
| 写真 | 家賃 管理費等 | 敷金 礼金 | 間取り 専有面積 | 築年数 | 最寄り駅 所在地 | キープ | 詳細 |
|---|---|---|---|---|---|---|---|
アパート ティアラ(2DK/1階) | |||||||
![]() | 4.5万円 2,900円 | なし 5.5万円 | 2DK 45.02m2 | 築14年 | 広島県福山市南蔵王町 | 詳細を見る | |
アパート ファミーユあそう(1K/1階) | |||||||
![]() | 2.8万円 2,000円 | 5.6万円 2.8万円 | 1K 17.8m2 | 築37年 | 山陽本線 松永駅 徒歩13分 広島県福山市今津町 | 詳細を見る | |
アパート アーバンヴィラ三吉(1K/1階) | |||||||
![]() | 3万円 なし | 9万円 なし | 1K 23.1m2 | 築33年 | JR山陽本線 福山駅 徒歩23分 広島県福山市三吉町 | 詳細を見る | |
アパート デスパシオ(1K/1階) | |||||||
![]() | 3.9万円 2,900円 | なし 4.9万円 | 1K 31.7m2 | 築16年 | 山陽本線 東福山駅 徒歩55分 広島県福山市新涯町1丁目 | 詳細を見る | |
アパート 山陽本線 尾道駅 徒歩34分 築24年(1K/1階) | |||||||
![]() | 3万円 5,300円 | 5万円 なし | 1K 21.84m2 | 築24年 | 山陽本線 尾道駅 徒歩34分 広島県尾道市神田町 | 詳細を見る | |
アパート テラスハウスMS(2LDK/1階) | |||||||
![]() | 4.6万円 2,000円 | なし 4.6万円 | 2LDK 60.45m2 | 築38年 | 福塩線 万能倉駅 徒歩8分 広島県福山市駅家町大字万能倉駅家町大字万能倉 | 詳細を見る | |
マンション レオパレス皐月(1K/3階) | |||||||
![]() | 3.3万円 6,500円 | なし なし | 1K 19.87m2 | 築25年 | 福塩線 府中駅(広島) 徒歩12分 広島県府中市府川町 | 詳細を見る | |


/105x80-f1-q70-wp1)

/105x80-f1-q70-wp1)
/105x80-f1-q70-wp1)

/105x80-f1-q70-wp1)