賃貸マンション
ビレッジハウス潮見タワー 1号棟の賃貸物件情報(3LDK/4階)
| 家賃 | 管理費等 | 敷金 | 礼金 | 間取り | 専有面積 |
|---|---|---|---|---|---|
| 17.47万円 | なし | なし | なし | 3LDK | 65.18m2 |
入居決定でお祝い金最大100,000円
- 保証金
- -
- 償却・敷引
- -
- 築年数
- 築29年
- 所在階
- 4階
- 向き
- 南
Point
まずはお問い合わせ!
不動産会社は街のプロ、あなたに合った物件がきっと見つかります。
提供:ピアホーム広尾駅前店(株)PH.C(SUUMO経由)

詳細情報 ビレッジハウス潮見タワー 1号棟
物件紹介
ビレッジハウス潮見タワー 1号棟はJR京葉線潮見駅から徒歩6分にあり、駅近で通勤通学に便利なマンションです。
このお部屋は2階以上に位置しているので、通行人や周囲の住人からの視線が気になりにくく、防犯面でも安心。インターホンにはTVモニタもついているため、相手の顔を確認してから来客対応することができます。
人気の南向き・フローリングのお部屋。角部屋でもあるため、周囲の居住者の生活音も気になりにくい場所です。キッチンはシステムキッチン仕様になっていますので、お料理好きの方にもぴったり。また、バス・トイレは別で、のんびりお風呂タイムも楽しめるでしょう。
通信設備面では、インターネット接続が可能です。また、CATVにも対応しているので、おうち時間も充実するでしょう(別途工事、契約料が必要な場合あり)。
建物にはエレベーターがついているので、重い荷物があっても安心。共用部には宅配ボックスが設定されているので、不在の時にも荷物を受け取ることができます。
このお部屋は2階以上に位置しているので、通行人や周囲の住人からの視線が気になりにくく、防犯面でも安心。インターホンにはTVモニタもついているため、相手の顔を確認してから来客対応することができます。
人気の南向き・フローリングのお部屋。角部屋でもあるため、周囲の居住者の生活音も気になりにくい場所です。キッチンはシステムキッチン仕様になっていますので、お料理好きの方にもぴったり。また、バス・トイレは別で、のんびりお風呂タイムも楽しめるでしょう。
通信設備面では、インターネット接続が可能です。また、CATVにも対応しているので、おうち時間も充実するでしょう(別途工事、契約料が必要な場合あり)。
建物にはエレベーターがついているので、重い荷物があっても安心。共用部には宅配ボックスが設定されているので、不在の時にも荷物を受け取ることができます。
お金・契約の情報
※「-」と表示されているものは、実際は料金が発生するものもございます。詳細はお問い合わせください。
| 家賃 | 17.47万円 | 管理費・共益費 | なし |
|---|---|---|---|
| 敷金 | なし | 礼金 | なし |
| フリーレント | 0ヶ月 | ||
| 入居決定でお祝い金最大100,000円 | |||
| 保証金 | - | 償却・敷引 | - |
| 住宅保険料 | 1万円(2年) | 更新料 | - |
| 保証会社利用 | - | 保証会社名 | - |
| 保証会社費用 | - | 保証会社備考 | - |
| 契約形態 | - | 契約期間 | - |
| 入居・引渡期間 | - | 現況 | 空室 |
| 入居可能条件 | 2人入居可、高齢者相談、学生可 | ||
| 契約備考 | 契約種類:普通契約、24時間緊急対応、防犯カメラ | ||
部屋の情報
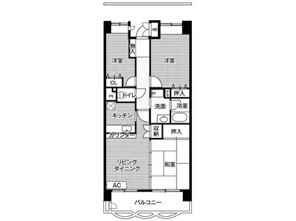
| 間取り | 3LDK | 専有面積 | 65.18m2 |
|---|---|---|---|
| 所在階 / 向き | 4階 / 南 | バルコニー面積 | - |
| 水道 / ガス | - | ||
| 設備 | バス・トイレ別、テレビドアホン、宅配ボックス、追い焚き、エアコン、角部屋、バルコニー、給湯、洗濯機:室内 | ||
| 当社物件ID | 160561129 | ||
建物の情報
| 建物名 | ビレッジハウス潮見タワー 1号棟 | ||
|---|---|---|---|
| 所在地 | 東京都江東区潮見1丁目29-22 | ||
| 交通 | 東京地下鉄有楽町線 辰巳駅 徒歩7分 京葉線 潮見駅 徒歩21分 ゆりかもめ 豊洲駅 徒歩32分 京葉線 新木場駅 バス乗車時間:7分 新砂一丁目バス停で下車 徒歩27分 | ||
| 階数 | 14階建 | 総戸数 | - |
| 築年月 | 1997年04月 / 築29年 | エレベーター | - |
| 駐車場 | なし 円 | バイク置き場 | - |
| 駐輪場 | - | 管理人/管理会社 | 日勤 |
| 建物種別 | マンション | 建物構造 | SRC(鉄骨鉄筋コンクリート) |
この部屋の取扱い不動産会社
| 会社名 | ビレッジハウス・マネジメント株式会社 住まい相談センター | ||
|---|---|---|---|
| 所在地 | 東京都港区虎ノ門4丁目3-13 ヒューリック神谷町ビル4階 | 交通 | 東京メトロ日比谷線「神谷町駅」 徒歩2分 |
| 営業時間 | 平日:9:00-18:30/土日祝:9:00-18:00 | 定休日 | 年中無休(年末年始を除く) |
| 免許番号 | 東京都知事(2)第100758号 | 取引態様 | 貸主 |
| 不動産会社管理番号 | 00013954800 | 当社管理番号 | 459 |
| 所属団体 | 公益社団法人東京都宅地建物取引業協会会員 日本賃貸住宅管理協会会員 | ||
| 取扱い物件情報 | 物件詳細へ | ||
※各種情報と現状に差異がある場合は、現状優先となります。問い合わせをすることで、より詳しい条件、情報を確認する事ができます。
提供:ビレッジハウス・マネジメント株式会社 住まい相談センター
この物件が気になったら掲載期限まであと13日
ビレッジハウス潮見タワー 1号棟に条件(家賃・エリア)が近い物件一覧
| 写真 | 家賃 管理費等 | 敷金 礼金 | 間取り 専有面積 | 築年数 | 最寄り駅 所在地 | キープ | 詳細 |
|---|---|---|---|---|---|---|---|
マンション サンパレス(1LDK/1階) | |||||||
![]() | 13.7万円 7,000円 | 13.7万円 27.4万円 | 1LDK 40m2 | 築5年 | 東急池上線 池上駅 徒歩7分 東急池上線 千鳥町駅 徒歩13分 東京都大田区池上3丁目 | 詳細を見る | |
マンション ラヴァンド大島(1K/4階) | |||||||
![]() | 11.1万円 1万円 | なし なし | 1K 25.69m2 | 築8年 | 都営新宿線 大島駅(東京) 徒歩3分 都営新宿線 西大島駅 徒歩7分 JR総武線 亀戸駅 徒歩14分 東京都江東区大島 | 詳細を見る | |
マンション WHARF森下(1K/4階) | |||||||
![]() | 14.8万円 1万円 | 14.8万円 なし | 1K 26.84m2 | 築12年 | 東京都大江戸線 森下駅(東京) 徒歩3分 東京都墨田区菊川1丁目 | 詳細を見る | |
マンション テラス杉並方南町(2LDK/3階) | |||||||
![]() | 20.9万円 1.8万円 | 20.9万円 なし | 2LDK 45.26m2 | 築2年 | 京王井の頭線 永福町駅 徒歩23分 京王線 代田橋駅 徒歩30分 東京メトロ丸ノ内線 方南町駅 徒歩99分 東京都杉並区堀ノ内 | 詳細を見る | |
マンション プレール・ドゥーク大島(2LDK/2階) | |||||||
![]() | 23.3万円 1.1万円 | なし 23.3万円 | 2LDK 53.96m2 | 築2年 | 都営新宿線 東大島駅 徒歩6分 都営新宿線 大島駅(東京) 徒歩8分 JR総武線 亀戸駅 徒歩25分 東京都江東区大島 | 詳細を見る | |
マンション ファーストレジデンス(2DK/5階) | |||||||
![]() | 17.9万円 なし | 17.9万円 17.9万円 | 2DK 45m2 | 築33年 | 都営大江戸線 清澄白河駅 徒歩5分 東京メトロ半蔵門線 清澄白河駅 徒歩5分 都営新宿線 森下駅(東京) 徒歩10分 東京都江東区清澄 | 詳細を見る | |
マンション ロサルバ大森(2DK/4階) | |||||||
![]() | 15.6万円 7,000円 | 15.6万円 31.2万円 | 2DK 50.48m2 | 築23年 | 京浜急行電鉄本線 大森町駅 徒歩8分 京浜急行電鉄本線 梅屋敷駅(東京) 徒歩8分 東京都大田区大森西3丁目 | 詳細を見る | |
マンション TSK蒲田フラワーマンション(1LDK/8階) | |||||||
![]() | 11.2万円 8,000円 | 11.2万円 11.2万円 | 1LDK 41m2 | 築47年 | 京浜東北・根岸線 蒲田駅 徒歩12分 京浜急行電鉄本線 梅屋敷駅(東京) 徒歩12分 東京都大田区蒲田1丁目 | 詳細を見る | |



/105x80-f1-q70-wp1)




