賃貸アパート
グリーンハウスの賃貸物件情報(ワンルーム/2階)
| 家賃 | 管理費等 | 敷金 | 礼金 | 間取り | 専有面積 |
|---|---|---|---|---|---|
| 3.2万円 | 3,000円 | 3.2万円 | なし | ワンルーム | 19.87m2 |
入居決定でお祝い金最大100,000円
Point
当物件は初期費用のクレジットカード決済や分割が可能になります。また入居審査や入居希望日、初期費用のご相談もお気軽にお問合せください。
提供:いい部屋ネット鴻巣店(株)KAOHARE(SUUMO経由)

詳細情報 グリーンハウス
物件紹介
グリーンハウスは秩父鉄道持田駅から徒歩30分にあるアパートです。
このお部屋は2階以上に位置しているので、通行人や周囲の住人からの視線が気になりにくく、防犯面でも安心。インターホンにはTVモニタもついているため、相手の顔を確認してから来客対応することができます。
人気の南向きのお部屋。また、フローリングなのでお掃除もラクラク。バス・トイレ別の仕様で、のんびりお風呂タイムも楽しめます。
通信設備面では、インターネット接続が可能です(別途工事、契約料が必要な場合あり)。
このお部屋は2階以上に位置しているので、通行人や周囲の住人からの視線が気になりにくく、防犯面でも安心。インターホンにはTVモニタもついているため、相手の顔を確認してから来客対応することができます。
人気の南向きのお部屋。また、フローリングなのでお掃除もラクラク。バス・トイレ別の仕様で、のんびりお風呂タイムも楽しめます。
通信設備面では、インターネット接続が可能です(別途工事、契約料が必要な場合あり)。
お金・契約の情報
※「-」と表示されているものは、実際は料金が発生するものもございます。詳細はお問い合わせください。
| 家賃 | 3.2万円 | 管理費・共益費 | 3,000円 |
|---|---|---|---|
| 敷金 | 3.2万円 | 礼金 | なし |
| 入居決定でお祝い金最大100,000円 | |||
| 保証金 | - | 償却・敷引 | - |
| 住宅保険料 | - | 更新料 | - |
| 保証会社利用 | 必須 | 保証会社名 | - |
| 保証会社費用 | - | 保証会社備考 | 保証会社利用必 指定の保証会社(初期費用17500円・2年目以降2年毎10500円) |
| 契約形態 | - | 契約期間 | - |
| 入居・引渡期間 | 即時 | 現況 | - |
| 契約備考 | 【店頭へ初回ご来店・お問合わせのお客様、当物件限定、仲介手数料0円】経年劣化による修繕などで掲載している写真や設備などと実際の設備が異なる場合があります。お問い合わせやご契約の際は、その点にご留意頂き現状優先でのお貸出しになる事をご了承ください。※退去時クリーニング費用(退去時精算・借主負担)入居審査事前相談可能(外国人可、生活保護など)※短期解約違約金有 更新料 新賃料1.00ヶ月分 ワンルーム 普通借家2年 損保【2万円2年】 バストイレ別、バルコニー、エアコン、クロゼット、フローリング、TVインターホン、室内洗濯置、陽当り良好、南向き、温水洗浄便座、駐輪場、光ファイバー、即入居可、礼金不要、最上階、IHクッキングヒーター、照明付、全居室収納、全居室洋室、保証人不要、冷蔵庫、仲介手数料不要、バイク置場、全居室フローリング、複層ガラス、保証会社利用可、IT重説対応物件 | ||
部屋の情報
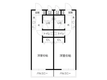
| 間取り | ワンルーム | 専有面積 | 19.87m2 |
|---|---|---|---|
| 所在階 / 向き | 2階 / 南 | バルコニー面積 | - |
| 水道 / ガス | - | ||
| 設備 | バス・トイレ別、2階以上、テレビドアホン、インターネット対応、エアコン、温水洗浄便座、南向き、バルコニー、フローリング、コンロ:IH、洗濯機:室内 | ||
| 当社物件ID | 160415585 | ||
建物の情報
| 建物名 | グリーンハウス | ||
|---|---|---|---|
| 所在地 | 埼玉県行田市大字下忍 | ||
| 交通 | 秩父鉄道 持田駅 徒歩30分 秩父鉄道 行田市駅 徒歩31分 秩父鉄道 東行田駅 徒歩34分 | ||
| 階数 | 2階建 | 総戸数 | 16戸 |
| 築年月 | 2002年03月 / 築25年 | エレベーター | - |
| 駐車場 | 空有 4400円 | バイク置き場 | あり |
| 駐輪場 | あり | 管理人/管理会社 | - |
| 周辺環境 | その他 ヤオコー 行田門井店(スーパー)まで2662m その他 さきたま国際学院(その他)まで2018m その他 専門学校高崎福祉医療カレッジ熊谷キャンパス(その他)まで7326m その他 セブンイレブン 行田向町店(コンビニ)まで1303m | ||
| 建物種別 | アパート | 建物構造 | 木造 |
この部屋の取扱い不動産会社
| 会社名 | スマイファミリー 大宮店(株)セレンホーム(SUUMO経由) | ||
|---|---|---|---|
| 所在地 | 埼玉県さいたま市中央区上落合9-8-12 エクセレント与野201 | 交通 | - |
| 営業時間 | 9時~18時 | 定休日 | 水曜 第2・第4火曜日 |
| 免許番号 | 埼玉県知事25681 | 取引態様 | 仲介 |
| 不動産会社管理番号 | 100497532814 | 当社管理番号 | 89 |
| 取扱い物件情報 | 物件詳細へ | ||
※各種情報と現状に差異がある場合は、現状優先となります。問い合わせをすることで、より詳しい条件、情報を確認する事ができます。
提供:スマイファミリー 大宮店(株)セレンホーム(SUUMO経由)
この物件が気になったら掲載期限まであと11日
グリーンハウスに条件(家賃・エリア)が近い物件一覧
| 写真 | 家賃 管理費等 | 敷金 礼金 | 間取り 専有面積 | 築年数 | 最寄り駅 所在地 | キープ | 詳細 |
|---|---|---|---|---|---|---|---|
アパート ホワイトハイツ(2DK/1階) | |||||||
![]() | 4.5万円 なし | 4.5万円 なし | 2DK 45m2 | 築54年 | JR高崎線 熊谷駅 徒歩24分 埼玉県熊谷市佐谷田 | 詳細を見る | |
アパート エトアール畑 2F(2DK/2階) | |||||||
![]() | 4万円 なし | なし なし | 2DK 39.66m2 | 築42年 | JR高崎線 籠原駅 徒歩25分 埼玉県熊谷市新堀 | 詳細を見る | |
アパート ウッディカゴハラ(1DK/2階) | |||||||
![]() | 2.9万円 3,000円 | なし なし | 1DK 28.14m2 | 築39年 | JR高崎線 籠原駅 徒歩9分 秩父鉄道 大麻生駅 徒歩57分 秩父鉄道 ひろせ野鳥の森駅 徒歩62分 埼玉県熊谷市新堀 | 詳細を見る | |
アパート MAISON OLIVEII(1LDK/1階) | |||||||
![]() | 3.7万円 3,000円 | なし なし | 1LDK 39.74m2 | 築30年 | JR高崎線 籠原駅 徒歩20分 湘南新宿ライン高海 籠原駅 徒歩20分 秩父鉄道 ひろせ野鳥の森駅 徒歩46分 埼玉県熊谷市高柳 | 詳細を見る | |
アパート レオパレスKM(1K/2階) | |||||||
![]() | 4.3万円 5,000円 | なし 4.3万円 | 1K 20.28m2 | 築25年 | 秩父鉄道 上熊谷駅 徒歩19分 秩父鉄道 熊谷駅 徒歩27分 秩父鉄道 石原駅(埼玉) 徒歩30分 埼玉県熊谷市箱田 | 詳細を見る | |
アパート ROOM1HIRATO WIFI対応(1K/1階) | |||||||
![]() | 4.1万円 5,000円 | なし なし | 1K 21.32m2 | 築27年 | JR高崎線 熊谷駅 徒歩9分 埼玉県熊谷市銀座 | 詳細を見る | |
アパート レオパレスマシューⅠ(1K/2階) | |||||||
![]() | 4.2万円 5,000円 | なし 4.2万円 | 1K 22.35m2 | 築23年 | 高崎線 吹上駅(埼玉) 徒歩14分 埼玉県鴻巣市榎戸2丁目 | 詳細を見る | |
アパート レオパレスウエスト羽生(1K/2階) | |||||||
![]() | 4.5万円 5,000円 | なし 4.5万円 | 1K 20.28m2 | 築24年 | 秩父鉄道 西羽生駅 徒歩7分 東武伊勢崎線 羽生駅 徒歩12分 埼玉県羽生市西 | 詳細を見る | |









