賃貸マンション
リヴシティ横濱関内の賃貸物件情報(1K/8階)
| 家賃 | 管理費等 | 敷金 | 礼金 | 間取り | 専有面積 |
|---|---|---|---|---|---|
| 8.1万円 | 1万円 | なし | 8.1万円 | 1K | 21.09m2 |
入居決定でお祝い金最大100,000円
- 保証金
- -
- 償却・敷引
- -
- 築年数
- 築10年
- 所在階
- 8階
- 向き
- 南西
Point
南西向き角部屋の分譲タイプ1K。独立洗面台や浴室乾燥機、グリル付2口キッチンなど設備充実。ネット使用料無料で月々のコストも軽減。敷金なしで初期費用を抑えて新生活を始められます。
提供:(株)R.bond(SUUMO経由)

詳細情報 リヴシティ横濱関内
物件紹介
リヴシティ横濱関内は京急本線日ノ出町駅から徒歩5分にあり、駅近で通勤通学に便利なマンションです。
このお部屋は2階以上に位置しているので、通行人や周囲の住人からの視線が気になりにくく、防犯面でも安心。建物のエントランスはオートロックがついており、インターホンにはTVモニタもついているため、相手の顔を確認してから来客対応することができます。
人気の南向き・フローリングのお部屋。角部屋でもあるため、周囲の居住者の生活音も気になりにくい場所です。キッチンはシステムキッチン仕様になっていますので、お料理好きの方にもぴったり。バス・トイレは別なので、のんびりお風呂タイムも楽しめるでしょう。また、雨の日でも浴室乾燥機を使えば、お洗濯も問題ありません。
通信設備面では、インターネットが無料で使えるので、月々の出費を抑えられるのも魅力です。また、BSアンテナ・CSアンテナもありますので、おうち時間も充実するでしょう(別途工事、BS・CSの契約料等が必要な場合あり)。
建物にはエレベーターがついているので、重い荷物があっても安心。共用部には宅配ボックスが設定されているので、不在の時にも荷物を受け取ることができます。また、ペット飼育の相談ができますので、あなたの大切な家族の一員も快適に暮らせるか、ぜひ確認してみてください。
このお部屋は2階以上に位置しているので、通行人や周囲の住人からの視線が気になりにくく、防犯面でも安心。建物のエントランスはオートロックがついており、インターホンにはTVモニタもついているため、相手の顔を確認してから来客対応することができます。
人気の南向き・フローリングのお部屋。角部屋でもあるため、周囲の居住者の生活音も気になりにくい場所です。キッチンはシステムキッチン仕様になっていますので、お料理好きの方にもぴったり。バス・トイレは別なので、のんびりお風呂タイムも楽しめるでしょう。また、雨の日でも浴室乾燥機を使えば、お洗濯も問題ありません。
通信設備面では、インターネットが無料で使えるので、月々の出費を抑えられるのも魅力です。また、BSアンテナ・CSアンテナもありますので、おうち時間も充実するでしょう(別途工事、BS・CSの契約料等が必要な場合あり)。
建物にはエレベーターがついているので、重い荷物があっても安心。共用部には宅配ボックスが設定されているので、不在の時にも荷物を受け取ることができます。また、ペット飼育の相談ができますので、あなたの大切な家族の一員も快適に暮らせるか、ぜひ確認してみてください。
お金・契約の情報
※「-」と表示されているものは、実際は料金が発生するものもございます。詳細はお問い合わせください。
| 家賃 | 8.1万円 | 管理費・共益費 | 1万円 |
|---|---|---|---|
| 敷金 | なし | 礼金 | 8.1万円 |
| 入居決定でお祝い金最大100,000円 | |||
| 保証金 | - | 償却・敷引 | - |
| 住宅保険料 | - | 更新料 | - |
| 保証会社利用 | 必須 | 保証会社名 | - |
| 保証会社費用 | - | 保証会社備考 | 保証会社利用必 (初回)総賃料の80%~ (月額)総賃料の1%~(決済サービス料)500円(税抜)/月 |
| 契約形態 | - | 契約期間 | - |
| 入居・引渡期間 | 相談 | 現況 | - |
| 入居可能条件 | ペット相談 | ||
| 契約備考 | JR京浜東北線関内駅徒歩10分/巡回管理/短期解約違約金あり、解約予告期間2ヶ月前。指定の引越業者・電力会社あり。クリーニング代、退去時別途(賃料1ヶ月+消費税)。ペット可(礼金1ヶ月追加)、ネット使用料無料、設備充実のマンションです。図面と現況が異なる場合は、現況が優先。先行契約のため申込後の内見は契約・入金後のご案内。株式会社にじいろサポート24(火災保険付き)月額2,000円(税別)。事務所・SOHO利用不可。 合計2.2万円(内訳:契約事務手数料 5500円税込 室内消毒代 16500円税込) 更新料 1.5ヶ月/更新事務手数料 5500円 1K ペット相談/ルームシェア相談 普通借家2年 バストイレ別、バルコニー、エアコン、ガスコンロ対応、クロゼット、フローリング、TVインターホン、浴室乾燥機、オートロック、室内洗濯置、システムキッチン、角住戸、温水洗浄便座、脱衣所、エレベーター、洗面化粧台、2口コンロ、駐輪場、宅配ボックス、外壁タイル張り、BS・CS、敷金不要、防犯カメラ、ペット相談、照明付、分譲賃貸、グリル付、保証人不要、バイク置場、南西角住戸、CS、ネット使用料不要、24時間換気システム、ルームシェア相談、人感照明センサー、3駅以上利用可、3沿線以上利用可、駅徒歩5分以内、24時間ゴミ出し可、敷地内ごみ置き場、南西向き、都市ガス、洗面所にドア、玄関収納、BS、礼金1ヶ月 | ||
部屋の情報
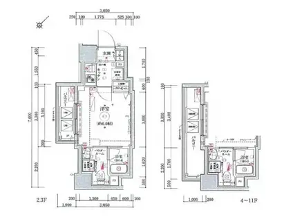
| 間取り | 1K | 専有面積 | 21.09m2 |
|---|---|---|---|
| 所在階 / 向き | 8階 / 南西 | バルコニー面積 | - |
| 水道 / ガス | - | ||
| 設備 | バス・トイレ別、2階以上、オートロック、テレビドアホン、宅配ボックス、浴室乾燥機、インターネット対応、システムキッチン、エアコン、エレベーター、温水洗浄便座、南向き、角部屋、バルコニー、フローリング、2口コンロ、コンロ:ガス、CSアンテナ、BSアンテナ、インターネット使用料無料、洗濯機:室内 | ||
| 当社物件ID | 22898925 | ||
建物の情報
| 建物名 | リヴシティ横濱関内 | ||
|---|---|---|---|
| 所在地 | 神奈川県横浜市中区長者町 | ||
| 交通 | 京急本線 日ノ出町駅 徒歩5分 ブルーライン 伊勢佐木長者町駅 徒歩6分 ブルーライン 関内駅 徒歩9分 | ||
| 階数 | 11階建 | 総戸数 | 80戸 |
| 築年月 | 2016年09月 / 築10年 | エレベーター | あり |
| 駐車場 | なし | バイク置き場 | あり |
| 駐輪場 | あり | 管理人/管理会社 | - |
| 周辺環境 | その他 まいばすけっと長者町9丁目店(スーパー)まで130m その他 セブンイレブン横浜長者町清正公通り店(コンビニ)まで167m その他 ファミリーマートサンズ長者町店(コンビニ)まで205m その他 ドラッグストアスマイル長者町店(ドラッグストア)まで146m その他 ドン・キホーテ伊勢佐木町店(ホームセンター)まで237m その他 医療法人回生会ふれあい横浜ホスピタル(病院)まで830m | ||
| 建物種別 | マンション | 建物構造 | RC(鉄筋コンクリート) |
この部屋の取扱い不動産会社
| 会社名 | (株)R.bond(SUUMO経由) | ||
|---|---|---|---|
| 所在地 | 東京都千代田区丸の内2-7-2 JPタワー10階 | 交通 | - |
| 営業時間 | - | 定休日 | - |
| 免許番号 | 東京都知事97869 | 取引態様 | 仲介 |
| 不動産会社管理番号 | 100487426686 | 当社管理番号 | 89 |
| 所属団体 | (公社)全日本不動産協会東京都本部会員 | ||
| 公正取引協議会 | (公社)首都圏不動産公正取引協議会加盟 | ||
| 取扱い物件情報 | 物件詳細へ | ||
※各種情報と現状に差異がある場合は、現状優先となります。問い合わせをすることで、より詳しい条件、情報を確認する事ができます。
提供:(株)R.bond(SUUMO経由)
この物件が気になったら掲載期限まであと11日
リヴシティ横濱関内に条件(家賃・エリア)が近い物件一覧
| 写真 | 家賃 管理費等 | 敷金 礼金 | 間取り 専有面積 | 築年数 | 最寄り駅 所在地 | キープ | 詳細 |
|---|---|---|---|---|---|---|---|
アパート グリーンヒル光ヶ丘(1K/1階) | |||||||
![]() | 6.9万円 3,000円 | 6.9万円 6.9万円 | 1K 27.8m2 | 新築 | 相鉄本線 大和駅(神奈川) 徒歩17分 小田急江ノ島線 桜ケ丘駅 徒歩20分 相鉄本線 瀬谷駅 徒歩27分 神奈川県大和市深見 | 詳細を見る | |
アパート M・コーポ(1K/1階) | |||||||
![]() | 5.37万円 3,000円 | 10.74万円 5.37万円 | 1K 19.8m2 | 築40年 | JR鶴見線 浜川崎駅 徒歩13分 JR鶴見線 昭和駅 徒歩17分 神奈川県川崎市川崎区浜町 | 詳細を見る | |
マンション FELISTAS(1LDK/1階) | |||||||
![]() | 10.2万円 4,000円 | 10.2万円 10.2万円 | 1LDK 41m2 | 築15年 | 神奈川県川崎市川崎区小田5丁目 | 詳細を見る | |
アパート アザーレ・パッシオ藤沢長後(1K/1階) | |||||||
![]() | 6.5万円 4,000円 | 6.5万円 6.5万円 | 1K 23.24m2 | 新築 | 小田急江ノ島線 長後駅 徒歩12分 小田急江ノ島線 高座渋谷駅 徒歩23分 相鉄いずみ野線 いずみ中央駅 徒歩28分 神奈川県藤沢市長後 | 詳細を見る | |
マンション グランデュオ二子多摩川(1K/4階) | |||||||
![]() | 12.6万円 1万円 | なし なし | 1K 25.12m2 | 築6年 | 東急田園都市線 二子新地駅 徒歩2分 東急田園都市線 二子玉川駅 徒歩8分 東急田園都市線 高津駅(神奈川) 徒歩10分 神奈川県川崎市高津区二子 | 詳細を見る | |
マンション ルフレプレミアム川崎(1K/5階) | |||||||
![]() | 8.5万円 1.5万円 | 8.5万円 8.5万円 | 1K 22.4m2 | 築7年 | 京急本線 京急川崎駅 徒歩4分 JR京浜東北線 川崎駅 徒歩6分 京急大師線 港町駅 徒歩14分 神奈川県川崎市川崎区砂子 | 詳細を見る | |
アパート ブランメゾン長後(2DK/2階) | |||||||
![]() | 6.5万円 1万円 | なし 6.5万円 | 2DK 40m2 | 築34年 | 神奈川県藤沢市下土棚 | 詳細を見る | |
アパート ティーエム古川町(ワンルーム/2階) | |||||||
![]() | 5万円 1万円 | なし なし | ワンルーム 9.16m2 | 築1年 | JR南武線 矢向駅 徒歩12分 JR横須賀線 新川崎駅 徒歩19分 神奈川県川崎市幸区古川町 | 詳細を見る | |









