賃貸一戸建て
京阪電気鉄道鴨東線 出町柳駅 徒歩5分 1階建 築38年の賃貸物件情報(2LDK)
| 家賃 | 管理費等 | 敷金 | 礼金 | 間取り | 専有面積 |
|---|---|---|---|---|---|
| 10.5万円 | なし | 10.5万円 | 10.5万円 | 2LDK | 58.48m2 |
入居決定でお祝い金最大100,000円
Point
養生小学校区、貸家 出町柳駅徒歩5分の好立地、小庭の植木が季節感が有り素敵です
提供:株式会社 京都ライフ 河原町四条店(賃貸スモッカ経由)

詳細情報 京阪電気鉄道鴨東線 出町柳駅 徒歩5分 1階建 築38年
物件紹介
京阪電気鉄道鴨東線出町柳駅から徒歩5分にあり、駅近で通勤通学に便利な一戸建てです。
フローリングのお部屋なのでお掃除もラクラク。バス・トイレ別の仕様で、のんびりお風呂タイムも楽しめます。
フローリングのお部屋なのでお掃除もラクラク。バス・トイレ別の仕様で、のんびりお風呂タイムも楽しめます。
お金・契約の情報
※「-」と表示されているものは、実際は料金が発生するものもございます。詳細はお問い合わせください。
| 家賃 | 10.5万円 | 管理費・共益費 | なし |
|---|---|---|---|
| 敷金 | 10.5万円 | 礼金 | 10.5万円 |
| 入居決定でお祝い金最大100,000円 | |||
| 保証金 | - | 償却・敷引 | - |
| 住宅保険料 | 住宅保険料あり | 更新料 | - |
| 契約形態 | - | 契約期間 | 2年 |
| 入居・引渡期間 | 即時 | 現況 | 空室 |
| 契約備考 | 京阪出町柳駅まで徒歩5分の2LDKです。叡山、京阪のダブルアクセス。嬉しい3点セパレートに追い焚き機能付浴室、温水洗浄便座など充実の設備。TVホンでセキュリティも安心です。コンビニ、スーパーなど近くにあって便利ですよ。 更新料:1ヶ月 保証会社:利用必須 初回:月額賃料等の100%、月額:支払い手数料330円、更新時:1万円/1年 その他設備/条件:独立洗面台、TVドアホン、即入居可 | ||
部屋の情報
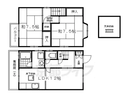
| 間取り | 2LDK | 専有面積 | 58.48m2 |
|---|---|---|---|
| 間取り詳細 | 和室(7.5帖)、和室(7.5帖)、LDK(12帖) | ||
| 所在階 / 向き | 地下階 / 西 | バルコニー面積 | - |
| 水道 / ガス | ガス【都市】 | ||
| 設備 | バス・トイレ別、追い焚き、エアコン、温水洗浄便座、バルコニー、フローリング、床下収納、専用庭、洗濯機:室内 | ||
| 当社物件ID | 159991708 | ||
建物の情報
| 建物名 | 京阪電気鉄道鴨東線 出町柳駅 徒歩5分 1階建 築38年 | ||
|---|---|---|---|
| 所在地 | 京都府京都市左京区田中大堰町 | ||
| 交通 | 京阪電気鉄道鴨東線 出町柳駅 徒歩5分 叡山電鉄 元田中駅 徒歩9分 | ||
| 階数 | 1階建 | 総戸数 | - |
| 築年月 | 1988年09月 / 築38年 | エレベーター | - |
| 駐車場 | - | バイク置き場 | あり |
| 駐輪場 | - | 管理人/管理会社 | - |
| 建物種別 | 一戸建て | 建物構造 | 木造 |
この部屋の取扱い不動産会社
| 会社名 | 株式会社 京都ライフ 北大路店(賃貸スモッカ経由) | ||
|---|---|---|---|
| 所在地 | 京都市北区小山上総町11 | 交通 | - |
| 営業時間 | - | 定休日 | - |
| 免許番号 | 京都府知事(11)第6353号 | 取引態様 | 専任 |
| 不動産会社管理番号 | kyotolife_62305---22 | 当社管理番号 | 463 |
| 所属団体 | 京都府宅地建物取引業協会\n公益社団法人近畿地区不動産公正取引協議会 | ||
| 公正取引協議会 | 全国宅地建物取引業保証協会 | ||
| 取扱い物件情報 | 物件詳細へ | ||
※各種情報と現状に差異がある場合は、現状優先となります。問い合わせをすることで、より詳しい条件、情報を確認する事ができます。
提供:株式会社 京都ライフ 北大路店(賃貸スモッカ経由)
この物件が気になったら掲載期限まであと6日
京阪電気鉄道鴨東線 出町柳駅 徒歩5分 1階建 築38年に条件(家賃・エリア)が近い物件一覧
| 写真 | 家賃 管理費等 | 敷金 礼金 | 間取り 専有面積 | 築年数 | 最寄り駅 所在地 | キープ | 詳細 |
|---|---|---|---|---|---|---|---|
マンション 叡山電鉄 元田中駅 徒歩18分 築35年(1K/3階) | |||||||
![]() | 6.4万円 5,000円 | 6.4万円 10万円 | 1K 25m2 | 築35年 | 叡山電鉄 元田中駅 徒歩18分 叡山電鉄 茶山・京都芸術大学駅 徒歩20分 京都府京都市左京区北白川上池田町 | 詳細を見る | |
アパート セレーノ(1K/1階) | |||||||
![]() | 6.6万円 4,600円 | なし 6.6万円 | 1K 31.21m2 | 築4年 | JR東海道本線 長岡京駅 徒歩14分 阪急京都線 西山天王山駅 徒歩22分 阪急京都線 長岡天神駅 徒歩25分 京都府長岡京市勝竜寺三枚田 | 詳細を見る | |
マンション 叡山電鉄 元田中駅 徒歩17分 築3年(1DK/3階) | |||||||
![]() | 6.85万円 6,860円 | なし なし | 1DK 21.45m2 | 築3年 | 叡山電鉄 元田中駅 徒歩17分 京阪電気鉄道鴨東線 出町柳駅 徒歩18分 京都府京都市左京区浄土寺西田町 | 詳細を見る | |
アパート シャーメゾンリヴィエール ブランシュ ドゥ ノール(2LDK/2階) | |||||||
![]() | 14万円 3,000円 | 5万円 28万円 | 2LDK 70.62m2 | 築3年 | 叡山電鉄 茶山・京都芸術大学駅 徒歩6分 京都府京都市左京区北白川西平井町 | 詳細を見る | |
マンション 叡山電鉄 一乗寺駅 徒歩8分 新築(1K/2階) | |||||||
![]() | 7.5万円 7,000円 | なし 15万円 | 1K 25.05m2 | 新築 | 叡山電鉄 一乗寺駅 徒歩8分 京阪電気鉄道鴨東線 出町柳駅 徒歩27分 京都府京都市左京区一乗寺築田町 | 詳細を見る | |
マンション 京阪電気鉄道宇治線 宇治駅(京阪) 徒歩5分 築38年(3DK/6階) | |||||||
![]() | 7万円 8,000円 | なし 10万円 | 3DK 56.37m2 | 築38年 | 京阪電気鉄道宇治線 宇治駅(京阪) 徒歩5分 奈良線 宇治駅(JR) 徒歩5分 京都府宇治市宇治妙楽 | 詳細を見る | |
アパート 京都市烏丸線 北大路駅 徒歩10分 築4年(1K/1階) | |||||||
![]() | 6.75万円 7,000円 | 5万円 12万円 | 1K 20.05m2 | 築4年 | 京都市烏丸線 北大路駅 徒歩10分 京都市烏丸線 北山駅(京都) 徒歩11分 京都府京都市左京区下鴨東半木町 | 詳細を見る | |
マンション 叡山電鉄 一乗寺駅 徒歩7分 新築(ワンルーム/3階) | |||||||
![]() | 7.4万円 8,000円 | なし 14.8万円 | ワンルーム 29.04m2 | 新築 | 叡山電鉄 一乗寺駅 徒歩7分 京阪電気鉄道鴨東線 出町柳駅 徒歩23分 京都府京都市左京区一乗寺地蔵本町 | 詳細を見る | |









