賃貸マンション
マーロ千住クレストタップIIの賃貸物件情報(1K/5階)
| 家賃 | 管理費等 | 敷金 | 礼金 | 間取り | 専有面積 |
|---|---|---|---|---|---|
| 8.9万円 | 1万円 | なし | なし | 1K | 25.3m2 |
入居決定でお祝い金最大100,000円
- 保証金
- -
- 償却・敷引
- -
- 築年数
- 築3年
- 所在階
- 5階
- 向き
- 北
Point
こちらのお部屋は空き予定でご見学日まで少し時間があります。当社ではネットから仮申込でお部屋確保が可能です。「仮申込希望」と書いてお問合せ下さい。折返し「仮申込専用URL」をお送りします。
提供:借りROOM北千住店(株)ロダン(SUUMO経由)

詳細情報 マーロ千住クレストタップII
物件紹介
マーロ千住クレストタップIIは京成本線京成関屋駅から徒歩1分にあり、駅近で通勤通学に便利なマンションです。
このお部屋は2階以上に位置しているので、通行人や周囲の住人からの視線が気になりにくく、防犯面でも安心。建物のエントランスはオートロックがついており、インターホンにはTVモニタもついているため、相手の顔を確認してから来客対応することができます。
おしゃれなデザイナーズ物件!フローリングのお部屋なのでお掃除もラクラク。キッチンはシステムキッチン仕様になっていますので、お料理好きの方にもぴったり。バス・トイレは別なので、のんびりお風呂タイムも楽しめるでしょう。また、雨の日でも浴室乾燥機を使えば、お洗濯も問題ありません。
通信設備面では、インターネットが無料で使えるので、月々の出費を抑えられるのも魅力です。また、BSアンテナ・CSアンテナがありCATVにも対応しているので、おうち時間も充実するでしょう(別途工事、BS・CS・CATVの契約料等が必要な場合あり)。
建物にはエレベーターがついているので、重い荷物があっても安心。共用部には宅配ボックスが設定されているので、不在の時にも荷物を受け取ることができます。また、ペット飼育の相談ができますので、あなたの大切な家族の一員も快適に暮らせるか、ぜひ確認してみてください。
このお部屋は2階以上に位置しているので、通行人や周囲の住人からの視線が気になりにくく、防犯面でも安心。建物のエントランスはオートロックがついており、インターホンにはTVモニタもついているため、相手の顔を確認してから来客対応することができます。
おしゃれなデザイナーズ物件!フローリングのお部屋なのでお掃除もラクラク。キッチンはシステムキッチン仕様になっていますので、お料理好きの方にもぴったり。バス・トイレは別なので、のんびりお風呂タイムも楽しめるでしょう。また、雨の日でも浴室乾燥機を使えば、お洗濯も問題ありません。
通信設備面では、インターネットが無料で使えるので、月々の出費を抑えられるのも魅力です。また、BSアンテナ・CSアンテナがありCATVにも対応しているので、おうち時間も充実するでしょう(別途工事、BS・CS・CATVの契約料等が必要な場合あり)。
建物にはエレベーターがついているので、重い荷物があっても安心。共用部には宅配ボックスが設定されているので、不在の時にも荷物を受け取ることができます。また、ペット飼育の相談ができますので、あなたの大切な家族の一員も快適に暮らせるか、ぜひ確認してみてください。
お金・契約の情報
※「-」と表示されているものは、実際は料金が発生するものもございます。詳細はお問い合わせください。
| 家賃 | 8.9万円 | 管理費・共益費 | 1万円 |
|---|---|---|---|
| 敷金 | なし | 礼金 | なし |
| 入居決定でお祝い金最大100,000円 | |||
| 保証金 | - | 償却・敷引 | - |
| 住宅保険料 | - | 更新料 | - |
| 保証会社利用 | 必須 | 保証会社名 | - |
| 保証会社費用 | - | 保証会社備考 | 保証会社利用必 総賃料の50% 年/1万円 |
| 契約形態 | - | 契約期間 | - |
| 入居・引渡期間 | - | 現況 | - |
| 入居可能条件 | ペット相談 | ||
| 契約備考 | サイトの閲覧、ありがとうございます!お電話でのお問い合わせならリアルタイムで募集状況をご確認頂けます!lineでのご相談ご対応も可能です!お気軽にお問い合わせください(^^♪google口コミ★北千住は勿論、足立葛飾ナンバー1の実績!!足立区、葛飾区はもちろん千葉県、埼玉県でもご紹介可能です!是非一度ご相談ください!※短期解約違約金あり 合計7.15万円(内訳:事務手数料1.1万円退去時エアコンクリーニング費用/台1.65万円鍵交換代4.4万円) 更新料 新賃料1.50ヶ月分 室内清掃費用 38500円 安心サポート 月額1100円 1K 二人入居可/ペット相談 普通借家2年 損保【2万円2年】 バストイレ別、バルコニー、エアコン、ガスコンロ対応、クロゼット、フローリング、TVインターホン、浴室乾燥機、オートロック、室内洗濯置、シューズボックス、システムキッチン、温水洗浄便座、脱衣所、エレベーター、洗面所独立、洗面化粧台、2口コンロ、宅配ボックス、礼金不要、敷金不要、防犯カメラ、ペット相談、分譲賃貸、保証人不要、二人入居相談、2沿線利用可、ディンプルキー、ネット使用料不要、ダブルロックキー、保証金不要、築3年以内、学生相談、耐火構造、耐震構造、2駅利用可、3駅以上利用可、3沿線以上利用可、駅徒歩5分以内、駅徒歩10分以内、敷地内ごみ置き場、都市ガス、敷金・礼金不要、保証会社利用可、IT重説対応物件、初期費用カード決済可 敷金積み増し【ペット飼育の場合敷金1ヶ月(総額)】 入居日:'26年3月中旬 | ||
部屋の情報
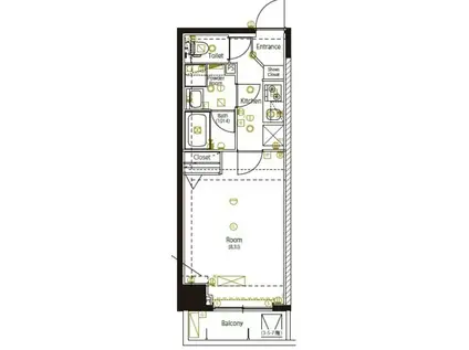
| 間取り | 1K | 専有面積 | 25.3m2 |
|---|---|---|---|
| 所在階 / 向き | 5階 / 北 | バルコニー面積 | - |
| 水道 / ガス | - | ||
| 設備 | バス・トイレ別、2階以上、オートロック、テレビドアホン、宅配ボックス、浴室乾燥機、インターネット対応、システムキッチン、エアコン、エレベーター、温水洗浄便座、バルコニー、フローリング、洗髪洗面化粧台、2口コンロ、コンロ:ガス、インターネット使用料無料、洗濯機:室内 | ||
| 当社物件ID | 131185651 | ||
建物の情報
| 建物名 | マーロ千住クレストタップII | ||
|---|---|---|---|
| 所在地 | 東京都足立区千住曙町 | ||
| 交通 | 京成本線 京成関屋駅 徒歩1分 東武伊勢崎線 牛田駅(東京) 徒歩1分 JR常磐線 北千住駅 徒歩14分 | ||
| 階数 | 8階建 | 総戸数 | - |
| 築年月 | 2023年03月 / 築3年 | エレベーター | あり |
| 駐車場 | なし | バイク置き場 | - |
| 駐輪場 | - | 管理人/管理会社 | - |
| 周辺環境 | その他 ダイエー千住曙町店(スーパー)まで172m その他 ジョリーパスタ 千住堀切橋店(飲食店)まで315m その他 快活CLUB(クラブ) 千住堀切橋店(その他)まで385m その他 まいばすけっと 北千住駅東店(スーパー)まで556m その他 ドトールコーヒーショップ エキア北千住店(飲食店)まで980m その他 LUMINE(ルミネ)北千住(その他)まで1239m | ||
| 建物種別 | マンション | 建物構造 | RC(鉄筋コンクリート) |
この部屋の取扱い不動産会社
| 会社名 | 借りROOM北千住店(株)ロダン(SUUMO経由) | ||
|---|---|---|---|
| 所在地 | 東京都足立区千住2-22-5 | 交通 | - |
| 営業時間 | 10:00~19:00 | 定休日 | 第一、三火曜日・水曜日 |
| 免許番号 | 東京都知事94509 | 取引態様 | 仲介 |
| 不動産会社管理番号 | 100480364656 | 当社管理番号 | 89 |
| 所属団体 | (公社)東京都宅地建物取引業協会会員 | ||
| 公正取引協議会 | (公社)首都圏不動産公正取引協議会加盟 | ||
| 取扱い物件情報 | 物件詳細へ | ||
※各種情報と現状に差異がある場合は、現状優先となります。問い合わせをすることで、より詳しい条件、情報を確認する事ができます。
提供:借りROOM北千住店(株)ロダン(SUUMO経由)
この物件が気になったら掲載期限まであと11日
マーロ千住クレストタップIIに条件(家賃・エリア)が近い物件一覧
| 写真 | 家賃 管理費等 | 敷金 礼金 | 間取り 専有面積 | 築年数 | 最寄り駅 所在地 | キープ | 詳細 |
|---|---|---|---|---|---|---|---|
マンション スカイコートパレス押上2(1K/2階) | |||||||
![]() | 9.14万円 8,600円 | 9.14万円 9.14万円 | 1K 26.35m2 | 築11年 | 東京地下鉄半蔵門線 押上駅 徒歩10分 東京都浅草線 押上駅 徒歩10分 東武伊勢崎・大師線 曳舟駅 徒歩10分 東京都墨田区向島5丁目 | 詳細を見る | |
マンション ライフガーデン西日暮里(1K/5階) | |||||||
![]() | 9万円 1.5万円 | なし 18万円 | 1K 26.68m2 | 築12年 | 常磐線 三河島駅 徒歩5分 山手線 西日暮里駅 徒歩8分 京浜東北・根岸線 日暮里駅 徒歩10分 東京都荒川区西日暮里1丁目 | 詳細を見る | |
マンション パストラーレ三ノ輪(1K/5階) | |||||||
![]() | 10.1万円 7,000円 | 10.1万円 10.1万円 | 1K 31.14m2 | 築26年 | 東京地下鉄日比谷線 三ノ輪駅 徒歩6分 東京地下鉄日比谷線 入谷駅(東京) 徒歩16分 山手線 日暮里駅 徒歩25分 東京都荒川区東日暮里1丁目 | 詳細を見る | |
マンション クレヴィスタ新小岩(1K/2階) | |||||||
![]() | 8.8万円 1.2万円 | 8.8万円 8.8万円 | 1K 20.47m2 | 築6年 | 総武・中央緩行線 新小岩駅 徒歩9分 東京都葛飾区新小岩4丁目 | 詳細を見る | |
マンション PETIT MIGNON(1K/3階) | |||||||
![]() | 6.8万円 3,000円 | 3.4万円 10.2万円 | 1K 20.43m2 | 築10年 | 東京地下鉄千代田線 綾瀬駅 徒歩7分 つくばエクスプレス 青井駅 徒歩22分 東京都足立区東綾瀬1丁目 | 詳細を見る | |
マンション S-FORT錦糸町(1K/8階) | |||||||
![]() | 8.5万円 8,000円 | なし なし | 1K 20.18m2 | 築34年 | 京成電鉄押上線 押上駅 徒歩9分 東京地下鉄半蔵門線 錦糸町駅 徒歩9分 総武・中央緩行線 錦糸町駅 徒歩9分 東京都墨田区横川4丁目 | 詳細を見る | |
マンション プレール・ドゥーク本所吾妻橋Ⅵ(1SK/3階) | |||||||
![]() | 10.7万円 1万円 | なし 10.7万円 | 1SK 25.59m2 | 築4年 | 東京都浅草線 本所吾妻橋駅 徒歩5分 東京地下鉄銀座線 浅草駅(東武・都営・メトロ) 徒歩7分 東京都墨田区東駒形2丁目 | 詳細を見る | |
マンション ドゥーエ向島(1K/2階) | |||||||
![]() | 10.5万円 5,000円 | 10.5万円 10.5万円 | 1K 26.64m2 | 築11年 | 京成電鉄押上線 押上駅 徒歩9分 東武伊勢崎・大師線 曳舟駅 徒歩10分 東京都墨田区向島5丁目 | 詳細を見る | |








