賃貸マンション
クレアーレ豊玉中の賃貸物件情報(2LDK/5階)
| 家賃 | 管理費等 | 敷金 | 礼金 | 間取り | 専有面積 |
|---|---|---|---|---|---|
| 25.1万円 | 1.5万円 | 25.1万円 | 25.1万円 | 2LDK | 77.88m2 |
入居決定でお祝い金最大100,000円
- 保証金
- -
- 償却・敷引
- -
- 築年数
- 築3年
- 所在階
- 5階
- 向き
- 北東
Point
西武鉄道「練馬」駅徒歩10分のハワイの空気感を感じる新築物件です!インターネット無料・オートロック付きで安心してお住まい頂けます!
提供:(株)FROM(SUUMO経由)

詳細情報 クレアーレ豊玉中
物件紹介
クレアーレ豊玉中は西武池袋線練馬駅から徒歩10分にあり、駅近で通勤通学に便利なマンションです。
このお部屋は2階以上に位置しているので、通行人や周囲の住人からの視線が気になりにくく、防犯面でも安心。建物のエントランスはオートロックがついており、インターホンにはTVモニタもついているため、相手の顔を確認してから来客対応することができます。
おしゃれなデザイナーズ物件!人気の角部屋で周囲の居住者の生活音も気になりにくく、また、フローリングのお部屋なのでお掃除もラクラク。室内にはウォークインクローゼットがありますので、たくさんの荷物も効率的に収納ができます。キッチンはシステムキッチン仕様になっていますので、お料理好きの方にもぴったり。バス・トイレは別なので、のんびりお風呂タイムも楽しめるでしょう。また、雨の日でも浴室乾燥機を使えば、お洗濯も問題ありません。
通信設備面では、インターネットが無料で使えるので、月々の出費を抑えられるのも魅力です(別途工事等が必要な場合あり)。
建物にはエレベーターがついているので、重い荷物があっても安心。共用部には宅配ボックスが設定されているので、不在の時にも荷物を受け取ることができます。また、ペット飼育の相談ができますので、あなたの大切な家族の一員も快適に暮らせるか、ぜひ確認してみてください。
このお部屋は2階以上に位置しているので、通行人や周囲の住人からの視線が気になりにくく、防犯面でも安心。建物のエントランスはオートロックがついており、インターホンにはTVモニタもついているため、相手の顔を確認してから来客対応することができます。
おしゃれなデザイナーズ物件!人気の角部屋で周囲の居住者の生活音も気になりにくく、また、フローリングのお部屋なのでお掃除もラクラク。室内にはウォークインクローゼットがありますので、たくさんの荷物も効率的に収納ができます。キッチンはシステムキッチン仕様になっていますので、お料理好きの方にもぴったり。バス・トイレは別なので、のんびりお風呂タイムも楽しめるでしょう。また、雨の日でも浴室乾燥機を使えば、お洗濯も問題ありません。
通信設備面では、インターネットが無料で使えるので、月々の出費を抑えられるのも魅力です(別途工事等が必要な場合あり)。
建物にはエレベーターがついているので、重い荷物があっても安心。共用部には宅配ボックスが設定されているので、不在の時にも荷物を受け取ることができます。また、ペット飼育の相談ができますので、あなたの大切な家族の一員も快適に暮らせるか、ぜひ確認してみてください。
お金・契約の情報
※「-」と表示されているものは、実際は料金が発生するものもございます。詳細はお問い合わせください。
| 家賃 | 25.1万円 | 管理費・共益費 | 1.5万円 |
|---|---|---|---|
| 敷金 | 25.1万円 | 礼金 | 25.1万円 |
| 入居決定でお祝い金最大100,000円 | |||
| 保証金 | - | 償却・敷引 | - |
| 住宅保険料 | - | 更新料 | - |
| 保証会社利用 | 必須 | 保証会社名 | - |
| 保証会社費用 | - | 保証会社備考 | 保証会社利用必 エルズサポート株式会社 初年度:総賃料の80% 2年目以降:15000円/年 |
| 契約形態 | - | 契約期間 | - |
| 入居・引渡期間 | - | 現況 | - |
| 入居可能条件 | ペット相談 | ||
| 契約備考 | 巡回管理/・駐輪場あり(220~330円(税込)/月 ※要空き状況確認)・退去時、ルームクリーニング費用及びエアコンクリーニング費用が掛かります。※使用状況により別途原状回復費用が掛かります。・別途町会費等が掛かる場合がございます。・小型犬1匹まで飼育可(ペット飼育の場合敷金2ヶ月うち1ヶ月償却) 合計4.07万円(内訳:安心サポート料:13200円(税込)/2年 鍵交換費用:27500円(税込)) 2LDK 二人入居可/子供不可/ペット相談/事務所利用不可/ルームシェア不可 普通借家2年 損保【2.5万円2年】 バストイレ別、バルコニー、エアコン、クロゼット、フローリング、TVインターホン、浴室乾燥機、オートロック、室内洗濯置、シューズボックス、システムキッチン、追焚機能浴室、角住戸、温水洗浄便座、脱衣所、エレベーター、洗面所独立、洗面化粧台、駐輪場、宅配ボックス、3口以上コンロ、防犯カメラ、ペット相談、グリル付、全居室洋室、ウォークインクロゼット、敷金1ヶ月、全居室フローリング、デザイナーズ、LDK15畳以上、ディンプルキー、メゾネット、ネット使用料不要、築3年以内、駅徒歩10分以内、敷地内ごみ置き場、築5年以内、当社管理物件、セキュリティ会社加入済、都市ガス、タンクレストイレ、礼金1ヶ月 入居日:'26年4月下旬 | ||
部屋の情報
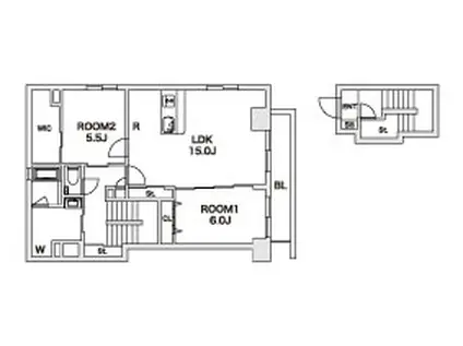
| 間取り | 2LDK | 専有面積 | 77.88m2 |
|---|---|---|---|
| 所在階 / 向き | 5階 / 北東 | バルコニー面積 | - |
| 水道 / ガス | - | ||
| 設備 | バス・トイレ別、2階以上、オートロック、テレビドアホン、宅配ボックス、浴室乾燥機、ウォークインクローゼット、追い焚き、インターネット対応、システムキッチン、エアコン、エレベーター、温水洗浄便座、角部屋、バルコニー、フローリング、洗髪洗面化粧台、2口コンロ、デザイナーズ、インターネット使用料無料、洗濯機:室内 | ||
| 当社物件ID | 135512114 | ||
建物の情報
| 建物名 | クレアーレ豊玉中 | ||
|---|---|---|---|
| 所在地 | 東京都練馬区豊玉中 | ||
| 交通 | 西武池袋線 練馬駅 徒歩10分 西武池袋線 桜台駅(東京) 徒歩13分 都営大江戸線 新江古田駅 徒歩16分 | ||
| 階数 | 6階建 | 総戸数 | - |
| 築年月 | 2023年07月 / 築3年 | エレベーター | あり |
| 駐車場 | なし | バイク置き場 | - |
| 駐輪場 | あり | 管理人/管理会社 | - |
| 周辺環境 | その他 東武ストア練馬豊玉店(スーパー)まで580m その他 まいばすけっと練馬豊玉中1丁目店(スーパー)まで524m その他 ローソン練馬豊中通店(コンビニ)まで122m その他 セブンイレブン練馬豊玉中2丁目店(コンビニ)まで139m その他 スギ薬局練馬豊玉北店(ドラッグストア)まで475m その他 コーナンPRO WORK&TOOLドイト豊玉中店(ホームセンター)まで339m | ||
| 建物種別 | マンション | 建物構造 | RC(鉄筋コンクリート) |
この部屋の取扱い不動産会社
| 会社名 | (株)FROM(SUUMO経由) | ||
|---|---|---|---|
| 所在地 | 東京都世田谷区三軒茶屋1-37-8 ワコーレ三軒茶屋64ビル9階 | 交通 | - |
| 営業時間 | 9:30~18:30 | 定休日 | 水曜日・日曜日 |
| 免許番号 | 国土交通大臣10377 | 取引態様 | 仲介 |
| 不動産会社管理番号 | 100330274595 | 当社管理番号 | 89 |
| 所属団体 | (公社)東京都宅地建物取引業協会会員 | ||
| 公正取引協議会 | (公社)首都圏不動産公正取引協議会加盟 | ||
| 取扱い物件情報 | 物件詳細へ | ||
※各種情報と現状に差異がある場合は、現状優先となります。問い合わせをすることで、より詳しい条件、情報を確認する事ができます。
提供:(株)FROM(SUUMO経由)
この物件が気になったら掲載期限まであと9日
クレアーレ豊玉中に条件(家賃・エリア)が近い物件一覧
| 写真 | 家賃 管理費等 | 敷金 礼金 | 間取り 専有面積 | 築年数 | 最寄り駅 所在地 | キープ | 詳細 |
|---|---|---|---|---|---|---|---|
マンション ALTERNA東池袋(2K/5階) | |||||||
![]() | 15.2万円 1万円 | なし なし | 2K 25.74m2 | 築4年 | 東京メトロ有楽町線 東池袋駅 徒歩3分 都電荒川線 都電雑司ケ谷駅 徒歩4分 JR山手線 池袋駅 徒歩7分 東京都豊島区南池袋 | 詳細を見る | |
アパート 高野台三丁目戸建(3LDK/1階) | |||||||
![]() | 25.8万円 なし | 25.8万円 38.7万円 | 3LDK 87.15m2 | 築1年 | 西武池袋線 石神井公園駅 徒歩9分 西武池袋線 練馬高野台駅 徒歩11分 東京都練馬区高野台 | 詳細を見る | |
マンション グランヴェール中村橋(3LDK/5階) | |||||||
![]() | 18万円 なし | 18万円 18万円 | 3LDK 76.05m2 | 築33年 | 西武池袋線 富士見台駅 徒歩8分 西武池袋線 中村橋駅 徒歩10分 都営大江戸線 豊島園駅 徒歩26分 東京都練馬区貫井 | 詳細を見る | |
マンション ザ・パークハビオ江古田(1LDK/11階) | |||||||
![]() | 19.1万円 2万円 | 19.1万円 なし | 1LDK 41.3m2 | 築1年 | 西武池袋線 江古田駅 徒歩2分 都営大江戸線 新江古田駅 徒歩6分 西武有楽町線 新桜台駅 徒歩9分 東京都練馬区旭丘 | 詳細を見る | |
マンション コディア八幡山(2LDK/6階) | |||||||
![]() | 22.5万円 1万円 | 22.5万円 22.5万円 | 2LDK 54.05m2 | 築10年 | 京王線 八幡山駅 徒歩6分 京王線 芦花公園駅 徒歩8分 東京都杉並区上高井戸 | 詳細を見る | |
マンション テラス杉並方南町(1LDK/3階) | |||||||
![]() | 16.8万円 1.5万円 | 16.8万円 なし | 1LDK 36.4m2 | 築2年 | 東京メトロ丸ノ内線 方南町駅 徒歩6分 東京メトロ丸ノ内線 中野富士見町駅 徒歩18分 東京メトロ丸ノ内線 東高円寺駅 徒歩19分 東京都杉並区堀ノ内 | 詳細を見る | |
アパート セレスティア小茂根(2LDK/3階) | |||||||
![]() | 17.5万円 5,000円 | なし 35万円 | 2LDK 48.13m2 | 新築 | 東京メトロ有楽町線 小竹向原駅 徒歩13分 東京メトロ副都心線 小竹向原駅 徒歩13分 東武東上線 ときわ台駅(東京) 徒歩18分 東京都板橋区小茂根 | 詳細を見る | |
マンション メインステージ浮間舟渡(2LDK/3階) | |||||||
![]() | 17.35万円 1.5万円 | なし 17.35万円 | 2LDK 48.35m2 | 築1年 | 埼京線 浮間舟渡駅 徒歩9分 東京都三田線 蓮根駅 徒歩17分 東京都板橋区舟渡3丁目 | 詳細を見る | |









