賃貸マンション
アプリーレ上野毛の賃貸物件情報(2LDK/5階)
| 家賃 | 管理費等 | 敷金 | 礼金 | 間取り | 専有面積 |
|---|---|---|---|---|---|
| 26.2万円 | 1.1万円 | 26.2万円 | 26.2万円 | 2LDK | 61.6m2 |
入居決定でお祝い金最大100,000円
- 保証金
- -
- 償却・敷引
- -
- 築年数
- 築6年
- 所在階
- 5階
- 向き
- 南東
Point
日々の暮らしをもっとおしゃれに快適に!!洗練された心地良いお部屋を提案★インスタでも情報配信中『3ku_miraie』で検索してください★お問合せお待ちしております★
提供:3区miraie(株)フェイスネットワーク(SUUMO経由)

詳細情報 アプリーレ上野毛
物件紹介
アプリーレ上野毛は東急大井町線上野毛駅から徒歩8分にあり、駅近で通勤通学に便利なマンションです。
このお部屋は2階以上に位置しているので、通行人や周囲の住人からの視線が気になりにくく、防犯面でも安心。建物のエントランスはオートロックがついており、インターホンにはTVモニタもついているため、相手の顔を確認してから来客対応することができます。
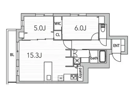
人気の南向き・フローリングのお部屋。角部屋でもあるため、周囲の居住者の生活音も気になりにくい場所です。室内にはウォークインクローゼットがありますので、たくさんの荷物も効率的に収納ができます。キッチンはシステムキッチン仕様になっていますので、お料理好きの方にもぴったり。バス・トイレは別なので、のんびりお風呂タイムも楽しめるでしょう。また、雨の日でも浴室乾燥機を使えば、お洗濯も問題ありません。
通信設備面では、インターネットが無料で使えるので、月々の出費を抑えられるのも魅力です。また、BSアンテナ・CSアンテナもありますので、おうち時間も充実するでしょう(別途工事、BS・CSの契約料等が必要な場合あり)。
建物にはエレベーターがついているので、重い荷物があっても安心。共用部には宅配ボックスが設定されているので、不在の時にも荷物を受け取ることができます。また、ペット飼育の相談ができますので、あなたの大切な家族の一員も快適に暮らせるか、ぜひ確認してみてください。
このお部屋は2階以上に位置しているので、通行人や周囲の住人からの視線が気になりにくく、防犯面でも安心。建物のエントランスはオートロックがついており、インターホンにはTVモニタもついているため、相手の顔を確認してから来客対応することができます。
人気の南向き・フローリングのお部屋。角部屋でもあるため、周囲の居住者の生活音も気になりにくい場所です。室内にはウォークインクローゼットがありますので、たくさんの荷物も効率的に収納ができます。キッチンはシステムキッチン仕様になっていますので、お料理好きの方にもぴったり。バス・トイレは別なので、のんびりお風呂タイムも楽しめるでしょう。また、雨の日でも浴室乾燥機を使えば、お洗濯も問題ありません。
通信設備面では、インターネットが無料で使えるので、月々の出費を抑えられるのも魅力です。また、BSアンテナ・CSアンテナもありますので、おうち時間も充実するでしょう(別途工事、BS・CSの契約料等が必要な場合あり)。
建物にはエレベーターがついているので、重い荷物があっても安心。共用部には宅配ボックスが設定されているので、不在の時にも荷物を受け取ることができます。また、ペット飼育の相談ができますので、あなたの大切な家族の一員も快適に暮らせるか、ぜひ確認してみてください。
お金・契約の情報
※「-」と表示されているものは、実際は料金が発生するものもございます。詳細はお問い合わせください。
| 家賃 | 26.2万円 | 管理費・共益費 | 1.1万円 |
|---|---|---|---|
| 敷金 | 26.2万円 | 礼金 | 26.2万円 |
| 入居決定でお祝い金最大100,000円 | |||
| 保証金 | - | 償却・敷引 | - |
| 住宅保険料 | - | 更新料 | - |
| 保証会社利用 | 必須 | 保証会社名 | - |
| 保証会社費用 | - | 保証会社備考 | 保証会社利用必 エルズサポート 初回保証料:総賃料の50%/年間保証料12000円 |
| 契約形態 | - | 契約期間 | - |
| 入居・引渡期間 | 相談 | 現況 | - |
| 入居可能条件 | ペット相談 | ||
| 契約備考 | ※更新事務手数料:新賃料の0.275ヶ月(税込) 合計2.42万円(内訳:鍵交換代 24200円税込) ノズル交換費 2970円/退去時 エアコンクリーニング費用 1台 13200円/退去時 ハウスクリーニング 101200円/退去時 更新料 1ヶ月 2LDK 二人入居可/ペット相談 普通借家2年 損保【2.3万円2年】 バストイレ別、バルコニー、エアコン、ガスコンロ対応、フローリング、TVインターホン、浴室乾燥機、オートロック、室内洗濯置、陽当り良好、シューズボックス、システムキッチン、追焚機能浴室、角住戸、温水洗浄便座、エレベーター、洗面所独立、駐輪場、宅配ボックス、最上階、BS・CS、3口以上コンロ、対面式キッチン、防犯カメラ、ペット相談、照明付、グリル付、ウォークインクロゼット、東南角住戸、仲介手数料不要、敷金1ヶ月、二人入居相談、2沿線利用可、LDK15畳以上、ディンプルキー、CS、ネット使用料不要、24時間換気システム、3駅以上利用可、駅徒歩10分以内、24時間ゴミ出し可、敷地内ごみ置き場、東南向き、都市ガス、BS、礼金1ヶ月 敷金積み増し【ペット飼育の場合敷金2ヶ月(総額)】 | ||
部屋の情報
| 間取り | 2LDK | 専有面積 | 61.6m2 |
|---|---|---|---|
| 所在階 / 向き | 5階 / 南東 | バルコニー面積 | 5m2 |
| 水道 / ガス | - | ||
| 設備 | バス・トイレ別、2階以上、オートロック、テレビドアホン、宅配ボックス、浴室乾燥機、ウォークインクローゼット、追い焚き、インターネット対応、システムキッチン、エアコン、エレベーター、温水洗浄便座、南向き、角部屋、バルコニー、フローリング、洗髪洗面化粧台、2口コンロ、コンロ:ガス、CSアンテナ、BSアンテナ、インターネット使用料無料、洗濯機:室内 | ||
| 当社物件ID | 150901773 | ||
建物の情報
| 建物名 | アプリーレ上野毛 | ||
|---|---|---|---|
| 所在地 | 東京都世田谷区瀬田 | ||
| 交通 | 東急大井町線 上野毛駅 徒歩8分 東急大井町線 二子玉川駅 徒歩15分 東急田園都市線 用賀駅 徒歩17分 | ||
| 階数 | 5階建 | 総戸数 | - |
| 築年月 | 2020年06月 / 築6年 | エレベーター | あり |
| 駐車場 | なし | バイク置き場 | - |
| 駐輪場 | あり | 管理人/管理会社 | - |
| 建物種別 | マンション | 建物構造 | RC(鉄筋コンクリート) |
この部屋の取扱い不動産会社
| 会社名 | 3区miraie(株)フェイスネットワーク(SUUMO経由) | ||
|---|---|---|---|
| 所在地 | 東京都渋谷区千駄ヶ谷4-23-5 プライム千駄ヶ谷ビル3階 | 交通 | - |
| 営業時間 | 9時~18時 | 定休日 | 毎週水曜日 |
| 免許番号 | 東京都知事80509 | 取引態様 | 貸主 |
| 不動産会社管理番号 | 100479265419 | 当社管理番号 | 89 |
| 所属団体 | (公社)全日本不動産協会東京都本部会員 | ||
| 公正取引協議会 | (公社)首都圏不動産公正取引協議会加盟 | ||
| 取扱い物件情報 | 物件詳細へ | ||
※各種情報と現状に差異がある場合は、現状優先となります。問い合わせをすることで、より詳しい条件、情報を確認する事ができます。
提供:3区miraie(株)フェイスネットワーク(SUUMO経由)
この物件が気になったら掲載期限まであと10日
アプリーレ上野毛に条件(家賃・エリア)が近い物件一覧
| 写真 | 家賃 管理費等 | 敷金 礼金 | 間取り 専有面積 | 築年数 | 最寄り駅 所在地 | キープ | 詳細 |
|---|---|---|---|---|---|---|---|
マンション スプリングスクエア永福(2LDK/3階) | |||||||
![]() | 36.5万円 1.5万円 | 73万円 36.5万円 | 2LDK 56.13m2 | 築1年 | 京王井の頭線 永福町駅 徒歩7分 京王線 明大前駅 徒歩11分 東京都杉並区和泉 | 詳細を見る | |
アパート CORE EENA(2LDK/2階) | |||||||
![]() | 22万円 なし | 22万円 22万円 | 2LDK 65.89m2 | 築3年 | JR中央線 高円寺駅 徒歩5分 東京メトロ丸ノ内線 新高円寺駅 徒歩7分 東京メトロ丸ノ内線 東高円寺駅 徒歩14分 東京都杉並区高円寺南 | 詳細を見る | |
マンション ラ カーサドルチェ(1LDK/2階) | |||||||
![]() | 17.3万円 5,000円 | 17.3万円 17.3万円 | 1LDK 44.82m2 | 新築 | 京王電鉄京王線 代田橋駅 徒歩7分 東京都世田谷区羽根木2丁目 | 詳細を見る | |
マンション RILY BLANCHEUR(2LDK/1階) | |||||||
![]() | 21.5万円 5,000円 | なし 21.5万円 | 2LDK 47.99m2 | 築1年 | 小田急線 祖師ケ谷大蔵駅 徒歩3分 小田急線 成城学園前駅 徒歩12分 小田急線 千歳船橋駅 徒歩22分 東京都世田谷区砧 | 詳細を見る | |
マンション BPRレジデンス下高井戸(1LDK/7階) | |||||||
![]() | 17.7万円 1.2万円 | 17.7万円 17.7万円 | 1LDK 42.66m2 | 築7年 | 京王電鉄京王線 下高井戸駅 徒歩5分 東京都杉並区下高井戸2丁目 | 詳細を見る | |
マンション ドゥーエ西馬込(2LDK/6階) | |||||||
![]() | 22.8万円 1.2万円 | 22.8万円 なし | 2LDK 54.96m2 | 築7年 | 都営浅草線 西馬込駅 徒歩8分 東京都大田区中馬込 | 詳細を見る | |
マンション NIDO SAKURAGAOKA(2LDK/4階) | |||||||
![]() | 26.3万円 2万円 | なし なし | 2LDK 56.13m2 | 築1年 | 小田急電鉄小田原線 千歳船橋駅 徒歩7分 小田急電鉄小田原線 祖師ケ谷大蔵駅 徒歩13分 東京都世田谷区桜丘5丁目 | 詳細を見る | |
マンション コンポジット経堂(1LDK/3階) | |||||||
![]() | 16.5万円 1.5万円 | 33万円 なし | 1LDK 41.17m2 | 築2年 | 小田急線 経堂駅 徒歩9分 小田急線 千歳船橋駅 徒歩12分 東急世田谷線 宮の坂駅 徒歩15分 東京都世田谷区経堂 | 詳細を見る | |




/105x80-f1-q70-wp1)




