賃貸マンション
広いロフトのお部屋 フレアドーム代々木の賃貸物件情報(1LDK/3階)
| 家賃 | 管理費等 | 敷金 | 礼金 | 間取り | 専有面積 |
|---|---|---|---|---|---|
| 14万円 | 3,000円 | 14万円 | 14万円 | 1LDK | 38.42m2 |
入居決定でお祝い金最大100,000円
- 保証金
- -
- 償却・敷引
- -
- 築年数
- 築24年
- 所在階
- 3階
- 向き
- 東
Point
最上階で眺望、日当たり、通風も良し♪ロフトにもエアコンあります!!
提供:(株)ザイケンホームセンター(SUUMO経由)

詳細情報 広いロフトのお部屋 フレアドーム代々木
物件紹介
広いロフトのお部屋 フレアドーム代々木は京王新線初台駅から徒歩7分にあり、駅近で通勤通学に便利なマンションです。
このお部屋は2階以上に位置しているので、通行人や周囲の住人からの視線が気になりにくく、防犯面でも安心。建物のエントランスはオートロックがついており、インターホンにはTVモニタもついているため、相手の顔を確認してから来客対応することができます。
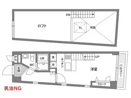
おしゃれなデザイナーズ物件!フローリングのお部屋なのでお掃除もラクラク。室内には多目的に利用できる人気のロフトもあり、お部屋のアレンジも自在です。キッチンはシステムキッチン仕様になっていますので、お料理好きの方にもぴったり。バス・トイレは別なので、のんびりお風呂タイムも楽しめるでしょう。また、雨の日でも浴室乾燥機を使えば、お洗濯も問題ありません。
このお部屋は2階以上に位置しているので、通行人や周囲の住人からの視線が気になりにくく、防犯面でも安心。建物のエントランスはオートロックがついており、インターホンにはTVモニタもついているため、相手の顔を確認してから来客対応することができます。
おしゃれなデザイナーズ物件!フローリングのお部屋なのでお掃除もラクラク。室内には多目的に利用できる人気のロフトもあり、お部屋のアレンジも自在です。キッチンはシステムキッチン仕様になっていますので、お料理好きの方にもぴったり。バス・トイレは別なので、のんびりお風呂タイムも楽しめるでしょう。また、雨の日でも浴室乾燥機を使えば、お洗濯も問題ありません。
お金・契約の情報
※「-」と表示されているものは、実際は料金が発生するものもございます。詳細はお問い合わせください。
| 家賃 | 14万円 | 管理費・共益費 | 3,000円 |
|---|---|---|---|
| 敷金 | 14万円 | 礼金 | 14万円 |
| 入居決定でお祝い金最大100,000円 | |||
| 保証金 | - | 償却・敷引 | - |
| 住宅保険料 | - | 更新料 | - |
| 保証会社利用 | 利用可 | 保証会社名 | - |
| 保証会社費用 | - | 保証会社備考 | 保証会社利用可 詳細はお問い合わせください。 |
| 契約形態 | - | 契約期間 | - |
| 入居・引渡期間 | 相談 | 現況 | - |
| 契約備考 | 合計1.98万円(内訳:鍵交換費用(任意)交換の場合は19800円) 退去時クリーニング費用 66000円 1LDK 普通借家2年 損保【1.8万円2年】 バストイレ別、バルコニー、エアコン、ガスコンロ対応、クロゼット、フローリング、TVインターホン、浴室乾燥機、オートロック、室内洗濯置、陽当り良好、システムキッチン、洗面所独立、洗面化粧台、2口コンロ、駐輪場、最上階、対面式キッチン、ロフト、グリル付、敷金1ヶ月、全居室フローリング、デザイナーズ、眺望良好、外壁コンクリート、2駅利用可、駅徒歩10分以内、上階無し、敷地内ごみ置き場、都市ガス、礼金1ヶ月、初期費用カード決済可、通風良好 | ||
部屋の情報
| 間取り | 1LDK | 専有面積 | 38.42m2 |
|---|---|---|---|
| 所在階 / 向き | 3階 / 東 | バルコニー面積 | - |
| 水道 / ガス | - | ||
| 設備 | バス・トイレ別、2階以上、オートロック、テレビドアホン、浴室乾燥機、システムキッチン、エアコン、バルコニー、フローリング、ロフトあり、洗髪洗面化粧台、2口コンロ、コンロ:ガス、デザイナーズ、洗濯機:室内 | ||
| 当社物件ID | 160515223 | ||
建物の情報
| 建物名 | 広いロフトのお部屋 フレアドーム代々木 | ||
|---|---|---|---|
| 所在地 | 東京都渋谷区初台 | ||
| 交通 | 京王新線 初台駅 徒歩7分 京王新線 幡ケ谷駅 徒歩8分 小田急線 参宮橋駅 徒歩13分 | ||
| 階数 | 3階建 | 総戸数 | - |
| 築年月 | 2003年01月 / 築24年 | エレベーター | - |
| 駐車場 | なし | バイク置き場 | - |
| 駐輪場 | あり | 管理人/管理会社 | - |
| 周辺環境 | その他 まいばすけっと初台駅西店(スーパー)まで588m その他 オーケー初台店(スーパー)まで584m その他 ローソンJPローソン代々木局店(コンビニ)まで313m その他 ファミリーマート渋谷本町一丁目店(コンビニ)まで423m その他 代々木郵便局(郵便局)まで338m その他 代々木警察署(警察署・交番)まで466m | ||
| 建物種別 | マンション | 建物構造 | RC(鉄筋コンクリート) |
この部屋の取扱い不動産会社
| 会社名 | (株)ザイケンホームセンター(SUUMO経由) | ||
|---|---|---|---|
| 所在地 | 東京都渋谷区本町1-2-4 | 交通 | - |
| 営業時間 | 10:00~19:00 | 定休日 | 年中無休 |
| 免許番号 | 東京都知事85199 | 取引態様 | 仲介 |
| 不動産会社管理番号 | 100492160386 | 当社管理番号 | 89 |
| 所属団体 | (公社)全日本不動産協会東京都本部会員 | ||
| 公正取引協議会 | (公社)首都圏不動産公正取引協議会加盟 | ||
| 取扱い物件情報 | 物件詳細へ | ||
※各種情報と現状に差異がある場合は、現状優先となります。問い合わせをすることで、より詳しい条件、情報を確認する事ができます。
提供:(株)ザイケンホームセンター(SUUMO経由)
この物件が気になったら掲載期限まであと12日
広いロフトのお部屋 フレアドーム代々木に条件(家賃・エリア)が近い物件一覧
| 写真 | 家賃 管理費等 | 敷金 礼金 | 間取り 専有面積 | 築年数 | 最寄り駅 所在地 | キープ | 詳細 |
|---|---|---|---|---|---|---|---|
マンション スカイコートヴァンテアン早稲田(1K/10階) | |||||||
![]() | 8.8万円 1万円 | なし 8.8万円 | 1K 21.34m2 | 築25年 | 東京メトロ副都心線 西早稲田駅 徒歩3分 西武新宿線 高田馬場駅 徒歩9分 JR山手線 目白駅 徒歩18分 東京都新宿区西早稲田 | 詳細を見る | |
マンション クレイシア新宿中落合(1K/8階) | |||||||
![]() | 9.95万円 1.5万円 | 9.95万円 9.95万円 | 1K 25.61m2 | 築6年 | 西武新宿線 下落合駅(東京) 徒歩9分 西武池袋線 椎名町駅 徒歩9分 都営大江戸線 落合南長崎駅 徒歩11分 東京都新宿区中落合 | 詳細を見る | |
マンション FUU OIMACHI BY LATIERRA(1K/9階) | |||||||
![]() | 13万円 2万円 | 13万円 なし | 1K 20.72m2 | 築1年 | JR京浜東北線 大井町駅 徒歩7分 東急大井町線 大井町駅 徒歩8分 東急大井町線 下神明駅 徒歩10分 東京都品川区大井 | 詳細を見る | |
アパート BHテラス江古田(1LDK/2階) | |||||||
![]() | 12万円 5,000円 | なし なし | 1LDK 40.13m2 | 築11年 | 都営大江戸線 新江古田駅 徒歩13分 都営大江戸線 落合南長崎駅 徒歩14分 西武池袋線 東長崎駅 徒歩15分 東京都中野区江古田 | 詳細を見る | |
マンション N マンソンオウロ(1LDK/3階) | |||||||
![]() | 13.5万円 なし | 13.5万円 13.5万円 | 1LDK 37.8m2 | 築56年 | 東急目黒線 武蔵小山駅 徒歩8分 東急目黒線 不動前駅 徒歩8分 東急池上線 戸越銀座駅 徒歩13分 東京都品川区小山 | 詳細を見る | |
マンション RENARD(1DK/1階) | |||||||
![]() | 17万円 8,000円 | 17万円 28.9万円 | 1DK 40.62m2 | 築4年 | 京王線 笹塚駅 徒歩6分 京王新線 幡ケ谷駅 徒歩11分 小田急線 東北沢駅 徒歩11分 東京都渋谷区笹塚 | 詳細を見る | |
マンション フルール アベニール(1LDK/1階) | |||||||
![]() | 19.9万円 1万円 | なし 39.8万円 | 1LDK 46.05m2 | 新築 | JR山手線 高田馬場駅 徒歩6分 東京メトロ副都心線 西早稲田駅 徒歩14分 JR山手線 新大久保駅 徒歩17分 東京都新宿区高田馬場 | 詳細を見る | |
マンション リヴシティ中野(1K/8階) | |||||||
![]() | 10.3万円 1万円 | なし 10.3万円 | 1K 20.74m2 | 築14年 | JR総武線 中野駅(東京) 徒歩9分 東京メトロ丸ノ内線 新中野駅 徒歩9分 都営大江戸線 中野坂上駅 徒歩15分 東京都中野区中野 | 詳細を見る | |









