賃貸アパート
近鉄京都線 興戸駅 徒歩13分 2階建 築7年の賃貸物件情報(2LDK/1階)
| 家賃 | 管理費等 | 敷金 | 礼金 | 間取り | 専有面積 |
|---|---|---|---|---|---|
| 9.5万円 | 4,600円 | なし | 15万円 | 2LDK | 53.24m2 |
入居決定でお祝い金最大100,000円
Point
京田辺市のファミリー お問い合わせは京都ライフ京田辺店まで
提供:株式会社 京都ライフ 小倉店(賃貸スモッカ経由)

詳細情報 近鉄京都線 興戸駅 徒歩13分 2階建 築7年
物件紹介
近鉄京都線興戸駅から徒歩13分にあるアパートです。
人気の南向きのお部屋。キッチンはシステムキッチン仕様になっていますので、お料理好きの方にもぴったり。バス・トイレは別なので、のんびりお風呂タイムも楽しめるでしょう。また、雨の日でも浴室乾燥機を使えば、お洗濯も問題ありません。
通信設備面ではBSアンテナがありますので、おうち時間も充実するでしょう(別途工事、契約料が必要な場合あり)。
共用部には宅配ボックスが設定されているので、不在の時にも荷物を受け取ることができます。
人気の南向きのお部屋。キッチンはシステムキッチン仕様になっていますので、お料理好きの方にもぴったり。バス・トイレは別なので、のんびりお風呂タイムも楽しめるでしょう。また、雨の日でも浴室乾燥機を使えば、お洗濯も問題ありません。
通信設備面ではBSアンテナがありますので、おうち時間も充実するでしょう(別途工事、契約料が必要な場合あり)。
共用部には宅配ボックスが設定されているので、不在の時にも荷物を受け取ることができます。
お金・契約の情報
※「-」と表示されているものは、実際は料金が発生するものもございます。詳細はお問い合わせください。
| 家賃 | 9.5万円 | 管理費・共益費 | 4,600円 |
|---|---|---|---|
| 敷金 | なし | 礼金 | 15万円 |
| 入居決定でお祝い金最大100,000円 | |||
| 保証金 | - | 償却・敷引 | - |
| 住宅保険料 | 住宅保険料あり | 更新料 | - |
| 契約形態 | - | 契約期間 | 2年 |
| 入居・引渡期間 | 2026年04月下旬 | 現況 | 賃貸中 |
| 契約備考 | 京田辺市ペット飼育可ファミリー。設備も充実で快適にお過ごし頂けます。ネットも無料です。お問い合わせは京都ライフ京田辺店まで。 害虫駆除費:22,000円 町会費:400円 24時間サポート費用:330円 更新料:無し 保証会社:利用必須 初回:2.5万円、月額:保証料として月額賃料等の3%(ハウスクリーニング代退去時支払いの場合、月額保証料は総賃料の5.5%) その他設備/条件:1階の物件、コンロ2口以上、独立洗面台、TVドアホン | ||
部屋の情報
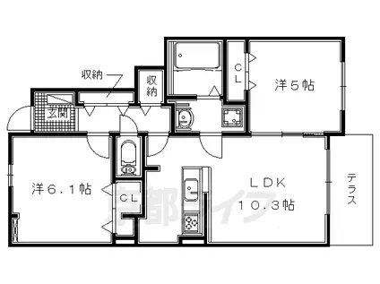
| 間取り | 2LDK | 専有面積 | 53.24m2 |
|---|---|---|---|
| 間取り詳細 | 洋室(6.1帖)、洋室(5帖)、LDK(10.3帖) | ||
| 所在階 / 向き | 1階 / 南 | バルコニー面積 | - |
| 水道 / ガス | ガス【都市】 | ||
| 設備 | バス・トイレ別、宅配ボックス、浴室乾燥機、追い焚き、システムキッチン、カウンターキッチン、エアコン、温水洗浄便座、南向き、バルコニー、床下収納、コンロ:ガス、BSアンテナ、洗濯機:室内 | ||
| 当社物件ID | 160471007 | ||
建物の情報
| 建物名 | 近鉄京都線 興戸駅 徒歩13分 2階建 築7年 | ||
|---|---|---|---|
| 所在地 | 京都府京田辺市 | ||
| 交通 | 近鉄京都線 興戸駅 徒歩13分 片町線 同志社前駅 徒歩18分 | ||
| 階数 | 2階建 | 総戸数 | - |
| 築年月 | 2020年03月 / 築7年 | エレベーター | - |
| 駐車場 | - | バイク置き場 | - |
| 駐輪場 | あり | 管理人/管理会社 | - |
| 建物種別 | アパート | 建物構造 | 木造 |
この部屋の取扱い不動産会社
| 会社名 | 株式会社 京都ライフ 小倉店(賃貸スモッカ経由) | ||
|---|---|---|---|
| 所在地 | 宇治市小倉町神楽田21-5 | 交通 | - |
| 営業時間 | - | 定休日 | - |
| 免許番号 | 京都府知事(11)第6353号 | 取引態様 | 仲介 |
| 不動産会社管理番号 | kyotolife_0562C-102-11 | 当社管理番号 | 463 |
| 所属団体 | 京都府宅地建物取引業協会\n公益社団法人近畿地区不動産公正取引協議会 | ||
| 公正取引協議会 | 全国宅地建物取引業保証協会 | ||
| 取扱い物件情報 | 物件詳細へ | ||
※各種情報と現状に差異がある場合は、現状優先となります。問い合わせをすることで、より詳しい条件、情報を確認する事ができます。
提供:株式会社 京都ライフ 小倉店(賃貸スモッカ経由)
この物件が気になったら掲載期限まであと5日
近鉄京都線 興戸駅 徒歩13分 2階建 築7年に条件(家賃・エリア)が近い物件一覧
| 写真 | 家賃 管理費等 | 敷金 礼金 | 間取り 専有面積 | 築年数 | 最寄り駅 所在地 | キープ | 詳細 |
|---|---|---|---|---|---|---|---|
アパート 近鉄京都線 三山木駅 徒歩2分 築18年(1K/2階) | |||||||
![]() | 7.1万円 7,000円 | なし なし | 1K 26.08m2 | 築18年 | 近鉄京都線 三山木駅 徒歩2分 片町線 JR三山木駅 徒歩3分 京都府京田辺市 | 詳細を見る | |
アパート 京阪電気鉄道京阪線 橋本駅(京都) 徒歩2分 築11年(2LDK/2階) | |||||||
![]() | 9.4万円 8,500円 | なし 10万円 | 2LDK 53.67m2 | 築11年 | 京阪電気鉄道京阪線 橋本駅(京都) 徒歩2分 京阪電気鉄道京阪線 石清水八幡宮駅 徒歩19分 京都府八幡市橋本中ノ町 | 詳細を見る | |
アパート 奈良線 玉水駅 徒歩5分 築13年(1LDK/1階) | |||||||
![]() | 6万円 4,600円 | なし 6万円 | 1LDK 46.44m2 | 築13年 | 奈良線 玉水駅 徒歩5分 奈良線 山城多賀駅 徒歩27分 京都府綴喜郡井手町大字井手野畑 | 詳細を見る | |
マンション 近鉄京都線 久津川駅 徒歩8分 築31年(2LDK/2階) | |||||||
![]() | 6.7万円 3,000円 | なし 10万円 | 2LDK 52.9m2 | 築31年 | 近鉄京都線 久津川駅 徒歩8分 近鉄京都線 大久保駅(京都) 徒歩15分 京都府城陽市平川 | 詳細を見る | |
マンション アートプラザ京田辺2(1K/5階) | |||||||
![]() | 6.3万円 6,000円 | 5万円 なし | 1K 26.58m2 | 築8年 | 片町線 JR三山木駅 徒歩7分 近鉄京都線 三山木駅 徒歩9分 京都府京田辺市 | 詳細を見る | |
アパート 京阪電気鉄道京阪線 橋本駅(京都) 徒歩13分 築22年(1K/2階) | |||||||
![]() | 6.4万円 7,000円 | なし 6.4万円 | 1K 23.18m2 | 築22年 | 京阪電気鉄道京阪線 橋本駅(京都) 徒歩13分 京阪電気鉄道京阪線 石清水八幡宮駅 徒歩18分 京都府八幡市橋本西刈又 | 詳細を見る | |
マンション アーバンエース松井山手パル(3LDK/1階) | |||||||
![]() | 11.7万円 1.5万円 | なし 11.7万円 | 3LDK 88m2 | 築29年 | 片町線 松井山手駅 徒歩10分 片町線 長尾駅(大阪) 徒歩29分 京都府京田辺市山手南 | 詳細を見る | |
アパート BRIGHT VILLA(1LDK/1階) | |||||||
![]() | 7万円 4,000円 | なし 7万円 | 1LDK 37.53m2 | 築5年 | 京阪本線 淀駅 徒歩22分 京阪本線 石清水八幡宮駅 徒歩34分 京阪本線 橋本駅(京都) 徒歩53分 京都府八幡市八幡長町 | 詳細を見る | |









