賃貸マンション
メイクスデザイン両国サウスの賃貸物件情報(1K/2階)
| 家賃 | 管理費等 | 敷金 | 礼金 | 間取り | 専有面積 |
|---|---|---|---|---|---|
| 12万円 | 1万円 | 12万円 | なし | 1K | 26.2m2 |
入居決定でお祝い金最大100,000円
- 保証金
- -
- 償却・敷引
- -
- 築年数
- 築10年
- 所在階
- 2階
- 向き
- 南
Point
室内見学承ります・お客様のご都合に合わせてオンラインまたはお近くの店舗でご提案可・初期費用分割払い可・クレジットカード利用可・引越業者割引・初期費用のお見積や入居日のご相談もお気軽にお問合せください
提供:(株)リライフ浅草橋店(SUUMO経由)

詳細情報 メイクスデザイン両国サウス
物件紹介
メイクスデザイン両国サウスは都営大江戸線両国駅から徒歩11分にあるマンションです。
このお部屋は2階以上に位置しているので、通行人や周囲の住人からの視線が気になりにくく、防犯面でも安心。建物のエントランスはオートロックがついており、インターホンにはTVモニタもついているため、相手の顔を確認してから来客対応することができます。
おしゃれなデザイナーズ物件!人気の南向き・フローリングのお部屋。角部屋でもあるため、周囲の居住者の生活音も気になりにくい場所です。キッチンはシステムキッチン仕様になっていますので、お料理好きの方にもぴったり。バス・トイレは別なので、のんびりお風呂タイムも楽しめるでしょう。また、雨の日でも浴室乾燥機を使えば、お洗濯も問題ありません。
通信設備面では、インターネットが無料で使えるので、月々の出費を抑えられるのも魅力です。また、BSアンテナ・CSアンテナがありCATVにも対応しているので、おうち時間も充実するでしょう(別途工事、BS・CS・CATVの契約料等が必要な場合あり)。
建物にはエレベーターがついているので、重い荷物があっても安心。共用部には宅配ボックスが設定されているので、不在の時にも荷物を受け取ることができます。また、ペット飼育の相談ができますので、あなたの大切な家族の一員も快適に暮らせるか、ぜひ確認してみてください。
このお部屋は2階以上に位置しているので、通行人や周囲の住人からの視線が気になりにくく、防犯面でも安心。建物のエントランスはオートロックがついており、インターホンにはTVモニタもついているため、相手の顔を確認してから来客対応することができます。
おしゃれなデザイナーズ物件!人気の南向き・フローリングのお部屋。角部屋でもあるため、周囲の居住者の生活音も気になりにくい場所です。キッチンはシステムキッチン仕様になっていますので、お料理好きの方にもぴったり。バス・トイレは別なので、のんびりお風呂タイムも楽しめるでしょう。また、雨の日でも浴室乾燥機を使えば、お洗濯も問題ありません。
通信設備面では、インターネットが無料で使えるので、月々の出費を抑えられるのも魅力です。また、BSアンテナ・CSアンテナがありCATVにも対応しているので、おうち時間も充実するでしょう(別途工事、BS・CS・CATVの契約料等が必要な場合あり)。
建物にはエレベーターがついているので、重い荷物があっても安心。共用部には宅配ボックスが設定されているので、不在の時にも荷物を受け取ることができます。また、ペット飼育の相談ができますので、あなたの大切な家族の一員も快適に暮らせるか、ぜひ確認してみてください。
お金・契約の情報
※「-」と表示されているものは、実際は料金が発生するものもございます。詳細はお問い合わせください。
| 家賃 | 12万円 | 管理費・共益費 | 1万円 |
|---|---|---|---|
| 敷金 | 12万円 | 礼金 | なし |
| 入居決定でお祝い金最大100,000円 | |||
| 保証金 | - | 償却・敷引 | - |
| 住宅保険料 | - | 更新料 | - |
| 保証会社利用 | 必須 | 保証会社名 | - |
| 保証会社費用 | - | 保証会社備考 | 保証会社利用必 初回:月額総家賃の50%~ |
| 契約形態 | - | 契約期間 | - |
| 入居・引渡期間 | - | 現況 | - |
| 入居可能条件 | ペット相談 | ||
| 契約備考 | 当物件はオンラインまたはお近くの店舗でご相談お申込を承ります。リライフは首都圏23店舗のネットワークで豊富な物件情報をご提供いたします。当物件に類似した未公開物件のご提案も可能です。お気軽にお問い合わせください。違約金有:1年以内:賃料2ヶ月、2年以内:賃料1ヶ月 合計7.7万円(内訳:鍵交換代金3.3万円事務手数料(初回のみ)2.75万円緊急駆けつけサポート(初回のみ)1.65万円) 総合保険(月額)0.1万円 1K ペット相談 損保【要】 バストイレ別、バルコニー、エアコン、ガスコンロ対応、クロゼット、フローリング、シャワー付洗面台、TVインターホン、浴室乾燥機、オートロック、室内洗濯置、シューズボックス、システムキッチン、南向き、角住戸、温水洗浄便座、脱衣所、エレベーター、洗面所独立、2口コンロ、駐輪場、宅配ボックス、2面採光、防犯カメラ、ペット相談、分譲賃貸、保証人不要、バイク置場、デザイナーズ、ディンプルキー、ネット使用料不要、ダブルロックキー、24時間換気システム、耐震構造、3駅以上利用可、3沿線以上利用可、24時間ゴミ出し可、敷地内ごみ置き場、都市ガス、南面バルコニー、玄関収納、BS、LAN、保証会社利用可、初期費用カード決済可、通風良好 敷金積み増し【ペット飼育の場合敷金1ヶ月(総額)】 入居日:'26年6月中旬 | ||
部屋の情報
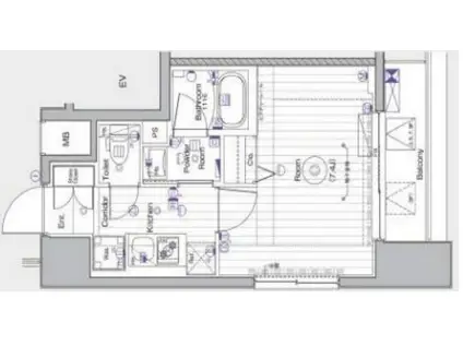
| 間取り | 1K | 専有面積 | 26.2m2 |
|---|---|---|---|
| 所在階 / 向き | 2階 / 南 | バルコニー面積 | - |
| 水道 / ガス | - | ||
| 設備 | バス・トイレ別、2階以上、オートロック、テレビドアホン、宅配ボックス、浴室乾燥機、インターネット対応、システムキッチン、エアコン、エレベーター、温水洗浄便座、南向き、角部屋、バルコニー、フローリング、洗髪洗面化粧台、2口コンロ、コンロ:ガス、デザイナーズ、BSアンテナ、インターネット使用料無料、洗濯機:室内 | ||
| 当社物件ID | 23898925 | ||
建物の情報
| 建物名 | メイクスデザイン両国サウス | ||
|---|---|---|---|
| 所在地 | 東京都墨田区石原 | ||
| 交通 | 都営大江戸線 両国駅 徒歩12分 JR総武線 錦糸町駅 徒歩13分 都営浅草線 本所吾妻橋駅 徒歩14分 | ||
| 階数 | 11階建 | 総戸数 | - |
| 築年月 | 2017年04月 / 築10年 | エレベーター | あり |
| 駐車場 | なし | バイク置き場 | あり |
| 駐輪場 | あり | 管理人/管理会社 | - |
| 周辺環境 | その他 三徳 石原店(スーパー)まで166m その他 まいばすけっと 亀沢4丁目店(スーパー)まで219m その他 セブンイレブン墨田石原店(コンビニ)まで121m その他 ローソン石原四丁目店(コンビニ)まで138m その他 どらっぐぱぱす 石原店(ドラッグストア)まで264m その他 ポニークリーニング亀沢4丁目店(その他)まで325m | ||
| 建物種別 | マンション | 建物構造 | RC(鉄筋コンクリート) |
この部屋の取扱い不動産会社
| 会社名 | (株)リライフ四谷店(SUUMO経由) | ||
|---|---|---|---|
| 所在地 | 東京都新宿区四谷1-3-23 | 交通 | - |
| 営業時間 | 10:00~18:30 | 定休日 | 火曜・水曜 |
| 免許番号 | 国土交通大臣10792 | 取引態様 | 仲介 |
| 不動産会社管理番号 | 100500855578 | 当社管理番号 | 89 |
| 所属団体 | (公社)東京都宅地建物取引業協会会員 | ||
| 公正取引協議会 | (公社)首都圏不動産公正取引協議会加盟 | ||
| 取扱い物件情報 | 物件詳細へ | ||
※各種情報と現状に差異がある場合は、現状優先となります。問い合わせをすることで、より詳しい条件、情報を確認する事ができます。
提供:(株)リライフ四谷店(SUUMO経由)
この物件が気になったら掲載期限まであと12日
メイクスデザイン両国サウスに条件(家賃・エリア)が近い物件一覧
| 写真 | 家賃 管理費等 | 敷金 礼金 | 間取り 専有面積 | 築年数 | 最寄り駅 所在地 | キープ | 詳細 |
|---|---|---|---|---|---|---|---|
マンション WAVE千束(1K/4階) | |||||||
![]() | 10万円 なし | なし 10万円 | 1K 25.57m2 | 築9年 | 東京地下鉄日比谷線 三ノ輪駅 徒歩9分 つくばエクスプレス 浅草駅(つくばEXP) 徒歩15分 常磐線 南千住駅 徒歩19分 東京都台東区千束4丁目 | 詳細を見る | |
マンション リテラス本所吾妻橋(1K/4階) | |||||||
![]() | 12.9万円 1.2万円 | なし なし | 1K 25.57m2 | 築6年 | 東京都浅草線 本所吾妻橋駅 徒歩6分 東京地下鉄半蔵門線 押上駅 徒歩13分 東京都浅草線 押上駅 徒歩13分 東京都墨田区東駒形4丁目 | 詳細を見る | |
マンション 工芸館きうち3(1K/6階) | |||||||
![]() | 9.5万円 7,000円 | 9.5万円 9.5万円 | 1K 27.36m2 | 築21年 | 東京地下鉄半蔵門線 押上駅 徒歩9分 東京都浅草線 押上駅 徒歩9分 東京都墨田区業平2丁目 | 詳細を見る | |
マンション アーバンパーク浅草2(1K/6階) | |||||||
![]() | 12.2万円 1万円 | なし なし | 1K 25.62m2 | 築3年 | 東武伊勢崎・大師線 浅草駅(東武・都営・メトロ) 徒歩12分 東京地下鉄銀座線 浅草駅(東武・都営・メトロ) 徒歩14分 東京都浅草線 浅草駅(東武・都営・メトロ) 徒歩14分 東京都台東区今戸1丁目 | 詳細を見る | |
マンション ディ・クオーレ(1K/4階) | |||||||
![]() | 10.2万円 なし | 10.2万円 10.2万円 | 1K 25.4m2 | 築16年 | 東京都浅草線 蔵前駅 徒歩3分 総武・中央緩行線 浅草橋駅 徒歩7分 東京都大江戸線 蔵前駅 徒歩7分 東京都台東区鳥越2丁目 | 詳細を見る | |
マンション 浅草参番館(1K/5階) | |||||||
![]() | 12.8万円 1万円 | 12.8万円 25.6万円 | 1K 34.26m2 | 築26年 | 東京メトロ銀座線 稲荷町駅(東京) 徒歩2分 都営大江戸線 新御徒町駅 徒歩7分 JR山手線 上野駅 徒歩9分 東京都台東区元浅草 | 詳細を見る | |
マンション GENOVIA浅草6SKYGARDEN(1LDK/2階) | |||||||
![]() | 16.2万円 1.5万円 | なし なし | 1LDK 40.24m2 | 築2年 | 東武伊勢崎・大師線 浅草駅(東武・都営・メトロ) 徒歩15分 東京地下鉄銀座線 浅草駅(東武・都営・メトロ) 徒歩17分 東京地下鉄日比谷線 南千住駅 徒歩18分 東京都台東区今戸2丁目 | 詳細を見る | |
マンション プレール・ドゥーク木場親水公園(1K/2階) | |||||||
![]() | 10.9万円 1.1万円 | なし 10.9万円 | 1K 21.87m2 | 築20年 | 東京地下鉄東西線 木場駅 徒歩8分 東京都大江戸線 門前仲町駅 徒歩12分 東京地下鉄東西線 門前仲町駅 徒歩12分 東京都江東区木場3丁目 | 詳細を見る | |








