賃貸マンション
鴨川グランドコーポの賃貸物件情報(2LDK/4階)
| 家賃 | 管理費等 | 敷金 | 礼金 | 間取り | 専有面積 |
|---|---|---|---|---|---|
| 47万円 | なし | 47万円 | 47万円 | 2LDK | 95.22m2 |
入居決定でお祝い金最大100,000円
Point
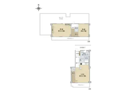
○分譲タイプ5階建て4・5階部分〇ルーフテラスからの眺望が素敵です。
提供:住友不動産ステップ(株)京都河原町賃貸センター(SUUMO経由)

詳細情報 鴨川グランドコーポ
物件紹介
鴨川グランドコーポは京阪鴨東線神宮丸太町駅から徒歩5分にあり、駅近で通勤通学に便利なマンションです。
このお部屋は2階以上に位置しているので通行人や周囲の住人からの視線が気になりにくく、建物のエントランスはオートロックがついているので防犯性が高くなっています。
こちらは楽器相談が可能な物件。楽器演奏をお考えの方はぜひ相談してみてください。人気の南向きのお部屋。バス・トイレ別の仕様で、のんびりお風呂タイムも楽しめます。
建物にはエレベーターがついているので、重い荷物があっても安心。
このお部屋は2階以上に位置しているので通行人や周囲の住人からの視線が気になりにくく、建物のエントランスはオートロックがついているので防犯性が高くなっています。
こちらは楽器相談が可能な物件。楽器演奏をお考えの方はぜひ相談してみてください。人気の南向きのお部屋。バス・トイレ別の仕様で、のんびりお風呂タイムも楽しめます。
建物にはエレベーターがついているので、重い荷物があっても安心。
お金・契約の情報
※「-」と表示されているものは、実際は料金が発生するものもございます。詳細はお問い合わせください。
| 家賃 | 47万円 | 管理費・共益費 | なし |
|---|---|---|---|
| 敷金 | 47万円 | 礼金 | 47万円 |
| 入居決定でお祝い金最大100,000円 | |||
| 保証金 | - | 償却・敷引 | - |
| 住宅保険料 | - | 更新料 | - |
| 契約形態 | 定期借家 | 契約期間 | 5年 |
| 入居・引渡期間 | 相談 | 現況 | - |
| 入居可能条件 | 楽器相談 | ||
| 契約備考 | 定期賃貸借契約5年○保証会社利用必須(エルズサポート株式会社)/初回保証委託料:月額賃料等の40%、月額保証委託料1,000円【口座振替事務手数料250円(税込)含む】○成約時に仲介手数料(税込)を申し受けます○楽器演奏相談(規約による制限あり)○ペット飼育・事務所利用・喫煙不可〇貸主指定業者による退去時室内清掃費用有(借主負担):目安125,730円(税込) 2LDK 楽器相談 定期借家5年 損保【1.23万円1年】 バストイレ別、オートロック、室内洗濯置、陽当り良好、南向き、エレベーター、分譲賃貸、2沿線利用可、LDK15畳以上、楽器相談、2駅利用可、駅徒歩5分以内、専有面積25坪以上、和室8畳以上、都市ガス | ||
部屋の情報
| 間取り | 2LDK | 専有面積 | 95.22m2 |
|---|---|---|---|
| 所在階 / 向き | 4階 / 南 | バルコニー面積 | - |
| 水道 / ガス | - | ||
| 設備 | バス・トイレ別、2階以上、オートロック、エレベーター、南向き、洗濯機:室内 | ||
| 当社物件ID | 160136161 | ||
建物の情報
| 建物名 | 鴨川グランドコーポ | ||
|---|---|---|---|
| 所在地 | 京都府京都市上京区中之町 | ||
| 交通 | 京阪鴨東線 神宮丸太町駅 徒歩5分 地下鉄東西線 京都市役所前駅 徒歩16分 | ||
| 階数 | 5階建 | 総戸数 | 20戸 |
| 築年月 | 1981年05月 / 築46年 | エレベーター | あり |
| 駐車場 | なし | バイク置き場 | - |
| 駐輪場 | - | 管理人/管理会社 | - |
| 建物種別 | マンション | 建物構造 | RC(鉄筋コンクリート) |
この部屋の取扱い不動産会社
| 会社名 | 住友不動産ステップ(株)京都河原町賃貸センター(SUUMO経由) | ||
|---|---|---|---|
| 所在地 | 京都府京都市下京区四条通河原町東入真町 68 7階 | 交通 | - |
| 営業時間 | 11:00~18:00 | 定休日 | - |
| 免許番号 | 国土交通大臣2077 | 取引態様 | 仲介 |
| 不動産会社管理番号 | 100480529239 | 当社管理番号 | 89 |
| 所属団体 | (一社)不動産流通経営協会会員 | ||
| 公正取引協議会 | (公社)首都圏不動産公正取引協議会加盟 | ||
| 取扱い物件情報 | 物件詳細へ | ||
※各種情報と現状に差異がある場合は、現状優先となります。問い合わせをすることで、より詳しい条件、情報を確認する事ができます。
提供:住友不動産ステップ(株)京都河原町賃貸センター(SUUMO経由)
この物件が気になったら掲載期限まであと10日
鴨川グランドコーポに条件(家賃・エリア)が近い物件一覧
| 写真 | 家賃 管理費等 | 敷金 礼金 | 間取り 専有面積 | 築年数 | 最寄り駅 所在地 | キープ | 詳細 |
|---|---|---|---|---|---|---|---|
マンション パークハウス京都岡崎有楽荘(3LDK/3階) | |||||||
![]() | 39万円 3.5万円 | 39万円 78万円 | 3LDK 116.76m2 | 築21年 | 京都市東西線 東山駅(京都) 徒歩4分 京都府京都市左京区岡崎円勝寺町 | 詳細を見る | |
マンション 京都市東西線 京都市役所前駅 徒歩11分 築3年(3LDK/2階) | |||||||
![]() | 43.5万円 1万円 | 43.5万円 87万円 | 3LDK 110.12m2 | 築3年 | 京都市東西線 京都市役所前駅 徒歩11分 京阪電気鉄道鴨東線 神宮丸太町駅 徒歩17分 京都府京都市中京区六丁目 | 詳細を見る | |
マンション プリオーレ京都三条高倉(4SLDK/3階) | |||||||
![]() | 42万円 なし | なし 42万円 | 4SLDK 111.29m2 | 築11年 | 京都市烏丸線 烏丸御池駅 徒歩5分 京都府京都市中京区丸屋町高倉通三条下る | 詳細を見る | |
マンション ドムス鴨川(4LDK/3階) | |||||||
![]() | 37万円 2万円 | 20万円 50万円 | 4LDK 162.38m2 | 築36年 | 地下鉄烏丸線 鞍馬口駅 徒歩8分 京阪鴨東線 出町柳駅 徒歩13分 地下鉄烏丸線 今出川駅 徒歩15分 京都府京都市上京区鶴山町 | 詳細を見る | |
マンション 京阪電気鉄道鴨東線 出町柳駅 徒歩7分 築42年(4LDK/3階) | |||||||
![]() | 46万円 3万円 | 90万円 90万円 | 4LDK 175.8m2 | 築42年 | 京阪電気鉄道鴨東線 出町柳駅 徒歩7分 京都市烏丸線 今出川駅 徒歩15分 京都府京都市上京区青龍町 | 詳細を見る | |
一戸建て 京阪電気鉄道鴨東線 出町柳駅 徒歩9分 築36年(5LDK) | |||||||
![]() | 30万円 なし | 60万円 30万円 | 5LDK 153.83m2 | 築36年 | 京阪電気鉄道鴨東線 出町柳駅 徒歩9分 京都市烏丸線 今出川駅 徒歩10分 京都市烏丸線 北大路駅 徒歩23分 京都府京都市上京区上塔之段町 | 詳細を見る | |
一戸建て 京福北野線 北野白梅町駅 徒歩11分 築77年(2LDK) | |||||||
![]() | 35万円 なし | 35万円 なし | 2LDK 72.41m2 | 築77年 | 京福北野線 北野白梅町駅 徒歩11分 京都府京都市上京区東今小路町 | 詳細を見る | |
マンション 京都市東西線 京都市役所前駅 徒歩3分 築9年(3LDK/9階) | |||||||
![]() | 55万円 なし | 55万円 110万円 | 3LDK 85.4m2 | 築9年 | 京都市東西線 京都市役所前駅 徒歩3分 京都市烏丸線 烏丸御池駅 徒歩8分 京都府京都市中京区上白山町 | 詳細を見る | |









