賃貸アパート
リブリ・オーシャンサイドの賃貸物件情報(1K/1階)
| 家賃 | 管理費等 | 敷金 | 礼金 | 間取り | 専有面積 |
|---|---|---|---|---|---|
| 7.4万円 | 4,000円 | なし | 11.1万円 | 1K | 26.49m2 |
入居決定でお祝い金最大100,000円
- 保証金
- -
- 償却・敷引
- -
- 築年数
- 築12年
- 所在階
- 1階
- 向き
- 東
Point
まずはお問い合わせ!
不動産会社は街のプロ、あなたに合った物件がきっと見つかります。
提供:リロの不動産(株)日商ベックス横浜店(SUUMO経由)

詳細情報 リブリ・オーシャンサイド
物件紹介
リブリ・オーシャンサイドはJR東海道本線辻堂駅から徒歩16分にあるアパートです。
このお部屋のインターホンにはTVモニタがついているため、相手の顔を確認してから来客対応することができます。
人気の角部屋で周囲の居住者の生活音も気になりにくく、また、フローリングのお部屋なのでお掃除もラクラク。キッチンはシステムキッチン仕様になっていますので、お料理好きの方にもぴったり。バス・トイレは別なので、のんびりお風呂タイムも楽しめるでしょう。また、雨の日でも浴室乾燥機を使えば、お洗濯も問題ありません。
通信設備面では、インターネットが無料で使えるので、月々の出費を抑えられるのも魅力です。また、BSアンテナ・CSアンテナもありますので、おうち時間も充実するでしょう(別途工事、BS・CSの契約料等が必要な場合あり)。
床暖房があり、冬も足元から暖かく快適に過ごすことができます。
このお部屋のインターホンにはTVモニタがついているため、相手の顔を確認してから来客対応することができます。
人気の角部屋で周囲の居住者の生活音も気になりにくく、また、フローリングのお部屋なのでお掃除もラクラク。キッチンはシステムキッチン仕様になっていますので、お料理好きの方にもぴったり。バス・トイレは別なので、のんびりお風呂タイムも楽しめるでしょう。また、雨の日でも浴室乾燥機を使えば、お洗濯も問題ありません。
通信設備面では、インターネットが無料で使えるので、月々の出費を抑えられるのも魅力です。また、BSアンテナ・CSアンテナもありますので、おうち時間も充実するでしょう(別途工事、BS・CSの契約料等が必要な場合あり)。
床暖房があり、冬も足元から暖かく快適に過ごすことができます。
お金・契約の情報
※「-」と表示されているものは、実際は料金が発生するものもございます。詳細はお問い合わせください。
| 家賃 | 7.4万円 | 管理費・共益費 | 4,000円 |
|---|---|---|---|
| 敷金 | なし | 礼金 | 11.1万円 |
| 入居決定でお祝い金最大100,000円 | |||
| 保証金 | - | 償却・敷引 | - |
| 住宅保険料 | - | 更新料 | - |
| 保証会社利用 | 必須 | 保証会社名 | - |
| 保証会社費用 | - | 保証会社備考 | 保証会社利用必 保証人代行会社名:株式会社スマートクレジット(プランP)基本料:月額支払合計の100% 、月額料:月額支払合計の1.1%、口振手数料:330円/月 |
| 契約形態 | 定期借家 | 契約期間 | 2年 |
| 入居・引渡期間 | - | 現況 | - |
| 契約備考 | 合計9.02万円(内訳:退去時ルームクリーニング費用 41800円 室内消毒代 16500円 リブリクラブ入会費 7700円 鍵交換代 24200円) リブリクラブ月額会費 2200円/月額 1K 単身者限定 定期借家2年 損保【1.9万円2年】 バストイレ別、エアコン、ガスコンロ対応、フローリング、TVインターホン、浴室乾燥機、室内洗濯置、シューズボックス、角住戸、温水洗浄便座、洗面所独立、2口コンロ、駐輪場、敷金不要、照明付、全居室洋室、単身者相談、防犯シャッター、床暖房、プロパンガス 入居日:'26年2月上旬 | ||
部屋の情報
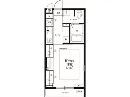
| 間取り | 1K | 専有面積 | 26.49m2 |
|---|---|---|---|
| 所在階 / 向き | 1階 / 東 | バルコニー面積 | - |
| 水道 / ガス | - | ||
| 設備 | バス・トイレ別、テレビドアホン、浴室乾燥機、エアコン、温水洗浄便座、角部屋、フローリング、洗髪洗面化粧台、床暖房、2口コンロ、コンロ:ガス、洗濯機:室内 | ||
| 当社物件ID | 13623291 | ||
建物の情報
| 建物名 | リブリ・オーシャンサイド | ||
|---|---|---|---|
| 所在地 | 神奈川県茅ヶ崎市浜竹 | ||
| 交通 | JR東海道本線 辻堂駅 徒歩16分 JR東海道本線 茅ケ崎駅 徒歩33分 JR相模線 北茅ケ崎駅 徒歩39分 | ||
| 階数 | 2階建 | 総戸数 | 6戸 |
| 築年月 | 2014年04月 / 築12年 | エレベーター | - |
| 駐車場 | なし | バイク置き場 | - |
| 駐輪場 | あり | 管理人/管理会社 | - |
| 周辺環境 | その他 セブンイレブン茅ヶ崎美住町店(コンビニ)まで339m その他 ハックドラッグ辻堂店(ドラッグストア)まで871m | ||
| 建物種別 | アパート | 建物構造 | 木造 |
この部屋の取扱い不動産会社
| 会社名 | リロの不動産(株)日商ベックス横浜店(SUUMO経由) | ||
|---|---|---|---|
| 所在地 | 神奈川県横浜市西区北幸1-11-11 NMF横浜西口ビル2階 | 交通 | - |
| 営業時間 | 9:00~18:00 | 定休日 | 水曜日 |
| 免許番号 | 国土交通大臣3273 | 取引態様 | 仲介 |
| 不動産会社管理番号 | 100479786243 | 当社管理番号 | 89 |
| 所属団体 | (公社)神奈川県宅地建物取引業協会会員 | ||
| 公正取引協議会 | (公社)首都圏不動産公正取引協議会加盟 | ||
| 取扱い物件情報 | 物件詳細へ | ||
※各種情報と現状に差異がある場合は、現状優先となります。問い合わせをすることで、より詳しい条件、情報を確認する事ができます。
提供:リロの不動産(株)日商ベックス横浜店(SUUMO経由)
この物件が気になったら掲載期限まであと12日
リブリ・オーシャンサイドに条件(家賃・エリア)が近い物件一覧
| 写真 | 家賃 管理費等 | 敷金 礼金 | 間取り 専有面積 | 築年数 | 最寄り駅 所在地 | キープ | 詳細 |
|---|---|---|---|---|---|---|---|
アパート エスポアール湘南I(3DK/2階) | |||||||
![]() | 5.4万円 なし | なし なし | 3DK 45m2 | 築35年 | 神奈川県平塚市上平塚 | 詳細を見る | |
マンション ラメール湘南(1K/3階) | |||||||
![]() | 6万円 2,500円 | 6万円 なし | 1K 24m2 | 築27年 | JR東海道本線 辻堂駅 徒歩4分 神奈川県藤沢市辻堂元町 | 詳細を見る | |
アパート リヴィエール藤沢(3DK/1階) | |||||||
![]() | 11万円 1,500円 | なし 11万円 | 3DK 70.44m2 | 築36年 | 東海道本線 藤沢駅 徒歩12分 神奈川県藤沢市大鋸1丁目 | 詳細を見る | |
マンション ジェノヴィア平塚Ⅲ(1K/4階) | |||||||
![]() | 8万円 1万円 | なし なし | 1K 26.06m2 | 築1年 | 東海道本線 平塚駅 徒歩5分 神奈川県平塚市錦町 | 詳細を見る | |
マンション プロスペリティ旭湘南(1K/2階) | |||||||
![]() | 5.45万円 5,000円 | なし なし | 1K 23.4m2 | 築28年 | 神奈川県平塚市万田 | 詳細を見る | |
アパート MQUARTO湘南海岸公園Ⅱ(1K/2階) | |||||||
![]() | 8.9万円 1.1万円 | なし 8.9万円 | 1K 21.73m2 | 築3年 | 江ノ島電鉄 湘南海岸公園駅 徒歩3分 神奈川県藤沢市片瀬4丁目 | 詳細を見る | |
アパート LUANA東海岸(1DK/1階) | |||||||
![]() | 7.5万円 3,000円 | なし なし | 1DK 31.46m2 | 築41年 | 東海道本線 茅ケ崎駅 徒歩9分 神奈川県茅ヶ崎市東海岸北茅ケ崎市東海岸北1丁目 | 詳細を見る | |
マンション テレパレス辻堂西海岸B棟(3LDK/4階) | |||||||
![]() | 8.9万円 3,000円 | なし なし | 3LDK 69.18m2 | 築47年 | JR東海道本線 辻堂駅 徒歩16分 JR東海道本線 茅ケ崎駅 徒歩55分 神奈川県藤沢市辻堂西海岸 | 詳細を見る | |









