賃貸マンション
EDIT月島の賃貸物件情報(1K/2階)
| 家賃 | 管理費等 | 敷金 | 礼金 | 間取り | 専有面積 |
|---|---|---|---|---|---|
| 12.8万円 | 6,000円 | 12.8万円 | 12.8万円 | 1K | 25.07m2 |
入居決定でお祝い金最大100,000円
- 保証金
- -
- 償却・敷引
- -
- 築年数
- 築8年
- 所在階
- 2階
- 向き
- 北東
Point
当物件は初期費用分割払い可(クレジットカード決済も可)/お客様のご希望に合わせた方法(店頭、オンライン等)で物件をご提案いたします。初期費用のお見積りや入居希望日のご相談もお気軽にお問い合わせください
提供:アエラス田町店 (株)アエラス.FR(SUUMO経由)

詳細情報 EDIT月島
物件紹介
EDIT月島は東京メトロ有楽町線月島駅から徒歩3分にあり、駅近で通勤通学に便利なマンションです。
このお部屋は2階以上に位置しているので、通行人や周囲の住人からの視線が気になりにくく、防犯面でも安心。建物のエントランスはオートロックがついており、インターホンにはTVモニタもついているため、相手の顔を確認してから来客対応することができます。
おしゃれなデザイナーズ物件!人気の角部屋で周囲の居住者の生活音も気になりにくく、また、フローリングのお部屋なのでお掃除もラクラク。室内にはウォークインクローゼットがありますので、たくさんの荷物も効率的に収納ができます。キッチンはシステムキッチン仕様になっていますので、お料理好きの方にもぴったり。バス・トイレは別なので、のんびりお風呂タイムも楽しめるでしょう。また、雨の日でも浴室乾燥機を使えば、お洗濯も問題ありません。
通信設備面では、インターネット接続が可能です(別途工事、契約料が必要な場合あり)。
建物にはエレベーターがついているので、重い荷物があっても安心。共用部には宅配ボックスが設定されているので、不在の時にも荷物を受け取ることができます。
このお部屋は2階以上に位置しているので、通行人や周囲の住人からの視線が気になりにくく、防犯面でも安心。建物のエントランスはオートロックがついており、インターホンにはTVモニタもついているため、相手の顔を確認してから来客対応することができます。
おしゃれなデザイナーズ物件!人気の角部屋で周囲の居住者の生活音も気になりにくく、また、フローリングのお部屋なのでお掃除もラクラク。室内にはウォークインクローゼットがありますので、たくさんの荷物も効率的に収納ができます。キッチンはシステムキッチン仕様になっていますので、お料理好きの方にもぴったり。バス・トイレは別なので、のんびりお風呂タイムも楽しめるでしょう。また、雨の日でも浴室乾燥機を使えば、お洗濯も問題ありません。
通信設備面では、インターネット接続が可能です(別途工事、契約料が必要な場合あり)。
建物にはエレベーターがついているので、重い荷物があっても安心。共用部には宅配ボックスが設定されているので、不在の時にも荷物を受け取ることができます。
お金・契約の情報
※「-」と表示されているものは、実際は料金が発生するものもございます。詳細はお問い合わせください。
| 家賃 | 12.8万円 | 管理費・共益費 | 6,000円 |
|---|---|---|---|
| 敷金 | 12.8万円 | 礼金 | 12.8万円 |
| フリーレント | あり | ||
| 入居決定でお祝い金最大100,000円 | |||
| 保証金 | - | 償却・敷引 | - |
| 住宅保険料 | - | 更新料 | - |
| 保証会社利用 | 必須 | 保証会社名 | - |
| 保証会社費用 | - | 保証会社備考 | 保証会社利用必 初回(2年分):67000円 |
| 契約形態 | - | 契約期間 | - |
| 入居・引渡期間 | - | 現況 | - |
| 契約備考 | 石川島記念病院まで325m/リバーシティ21郵便局まで432m/火災保険 必須(当初2年分 20000円)/駐輪場代500円(使用時)/鍵交換代借主負担/室内清掃費用借主負担(退去時) 1K フリーレント1ヶ月 普通借家2年 損保【要】 バストイレ別、エアコン、フローリング、TVインターホン、浴室乾燥機、オートロック、室内洗濯置、システムキッチン、追焚機能浴室、角住戸、温水洗浄便座、エレベーター、洗面所独立、洗面化粧台、2口コンロ、駐輪場、宅配ボックス、光ファイバー、外壁タイル張り、防犯カメラ、IHクッキングヒーター、全居室収納、オートバス、ウォークインクロゼット、敷金1ヶ月、全居室フローリング、デザイナーズ、2沿線利用可、フリーレント、エアコン全室、保証金不要、外壁コンクリート、全室2面採光、3駅以上利用可、駅徒歩5分以内、都市ガス、玄関収納、高速ネット対応、礼金1ヶ月、初期費用カード決済可 入居日:'26年5月中旬 | ||
部屋の情報
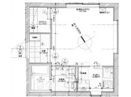
| 間取り | 1K | 専有面積 | 25.07m2 |
|---|---|---|---|
| 所在階 / 向き | 2階 / 北東 | バルコニー面積 | - |
| 水道 / ガス | - | ||
| 設備 | バス・トイレ別、2階以上、オートロック、テレビドアホン、宅配ボックス、浴室乾燥機、ウォークインクローゼット、追い焚き、インターネット対応、システムキッチン、エアコン、エレベーター、温水洗浄便座、角部屋、フローリング、洗髪洗面化粧台、2口コンロ、コンロ:IH、デザイナーズ、洗濯機:室内 | ||
| 当社物件ID | 29982405 | ||
建物の情報
| 建物名 | EDIT月島 | ||
|---|---|---|---|
| 所在地 | 東京都中央区佃 | ||
| 交通 | 東京メトロ有楽町線 月島駅 徒歩3分 東京メトロ有楽町線 新富町駅(東京) 徒歩12分 JR京葉線 越中島駅 徒歩16分 | ||
| 階数 | 5階建 | 総戸数 | 10戸 |
| 築年月 | 2019年03月 / 築8年 | エレベーター | あり |
| 駐車場 | 近隣 88m49500円 | バイク置き場 | - |
| 駐輪場 | あり | 管理人/管理会社 | - |
| 周辺環境 | その他 マルエツ 佃店(スーパー)まで390m その他 セブン-イレブン 中央区佃2丁目店(コンビニ)まで190m その他 薬 マツモトキヨシ matsukiyoLAB 佃二丁目店(ドラッグストア)まで490m その他 タリーズコーヒー 月島駅前店(飲食店)まで507m その他 聖路加国際大学(大学・短大)まで1192m その他 聖路加国際病院(病院)まで1073m | ||
| 建物種別 | マンション | 建物構造 | RC(鉄筋コンクリート) |
この部屋の取扱い不動産会社
| 会社名 | アエラス田町店 (株)アエラス.FR(SUUMO経由) | ||
|---|---|---|---|
| 所在地 | 東京都港区芝5-31-16 YCC田町ビル10階 | 交通 | - |
| 営業時間 | 10:00~19:00(時間外対応出来る場合有り) | 定休日 | アエラス新橋店で営業中 |
| 免許番号 | 国土交通大臣10206 | 取引態様 | 仲介 |
| 不動産会社管理番号 | 100501819084 | 当社管理番号 | 89 |
| 所属団体 | (公社)東京都宅地建物取引業協会会員 | ||
| 公正取引協議会 | (公社)首都圏不動産公正取引協議会加盟 | ||
| 取扱い物件情報 | 物件詳細へ | ||
※各種情報と現状に差異がある場合は、現状優先となります。問い合わせをすることで、より詳しい条件、情報を確認する事ができます。
提供:アエラス田町店 (株)アエラス.FR(SUUMO経由)
この物件が気になったら掲載期限まであと10日
EDIT月島に条件(家賃・エリア)が近い物件一覧
| 写真 | 家賃 管理費等 | 敷金 礼金 | 間取り 専有面積 | 築年数 | 最寄り駅 所在地 | キープ | 詳細 |
|---|---|---|---|---|---|---|---|
マンション ドルチェ京橋壱番館(1K/3階) | |||||||
![]() | 12.4万円 1.1万円 | なし 12.4万円 | 1K 21.22m2 | 築22年 | 都営浅草線 宝町駅 徒歩2分 東京メトロ日比谷線 八丁堀駅(東京) 徒歩6分 JR山手線 東京駅 徒歩13分 東京都中央区八丁堀 | 詳細を見る | |
マンション シンシア日本橋新川(1K/5階) | |||||||
![]() | 12.5万円 1.1万円 | なし 12.5万円 | 1K 22.8m2 | 築25年 | 東京地下鉄日比谷線 八丁堀駅(東京) 徒歩5分 京葉線 八丁堀駅(東京) 徒歩7分 東京地下鉄東西線 茅場町駅 徒歩9分 東京都中央区新川2丁目 | 詳細を見る | |
アパート ジュンヴェール山本(1DK/2階) | |||||||
![]() | 9.5万円 5,000円 | 9.5万円 9.5万円 | 1DK 31.45m2 | 築30年 | 東武伊勢崎線 とうきょうスカイツリー駅 徒歩6分 東京メトロ半蔵門線 押上駅 徒歩14分 東京都墨田区向島 | 詳細を見る | |
マンション クレストコート本所吾妻橋ノース 本所吾妻橋ノース(1DK/8階) | |||||||
![]() | 15.7万円 1.2万円 | 15.7万円 なし | 1DK 25.42m2 | 築1年 | 東京都浅草線 本所吾妻橋駅 徒歩2分 東京地下鉄銀座線 浅草駅(東武・都営・メトロ) 徒歩9分 東武伊勢崎・大師線 とうきょうスカイツリー駅 徒歩10分 東京都墨田区吾妻橋2丁目 | 詳細を見る | |
マンション プレール日本橋壱番館(1K/7階) | |||||||
![]() | 11.6万円 1.1万円 | なし 11.6万円 | 1K 19.57m2 | 築25年 | 東京地下鉄半蔵門線 水天宮前駅 徒歩3分 東京地下鉄日比谷線 人形町駅 徒歩6分 東京都新宿線 浜町駅 徒歩9分 東京都中央区日本橋蛎殻町2丁目 | 詳細を見る | |
マンション メイクスダブルアート小村井(1LDK/5階) | |||||||
![]() | 15.5万円 1万円 | なし 15.5万円 | 1LDK 40.83m2 | 築2年 | 東武亀戸線 小村井駅 徒歩6分 東武亀戸線 東あずま駅 徒歩11分 京成押上線 京成曳舟駅 徒歩17分 東京都墨田区文花 | 詳細を見る | |







