賃貸マンション
ガーラ・ヴィスタ日本橋浜町の賃貸物件情報(1K/8階)
| 家賃 | 管理費等 | 敷金 | 礼金 | 間取り | 専有面積 |
|---|---|---|---|---|---|
| 10.8万円 | 9,000円 | 10.8万円 | 21.6万円 | 1K | 26.84m2 |
入居決定でお祝い金最大100,000円
- 保証金
- -
- 償却・敷引
- -
- 築年数
- 築12年
- 所在階
- 8階
- 向き
- 南西
Point
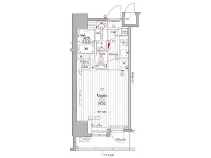
収納はクロゼット・シューズボックスなど豊富なので、広々と空間を利用することも可能です。室内設備は浴室乾燥機・洗面所独立など豊富に揃っており、過ごしやすいお部屋になっております。
提供:(株)FJネクスト(SUUMO経由)

詳細情報 ガーラ・ヴィスタ日本橋浜町
物件紹介
ガーラ・ヴィスタ日本橋浜町は都営新宿線浜町駅から徒歩5分にあり、駅近で通勤通学に便利なマンションです。
このお部屋は2階以上に位置しているので、通行人や周囲の住人からの視線が気になりにくく、防犯面でも安心。建物のエントランスはオートロックがついており、インターホンにはTVモニタもついているため、相手の顔を確認してから来客対応することができます。
人気の南向きのお部屋。また、フローリングなのでお掃除もラクラク。キッチンはシステムキッチン仕様になっていますので、お料理好きの方にもぴったり。バス・トイレは別なので、のんびりお風呂タイムも楽しめるでしょう。また、雨の日でも浴室乾燥機を使えば、お洗濯も問題ありません。
通信設備面では、インターネット接続が可能です。また、BSアンテナ・CSアンテナもありますので、おうち時間も充実するでしょう(別途工事、契約料が必要な場合あり)。
建物にはエレベーターがついているので、重い荷物があっても安心。共用部には宅配ボックスが設定されているので、不在の時にも荷物を受け取ることができます。
このお部屋は2階以上に位置しているので、通行人や周囲の住人からの視線が気になりにくく、防犯面でも安心。建物のエントランスはオートロックがついており、インターホンにはTVモニタもついているため、相手の顔を確認してから来客対応することができます。
人気の南向きのお部屋。また、フローリングなのでお掃除もラクラク。キッチンはシステムキッチン仕様になっていますので、お料理好きの方にもぴったり。バス・トイレは別なので、のんびりお風呂タイムも楽しめるでしょう。また、雨の日でも浴室乾燥機を使えば、お洗濯も問題ありません。
通信設備面では、インターネット接続が可能です。また、BSアンテナ・CSアンテナもありますので、おうち時間も充実するでしょう(別途工事、契約料が必要な場合あり)。
建物にはエレベーターがついているので、重い荷物があっても安心。共用部には宅配ボックスが設定されているので、不在の時にも荷物を受け取ることができます。
お金・契約の情報
※「-」と表示されているものは、実際は料金が発生するものもございます。詳細はお問い合わせください。
| 家賃 | 10.8万円 | 管理費・共益費 | 9,000円 |
|---|---|---|---|
| 敷金 | 10.8万円 | 礼金 | 21.6万円 |
| 入居決定でお祝い金最大100,000円 | |||
| 保証金 | - | 償却・敷引 | - |
| 住宅保険料 | - | 更新料 | - |
| 保証会社利用 | 必須 | 保証会社名 | - |
| 保証会社費用 | - | 保証会社備考 | 保証会社利用必 保証料:賃料等の0.5ヶ月分(最低保証料2万円)/月額保証料 賃料等の1.2% |
| 契約形態 | - | 契約期間 | - |
| 入居・引渡期間 | - | 現況 | - |
| 契約備考 | 通勤管理/※図面と現状が異なる場合は現況優先と致します。現状有姿となります。※契約時、当社指定の火災保険(借家人賠償責任付)にご加入いただきます。 合計6.23万円(内訳:(退去時)エアコンクリーニング費用/1台につき1.32万円火災保険(地震特約付き)2.6万円鍵交換代2.31万円) 更新料 新賃料1.00ヶ月分 室内清掃費用 38500円 1K 普通借家2年 損保【2万円2年】 バストイレ別、バルコニー、エアコン、ガスコンロ対応、クロゼット、フローリング、TVインターホン、浴室乾燥機、オートロック、室内洗濯置、シューズボックス、システムキッチン、追焚機能浴室、温水洗浄便座、脱衣所、エレベーター、洗面所独立、洗面化粧台、2口コンロ、駐輪場、宅配ボックス、光ファイバー、外壁タイル張り、防犯カメラ、グリル付、保証人不要、24時間緊急通報システム、CS、24時間換気システム、人感照明センサー、耐震構造、駅前、24時間ゴミ出し可、風除室、敷地内ごみ置き場、当社管理物件、都市ガス、BS、年度内入居可、IT重説対応物件 入居日:'26年2月中旬 | ||
部屋の情報
| 間取り | 1K | 専有面積 | 26.84m2 |
|---|---|---|---|
| 所在階 / 向き | 8階 / 南西 | バルコニー面積 | 4m2 |
| 水道 / ガス | - | ||
| 設備 | バス・トイレ別、2階以上、オートロック、テレビドアホン、宅配ボックス、浴室乾燥機、追い焚き、インターネット対応、システムキッチン、エアコン、エレベーター、温水洗浄便座、南向き、バルコニー、フローリング、洗髪洗面化粧台、2口コンロ、コンロ:ガス、CSアンテナ、BSアンテナ、洗濯機:室内 | ||
| 当社物件ID | 11739640 | ||
建物の情報
| 建物名 | ガーラ・ヴィスタ日本橋浜町 | ||
|---|---|---|---|
| 所在地 | 東京都中央区日本橋浜町 | ||
| 交通 | 都営新宿線 浜町駅 徒歩5分 東京メトロ半蔵門線 水天宮前駅 徒歩7分 都営大江戸線 森下駅(東京) 徒歩10分 | ||
| 階数 | 10階建 | 総戸数 | 36戸 |
| 築年月 | 2014年01月 / 築12年 | エレベーター | あり |
| 駐車場 | なし | バイク置き場 | - |
| 駐輪場 | あり | 管理人/管理会社 | - |
| 周辺環境 | その他 成城石井日本橋店(その他)まで250m その他 大丸ピーコックトルナーレ日本橋(その他)まで270m その他 まいばすけっと水天宮店(その他)まで462m その他 山村病院(病院)まで219m その他 東京シティエアターミナル(その他)まで480m その他 ファミリーマート日本橋浜町(コンビニ)まで250m | ||
| 建物種別 | マンション | 建物構造 | RC(鉄筋コンクリート) |
この部屋の取扱い不動産会社
| 会社名 | (株)FJネクスト(SUUMO経由) | ||
|---|---|---|---|
| 所在地 | 東京都新宿区西新宿6-5-1 新宿アイランドタワー11階 | 交通 | - |
| 営業時間 | 10:00~19:00 | 定休日 | 年中無休 |
| 免許番号 | 国土交通大臣9976 | 取引態様 | 代理 |
| 不動産会社管理番号 | 100480473000 | 当社管理番号 | 89 |
| 所属団体 | (公社)全日本不動産協会東京都本部会員 | ||
| 公正取引協議会 | (公社)首都圏不動産公正取引協議会加盟 | ||
| 取扱い物件情報 | 物件詳細へ | ||
※各種情報と現状に差異がある場合は、現状優先となります。問い合わせをすることで、より詳しい条件、情報を確認する事ができます。
提供:(株)FJネクスト(SUUMO経由)
この物件が気になったら掲載期限まであと10日
ガーラ・ヴィスタ日本橋浜町に条件(家賃・エリア)が近い物件一覧
| 写真 | 家賃 管理費等 | 敷金 礼金 | 間取り 専有面積 | 築年数 | 最寄り駅 所在地 | キープ | 詳細 |
|---|---|---|---|---|---|---|---|
マンション トライム両国(1LDK/4階) | |||||||
![]() | 14.5万円 1万円 | 14.5万円 14.5万円 | 1LDK 30.96m2 | 築5年 | 総武・中央緩行線 両国駅 徒歩5分 東京都大江戸線 両国駅 徒歩7分 東京都大江戸線 森下駅(東京) 徒歩8分 東京都墨田区両国4丁目 | 詳細を見る | |
マンション セイラン水天宮前(1K/6階) | |||||||
![]() | 11.5万円 1万円 | なし なし | 1K 23.12m2 | 築18年 | 東京メトロ半蔵門線 水天宮前駅 徒歩1分 東京メトロ日比谷線 人形町駅 徒歩7分 東京メトロ東西線 茅場町駅 徒歩8分 東京都中央区日本橋蛎殻町 | 詳細を見る | |
マンション エスジーコート三ノ輪(1K/5階) | |||||||
![]() | 9.8万円 1.2万円 | 9.8万円 なし | 1K 26.54m2 | 築7年 | 東京地下鉄日比谷線 三ノ輪駅 徒歩8分 東京地下鉄日比谷線 入谷駅(東京) 徒歩12分 つくばエクスプレス 浅草駅(つくばEXP) 徒歩13分 東京都台東区千束4丁目 | 詳細を見る | |
マンション ラルジュマノワール(1LDK/8階) | |||||||
![]() | 13.5万円 8,000円 | 13.5万円 20.25万円 | 1LDK 39.01m2 | 築17年 | 東京地下鉄日比谷線 入谷駅(東京) 徒歩6分 東京都荒川線 三ノ輪橋駅 徒歩14分 山手線 鶯谷駅 徒歩15分 東京都台東区竜泉1丁目 | 詳細を見る | |
マンション アーバネックス蔵前レジデンス(1LDK/3階) | |||||||
![]() | 14.8万円 1.2万円 | 14.8万円 なし | 1LDK 26.46m2 | 築3年 | 東京都浅草線 蔵前駅 徒歩3分 総武・中央緩行線 浅草橋駅 徒歩8分 東京都大江戸線 蔵前駅 徒歩8分 東京都台東区蔵前4丁目 | 詳細を見る | |
マンション スプレンダーパレス(ワンルーム/3階) | |||||||
![]() | 9.3万円 5,000円 | なし なし | ワンルーム 28.16m2 | 築29年 | 東京都大江戸線 森下駅(東京) 徒歩8分 東京都新宿線 菊川駅(東京) 徒歩9分 総武・中央緩行線 両国駅 徒歩15分 東京都墨田区立川2丁目 | 詳細を見る | |
マンション アーバンパーク押上(1DK/1階) | |||||||
![]() | 12.15万円 1.5万円 | なし なし | 1DK 25.81m2 | 築2年 | 東武伊勢崎・大師線 とうきょうスカイツリー駅 徒歩11分 東京都墨田区向島3丁目 | 詳細を見る | |
マンション ガラステージ日本橋人形町(1K/10階) | |||||||
![]() | 8.3万円 4,000円 | 8.3万円 8.3万円 | 1K 20.77m2 | 築27年 | 東京都浅草線 人形町駅 徒歩2分 東京地下鉄半蔵門線 水天宮前駅 徒歩2分 東京地下鉄日比谷線 小伝馬町駅 徒歩10分 東京都中央区日本橋人形町1丁目 | 詳細を見る | |








/105x80-f1-q70-wp1)
