賃貸マンション
クレヴィスタ横浜矢向の賃貸物件情報(1K/1階)
| 家賃 | 管理費等 | 敷金 | 礼金 | 間取り | 専有面積 |
|---|---|---|---|---|---|
| 7.2万円 | 1.5万円 | なし | 3.6万円 | 1K | 22.05m2 |
入居決定でお祝い金最大100,000円
Point
セキュリティ面は、オートロック・TVインターホンなどを備え付けているので安心して暮らせます。
提供:(株)ネクストライフ川崎店(SUUMO経由)

詳細情報 クレヴィスタ横浜矢向
物件紹介
クレヴィスタ横浜矢向はJR南武線尻手駅から徒歩11分にあるマンションです。
建物のエントランスはオートロックがついており、インターホンにはTVモニタもついているため、相手の顔を確認してから来客対応することができます。
おしゃれなデザイナーズ物件!フローリングのお部屋なのでお掃除もラクラク。キッチンはシステムキッチン仕様になっていますので、お料理好きの方にもぴったり。バス・トイレは別なので、のんびりお風呂タイムも楽しめるでしょう。また、雨の日でも浴室乾燥機を使えば、お洗濯も問題ありません。
通信設備面では、インターネットが無料で使えるので、月々の出費を抑えられるのも魅力です。また、BSアンテナ・CSアンテナもありますので、おうち時間も充実するでしょう(別途工事、BS・CSの契約料等が必要な場合あり)。
建物にはエレベーターがついているので、重い荷物があっても安心。共用部には宅配ボックスが設定されているので、不在の時にも荷物を受け取ることができます。
建物のエントランスはオートロックがついており、インターホンにはTVモニタもついているため、相手の顔を確認してから来客対応することができます。
おしゃれなデザイナーズ物件!フローリングのお部屋なのでお掃除もラクラク。キッチンはシステムキッチン仕様になっていますので、お料理好きの方にもぴったり。バス・トイレは別なので、のんびりお風呂タイムも楽しめるでしょう。また、雨の日でも浴室乾燥機を使えば、お洗濯も問題ありません。
通信設備面では、インターネットが無料で使えるので、月々の出費を抑えられるのも魅力です。また、BSアンテナ・CSアンテナもありますので、おうち時間も充実するでしょう(別途工事、BS・CSの契約料等が必要な場合あり)。
建物にはエレベーターがついているので、重い荷物があっても安心。共用部には宅配ボックスが設定されているので、不在の時にも荷物を受け取ることができます。
お金・契約の情報
※「-」と表示されているものは、実際は料金が発生するものもございます。詳細はお問い合わせください。
| 家賃 | 7.2万円 | 管理費・共益費 | 1.5万円 |
|---|---|---|---|
| 敷金 | なし | 礼金 | 3.6万円 |
| 入居決定でお祝い金最大100,000円 | |||
| 保証金 | - | 償却・敷引 | - |
| 住宅保険料 | 1円 | 更新料 | - |
| その他費用 | 書類作成代:1.1万円 | ||
| 保証会社利用 | 必須 | 保証会社名 | エポスカード |
| 保証会社費用 | - | 保証会社備考 | 緊急連絡先40% 緊急連絡先40% |
| 契約形態 | - | 契約期間 | 2年 |
| 入居・引渡期間 | 2025年12月下旬 | 現況 | - |
| 入居可能条件 | 事務所不可、2人入居可、楽器不可、ペット不可 | ||
| 契約備考 | 月額(レジデンシャルサポート料 800円) 鍵交換費用:44000 室内清掃費用:55000 その他設備/条件:室内洗濯機置き場、ごみ出し24時間OK、独立洗面台、防犯カメラ、ルームシェア不可、クローゼット、シューズボックス、分譲賃貸 | ||
部屋の情報
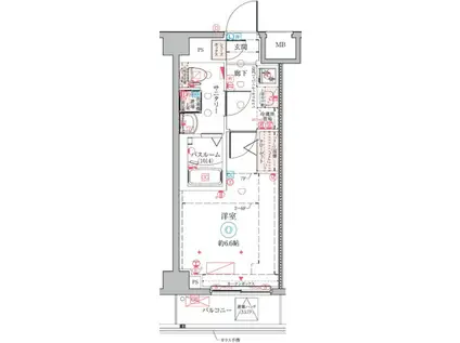
| 間取り | 1K | 専有面積 | 22.05m2 |
|---|---|---|---|
| 間取り詳細 | K(6.6帖) | ||
| 所在階 / 向き | 1階 / 西 | バルコニー面積 | 3m2 |
| 水道 / ガス | 水道【公営】、ガス【都市】 | ||
| 設備 | バス・トイレ別、オートロック、テレビドアホン、宅配ボックス、浴室乾燥機、インターネット対応、システムキッチン、エアコン、エレベーター、温水洗浄便座、バルコニー、フローリング、2口コンロ、コンロ:ガス、デザイナーズ、インターネット使用料無料、シャワー、給湯 | ||
| 当社物件ID | 159908911 | ||
建物の情報
| 建物名 | クレヴィスタ横浜矢向 | ||
|---|---|---|---|
| 所在地 | 神奈川県横浜市鶴見区矢向1丁目 | ||
| 交通 | 南武線 尻手駅 徒歩11分 | ||
| 階数 | 7階建 | 総戸数 | - |
| 築年月 | 2023年02月 / 築3年 | エレベーター | あり |
| 駐車場 | - | バイク置き場 | - |
| 駐輪場 | - | 管理人/管理会社 | 巡回 |
| 周辺環境 | その他 ドラッグストア その他 公園 その他 銀行 その他 * | ||
| 建物種別 | マンション | 建物構造 | RC(鉄筋コンクリート) |
この部屋の取扱い不動産会社
| 会社名 | ハウスコム東神奈川株式会社 菊名店 | ||
|---|---|---|---|
| 所在地 | 神奈川県横浜市港北区1-6クレセント菊名1階 | 交通 | - |
| 営業時間 | 10:00~18:00 | 定休日 | - |
| 免許番号 | 神奈川県知事(1)第31769号 | 取引態様 | 仲介 |
| 不動産会社管理番号 | HC5-4054568-104-0189 | 当社管理番号 | 468 |
| 所属団体 | 、 | ||
| 取扱い物件情報 | 物件詳細へ | ||
※各種情報と現状に差異がある場合は、現状優先となります。問い合わせをすることで、より詳しい条件、情報を確認する事ができます。
提供:ハウスコム東神奈川株式会社 菊名店
この物件が気になったら掲載期限まであと4日
クレヴィスタ横浜矢向に条件(家賃・エリア)が近い物件一覧
| 写真 | 家賃 管理費等 | 敷金 礼金 | 間取り 専有面積 | 築年数 | 最寄り駅 所在地 | キープ | 詳細 |
|---|---|---|---|---|---|---|---|
アパート 飯塚ハイツ(2DK/2階) | |||||||
![]() | 6.4万円 なし | 6.4万円 なし | 2DK 30m2 | 築39年 | JR南武線 小田栄駅 徒歩9分 JR鶴見線 浜川崎駅 徒歩12分 神奈川県川崎市川崎区小田 | 詳細を見る | |
アパート ユナイト中野島レーザーディマルコ(ワンルーム/2階) | |||||||
![]() | 5.7万円 3,500円 | なし なし | ワンルーム 14.3m2 | 新築 | JR南武線 中野島駅 徒歩6分 小田急線 向ケ丘遊園駅 徒歩26分 小田急線 和泉多摩川駅 徒歩29分 神奈川県川崎市多摩区中野島 | 詳細を見る | |
マンション 第2三誠ビル(ワンルーム/2階) | |||||||
![]() | 5.3万円 2,000円 | 5.3万円 なし | ワンルーム 22.23m2 | 築34年 | JR京浜東北線 鶴見駅 徒歩20分 京急本線 京急鶴見駅 徒歩25分 京急本線 鶴見市場駅 徒歩30分 神奈川県横浜市鶴見区下末吉 | 詳細を見る | |
アパート ユナイト追浜ジョルジャ・メローニ(ワンルーム/2階) | |||||||
![]() | 4.85万円 3,500円 | なし なし | ワンルーム 15m2 | 築1年 | 京浜急行電鉄本線 追浜駅 徒歩12分 神奈川県横須賀市追浜本町1丁目 | 詳細を見る | |
アパート ブルーバード ハウジング(ワンルーム/1階) | |||||||
![]() | 5.2万円 3,000円 | なし なし | ワンルーム 17.51m2 | 築1年 | JR鶴見線 安善駅 徒歩7分 JR鶴見線 浅野駅 徒歩9分 神奈川県横浜市鶴見区朝日町 | 詳細を見る | |
マンション ティーエルアールレジデンス川崎大師(ワンルーム/7階) | |||||||
![]() | 8.2万円 1万円 | なし なし | ワンルーム 19.57m2 | 築10年 | 京急大師線 川崎大師駅 徒歩3分 京急大師線 鈴木町駅 徒歩10分 京急大師線 東門前駅 徒歩14分 神奈川県川崎市川崎区大師駅前 | 詳細を見る | |
アパート リブリ 花水木 DREI(1K/2階) | |||||||
![]() | 7.8万円 4,000円 | なし 7.8万円 | 1K 24.07m2 | 築5年 | JR東海道本線 大船駅 徒歩13分 JR横須賀線 大船駅 徒歩13分 JR根岸線 大船駅 徒歩13分 神奈川県鎌倉市小袋谷 | 詳細を見る | |
アパート グランヒル湘南台(ワンルーム/2階) | |||||||
![]() | 9.9万円 4,000円 | 9.9万円 なし | ワンルーム 34.51m2 | 築1年 | 小田急電鉄江ノ島線 湘南台駅 徒歩12分 神奈川県藤沢市湘南台6丁目 | 詳細を見る | |








