賃貸マンション
京阪電気鉄道京阪線 三条駅(京都) 徒歩9分 7階建 築21年の賃貸物件情報(2LDK/3階)
| 家賃 | 管理費等 | 敷金 | 礼金 | 間取り | 専有面積 |
|---|---|---|---|---|---|
| 15.55万円 | 1.3万円 | 15.55万円 | 31.1万円 | 2LDK | 60.63m2 |
入居決定でお祝い金最大100,000円
Point
ペットが飼えるんですよ。 東山エリア 京阪三条駅まで徒歩9分の分譲賃貸マンションです。
提供:株式会社 京都ライフ 烏丸五条店(賃貸スモッカ経由)

詳細情報 京阪電気鉄道京阪線 三条駅(京都) 徒歩9分 7階建 築21年
物件紹介
京阪電気鉄道京阪線三条駅から徒歩9分にあり、駅近で通勤通学に便利なマンションです。
このお部屋は2階以上に位置しているので通行人や周囲の住人からの視線が気になりにくく、建物のエントランスはオートロックがついているので防犯性が高くなっています。
おしゃれなデザイナーズ物件!人気の角部屋で周囲の居住者の生活音も気になりにくく、また、フローリングのお部屋なのでお掃除もラクラク。室内にはウォークインクローゼットがありますので、たくさんの荷物も効率的に収納ができます。キッチンはシステムキッチン仕様になっていますので、お料理好きの方にもぴったり。バス・トイレは別なので、のんびりお風呂タイムも楽しめるでしょう。また、雨の日でも浴室乾燥機を使えば、お洗濯も問題ありません。
通信設備面では、インターネット接続が可能です。また、BSアンテナ・CSアンテナもありますので、おうち時間も充実するでしょう(別途工事、契約料が必要な場合あり)。
床暖房があり、冬も足元から暖かく快適に過ごすことができます。建物にはエレベーターがついているので、重い荷物があっても安心。共用部には宅配ボックスが設定されているので、不在の時にも荷物を受け取ることができます。
このお部屋は2階以上に位置しているので通行人や周囲の住人からの視線が気になりにくく、建物のエントランスはオートロックがついているので防犯性が高くなっています。
おしゃれなデザイナーズ物件!人気の角部屋で周囲の居住者の生活音も気になりにくく、また、フローリングのお部屋なのでお掃除もラクラク。室内にはウォークインクローゼットがありますので、たくさんの荷物も効率的に収納ができます。キッチンはシステムキッチン仕様になっていますので、お料理好きの方にもぴったり。バス・トイレは別なので、のんびりお風呂タイムも楽しめるでしょう。また、雨の日でも浴室乾燥機を使えば、お洗濯も問題ありません。
通信設備面では、インターネット接続が可能です。また、BSアンテナ・CSアンテナもありますので、おうち時間も充実するでしょう(別途工事、契約料が必要な場合あり)。
床暖房があり、冬も足元から暖かく快適に過ごすことができます。建物にはエレベーターがついているので、重い荷物があっても安心。共用部には宅配ボックスが設定されているので、不在の時にも荷物を受け取ることができます。
お金・契約の情報
※「-」と表示されているものは、実際は料金が発生するものもございます。詳細はお問い合わせください。
| 家賃 | 15.55万円 | 管理費・共益費 | 1.3万円 |
|---|---|---|---|
| 敷金 | 15.55万円 | 礼金 | 31.1万円 |
| 入居決定でお祝い金最大100,000円 | |||
| 保証金 | - | 償却・敷引 | - |
| 住宅保険料 | 住宅保険料あり | 更新料 | - |
| 契約形態 | - | 契約期間 | 2年 |
| 入居・引渡期間 | 即時 | 現況 | 空室 |
| 契約備考 | 京阪、阪急、地下鉄のトリプルアクセス。嬉しい3点セパレートにウォークインクローゼット、浴室乾燥機、システムキッチン、温水洗浄便座など充実の設備。オートロック、防犯カメラ、TVホンでセキュリティも安心です。コンビニ、スーパーなど近くにあって便利ですよ。光ファイバー対応しています。ペットも相談可能です。 抗菌除菌処理代:17,600円 駐輪ステッカー代:1,100円 町会費:3,600円 更新料:1ヶ月 保証会社:利用必須 初回:月額賃料等の50%、更新時:1万円/1年(100%プラン有(更新保証料なし)) その他設備/条件:コンロ2口以上、TVドアホン、即入居可 | ||
部屋の情報
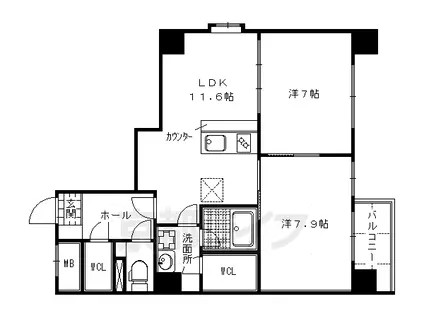
| 間取り | 2LDK | 専有面積 | 60.63m2 |
|---|---|---|---|
| 間取り詳細 | 洋室(7.9帖)、洋室(7帖)、LDK(11.6帖) | ||
| 所在階 / 向き | 3階 / 東 | バルコニー面積 | - |
| 水道 / ガス | - | ||
| 設備 | バス・トイレ別、2階以上、オートロック、宅配ボックス、浴室乾燥機、ウォークインクローゼット、インターネット対応、システムキッチン、エアコン、エレベーター、温水洗浄便座、角部屋、バルコニー、フローリング、オール電化、床暖房、コンロ:IH、デザイナーズ、CSアンテナ、BSアンテナ、洗濯機:室内 | ||
| 当社物件ID | 159819457 | ||
建物の情報
| 建物名 | 京阪電気鉄道京阪線 三条駅(京都) 徒歩9分 7階建 築21年 | ||
|---|---|---|---|
| 所在地 | 京都府京都市東山区稲荷町南組 | ||
| 交通 | 京阪電気鉄道京阪線 三条駅(京都) 徒歩9分 京阪電気鉄道京阪線 祇園四条駅 徒歩10分 | ||
| 階数 | 7階建 | 総戸数 | - |
| 築年月 | 2005年09月 / 築21年 | エレベーター | あり |
| 駐車場 | - | バイク置き場 | - |
| 駐輪場 | あり | 管理人/管理会社 | - |
| 建物種別 | マンション | 建物構造 | RC(鉄筋コンクリート) |
この部屋の取扱い不動産会社
| 会社名 | 株式会社 京都ライフ 烏丸五条店(賃貸スモッカ経由) | ||
|---|---|---|---|
| 所在地 | 京都市下京区烏丸通五条下ル大坂町377 Gloire烏丸五条1階 | 交通 | - |
| 営業時間 | - | 定休日 | - |
| 免許番号 | 京都府知事(11)第6353号 | 取引態様 | 仲介 |
| 不動産会社管理番号 | kyotolife_09181-1301-23 | 当社管理番号 | 463 |
| 所属団体 | 京都府宅地建物取引業協会\n公益社団法人近畿地区不動産公正取引協議会 | ||
| 公正取引協議会 | 全国宅地建物取引業保証協会 | ||
| 取扱い物件情報 | 物件詳細へ | ||
※各種情報と現状に差異がある場合は、現状優先となります。問い合わせをすることで、より詳しい条件、情報を確認する事ができます。
提供:株式会社 京都ライフ 烏丸五条店(賃貸スモッカ経由)
この物件が気になったら掲載期限まであと5日
京阪電気鉄道京阪線 三条駅(京都) 徒歩9分 7階建 築21年に条件(家賃・エリア)が近い物件一覧
| 写真 | 家賃 管理費等 | 敷金 礼金 | 間取り 専有面積 | 築年数 | 最寄り駅 所在地 | キープ | 詳細 |
|---|---|---|---|---|---|---|---|
マンション 近鉄京都線 大久保駅(京都) 徒歩9分 築1年(2LDK/3階) | |||||||
![]() | 11.9万円 8,500円 | 5万円 20万円 | 2LDK 68.23m2 | 築1年 | 近鉄京都線 大久保駅(京都) 徒歩9分 奈良線 新田駅(京都) 徒歩13分 京都府宇治市大久保町 | 詳細を見る | |
マンション 京阪電気鉄道京阪線 祇園四条駅 徒歩5分 築36年(1LDK/5階) | |||||||
![]() | 12万円 5,000円 | 12万円 12万円 | 1LDK 50.24m2 | 築36年 | 京阪電気鉄道京阪線 祇園四条駅 徒歩5分 京阪電気鉄道京阪線 清水五条駅 徒歩8分 京都府京都市下京区和泉屋町 | 詳細を見る | |
マンション ALPHA鴨川(2LDK/5階) | |||||||
![]() | 16.4万円 6,000円 | なし 16.4万円 | 2LDK 54.2m2 | 築1年 | 東海道本線 京都駅 徒歩9分 京都府京都市東山区一橋野本町 | 詳細を見る | |
マンション 奈良線 宇治駅(JR) 徒歩15分 築1年(2LDK/1階) | |||||||
![]() | 11.1万円 1.05万円 | 5.5万円 11.1万円 | 2LDK 60.11m2 | 築1年 | 奈良線 宇治駅(JR) 徒歩15分 近鉄京都線 小倉駅(京都) 徒歩22分 京都府宇治市槇島町 | 詳細を見る | |
マンション LEGAL京都四条河原町通Ⅱ(2LDK/8階) | |||||||
![]() | 16.5万円 1.461万円 | なし 25万円 | 2LDK 71.61m2 | 築23年 | 阪急電鉄京都線 京都河原町駅 徒歩4分 京阪電気鉄道京阪線 祇園四条駅 徒歩6分 京都府京都市下京区天満町 | 詳細を見る | |
アパート アンジェリック(1LDK/1階) | |||||||
![]() | 10.3万円 5,200円 | なし 12万円 | 1LDK 47.17m2 | 築15年 | 京阪電気鉄道京阪線 清水五条駅 徒歩4分 京阪電気鉄道京阪線 七条駅 徒歩7分 京都府京都市東山区鞘町1丁目通五条下る3丁目豊浦町 | 詳細を見る | |
マンション 京都市東西線 東山駅(京都) 徒歩2分 築1年(1SLDK/4階) | |||||||
![]() | 15.7万円 6,000円 | 15.7万円 15.7万円 | 1SLDK 48.81m2 | 築1年 | 京都市東西線 東山駅(京都) 徒歩2分 京阪電気鉄道京阪線 三条駅(京都) 徒歩8分 京都府京都市東山区南西海子町 | 詳細を見る | |
アパート 東海道本線 長岡京駅 徒歩10分 築1年(1LDK/3階) | |||||||
![]() | 9.5万円 5,000円 | なし 19万円 | 1LDK 39.9m2 | 築1年 | 東海道本線 長岡京駅 徒歩10分 阪急電鉄京都線 長岡天神駅 徒歩12分 京都府長岡京市馬場1丁目 | 詳細を見る | |









