賃貸マンション
メゾン中川IIの賃貸物件情報(3DK/10階)
| 家賃 | 管理費等 | 敷金 | 礼金 | 間取り | 専有面積 |
|---|---|---|---|---|---|
| 31万円 | なし | 31万円 | 31万円 | 3DK | 69.8m2 |
入居決定でお祝い金最大100,000円
- 保証金
- -
- 償却・敷引
- -
- 築年数
- 築39年
- 所在階
- 10階
- 向き
- 北西
Point
室内見学承ります・お客様のご都合に合わせてオンラインまたはお近くの店舗でご提案可・初期費用分割払い可・クレジットカード利用可・引越業者割引・初期費用のお見積や入居日のご相談もお気軽にお問合せください
提供:(株)リライフ高田馬場店(SUUMO経由)

詳細情報 メゾン中川II
物件紹介
メゾン中川IIは東京メトロ丸ノ内線池袋駅から徒歩6分にあり、駅近で通勤通学に便利なマンションです。
このお部屋は2階以上に位置しているので通行人や周囲の住人からの視線が気になりにくく、建物のエントランスはオートロックがついているので防犯性が高くなっています。
人気の角部屋で周囲の居住者の生活音も気になりにくく、また、フローリングのお部屋なのでお掃除もラクラク。バス・トイレ別の仕様で、のんびりお風呂タイムも楽しめます。
通信設備面では、インターネット接続が可能です(別途工事、契約料が必要な場合あり)。
建物にはエレベーターがついているので、重い荷物があっても安心。また、ペット飼育の相談ができますので、あなたの大切な家族の一員も快適に暮らせるか、ぜひ確認してみてください。
このお部屋は2階以上に位置しているので通行人や周囲の住人からの視線が気になりにくく、建物のエントランスはオートロックがついているので防犯性が高くなっています。
人気の角部屋で周囲の居住者の生活音も気になりにくく、また、フローリングのお部屋なのでお掃除もラクラク。バス・トイレ別の仕様で、のんびりお風呂タイムも楽しめます。
通信設備面では、インターネット接続が可能です(別途工事、契約料が必要な場合あり)。
建物にはエレベーターがついているので、重い荷物があっても安心。また、ペット飼育の相談ができますので、あなたの大切な家族の一員も快適に暮らせるか、ぜひ確認してみてください。
お金・契約の情報
※「-」と表示されているものは、実際は料金が発生するものもございます。詳細はお問い合わせください。
| 家賃 | 31万円 | 管理費・共益費 | なし |
|---|---|---|---|
| 敷金 | 31万円 | 礼金 | 31万円 |
| 入居決定でお祝い金最大100,000円 | |||
| 保証金 | - | 償却・敷引 | - |
| 住宅保険料 | - | 更新料 | - |
| 保証会社利用 | 必須 | 保証会社名 | - |
| 保証会社費用 | - | 保証会社備考 | 保証会社利用必 初回:月額総賃料50%~ |
| 契約形態 | - | 契約期間 | - |
| 入居・引渡期間 | 相談 | 現況 | - |
| 入居可能条件 | ペット相談 | ||
| 契約備考 | 当物件は「住まいのリライフ」で取り扱っております。リライフは首都圏24店舗のネットワークで豊富な物件情報をお客様へご提供します。当物件に類似した未公開物件なども合わせてご提案可能です。お気軽にお問合せください。 合計7.7万円(内訳:鍵交換代金3.3万円カスタマーサポート(初回のみ)1.1万円オゾン消臭(初回のみ)3.3万円) 3DK 二人入居可/ペット相談 損保【2.15万円2年】 バストイレ別、バルコニー、エアコン、ガスコンロ対応、フローリング、シャワー付洗面台、オートロック、室内洗濯置、シューズボックス、追焚機能浴室、角住戸、温水洗浄便座、脱衣所、エレベーター、洗面所独立、押入、2面採光、最上階、防犯カメラ、ペット相談、保証人不要、二人入居相談、始発駅、3駅以上利用可、3沿線以上利用可、高層階、上階無し、和室、都市ガス、L字型バルコニー、玄関収納、LAN、保証会社利用可、初期費用カード決済可、通風良好 敷金積み増し【ペット飼育の場合敷金1ヶ月(総額)】 | ||
部屋の情報
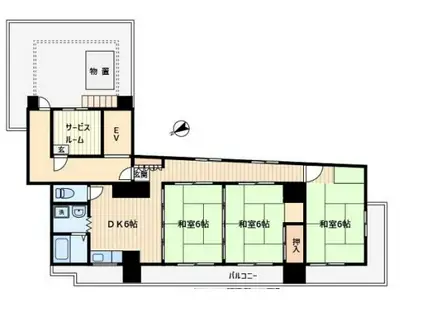
| 間取り | 3DK | 専有面積 | 69.8m2 |
|---|---|---|---|
| 所在階 / 向き | 10階 / 北西 | バルコニー面積 | - |
| 水道 / ガス | - | ||
| 設備 | バス・トイレ別、2階以上、オートロック、追い焚き、インターネット対応、エアコン、エレベーター、温水洗浄便座、角部屋、バルコニー、フローリング、洗髪洗面化粧台、コンロ:ガス、洗濯機:室内 | ||
| 当社物件ID | 150502131 | ||
建物の情報
| 建物名 | メゾン中川II | ||
|---|---|---|---|
| 所在地 | 東京都豊島区池袋 | ||
| 交通 | 東京メトロ丸ノ内線 池袋駅 徒歩6分 東京メトロ副都心線 要町駅 徒歩13分 東武東上線 北池袋駅 徒歩17分 | ||
| 階数 | 10階建 | 総戸数 | - |
| 築年月 | 1987年03月 / 築39年 | エレベーター | あり |
| 駐車場 | なし | バイク置き場 | - |
| 駐輪場 | - | 管理人/管理会社 | - |
| 周辺環境 | その他 まいばすけっと 池袋駅西店(スーパー)まで103m その他 まいばすけっと 池袋2丁目店(スーパー)まで197m その他 ローソンストア100 池袋西口店(コンビニ)まで43m その他 ファミリーマート池袋二丁目店(コンビニ)まで71m その他 ウエルシア池袋2丁目店(ドラッグストア)まで181m その他 白洋舎 東武池袋店(その他)まで727m | ||
| 建物種別 | マンション | 建物構造 | SRC(鉄骨鉄筋コンクリート) |
この部屋の取扱い不動産会社
| 会社名 | (株)リライフ渋谷店(SUUMO経由) | ||
|---|---|---|---|
| 所在地 | 東京都渋谷区渋谷1-24-14 渋谷トライアングルビル6階 | 交通 | - |
| 営業時間 | 10:00~20:00 | 定休日 | 無し |
| 免許番号 | 国土交通大臣10792 | 取引態様 | 仲介 |
| 不動産会社管理番号 | 100488819900 | 当社管理番号 | 89 |
| 所属団体 | (公社)東京都宅地建物取引業協会会員 | ||
| 公正取引協議会 | (公社)首都圏不動産公正取引協議会加盟 | ||
| 取扱い物件情報 | 物件詳細へ | ||
※各種情報と現状に差異がある場合は、現状優先となります。問い合わせをすることで、より詳しい条件、情報を確認する事ができます。
提供:(株)リライフ渋谷店(SUUMO経由)
この物件が気になったら掲載期限まであと11日
メゾン中川IIに条件(家賃・エリア)が近い物件一覧
| 写真 | 家賃 管理費等 | 敷金 礼金 | 間取り 専有面積 | 築年数 | 最寄り駅 所在地 | キープ | 詳細 |
|---|---|---|---|---|---|---|---|
マンション センテニアルタワー(2LDK/17階) | |||||||
![]() | 28.95万円 1.05万円 | 28.95万円 34.74万円 | 2LDK 59.26m2 | 築29年 | 東京メトロ副都心線 西早稲田駅 徒歩5分 JR山手線 高田馬場駅 徒歩7分 都電荒川線 学習院下駅 徒歩8分 東京都新宿区高田馬場 | 詳細を見る | |
マンション びゅうリエットグラン新宿戸山(1LDK/3階) | |||||||
![]() | 24.3万円 1.2万円 | 24.3万円 24.3万円 | 1LDK 46.23m2 | 築6年 | 山手線 新大久保駅 徒歩7分 山手線 高田馬場駅 徒歩13分 東京都新宿区大久保3丁目 | 詳細を見る | |
マンション コスモ和光12(1LDK/3階) | |||||||
![]() | 20.4万円 なし | 20.4万円 20.4万円 | 1LDK 50.07m2 | 新築 | 都営三田線 板橋区役所前駅 徒歩1分 東武東上線 大山駅(東京) 徒歩12分 JR埼京線 板橋駅 徒歩16分 東京都板橋区仲宿 | 詳細を見る | |
マンション ザ・グラヴィティ新宿(2DK/1階) | |||||||
![]() | 22.2万円 1.2万円 | 22.2万円 なし | 2DK 37.45m2 | 築1年 | 西武新宿線 西武新宿駅 徒歩3分 JR山手線 新大久保駅 徒歩6分 JR中央線 大久保駅(東京) 徒歩7分 東京都新宿区百人町 | 詳細を見る | |
マンション グランカーサ王子II(2LDK/1階) | |||||||
![]() | 20万円 1.2万円 | 20万円 20万円 | 2LDK 50.76m2 | 築3年 | JR京浜東北線 王子駅 徒歩10分 JR京浜東北線 東十条駅 徒歩10分 東京メトロ南北線 王子神谷駅 徒歩10分 東京都北区王子 | 詳細を見る | |
マンション ヒルトップ・スクエアー(3LDK/9階) | |||||||
![]() | 20.1万円 1.3万円 | 20.1万円 20.1万円 | 3LDK 73.28m2 | 築27年 | 東武東上線 大山駅(東京) 徒歩7分 都営三田線 板橋区役所前駅 徒歩18分 東武東上線 下板橋駅 徒歩18分 東京都板橋区中丸町 | 詳細を見る | |
マンション クレバーズハイム豊玉(2LDK/2階) | |||||||
![]() | 19.5万円 9,000円 | なし 39万円 | 2LDK 64.35m2 | 築5年 | 都営大江戸線 練馬駅 徒歩9分 西武池袋線 練馬駅 徒歩9分 西武池袋線 中村橋駅 徒歩16分 東京都練馬区豊玉北 | 詳細を見る | |
マンション オグリーヴ(2LDK/4階) | |||||||
![]() | 19.9万円 1.2万円 | 19.9万円 19.9万円 | 2LDK 58.5m2 | 築1年 | JR高崎線 尾久駅 徒歩3分 都電荒川線 荒川遊園地前駅 徒歩7分 JR山手線 田端駅 徒歩18分 東京都北区昭和町 | 詳細を見る | |








