賃貸マンション
ガーラ元住吉グランドステージの賃貸物件情報(2K/1階)
| 家賃 | 管理費等 | 敷金 | 礼金 | 間取り | 専有面積 |
|---|---|---|---|---|---|
| 9.4万円 | 9,000円 | 9.4万円 | 18.8万円 | 2K | 25.37m2 |
入居決定でお祝い金最大100,000円
Point
共用部にはゴミ出し24時間OK・宅配ボックスなど様々な設備やサービスが揃っているので便利です。室内設備は浴室乾燥機・洗面化粧台など豊富に揃っており、過ごしやすいお部屋になっております。
提供:(株)FJネクスト(SUUMO経由)

詳細情報 ガーラ元住吉グランドステージ
物件紹介
ガーラ元住吉グランドステージは東急東横線元住吉駅から徒歩11分にあるマンションです。
建物のエントランスはオートロックがついており、インターホンにはTVモニタもついているため、相手の顔を確認してから来客対応することができます。
人気の角部屋で周囲の居住者の生活音も気になりにくく、また、フローリングのお部屋なのでお掃除もラクラク。室内にはウォークインクローゼットがありますので、たくさんの荷物も効率的に収納ができます。キッチンはシステムキッチン仕様になっていますので、お料理好きの方にもぴったり。バス・トイレは別なので、のんびりお風呂タイムも楽しめるでしょう。また、雨の日でも浴室乾燥機を使えば、お洗濯も問題ありません。
通信設備面では、インターネットが無料で使えるので、月々の出費を抑えられるのも魅力です。また、BSアンテナ・CSアンテナもありますので、おうち時間も充実するでしょう(別途工事、BS・CSの契約料等が必要な場合あり)。
建物にはエレベーターがついているので、重い荷物があっても安心。共用部には宅配ボックスが設定されているので、不在の時にも荷物を受け取ることができます。
建物のエントランスはオートロックがついており、インターホンにはTVモニタもついているため、相手の顔を確認してから来客対応することができます。
人気の角部屋で周囲の居住者の生活音も気になりにくく、また、フローリングのお部屋なのでお掃除もラクラク。室内にはウォークインクローゼットがありますので、たくさんの荷物も効率的に収納ができます。キッチンはシステムキッチン仕様になっていますので、お料理好きの方にもぴったり。バス・トイレは別なので、のんびりお風呂タイムも楽しめるでしょう。また、雨の日でも浴室乾燥機を使えば、お洗濯も問題ありません。
通信設備面では、インターネットが無料で使えるので、月々の出費を抑えられるのも魅力です。また、BSアンテナ・CSアンテナもありますので、おうち時間も充実するでしょう(別途工事、BS・CSの契約料等が必要な場合あり)。
建物にはエレベーターがついているので、重い荷物があっても安心。共用部には宅配ボックスが設定されているので、不在の時にも荷物を受け取ることができます。
お金・契約の情報
※「-」と表示されているものは、実際は料金が発生するものもございます。詳細はお問い合わせください。
| 家賃 | 9.4万円 | 管理費・共益費 | 9,000円 |
|---|---|---|---|
| 敷金 | 9.4万円 | 礼金 | 18.8万円 |
| 入居決定でお祝い金最大100,000円 | |||
| 保証金 | - | 償却・敷引 | - |
| 住宅保険料 | - | 更新料 | - |
| 保証会社利用 | 必須 | 保証会社名 | - |
| 保証会社費用 | - | 保証会社備考 | 保証会社利用必 保証料:賃料等の0.5ヶ月分(最低保証料2万円)/月額保証料 賃料等の1.2% |
| 契約形態 | - | 契約期間 | - |
| 入居・引渡期間 | - | 現況 | - |
| 契約備考 | 通勤管理/※契約時、当社指定の火災保険(借家人賠償責任付)にご加入いただきます。※図面と現状が異なる場合は現状優先と致します。現状有姿となります。 合計6.23万円(内訳:(退去時)エアコンクリーニング費用/1台につき1.32万円火災保険(地震特約付き)2.6万円鍵交換代2.31万円) 更新料 新賃料1.00ヶ月分 室内清掃費用 38500円 2K 二人入居可 普通借家2年 損保【2万円2年】 バストイレ別、バルコニー、エアコン、ガスコンロ対応、フローリング、TVインターホン、浴室乾燥機、オートロック、室内洗濯置、シューズボックス、システムキッチン、追焚機能浴室、角住戸、温水洗浄便座、脱衣所、エレベーター、洗面所独立、洗面化粧台、2口コンロ、駐輪場、宅配ボックス、光ファイバー、外壁タイル張り、防犯カメラ、オートバス、グリル付、保証人不要、24時間緊急通報システム、カードキー、CS、ネット専用回線、ネット使用料不要、24時間換気システム、人感照明センサー、エレベーター2基、24時間ゴミ出し可、風除室、敷地内ごみ置き場、当社管理物件、都市ガス、洗面所にドア、電動シャッター、ウォークインクロゼット2、BS、年度内入居可、IT重説対応物件、初期費用カード決済可、家賃カード決済可 入居日:'26年3月下旬 | ||
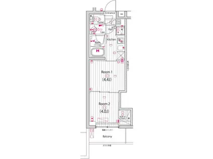
部屋の情報
| 間取り | 2K | 専有面積 | 25.37m2 |
|---|---|---|---|
| 所在階 / 向き | 1階 / 西 | バルコニー面積 | 3m2 |
| 水道 / ガス | - | ||
| 設備 | バス・トイレ別、オートロック、テレビドアホン、宅配ボックス、浴室乾燥機、ウォークインクローゼット、追い焚き、インターネット対応、システムキッチン、エアコン、エレベーター、温水洗浄便座、角部屋、バルコニー、フローリング、洗髪洗面化粧台、2口コンロ、コンロ:ガス、CSアンテナ、BSアンテナ、インターネット使用料無料、洗濯機:室内 | ||
| 当社物件ID | 46854099 | ||
建物の情報
| 建物名 | ガーラ元住吉グランドステージ | ||
|---|---|---|---|
| 所在地 | 神奈川県川崎市中原区井田中ノ町 | ||
| 交通 | 東急東横線 元住吉駅 徒歩11分 東急目黒線 元住吉駅 徒歩11分 | ||
| 階数 | 5階建 | 総戸数 | 164戸 |
| 築年月 | 2021年01月 / 築5年 | エレベーター | あり |
| 駐車場 | なし | バイク置き場 | - |
| 駐輪場 | あり | 管理人/管理会社 | - |
| 周辺環境 | その他 まいばすけっと井田中ノ町店(その他)まで357m その他 マルエツ元住吉店(その他)まで547m その他 ローソンストア100川崎元住吉店(コンビニ)まで272m その他 セブンイレブン川崎元住吉店(コンビニ)まで333m その他 サンドラッグ元住吉店(ドラッグストア)まで539m その他 トモズ元住吉店(ドラッグストア)まで609m | ||
| 建物種別 | マンション | 建物構造 | RC(鉄筋コンクリート) |
この部屋の取扱い不動産会社
| 会社名 | (株)FJネクスト(SUUMO経由) | ||
|---|---|---|---|
| 所在地 | 東京都新宿区西新宿6-5-1 新宿アイランドタワー11階 | 交通 | - |
| 営業時間 | 10:00~19:00 | 定休日 | 年中無休 |
| 免許番号 | 国土交通大臣9976 | 取引態様 | 代理 |
| 不動産会社管理番号 | 100480041133 | 当社管理番号 | 89 |
| 所属団体 | (公社)全日本不動産協会東京都本部会員 | ||
| 公正取引協議会 | (公社)首都圏不動産公正取引協議会加盟 | ||
| 取扱い物件情報 | 物件詳細へ | ||
※各種情報と現状に差異がある場合は、現状優先となります。問い合わせをすることで、より詳しい条件、情報を確認する事ができます。
提供:(株)FJネクスト(SUUMO経由)
この物件が気になったら掲載期限まであと11日
ガーラ元住吉グランドステージに条件(家賃・エリア)が近い物件一覧
| 写真 | 家賃 管理費等 | 敷金 礼金 | 間取り 専有面積 | 築年数 | 最寄り駅 所在地 | キープ | 詳細 |
|---|---|---|---|---|---|---|---|
アパート ブルーム菊名(1DK/1階) | |||||||
![]() | 7万円 なし | 7万円 なし | 1DK 31.78m2 | 築32年 | 東急東横線 菊名駅 徒歩6分 東急東横線 妙蓮寺駅 徒歩20分 ブルーライン 新横浜駅 徒歩23分 神奈川県横浜市港北区菊名 | 詳細を見る | |
アパート 龍ビル(ワンルーム/1階) | |||||||
![]() | 5.9万円 3,000円 | 5.9万円 5.9万円 | ワンルーム 15.12m2 | 築5年 | 横浜高速鉄道MM線 元町・中華街駅 徒歩4分 神奈川県横浜市中区山下町 | 詳細を見る | |
アパート ピオ生麦(1K/1階) | |||||||
![]() | 6.1万円 3,000円 | なし なし | 1K 18.75m2 | 築12年 | 京急本線 生麦駅 徒歩6分 京急本線 花月総持寺駅 徒歩9分 JR京浜東北線 鶴見駅 徒歩18分 神奈川県横浜市鶴見区岸谷 | 詳細を見る | |
アパート クレストヴューテラス(1LDK/2階) | |||||||
![]() | 8.9万円 なし | なし なし | 1LDK 50m2 | 築39年 | JR根岸線 山手駅 徒歩15分 みなとみらい線 元町・中華街駅 徒歩21分 神奈川県横浜市中区西之谷町 | 詳細を見る | |
アパート ハイツマ-プル(2K/2階) | |||||||
![]() | 5.7万円 6,000円 | 11.4万円 2.85万円 | 2K 37.5m2 | 築37年 | 相鉄本線 鶴ケ峰駅 徒歩16分 相鉄本線 二俣川駅 徒歩19分 相鉄いずみ野線 二俣川駅 徒歩19分 神奈川県横浜市旭区本宿町 | 詳細を見る | |
アパート BELLE SCENE MOTOSUMIYOSHI(ワンルーム/1階) | |||||||
![]() | 6.1万円 3,000円 | 6.1万円 6.1万円 | ワンルーム 10.7m2 | 築7年 | 東急東横線 元住吉駅 徒歩7分 東急目黒線 日吉駅(神奈川) 徒歩14分 JR横須賀線 武蔵小杉駅 徒歩25分 神奈川県川崎市中原区木月 | 詳細を見る | |
アパート エスペラントII(1LDK/1階) | |||||||
![]() | 8.3万円 2,000円 | 8.3万円 8.3万円 | 1LDK 39.64m2 | 築8年 | 相鉄本線 鶴ケ峰駅 徒歩9分 相鉄本線 西谷駅 徒歩20分 神奈川県横浜市旭区西川島町 | 詳細を見る | |








