賃貸マンション
ベルブラン船岡の賃貸物件情報(3LDK/3階)
| 家賃 | 管理費等 | 敷金 | 礼金 | 間取り | 専有面積 |
|---|---|---|---|---|---|
| 6.9万円 | 3,000円 | なし | 6.9万円 | 3LDK | 78.38m2 |
入居決定でお祝い金最大100,000円
- 保証金
- -
- 償却・敷引
- -
- 築年数
- 築19年
- 所在階
- 3階
- 向き
- 南
Point
柴田町・大河原町はピタットハウス岩沼店(株)FNEXTへお任せ☆県南の物件情報多数♪オートロック付きマンション☆最上階・南西角部屋☆日当たり良好☆リビングは広々18帖☆ご家族様にもおすすめ♪
提供:ピタットハウス岩沼店(株)F-NEXT(SUUMO経由)

詳細情報 ベルブラン船岡
物件紹介
ベルブラン船岡はJR東北本線船岡駅から徒歩8分にあり、駅近で通勤通学に便利なマンションです。
このお部屋は2階以上に位置しているので、通行人や周囲の住人からの視線が気になりにくく、防犯面でも安心。建物のエントランスはオートロックがついており、インターホンにはTVモニタもついているため、相手の顔を確認してから来客対応することができます。
人気の南向き・フローリングのお部屋。角部屋でもあるため、周囲の居住者の生活音も気になりにくい場所です。キッチンはシステムキッチン仕様になっていますので、お料理好きの方にもぴったり。また、バス・トイレは別で、のんびりお風呂タイムも楽しめるでしょう。
通信設備面ではBSアンテナがありますので、おうち時間も充実するでしょう(別途工事、契約料が必要な場合あり)。
このお部屋は2階以上に位置しているので、通行人や周囲の住人からの視線が気になりにくく、防犯面でも安心。建物のエントランスはオートロックがついており、インターホンにはTVモニタもついているため、相手の顔を確認してから来客対応することができます。
人気の南向き・フローリングのお部屋。角部屋でもあるため、周囲の居住者の生活音も気になりにくい場所です。キッチンはシステムキッチン仕様になっていますので、お料理好きの方にもぴったり。また、バス・トイレは別で、のんびりお風呂タイムも楽しめるでしょう。
通信設備面ではBSアンテナがありますので、おうち時間も充実するでしょう(別途工事、契約料が必要な場合あり)。
お金・契約の情報
※「-」と表示されているものは、実際は料金が発生するものもございます。詳細はお問い合わせください。
| 家賃 | 6.9万円 | 管理費・共益費 | 3,000円 |
|---|---|---|---|
| 敷金 | なし | 礼金 | 6.9万円 |
| 入居決定でお祝い金最大100,000円 | |||
| 保証金 | - | 償却・敷引 | - |
| 住宅保険料 | - | 更新料 | - |
| 契約形態 | - | 契約期間 | - |
| 入居・引渡期間 | 即時 | 現況 | - |
| 契約備考 | 巡回管理/※法人契約時、敷金2ヶ月となります。 合計7.31万円(内訳:ハウスクリーニング費:52800円、エアコン清掃費:6600円、鍵交換費:7700円、町内会費:6000円(月250円・2年分一括払い)) メンテ保証料:700円/月 3LDK 損保【要】 バストイレ別、バルコニー、エアコン、クロゼット、フローリング、シャワー付洗面台、TVインターホン、オートロック、室内洗濯置、シューズボックス、システムキッチン、南向き、角住戸、温水洗浄便座、脱衣所、洗面所独立、駐輪場、最上階、3口以上コンロ、対面式キッチン、照明付、駐車2台可、南西角住戸、全居室フローリング、物置、平坦地、南面2室、南面リビング、カーテン付、駅徒歩10分以内、平面駐車場、LDK18畳以上、プロパンガス、BS、IT重説対応物件、初期費用カード決済可、全室照明付 | ||
部屋の情報
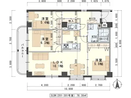
| 間取り | 3LDK | 専有面積 | 78.38m2 |
|---|---|---|---|
| 所在階 / 向き | 3階 / 南 | バルコニー面積 | - |
| 水道 / ガス | - | ||
| 設備 | バス・トイレ別、2階以上、オートロック、テレビドアホン、システムキッチン、エアコン、温水洗浄便座、南向き、角部屋、バルコニー、フローリング、洗髪洗面化粧台、2口コンロ、BSアンテナ、洗濯機:室内 | ||
| 当社物件ID | 47112832 | ||
建物の情報
| 建物名 | ベルブラン船岡 | ||
|---|---|---|---|
| 所在地 | 宮城県柴田郡柴田町船岡西 | ||
| 交通 | JR東北本線 船岡駅(宮城) 徒歩8分 阿武隈急行 東船岡駅 徒歩34分 JR東北本線 大河原駅(宮城) 徒歩36分 | ||
| 階数 | 3階建 | 総戸数 | - |
| 築年月 | 2008年01月 / 築19年 | エレベーター | - |
| 駐車場 | 空有 3300円 | バイク置き場 | - |
| 駐輪場 | あり | 管理人/管理会社 | - |
| 周辺環境 | その他 イオン船岡店(スーパー)まで2107m その他 ファミリーマート船岡中央店(コンビニ)まで540m その他 セブンイレブン柴田船岡中央3丁目店(コンビニ)まで623m その他 柴田町役場(役所)まで338m その他 七十七銀行船岡支店(銀行)まで450m その他 船岡城址公園(公園)まで849m | ||
| 建物種別 | マンション | 建物構造 | RC(鉄筋コンクリート) |
この部屋の取扱い不動産会社
| 会社名 | ピタットハウス岩沼店(株)F-NEXT(SUUMO経由) | ||
|---|---|---|---|
| 所在地 | 宮城県岩沼市桜5-4-47 | 交通 | - |
| 営業時間 | 9:00~18:00 | 定休日 | 毎週水曜日 |
| 免許番号 | 宮城県知事7203 | 取引態様 | 仲介 |
| 不動産会社管理番号 | 100456834779 | 当社管理番号 | 89 |
| 所属団体 | (公社)全日本不動産協会宮城県本部会員 | ||
| 公正取引協議会 | 東北地区不動産公正取引協議会加盟 | ||
| 取扱い物件情報 | 物件詳細へ | ||
※各種情報と現状に差異がある場合は、現状優先となります。問い合わせをすることで、より詳しい条件、情報を確認する事ができます。
提供:ピタットハウス岩沼店(株)F-NEXT(SUUMO経由)
この物件が気になったら掲載期限まであと6日
ベルブラン船岡に条件(家賃・エリア)が近い物件一覧
| 写真 | 家賃 管理費等 | 敷金 礼金 | 間取り 専有面積 | 築年数 | 最寄り駅 所在地 | キープ | 詳細 |
|---|---|---|---|---|---|---|---|
アパート シティハイム アーバンフラッツ(2LDK/1階) | |||||||
![]() | 4.5万円 1,000円 | なし なし | 2LDK 50.08m2 | 築27年 | JR東北本線 槻木駅 徒歩5分 阿武隈急行 東船岡駅 徒歩56分 JR東北本線 船岡駅(宮城) 徒歩62分 宮城県柴田郡柴田町槻木駅西 | 詳細を見る | |
アパート パシオンアミーゴ(2LDK/2階) | |||||||
![]() | 6.1万円 1,700円 | なし なし | 2LDK 65.64m2 | 築24年 | JR東北本線 岩沼駅 徒歩13分 宮城県岩沼市たけくま | 詳細を見る | |
アパート グランデージ桜(2LDK/2階) | |||||||
![]() | 7.4万円 4,000円 | 7.4万円 なし | 2LDK 51.9m2 | 築1年 | JR東北本線 北白川駅 徒歩32分 宮城県柴田郡大河原町金ケ瀬町 | 詳細を見る | |
アパート 347・スクウェアA(2DK/1階) | |||||||
![]() | 4.2万円 2,200円 | なし なし | 2DK 46.06m2 | 築27年 | 常磐線 亘理駅 徒歩7分 宮城県亘理郡亘理町 | 詳細を見る | |
アパート カーサ・フェリーチェS(1LDK/1階) | |||||||
![]() | 6.2万円 4,000円 | なし なし | 1LDK 43.24m2 | 築1年 | JR東北本線 北白川駅 徒歩26分 JR東北本線 大河原駅(宮城) 徒歩41分 JR東北本線 船岡駅(宮城) 徒歩80分 宮城県柴田郡大河原町金ケ瀬川根 | 詳細を見る | |
アパート K&SガーデンB棟(2LDK/2階) | |||||||
![]() | 4.7万円 なし | なし なし | 2LDK 61.9m2 | 築21年 | 阿武隈急行 角田駅 徒歩16分 阿武隈急行 南角田駅 徒歩26分 阿武隈急行 横倉駅(宮城) 徒歩42分 宮城県角田市角田田町 | 詳細を見る | |
アパート グランメゾン岩沼(1LDK/1階) | |||||||
![]() | 5.7万円 4,500円 | なし なし | 1LDK 31.6m2 | 築7年 | JR東北本線 岩沼駅 徒歩5分 JR東北本線 館腰駅 徒歩54分 JR常磐線 逢隈駅 徒歩86分 宮城県岩沼市土ケ崎 | 詳細を見る | |
アパート エテルノA(2LDK/2階) | |||||||
![]() | 5.25万円 2,300円 | なし 5.25万円 | 2LDK 57.21m2 | 築13年 | 常磐線 亘理駅 徒歩14分 宮城県亘理郡亘理町 | 詳細を見る | |





/105x80-f1-q70-wp1)



/105x80-f1-q70-wp1)