賃貸マンション
ウインベルソロ蒲田の賃貸物件情報(ワンルーム/1階)
| 家賃 | 管理費等 | 敷金 | 礼金 | 間取り | 専有面積 |
|---|---|---|---|---|---|
| 6万円 | 2,000円 | 6万円 | 6万円 | ワンルーム | 16.5m2 |
入居決定でお祝い金最大100,000円
Point
浮いたコストを生活スタートの原動力に使えます。スマホやPCの使用には不可欠なインターネット使用料無料の物件です。コンビニまで徒歩1分圏内!
提供:(株)興有(SUUMO経由)

詳細情報 ウインベルソロ蒲田
物件紹介
ウインベルソロ蒲田はJR京浜東北線蒲田駅から徒歩15分にあるマンションです。
このお部屋のインターホンにはTVモニタがついているため、相手の顔を確認してから来客対応することができます。
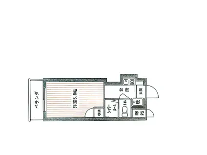
フローリングのお部屋なのでお掃除もラクラク。キッチンはシステムキッチン仕様になっていますので、お料理好きの方にもぴったり。また、バス・トイレは別で、のんびりお風呂タイムも楽しめるでしょう。
通信設備面では、インターネットが無料で使えるので、月々の出費を抑えられるのも魅力です。また、CATVにも対応しているので、おうち時間も充実するでしょう(別途工事、CATVの契約料等が必要な場合あり)。
このお部屋のインターホンにはTVモニタがついているため、相手の顔を確認してから来客対応することができます。
フローリングのお部屋なのでお掃除もラクラク。キッチンはシステムキッチン仕様になっていますので、お料理好きの方にもぴったり。また、バス・トイレは別で、のんびりお風呂タイムも楽しめるでしょう。
通信設備面では、インターネットが無料で使えるので、月々の出費を抑えられるのも魅力です。また、CATVにも対応しているので、おうち時間も充実するでしょう(別途工事、CATVの契約料等が必要な場合あり)。
お金・契約の情報
※「-」と表示されているものは、実際は料金が発生するものもございます。詳細はお問い合わせください。
| 家賃 | 6万円 | 管理費・共益費 | 2,000円 |
|---|---|---|---|
| 敷金 | 6万円 | 礼金 | 6万円 |
| 入居決定でお祝い金最大100,000円 | |||
| 保証金 | - | 償却・敷引 | - |
| 住宅保険料 | - | 更新料 | - |
| 保証会社利用 | 必須 | 保証会社名 | 日本セーフティー |
| 保証会社費用 | - | 保証会社備考 | 日本セーフティー利用必 初回保証料/賃料+管理費50% |
| 契約形態 | - | 契約期間 | - |
| 入居・引渡期間 | 相談 | 現況 | - |
| 契約備考 | 巡回管理/リフォーム:2026.1壁紙床・キッチン・トイレ・シャワールーム/喫煙不可 ワンルーム 単身者限定/子供不可 損保【2万円2年】 バストイレ別、バルコニー、エアコン、クロゼット、フローリング、TVインターホン、室内洗濯置、シューズボックス、システムキッチン、駐輪場、光ファイバー、閑静な住宅地、防犯カメラ、IHクッキングヒーター、電気コンロ、CATVインターネット、仲手0.55ヶ月、駅まで平坦、ネット使用料不要、内装リフォーム済、浴室未使用、トイレ未使用、敷地内ごみ置き場、当社管理物件、キッチン未使用、都市ガス、シャワールーム | ||
部屋の情報
| 間取り | ワンルーム | 専有面積 | 16.5m2 |
|---|---|---|---|
| 所在階 / 向き | 1階 / 北 | バルコニー面積 | - |
| 水道 / ガス | - | ||
| 設備 | バス・トイレ別、テレビドアホン、インターネット対応、システムキッチン、エアコン、バルコニー、フローリング、コンロ:IH、CATV、インターネット使用料無料、洗濯機:室内 | ||
| 当社物件ID | 160171254 | ||
建物の情報
| 建物名 | ウインベルソロ蒲田 | ||
|---|---|---|---|
| 所在地 | 東京都大田区中央 | ||
| 交通 | JR京浜東北線 蒲田駅 徒歩15分 | ||
| 階数 | 4階建 | 総戸数 | - |
| 築年月 | 1989年02月 / 築37年 | エレベーター | - |
| 駐車場 | なし | バイク置き場 | - |
| 駐輪場 | あり | 管理人/管理会社 | - |
| 周辺環境 | その他 まいばすけっと大森中央店(スーパー)まで452m その他 セブンイレブン大田区中央8丁目店(コンビニ)まで263m その他 ドラッグストアスマイル大森中央店(ドラッグストア)まで458m その他 ファミリーマート大田中央三丁目店(コンビニ)まで150m その他 大田中央八郵便局(郵便局)まで356m その他 私立東邦大学大森キャンパス(大学・短大)まで1120m | ||
| 建物種別 | マンション | 建物構造 | RC(鉄筋コンクリート) |
この部屋の取扱い不動産会社
| 会社名 | (株)興有(SUUMO経由) | ||
|---|---|---|---|
| 所在地 | 東京都大田区西糀谷3-36-1 | 交通 | - |
| 営業時間 | 9:30~17:30 | 定休日 | 日・祝日 |
| 免許番号 | 東京都知事44067 | 取引態様 | 仲介 |
| 不動産会社管理番号 | 100481463634 | 当社管理番号 | 89 |
| 所属団体 | (公社)東京都宅地建物取引業協会会員 | ||
| 公正取引協議会 | (公社)首都圏不動産公正取引協議会加盟 | ||
| 取扱い物件情報 | 物件詳細へ | ||
※各種情報と現状に差異がある場合は、現状優先となります。問い合わせをすることで、より詳しい条件、情報を確認する事ができます。
提供:(株)興有(SUUMO経由)
この物件が気になったら掲載期限まであと11日
ウインベルソロ蒲田に条件(家賃・エリア)が近い物件一覧
| 写真 | 家賃 管理費等 | 敷金 礼金 | 間取り 専有面積 | 築年数 | 最寄り駅 所在地 | キープ | 詳細 |
|---|---|---|---|---|---|---|---|
マンション AXAS東京イーストレジデンス(1K/2階) | |||||||
![]() | 8.4万円 1.1万円 | なし 8.4万円 | 1K 21.42m2 | 築18年 | 総武・中央緩行線 亀戸駅 徒歩4分 東京都新宿線 西大島駅 徒歩9分 総武・中央緩行線 錦糸町駅 徒歩13分 東京都江東区亀戸1丁目 | 詳細を見る | |
マンション SEED JUST B-BASE Ⅱ(1LDK/2階) | |||||||
![]() | 8.8万円 1.5万円 | 8.8万円 8.8万円 | 1LDK 23.07m2 | 新築 | 東京モノレール羽田 昭和島駅 徒歩11分 京浜急行電鉄本線 梅屋敷駅(東京) 徒歩19分 東京都大田区大森南4丁目 | 詳細を見る | |
マンション メゾン・ド・リビエール(ワンルーム/2階) | |||||||
![]() | 6万円 3,000円 | 6万円 なし | ワンルーム 16.2m2 | 築36年 | 東急池上線 御嶽山駅 徒歩5分 東急池上線 雪が谷大塚駅 徒歩5分 東急池上線 久が原駅 徒歩13分 東京都大田区北嶺町 | 詳細を見る | |
マンション NIKOハイム亀戸(ワンルーム/8階) | |||||||
![]() | 6.8万円 なし | 6.8万円 なし | ワンルーム 20.12m2 | 築40年 | JR総武線 亀戸駅 徒歩5分 東京メトロ半蔵門線 錦糸町駅 徒歩12分 都営新宿線 西大島駅 徒歩16分 東京都江東区亀戸 | 詳細を見る | |
マンション ラトレールエスポワール(1K/3階) | |||||||
![]() | 9.4万円 3,000円 | 9.4万円 なし | 1K 24.6m2 | 築23年 | 東急多摩川線 下丸子駅 徒歩4分 東急多摩川線 武蔵新田駅 徒歩14分 東京都大田区下丸子3丁目 | 詳細を見る | |
マンション MARS OASE(1K/3階) | |||||||
![]() | 8.9万円 3,000円 | 8.9万円 なし | 1K 27.04m2 | 築19年 | 京浜急行電鉄本線 大森町駅 徒歩14分 京浜急行電鉄本線 梅屋敷駅(東京) 徒歩19分 東京都大田区大森東3丁目 | 詳細を見る | |
マンション ミワビル(1K/2階) | |||||||
![]() | 8.8万円 3,000円 | 8.8万円 なし | 1K 35.15m2 | 築47年 | 京急本線 梅屋敷駅(東京) 徒歩6分 京急本線 大森町駅 徒歩12分 JR京浜東北線 蒲田駅 徒歩20分 東京都大田区大森西 | 詳細を見る | |
マンション 杉田ハイツ西大井(1K/2階) | |||||||
![]() | 7万円 2,000円 | 7万円 7万円 | 1K 19m2 | 築37年 | JR横須賀線 西大井駅 徒歩6分 都営浅草線 馬込駅 徒歩12分 都営浅草線 中延駅 徒歩13分 東京都品川区西大井 | 詳細を見る | |









