賃貸マンション
サーパス富樫の賃貸物件情報(3LDK/2階)
| 家賃 | 管理費等 | 敷金 | 礼金 | 間取り | 専有面積 |
|---|---|---|---|---|---|
| 9.1万円 | 8,000円 | 9.1万円 | 9.1万円 | 3LDK | 74.23m2 |
入居決定でお祝い金最大100,000円
Point
まずはお問い合わせ!
不動産会社は街のプロ、あなたに合った物件がきっと見つかります。
提供:(株)泰成商会(SUUMO経由)

詳細情報 サーパス富樫
物件紹介
サーパス富樫は北陸鉄道石川線野町駅から徒歩25分にあるマンションです。
このお部屋は2階以上に位置しているので、通行人や周囲の住人からの視線が気になりにくく、防犯面でも安心。建物のエントランスはオートロックがついており、インターホンにはTVモニタもついているため、相手の顔を確認してから来客対応することができます。
フローリングのお部屋なのでお掃除もラクラク。室内には人気のウォークインクローゼットがありますので、たくさんの荷物も効率的に収納ができます。キッチンはシステムキッチン仕様になっていますので、お料理好きの方にもぴったり。また、バス・トイレは別で、のんびりお風呂タイムも楽しめるでしょう。
通信設備面ではBSアンテナがありますので、おうち時間も充実するでしょう(別途工事、契約料が必要な場合あり)。
建物にはエレベーターがついているので、重い荷物があっても安心。共用部には宅配ボックスが設定されているので、不在の時にも荷物を受け取ることができます。
このお部屋は2階以上に位置しているので、通行人や周囲の住人からの視線が気になりにくく、防犯面でも安心。建物のエントランスはオートロックがついており、インターホンにはTVモニタもついているため、相手の顔を確認してから来客対応することができます。
フローリングのお部屋なのでお掃除もラクラク。室内には人気のウォークインクローゼットがありますので、たくさんの荷物も効率的に収納ができます。キッチンはシステムキッチン仕様になっていますので、お料理好きの方にもぴったり。また、バス・トイレは別で、のんびりお風呂タイムも楽しめるでしょう。
通信設備面ではBSアンテナがありますので、おうち時間も充実するでしょう(別途工事、契約料が必要な場合あり)。
建物にはエレベーターがついているので、重い荷物があっても安心。共用部には宅配ボックスが設定されているので、不在の時にも荷物を受け取ることができます。
お金・契約の情報
※「-」と表示されているものは、実際は料金が発生するものもございます。詳細はお問い合わせください。
| 家賃 | 9.1万円 | 管理費・共益費 | 8,000円 |
|---|---|---|---|
| 敷金 | 9.1万円 | 礼金 | 9.1万円 |
| 入居決定でお祝い金最大100,000円 | |||
| 保証金 | - | 償却・敷引 | - |
| 住宅保険料 | - | 更新料 | - |
| 保証会社利用 | 利用可 | 保証会社名 | 日本賃貸保証 |
| 保証会社費用 | - | 保証会社備考 | 日本賃貸保証利用可 契約時保証料:賃料総額の50% 毎月の保証料:賃料総額の1.5% |
| 契約形態 | - | 契約期間 | - |
| 入居・引渡期間 | 即時 | 現況 | - |
| 契約備考 | 法人契約の場合礼金2ヶ月 町費:月額500円 3LDK 普通借家2年 損保【1.64万円2年】 バストイレ別、バルコニー、エアコン、クロゼット、フローリング、TVインターホン、オートロック、室内洗濯置、システムキッチン、追焚機能浴室、温水洗浄便座、エレベーター、洗面所独立、洗面化粧台、駐輪場、宅配ボックス、押入、即入居可、3口以上コンロ、照明付、分譲賃貸、ウォークインクロゼット、敷金1ヶ月、LDK15畳以上、トランクルーム、敷地内ごみ置き場、平面駐車場、都市ガス、BS、礼金1ヶ月 | ||
部屋の情報
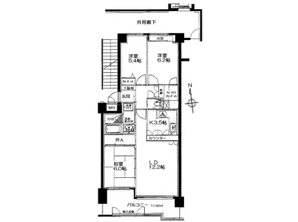
| 間取り | 3LDK | 専有面積 | 74.23m2 |
|---|---|---|---|
| 所在階 / 向き | 2階 / - | バルコニー面積 | - |
| 水道 / ガス | - | ||
| 設備 | バス・トイレ別、2階以上、オートロック、テレビドアホン、宅配ボックス、ウォークインクローゼット、追い焚き、システムキッチン、エアコン、エレベーター、温水洗浄便座、バルコニー、フローリング、トランクルーム、洗髪洗面化粧台、2口コンロ、BSアンテナ、洗濯機:室内 | ||
| 当社物件ID | 20471902 | ||
建物の情報
| 建物名 | サーパス富樫 | ||
|---|---|---|---|
| 所在地 | 石川県金沢市富樫 | ||
| 交通 | 北陸鉄道石川線 野町駅 徒歩25分 | ||
| 階数 | 6階建 | 総戸数 | - |
| 築年月 | 1999年03月 / 築28年 | エレベーター | あり |
| 駐車場 | 空有 8000円/平置駐 | バイク置き場 | - |
| 駐輪場 | あり | 管理人/管理会社 | - |
| 周辺環境 | その他 ニュー三久泉が丘店(スーパー)まで200m その他 ローソン金沢有松店(コンビニ)まで549m その他 クスリのアオキ泉が丘店(ドラッグストア)まで288m その他 国家公務員共済組合連合会北陸病院(病院)まで576m その他 金沢南郵便局(郵便局)まで797m その他 北陸銀行泉野支店(銀行)まで547m | ||
| 建物種別 | マンション | 建物構造 | RC(鉄筋コンクリート) |
この部屋の取扱い不動産会社
| 会社名 | (株)泰成商会(SUUMO経由) | ||
|---|---|---|---|
| 所在地 | 石川県金沢市横川7-84 | 交通 | - |
| 営業時間 | - | 定休日 | - |
| 免許番号 | 石川県知事1025 | 取引態様 | 仲介 |
| 不動産会社管理番号 | 100489992486 | 当社管理番号 | 89 |
| 所属団体 | (公社)石川県宅地建物取引業協会会員 | ||
| 公正取引協議会 | 北陸不動産公正取引協議会加盟 | ||
| 取扱い物件情報 | 物件詳細へ | ||
※各種情報と現状に差異がある場合は、現状優先となります。問い合わせをすることで、より詳しい条件、情報を確認する事ができます。
提供:(株)泰成商会(SUUMO経由)
この物件が気になったら掲載期限まであと1日
サーパス富樫に条件(家賃・エリア)が近い物件一覧
| 写真 | 家賃 管理費等 | 敷金 礼金 | 間取り 専有面積 | 築年数 | 最寄り駅 所在地 | キープ | 詳細 |
|---|---|---|---|---|---|---|---|
アパート DR長坂台COEUR(2LDK/1階) | |||||||
![]() | 9.5万円 6,500円 | なし 19万円 | 2LDK 54.67m2 | 新築 | 石川県金沢市円光寺 | 詳細を見る | |
アパート LE CALME(2LDK/3階) | |||||||
![]() | 14.3万円 7,000円 | なし 28.6万円 | 2LDK 62.8m2 | 築7年 | 石川県金沢市北安江1丁目 | 詳細を見る | |
マンション ファースト・レーベン高岡町(1LDK/4階) | |||||||
![]() | 7.8万円 8,900円 | 19.5万円 15.6万円 | 1LDK 41.17m2 | 築14年 | 石川県金沢市高岡町 | 詳細を見る | |
マンション グラシューII(2K/3階) | |||||||
![]() | 5.7万円 3,500円 | 11.4万円 なし | 2K 49.38m2 | 築22年 | IRいしかわ鉄道 野々市駅(IR) 徒歩10分 石川県金沢市上荒屋 | 詳細を見る | |
アパート セゾン・ド・フルールD(2LDK/2階) | |||||||
![]() | 5.8万円 4,000円 | なし 5万円 | 2LDK 62.91m2 | 築32年 | 石川県野々市市三納3丁目 | 詳細を見る | |
アパート ヴァリエメゾンII(1LDK/1階) | |||||||
![]() | 5.5万円 4,000円 | なし 5.5万円 | 1LDK 31.53m2 | 築8年 | 石川県白山市三幸町 | 詳細を見る | |
アパート STATION(1LDK/1階) | |||||||
![]() | 6.3万円 5,200円 | なし 6.3万円 | 1LDK 38.47m2 | 築11年 | IRいしかわ鉄道 松任駅 徒歩7分 IRいしかわ鉄道 野々市駅(IR) 徒歩42分 石川県白山市八ツ矢町 | 詳細を見る | |
アパート エスペランスI(2LDK/3階) | |||||||
![]() | 7.7万円 6,000円 | なし 7.7万円 | 2LDK 50.23m2 | 築13年 | IRいしかわ鉄道 津幡駅 徒歩14分 石川県河北郡津幡町字横浜 | 詳細を見る | |









