賃貸マンション
センターコート芝の賃貸物件情報(ワンルーム/5階)
| 家賃 | 管理費等 | 敷金 | 礼金 | 間取り | 専有面積 |
|---|---|---|---|---|---|
| 14万円 | 2万円 | 14万円 | なし | ワンルーム | 25.41m2 |
入居決定でお祝い金最大100,000円
- 保証金
- -
- 償却・敷引
- -
- 築年数
- 築7年
- 所在階
- 5階
- 向き
- 西
Point
★システムキッチン・2口IHコンロ★洗面台★クローゼット★TVモニター付きインターホン★オートロック★ダブルロック★駐輪場★そらうみリアルエステートへお気軽にお問い合わせください!★
提供:(株)ユウキ・ホーム麻布十番網代公園店(SUUMO経由)

詳細情報 センターコート芝
物件紹介
センターコート芝は都営三田線芝公園駅から徒歩5分にあり、駅近で通勤通学に便利なマンションです。
このお部屋は2階以上に位置しているので、通行人や周囲の住人からの視線が気になりにくく、防犯面でも安心。建物のエントランスはオートロックがついており、インターホンにはTVモニタもついているため、相手の顔を確認してから来客対応することができます。
おしゃれなデザイナーズ物件!フローリングのお部屋なのでお掃除もラクラク。キッチンはシステムキッチン仕様になっていますので、お料理好きの方にもぴったり。また、バス・トイレは別で、のんびりお風呂タイムも楽しめるでしょう。
通信設備面では、インターネットが無料で使えるので、月々の出費を抑えられるのも魅力です(別途工事等が必要な場合あり)。
建物にはエレベーターがついているので、重い荷物があっても安心。共用部には宅配ボックスが設定されているので、不在の時にも荷物を受け取ることができます。
このお部屋は2階以上に位置しているので、通行人や周囲の住人からの視線が気になりにくく、防犯面でも安心。建物のエントランスはオートロックがついており、インターホンにはTVモニタもついているため、相手の顔を確認してから来客対応することができます。
おしゃれなデザイナーズ物件!フローリングのお部屋なのでお掃除もラクラク。キッチンはシステムキッチン仕様になっていますので、お料理好きの方にもぴったり。また、バス・トイレは別で、のんびりお風呂タイムも楽しめるでしょう。
通信設備面では、インターネットが無料で使えるので、月々の出費を抑えられるのも魅力です(別途工事等が必要な場合あり)。
建物にはエレベーターがついているので、重い荷物があっても安心。共用部には宅配ボックスが設定されているので、不在の時にも荷物を受け取ることができます。
お金・契約の情報
※「-」と表示されているものは、実際は料金が発生するものもございます。詳細はお問い合わせください。
| 家賃 | 14万円 | 管理費・共益費 | 2万円 |
|---|---|---|---|
| 敷金 | 14万円 | 礼金 | なし |
| 入居決定でお祝い金最大100,000円 | |||
| 保証金 | - | 償却・敷引 | - |
| 住宅保険料 | - | 更新料 | - |
| 保証会社利用 | 必須 | 保証会社名 | - |
| 保証会社費用 | - | 保証会社備考 | 保証会社利用必 詳細はお問い合わせください |
| 契約形態 | - | 契約期間 | - |
| 入居・引渡期間 | 即時 | 現況 | - |
| 入居可能条件 | 事務所可 | ||
| 契約備考 | 巡回管理/駐輪場:有料※空詳細要確認 2年未満解約時賃料1ヶ月分違約金有り 合計3.5万円(内訳:鍵交換代) ワンルーム 単身者可/事務所利用相談 普通借家2年 損保【1.6万円2年】 バストイレ別、エアコン、クロゼット、フローリング、TVインターホン、オートロック、室内洗濯置、シューズボックス、システムキッチン、エレベーター、洗面化粧台、2口コンロ、駐輪場、宅配ボックス、即入居可、礼金不要、最上階、防犯カメラ、IHクッキングヒーター、保証人不要、デザイナーズ、2沿線利用可、ネット使用料不要、ダブルロックキー、2駅利用可、3駅以上利用可、3沿線以上利用可、駅徒歩5分以内、駅徒歩10分以内、敷地内ごみ置き場、都市ガス、保証会社利用可 | ||
部屋の情報
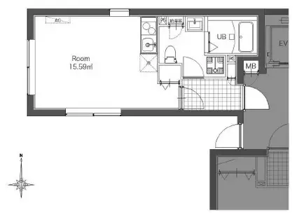
| 間取り | ワンルーム | 専有面積 | 25.41m2 |
|---|---|---|---|
| 所在階 / 向き | 5階 / 西 | バルコニー面積 | - |
| 水道 / ガス | - | ||
| 設備 | バス・トイレ別、2階以上、オートロック、テレビドアホン、宅配ボックス、インターネット対応、システムキッチン、エアコン、エレベーター、フローリング、2口コンロ、コンロ:IH、デザイナーズ、インターネット使用料無料、洗濯機:室内 | ||
| 当社物件ID | 159950128 | ||
建物の情報
| 建物名 | センターコート芝 | ||
|---|---|---|---|
| 所在地 | 東京都港区芝 | ||
| 交通 | 都営三田線 芝公園駅 徒歩5分 JR山手線 田町駅(東京) 徒歩11分 JR京浜東北線 浜松町駅 徒歩15分 | ||
| 階数 | 5階建 | 総戸数 | - |
| 築年月 | 2019年03月 / 築7年 | エレベーター | あり |
| 駐車場 | なし | バイク置き場 | - |
| 駐輪場 | あり | 管理人/管理会社 | - |
| 周辺環境 | その他 セブンイレブン 港区芝浦1丁目店(コンビニ)まで260m その他 まいばすけっと 海岸3丁目店(スーパー)まで325m その他 田町芝浦ファミリー薬局(ドラッグストア)まで413m | ||
| 建物種別 | マンション | 建物構造 | RC(鉄筋コンクリート) |
この部屋の取扱い不動産会社
| 会社名 | そらうみリアルエステート(株)賃貸事業本部(SUUMO経由) | ||
|---|---|---|---|
| 所在地 | 東京都港区麻布十番1-11-16 SHビル1階 | 交通 | - |
| 営業時間 | 午前9時30分~午後9時30分 | 定休日 | 無休 |
| 免許番号 | 東京都知事94395 | 取引態様 | 仲介 |
| 不動産会社管理番号 | 100475181294 | 当社管理番号 | 89 |
| 所属団体 | (公社)東京都宅地建物取引業協会会員 | ||
| 公正取引協議会 | (公社)首都圏不動産公正取引協議会加盟 | ||
| 取扱い物件情報 | 物件詳細へ | ||
※各種情報と現状に差異がある場合は、現状優先となります。問い合わせをすることで、より詳しい条件、情報を確認する事ができます。
提供:そらうみリアルエステート(株)賃貸事業本部(SUUMO経由)
この物件が気になったら掲載期限まであと9日
センターコート芝に条件(家賃・エリア)が近い物件一覧
| 写真 | 家賃 管理費等 | 敷金 礼金 | 間取り 専有面積 | 築年数 | 最寄り駅 所在地 | キープ | 詳細 |
|---|---|---|---|---|---|---|---|
マンション 品川シーサイドビュータワーI(1LDK/24階) | |||||||
![]() | 19.8万円 1.6万円 | なし 39.6万円 | 1LDK 53.4m2 | 築23年 | りんかい線 品川シーサイド駅 徒歩1分 JR京浜東北線 大井町駅 徒歩20分 東京都品川区東品川 | 詳細を見る | |
一戸建て 東京都新宿線 大島駅(東京) 徒歩7分 築77年(1DK) | |||||||
![]() | 15.8万円 1万円 | 15.8万円 15.8万円 | 1DK 27.91m2 | 築77年 | 東京都新宿線 大島駅(東京) 徒歩7分 東京都新宿線 西大島駅 徒歩7分 総武・中央緩行線 亀戸駅 徒歩11分 東京都江東区大島3丁目 | 詳細を見る | |
マンション ZOOM日本橋馬喰町(1K/8階) | |||||||
![]() | 13.1万円 9,000円 | 13.1万円 13.1万円 | 1K 26.09m2 | 築8年 | 総武本線 馬喰町駅 徒歩2分 東京都新宿線 馬喰横山駅 徒歩3分 東京都浅草線 東日本橋駅 徒歩3分 東京都千代田区東神田1丁目 | 詳細を見る | |
マンション プレール・ドゥーク東京CANAL(1K/6階) | |||||||
![]() | 10.6万円 1.1万円 | なし 10.6万円 | 1K 22.34m2 | 築20年 | 京葉線 潮見駅 徒歩7分 東京地下鉄有楽町線 豊洲駅 徒歩22分 東京地下鉄東西線 木場駅 徒歩23分 東京都江東区枝川3丁目 | 詳細を見る | |
マンション ヴァルトパーク南大井(1K/1階) | |||||||
![]() | 9.1万円 1万円 | 9.1万円 9.1万円 | 1K 24.72m2 | 築21年 | JR京浜東北線 大森駅(東京) 徒歩4分 京急本線 大森海岸駅 徒歩7分 JR横須賀線 西大井駅 徒歩27分 東京都品川区南大井 | 詳細を見る | |
マンション ジニア不動前(1DK/1階) | |||||||
![]() | 16.7万円 1.5万円 | 16.7万円 16.7万円 | 1DK 35.64m2 | 築5年 | 東急目黒線 不動前駅 徒歩7分 東急池上線 戸越銀座駅 徒歩11分 JR山手線 五反田駅 徒歩18分 東京都品川区西五反田 | 詳細を見る | |
マンション クレストコート門前仲町(1DK/10階) | |||||||
![]() | 15.5万円 1.2万円 | 15.5万円 なし | 1DK 26.14m2 | 築1年 | 都営大江戸線 門前仲町駅 徒歩7分 JR京葉線 越中島駅 徒歩11分 東京メトロ日比谷線 八丁堀駅(東京) 徒歩15分 東京都江東区永代 | 詳細を見る | |
マンション プラウドフラット南品川(1K/1階) | |||||||
![]() | 12.2万円 1万円 | 12.2万円 12.2万円 | 1K 25.44m2 | 築7年 | 京急本線 青物横丁駅 徒歩5分 りんかい線 品川シーサイド駅 徒歩11分 JR京浜東北線 大井町駅 徒歩16分 東京都品川区南品川 | 詳細を見る | |









