賃貸マンション
サンライズ兵庫の賃貸物件情報(1K/1階)
| 家賃 | 管理費等 | 敷金 | 礼金 | 間取り | 専有面積 |
|---|---|---|---|---|---|
| 6.1万円 | 5,000円 | なし | なし | 1K | 26.08m2 |
入居決定でお祝い金最大100,000円
- 保証金
- -
- 償却・敷引
- -
- 築年数
- 築8年
- 所在階
- 1階
- 向き
- 西
Point
収納はシューズボックス・クロゼットなど豊富なので、衣類や履き物の整理がしやすく便利です。室内設備は洗面化粧台・浴室乾燥機など充実した設備を備え付けています。神戸市の賃貸なら株式会社SuMiraiへ
提供:(株)SuMirai(SUUMO経由)

詳細情報 サンライズ兵庫
物件紹介
サンライズ兵庫は山陽電鉄本線大開駅から徒歩4分にあり、駅近で通勤通学に便利なマンションです。
建物のエントランスはオートロックがついており、インターホンにはTVモニタもついているため、相手の顔を確認してから来客対応することができます。
人気の角部屋で周囲の居住者の生活音も気になりにくく、また、フローリングのお部屋なのでお掃除もラクラク。キッチンはシステムキッチン仕様になっていますので、お料理好きの方にもぴったり。バス・トイレは別なので、のんびりお風呂タイムも楽しめるでしょう。また、雨の日でも浴室乾燥機を使えば、お洗濯も問題ありません。
通信設備面では、インターネットが無料で使えるので、月々の出費を抑えられるのも魅力です。また、BSアンテナ・CSアンテナがありCATVにも対応しているので、おうち時間も充実するでしょう(別途工事、BS・CS・CATVの契約料等が必要な場合あり)。
建物のエントランスはオートロックがついており、インターホンにはTVモニタもついているため、相手の顔を確認してから来客対応することができます。
人気の角部屋で周囲の居住者の生活音も気になりにくく、また、フローリングのお部屋なのでお掃除もラクラク。キッチンはシステムキッチン仕様になっていますので、お料理好きの方にもぴったり。バス・トイレは別なので、のんびりお風呂タイムも楽しめるでしょう。また、雨の日でも浴室乾燥機を使えば、お洗濯も問題ありません。
通信設備面では、インターネットが無料で使えるので、月々の出費を抑えられるのも魅力です。また、BSアンテナ・CSアンテナがありCATVにも対応しているので、おうち時間も充実するでしょう(別途工事、BS・CS・CATVの契約料等が必要な場合あり)。
お金・契約の情報
※「-」と表示されているものは、実際は料金が発生するものもございます。詳細はお問い合わせください。
| 家賃 | 6.1万円 | 管理費・共益費 | 5,000円 |
|---|---|---|---|
| 敷金 | なし | 礼金 | なし |
| 入居決定でお祝い金最大100,000円 | |||
| 保証金 | - | 償却・敷引 | - |
| 住宅保険料 | - | 更新料 | - |
| 契約形態 | - | 契約期間 | - |
| 入居・引渡期間 | 相談 | 現況 | - |
| 契約備考 | 通勤管理 1K 普通借家2年 損保【2万円2年】 バストイレ別、バルコニー、エアコン、ガスコンロ対応、クロゼット、フローリング、TVインターホン、浴室乾燥機、オートロック、室内洗濯置、シューズボックス、システムキッチン、角住戸、温水洗浄便座、脱衣所、洗面所独立、洗面化粧台、2口コンロ、駐輪場、CATV、光ファイバー、礼金不要、BS・CS、敷金不要、防犯カメラ、保証人不要、2沿線利用可、ディンプルキー、CS、ネット使用料不要、クロゼット3ヶ所、2駅利用可、3駅以上利用可、3沿線以上利用可、駅徒歩5分以内、駅徒歩10分以内、II型キッチン、都市ガス、洗面所にドア、BS、敷金・礼金不要 | ||
部屋の情報
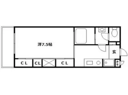
| 間取り | 1K | 専有面積 | 26.08m2 |
|---|---|---|---|
| 所在階 / 向き | 1階 / 西 | バルコニー面積 | - |
| 水道 / ガス | - | ||
| 設備 | バス・トイレ別、オートロック、テレビドアホン、浴室乾燥機、インターネット対応、システムキッチン、エアコン、温水洗浄便座、角部屋、バルコニー、フローリング、洗髪洗面化粧台、2口コンロ、コンロ:ガス、CATV、CSアンテナ、BSアンテナ、インターネット使用料無料、洗濯機:室内 | ||
| 当社物件ID | 28951499 | ||
建物の情報
| 建物名 | サンライズ兵庫 | ||
|---|---|---|---|
| 所在地 | 兵庫県神戸市兵庫区中道通 | ||
| 交通 | 山陽電鉄本線 大開駅 徒歩4分 地下鉄西神・山手線 上沢駅 徒歩5分 JR山陽本線 兵庫駅 徒歩10分 | ||
| 階数 | 3階建 | 総戸数 | 15戸 |
| 築年月 | 2018年11月 / 築8年 | エレベーター | - |
| 駐車場 | 近隣 50m16000円 | バイク置き場 | - |
| 駐輪場 | あり | 管理人/管理会社 | - |
| 周辺環境 | その他 播州信用金庫兵庫支店(銀行)まで554m その他 関西スーパー 大開店(スーパー)まで419m その他 セブンイレブン 神戸中道通8丁目店(コンビニ)まで181m その他 医療法人榮昌会吉田病院(病院)まで531m その他 神戸中道郵便局(郵便局)まで212m その他 兵庫警察署皿池交番(警察署・交番)まで284m | ||
| 建物種別 | マンション | 建物構造 | 鉄骨造 |
この部屋の取扱い不動産会社
| 会社名 | (株)SuMirai(SUUMO経由) | ||
|---|---|---|---|
| 所在地 | 兵庫県神戸市中央区琴ノ緒町5-29-501 | 交通 | - |
| 営業時間 | 9:00~19:00 | 定休日 | 水曜日 |
| 免許番号 | 兵庫県知事12483 | 取引態様 | 仲介 |
| 不動産会社管理番号 | 100470566243 | 当社管理番号 | 89 |
| 所属団体 | (公社)全日本不動産協会兵庫県本部会員 | ||
| 公正取引協議会 | (公社)近畿地区不動産公正取引協議会加盟 | ||
| 取扱い物件情報 | 物件詳細へ | ||
※各種情報と現状に差異がある場合は、現状優先となります。問い合わせをすることで、より詳しい条件、情報を確認する事ができます。
提供:(株)SuMirai(SUUMO経由)
この物件が気になったら掲載期限まであと10日
サンライズ兵庫に条件(家賃・エリア)が近い物件一覧
| 写真 | 家賃 管理費等 | 敷金 礼金 | 間取り 専有面積 | 築年数 | 最寄り駅 所在地 | キープ | 詳細 |
|---|---|---|---|---|---|---|---|
アパート 神戸電鉄粟生線 広野ゴルフ場前駅 徒歩17分 築18年(1K/1階) | |||||||
![]() | 5万円 5,000円 | なし 5万円 | 1K 29.98m2 | 築18年 | 神戸電鉄粟生線 広野ゴルフ場前駅 徒歩17分 神戸電鉄粟生線 緑が丘駅(兵庫) 徒歩19分 神戸電鉄粟生線 押部谷駅 徒歩40分 兵庫県三木市緑が丘町西2丁目 | 詳細を見る | |
アパート トダビル(2DK/2階) | |||||||
![]() | 4.6万円 なし | なし 4.6万円 | 2DK 50m2 | 築39年 | 神戸電鉄粟生線 三木駅(神戸電鉄) 徒歩10分 神戸電鉄粟生線 大村駅(兵庫) 徒歩17分 神戸電鉄粟生線 三木上の丸駅 徒歩19分 兵庫県三木市加佐 | 詳細を見る | |
アパート ヒカルサ稲美天満Ⅱ(2LDK/1階) | |||||||
![]() | 8.35万円 3,900円 | なし 8.35万円 | 2LDK 56.48m2 | 新築 | 兵庫県加古郡稲美町六分一 | 詳細を見る | |
アパート サンシャイン大塚(1K/2階) | |||||||
![]() | 4.8万円 なし | 4.8万円 4.8万円 | 1K 23.77m2 | 築24年 | 神戸電鉄粟生線 恵比須駅 徒歩4分 神戸電鉄粟生線 三木上の丸駅 徒歩6分 神戸電鉄粟生線 三木駅(神戸電鉄) 徒歩10分 兵庫県三木市大塚 | 詳細を見る | |
マンション ローレルハイツ三木2号棟(2LDK/4階) | |||||||
![]() | 5万円 なし | なし 5万円 | 2LDK 54.8m2 | 築53年 | 神戸電鉄粟生線 三木駅(神戸電鉄) 徒歩11分 神戸電鉄粟生線 三木上の丸駅 徒歩16分 神戸電鉄粟生線 大村駅(兵庫) 徒歩19分 兵庫県三木市加佐 | 詳細を見る | |
マンション 山陽本線 西明石駅 徒歩3分 築41年(1K/1階) | |||||||
![]() | 4万円 5,000円 | なし 4万円 | 1K 21m2 | 築41年 | 山陽本線 西明石駅 徒歩3分 山陽電気鉄道本線 藤江駅 徒歩17分 山陽電気鉄道本線 林崎松江海岸駅 徒歩30分 兵庫県明石市西明石西町1丁目 | 詳細を見る | |
マンション 神戸電鉄公園都市線 南ウッディタウン駅 徒歩2分 築39年(3DK/5階) | |||||||
![]() | 6.82万円 5,000円 | 13.64万円 なし | 3DK 61m2 | 築39年 | 神戸電鉄公園都市線 南ウッディタウン駅 徒歩2分 兵庫県三田市すずかけ台2丁目 | 詳細を見る | |
マンション 神戸電鉄公園都市線 南ウッディタウン駅 徒歩10分 築27年(2LDK/5階) | |||||||
![]() | 6.62万円 6,500円 | 13.24万円 なし | 2LDK 77m2 | 築27年 | 神戸電鉄公園都市線 南ウッディタウン駅 徒歩10分 兵庫県三田市すずかけ台4丁目 | 詳細を見る | |








