賃貸マンション
クレイシア秋葉原ラグゼスイートの賃貸物件情報(1DK/3階)
| 家賃 | 管理費等 | 敷金 | 礼金 | 間取り | 専有面積 |
|---|---|---|---|---|---|
| 15.3万円 | 1.2万円 | 15.3万円 | 15.3万円 | 1DK | 30.48m2 |
入居決定でお祝い金最大100,000円
- 保証金
- -
- 償却・敷引
- -
- 築年数
- 築7年
- 所在階
- 3階
- 向き
- 西
Point
【秋葉原駅の物件情報数No1!物件のメリットデメリット、学区やエリア特性などもご紹介】お問合せはプリモホームへ→TEL:03-5289-8777
提供:Primo Home (株)ライズ(SUUMO経由)

詳細情報 クレイシア秋葉原ラグゼスイート
物件紹介
クレイシア秋葉原ラグゼスイートはJR総武線快速馬喰町駅から徒歩5分にあり、駅近で通勤通学に便利なマンションです。
このお部屋は2階以上に位置しているので、通行人や周囲の住人からの視線が気になりにくく、防犯面でも安心。建物のエントランスはオートロックがついており、インターホンにはTVモニタもついているため、相手の顔を確認してから来客対応することができます。
おしゃれなデザイナーズ物件!人気の角部屋で周囲の居住者の生活音も気になりにくく、また、フローリングのお部屋なのでお掃除もラクラク。キッチンはシステムキッチン仕様になっていますので、お料理好きの方にもぴったり。バス・トイレは別なので、のんびりお風呂タイムも楽しめるでしょう。また、雨の日でも浴室乾燥機を使えば、お洗濯も問題ありません。
通信設備面では、インターネットが無料で使えるので、月々の出費を抑えられるのも魅力です。また、BSアンテナ・CSアンテナもありますので、おうち時間も充実するでしょう(別途工事、BS・CSの契約料等が必要な場合あり)。
建物にはエレベーターがついているので、重い荷物があっても安心。共用部には宅配ボックスが設定されているので、不在の時にも荷物を受け取ることができます。
このお部屋は2階以上に位置しているので、通行人や周囲の住人からの視線が気になりにくく、防犯面でも安心。建物のエントランスはオートロックがついており、インターホンにはTVモニタもついているため、相手の顔を確認してから来客対応することができます。
おしゃれなデザイナーズ物件!人気の角部屋で周囲の居住者の生活音も気になりにくく、また、フローリングのお部屋なのでお掃除もラクラク。キッチンはシステムキッチン仕様になっていますので、お料理好きの方にもぴったり。バス・トイレは別なので、のんびりお風呂タイムも楽しめるでしょう。また、雨の日でも浴室乾燥機を使えば、お洗濯も問題ありません。
通信設備面では、インターネットが無料で使えるので、月々の出費を抑えられるのも魅力です。また、BSアンテナ・CSアンテナもありますので、おうち時間も充実するでしょう(別途工事、BS・CSの契約料等が必要な場合あり)。
建物にはエレベーターがついているので、重い荷物があっても安心。共用部には宅配ボックスが設定されているので、不在の時にも荷物を受け取ることができます。
お金・契約の情報
※「-」と表示されているものは、実際は料金が発生するものもございます。詳細はお問い合わせください。
| 家賃 | 15.3万円 | 管理費・共益費 | 1.2万円 |
|---|---|---|---|
| 敷金 | 15.3万円 | 礼金 | 15.3万円 |
| 入居決定でお祝い金最大100,000円 | |||
| 保証金 | - | 償却・敷引 | - |
| 住宅保険料 | - | 更新料 | - |
| 保証会社利用 | 必須 | 保証会社名 | - |
| 保証会社費用 | - | 保証会社備考 | 保証会社利用必 初回保証料:総賃料の40%から ※詳細はお問合せください。 |
| 契約形態 | 定期借家 | 契約期間 | 2年 |
| 入居・引渡期間 | - | 現況 | - |
| 契約備考 | 【先行契約受付中!築浅分譲マンション♪】 ★初期費用はお手元のクレカ決済が可能です!クレカをお持ちでない方・クレカ利用を控えたい方の分割決済も対応!★法人様契約可能!社宅担当者がサポートいたします。★ネット非公開の物件からも類似物件をたくさんご提案!ベストなお部屋をご紹いたします♪ 合計3.52万円(内訳:鍵交換費用:35200円) 抗菌代:8800円 24hサポート(月額):1100円 1DK 単身者可 定期借家2年 バストイレ別、バルコニー、エアコン、ガスコンロ対応、クロゼット、フローリング、TVインターホン、浴室乾燥機、オートロック、室内洗濯置、シューズボックス、システムキッチン、追焚機能浴室、角住戸、温水洗浄便座、脱衣所、エレベーター、洗面所独立、2口コンロ、駐輪場、宅配ボックス、外壁タイル張り、2面採光、BS・CS、防犯カメラ、分譲賃貸、オートバス、保証人不要、単身者相談、敷金1ヶ月、二人入居相談、全居室フローリング、ガスレンジ付、デザイナーズ、2沿線利用可、CS、ネット専用回線、駅まで平坦、ネット使用料不要、ダブルロックキー、保証金不要、24時間換気システム、耐震構造、2駅利用可、3駅以上利用可、3沿線以上利用可、24時間ゴミ出し可、敷地内ごみ置き場、都市ガス、天井高シューズクロゼット、玄関収納、BS、礼金1ヶ月、保証会社利用可、IT重説対応物件、初期費用カード決済可 入居日:'26年3月中旬 | ||
部屋の情報
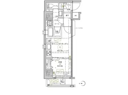
| 間取り | 1DK | 専有面積 | 30.48m2 |
|---|---|---|---|
| 所在階 / 向き | 3階 / 西 | バルコニー面積 | - |
| 水道 / ガス | - | ||
| 設備 | バス・トイレ別、2階以上、オートロック、テレビドアホン、宅配ボックス、浴室乾燥機、追い焚き、インターネット対応、システムキッチン、エアコン、エレベーター、温水洗浄便座、角部屋、バルコニー、フローリング、洗髪洗面化粧台、2口コンロ、コンロ:ガス、デザイナーズ、CSアンテナ、BSアンテナ、インターネット使用料無料、洗濯機:室内 | ||
| 当社物件ID | 29640343 | ||
建物の情報
| 建物名 | クレイシア秋葉原ラグゼスイート | ||
|---|---|---|---|
| 所在地 | 東京都千代田区東神田 | ||
| 交通 | JR総武線快速 馬喰町駅 徒歩5分 JR山手線 秋葉原駅 徒歩8分 JR山手線 神田駅(東京) 徒歩15分 | ||
| 階数 | 12階建 | 総戸数 | 66戸 |
| 築年月 | 2019年03月 / 築7年 | エレベーター | あり |
| 駐車場 | なし | バイク置き場 | - |
| 駐輪場 | あり | 管理人/管理会社 | - |
| 周辺環境 | その他 まいばすけっと神田佐久間町店(スーパー)まで353m その他 セブンイレブン東神田2丁目店(コンビニ)まで130m その他 スギ薬局岩本町店(ドラッグストア)まで343m その他 なか卯秋葉原昭和通り口店(飲食店)まで189m その他 朝日生命成人病研究所附属医院(病院)まで326m その他 東神田郵便局(郵便局)まで140m | ||
| 建物種別 | マンション | 建物構造 | RC(鉄筋コンクリート) |
この部屋の取扱い不動産会社
| 会社名 | Primo Home (株)ライズ(SUUMO経由) | ||
|---|---|---|---|
| 所在地 | 東京都千代田区神田紺屋町 27 ベスト紺屋町2階 | 交通 | - |
| 営業時間 | 10:00~18:00 18時以降もご相談ください | 定休日 | 水曜日 |
| 免許番号 | 東京都知事100653 | 取引態様 | 仲介 |
| 不動産会社管理番号 | 100484063213 | 当社管理番号 | 89 |
| 所属団体 | (公社)全日本不動産協会東京都本部会員 | ||
| 公正取引協議会 | (公社)首都圏不動産公正取引協議会加盟 | ||
| 取扱い物件情報 | 物件詳細へ | ||
※各種情報と現状に差異がある場合は、現状優先となります。問い合わせをすることで、より詳しい条件、情報を確認する事ができます。
提供:Primo Home (株)ライズ(SUUMO経由)
この物件が気になったら掲載期限まであと10日
クレイシア秋葉原ラグゼスイートに条件(家賃・エリア)が近い物件一覧
| 写真 | 家賃 管理費等 | 敷金 礼金 | 間取り 専有面積 | 築年数 | 最寄り駅 所在地 | キープ | 詳細 |
|---|---|---|---|---|---|---|---|
マンション エスタート三ノ輪(1K/11階) | |||||||
![]() | 11.6万円 1.2万円 | なし なし | 1K 25.73m2 | 築5年 | 東京地下鉄日比谷線 三ノ輪駅 徒歩6分 東京都台東区竜泉3丁目 | 詳細を見る | |
マンション レジディア文京本駒込(1K/5階) | |||||||
![]() | 13.6万円 1.5万円 | なし なし | 1K 29.16m2 | 築18年 | 東京地下鉄南北線 本駒込駅 徒歩5分 山手線 駒込駅 徒歩10分 東京都三田線 白山駅(東京) 徒歩11分 東京都文京区本駒込3丁目 | 詳細を見る | |
マンション ラフィーネ音羽(1LDK/3階) | |||||||
![]() | 18.9万円 1万円 | なし なし | 1LDK 40.45m2 | 築7年 | 東京地下鉄有楽町線 江戸川橋駅 徒歩4分 東京地下鉄有楽町線 護国寺駅 徒歩6分 東京地下鉄丸ノ内線 茗荷谷駅 徒歩13分 東京都文京区音羽1丁目 | 詳細を見る | |
マンション パークキューブ神田(1K/10階) | |||||||
![]() | 15.3万円 1万円 | 15.3万円 なし | 1K 30.7m2 | 築21年 | 東京都新宿線 岩本町駅 徒歩3分 中央本線 神田駅(東京) 徒歩3分 山手線 秋葉原駅 徒歩6分 東京都千代田区神田須田町2丁目 | 詳細を見る | |
マンション ヴェラハイツ日本橋蛎殻町(ワンルーム/2階) | |||||||
![]() | 10.5万円 1.5万円 | 10.5万円 10.5万円 | ワンルーム 26.9m2 | 築43年 | 東京地下鉄日比谷線 茅場町駅 徒歩5分 東京地下鉄東西線 茅場町駅 徒歩5分 東京都浅草線 人形町駅 徒歩7分 東京都中央区日本橋蛎殻町1丁目 | 詳細を見る | |
マンション マガンダ(1DK/4階) | |||||||
![]() | 10.6万円 7,000円 | 5.3万円 15.9万円 | 1DK 32.35m2 | 築13年 | 東京地下鉄日比谷線 南千住駅 徒歩7分 東京地下鉄日比谷線 三ノ輪駅 徒歩12分 東京都荒川線 三ノ輪橋駅 徒歩15分 東京都台東区清川2丁目 | 詳細を見る | |
マンション R-STYLE文京小石川(ワンルーム/7階) | |||||||
![]() | 22.2万円 1.9万円 | なし なし | ワンルーム 42.54m2 | 築13年 | 東京地下鉄有楽町線 江戸川橋駅 徒歩9分 東京都文京区水道2丁目 | 詳細を見る | |
マンション QU4TTRO ARCA 九段(1K/4階) | |||||||
![]() | 17.5万円 1万円 | 17.5万円 なし | 1K 29.33m2 | 築7年 | 東京地下鉄東西線 九段下駅 徒歩2分 総武・中央緩行線 飯田橋駅 徒歩8分 東京都三田線 水道橋駅 徒歩8分 東京都千代田区九段北1丁目 | 詳細を見る | |









