賃貸マンション
エクサム初台の賃貸物件情報(ワンルーム/3階)
| 家賃 | 管理費等 | 敷金 | 礼金 | 間取り | 専有面積 |
|---|---|---|---|---|---|
| 11.3万円 | 8,000円 | なし | なし | ワンルーム | 20.41m2 |
入居決定でお祝い金最大100,000円
Point
まずはお問い合わせ!
不動産会社は街のプロ、あなたに合った物件がきっと見つかります。
提供:(株)LOHOUSE三田店(SUUMO経由)

詳細情報 エクサム初台
物件紹介
エクサム初台は京王新線幡ケ谷駅から徒歩9分にあり、駅近で通勤通学に便利なマンションです。
このお部屋は2階以上に位置しているので、通行人や周囲の住人からの視線が気になりにくく、防犯面でも安心。建物のエントランスはオートロックがついており、インターホンにはTVモニタもついているため、相手の顔を確認してから来客対応することができます。
おしゃれなデザイナーズ物件!人気の南向きのお部屋。また、フローリングなのでお掃除もラクラク。キッチンはシステムキッチン仕様になっていますので、お料理好きの方にもぴったり。バス・トイレは別なので、のんびりお風呂タイムも楽しめるでしょう。また、雨の日でも浴室乾燥機を使えば、お洗濯も問題ありません。
通信設備面では、インターネット接続が可能です。また、BSアンテナ・CSアンテナがありCATVにも対応しているので、おうち時間も充実するでしょう(別途工事、契約料が必要な場合あり)。
共用部には宅配ボックスが設定されているので、不在の時にも荷物を受け取ることができます。
コンビニまで徒歩5分の場所にあり、日用品や食料品のお買い物にも便利です。
このお部屋は2階以上に位置しているので、通行人や周囲の住人からの視線が気になりにくく、防犯面でも安心。建物のエントランスはオートロックがついており、インターホンにはTVモニタもついているため、相手の顔を確認してから来客対応することができます。
おしゃれなデザイナーズ物件!人気の南向きのお部屋。また、フローリングなのでお掃除もラクラク。キッチンはシステムキッチン仕様になっていますので、お料理好きの方にもぴったり。バス・トイレは別なので、のんびりお風呂タイムも楽しめるでしょう。また、雨の日でも浴室乾燥機を使えば、お洗濯も問題ありません。
通信設備面では、インターネット接続が可能です。また、BSアンテナ・CSアンテナがありCATVにも対応しているので、おうち時間も充実するでしょう(別途工事、契約料が必要な場合あり)。
共用部には宅配ボックスが設定されているので、不在の時にも荷物を受け取ることができます。
コンビニまで徒歩5分の場所にあり、日用品や食料品のお買い物にも便利です。
お金・契約の情報
※「-」と表示されているものは、実際は料金が発生するものもございます。詳細はお問い合わせください。
| 家賃 | 11.3万円 | 管理費・共益費 | 8,000円 |
|---|---|---|---|
| 敷金 | なし | 礼金 | なし |
| 入居決定でお祝い金最大100,000円 | |||
| 保証金 | - | 償却・敷引 | - |
| 住宅保険料 | 1円 | 更新料 | - |
| その他費用 | プレミアデスク(税込/2年):2.2万円、60500円: | ||
| 保証会社利用 | 必須 | 保証会社名 | エポスカード |
| 保証会社費用 | - | 保証会社備考 | ※エポス ルームIDからの審査になります。 【ルームID】月額総賃料の50%/月次保証料、月額総賃料の1.5%/1年毎10,000円 ●エポスグローバルプラン利用時:月額総賃料の100%,月額総賃 |
| 契約形態 | - | 契約期間 | 2年 |
| 入居・引渡期間 | 相談 | 現況 | - |
| 入居可能条件 | 事務所不可、楽器不可、ペット不可 | ||
| 契約備考 | 鍵交換費用:38500 その他設備/条件:室内洗濯機置き場、独立洗面台 | ||
部屋の情報
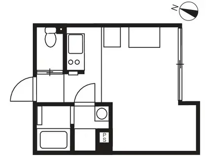
| 間取り | ワンルーム | 専有面積 | 20.41m2 |
|---|---|---|---|
| 所在階 / 向き | 3階 / 南 | バルコニー面積 | - |
| 水道 / ガス | 水道【公営】、ガス【都市】 | ||
| 設備 | バス・トイレ別、オートロック、宅配ボックス、浴室乾燥機、インターネット対応、システムキッチン、エアコン、温水洗浄便座、フローリング、2口コンロ、コンロ:IH、デザイナーズ、シャワー、給湯 | ||
| 当社物件ID | 17096789 | ||
建物の情報
| 建物名 | エクサム初台 | ||
|---|---|---|---|
| 所在地 | 東京都渋谷区本町6丁目 | ||
| 交通 | 京王電鉄京王線 幡ケ谷駅 徒歩9分 京王電鉄京王線 初台駅 徒歩11分 | ||
| 階数 | 4階建 | 総戸数 | 15戸 |
| 築年月 | 2015年01月 / 築12年 | エレベーター | - |
| 駐車場 | ご確認ください | バイク置き場 | - |
| 駐輪場 | - | 管理人/管理会社 | - |
| 周辺環境 | コンビニ 徒歩5分(361m) 販売店 徒歩7分(485m) その他 ドラッグストア その他 公園 その他 銀行 その他 * | ||
| 建物種別 | マンション | 建物構造 | RC(鉄筋コンクリート) |
この部屋の取扱い不動産会社
| 会社名 | ハウスコム西東京株式会社 明大前店 | ||
|---|---|---|---|
| 所在地 | 東京都世田谷区44-1グランシーン明大前1階 | 交通 | - |
| 営業時間 | 10:00~18:00 | 定休日 | - |
| 免許番号 | 東京都知事(1)第108225号 | 取引態様 | 仲介 |
| 不動産会社管理番号 | HC5-4425047-0303-0133 | 当社管理番号 | 468 |
| 所属団体 | 、 | ||
| 取扱い物件情報 | 物件詳細へ | ||
※各種情報と現状に差異がある場合は、現状優先となります。問い合わせをすることで、より詳しい条件、情報を確認する事ができます。
提供:ハウスコム西東京株式会社 明大前店
この物件が気になったら掲載期限まであと5日
エクサム初台に条件(家賃・エリア)が近い物件一覧
| 写真 | 家賃 管理費等 | 敷金 礼金 | 間取り 専有面積 | 築年数 | 最寄り駅 所在地 | キープ | 詳細 |
|---|---|---|---|---|---|---|---|
マンション アジュール目黒不動前(1DK/1階) | |||||||
![]() | 14.5万円 5,000円 | 14.5万円 29万円 | 1DK 38.14m2 | 築12年 | 東急目黒線 不動前駅 徒歩9分 東急池上線 戸越銀座駅 徒歩11分 東急池上線 大崎広小路駅 徒歩12分 東京都品川区西五反田 | 詳細を見る | |
マンション YELLOW PARROT(1LDK/1階) | |||||||
![]() | 16.5万円 9,000円 | 16.5万円 33万円 | 1LDK 39.21m2 | 築7年 | 東急池上線 大崎広小路駅 徒歩6分 JR山手線 五反田駅 徒歩8分 東急目黒線 不動前駅 徒歩10分 東京都品川区西五反田 | 詳細を見る | |
マンション GRAN PASEO大森Ⅲ(ワンルーム/1階) | |||||||
![]() | 11万円 1万円 | なし なし | ワンルーム 20.01m2 | 築1年 | 京浜急行電鉄本線 大森海岸駅 徒歩6分 京浜東北・根岸線 大森駅(東京) 徒歩10分 東京モノレール羽田 大井競馬場前駅 徒歩22分 東京都品川区南大井3丁目 | 詳細を見る | |
アパート フォレスタ世田谷(2LDK/2階) | |||||||
![]() | 18万円 1,000円 | 18万円 なし | 2LDK 47.7m2 | 築55年 | 東急池上線 雪が谷大塚駅 徒歩6分 東急東横線 田園調布駅 徒歩16分 東急目黒線 多摩川駅 徒歩16分 東京都世田谷区東玉川 | 詳細を見る | |
マンション エクレールフジタ(2K/3階) | |||||||
![]() | 10万円 なし | 10万円 10万円 | 2K 30m2 | 築45年 | 東急池上線 荏原中延駅 徒歩2分 都営浅草線 中延駅 徒歩8分 東急大井町線 戸越公園駅 徒歩10分 東京都品川区中延 | 詳細を見る | |
マンション デコート代々木上原(1K/1階) | |||||||
![]() | 12.5万円 5,000円 | 6.25万円 25万円 | 1K 30.88m2 | 築20年 | 東京メトロ千代田線 代々木上原駅 徒歩5分 小田急線 東北沢駅 徒歩12分 小田急線 代々木八幡駅 徒歩13分 東京都渋谷区上原 | 詳細を見る | |







