賃貸マンション
プライムレジデンス市川の賃貸物件情報(1K/4階)
| 家賃 | 管理費等 | 敷金 | 礼金 | 間取り | 専有面積 |
|---|---|---|---|---|---|
| 6.4万円 | 1.2万円 | なし | なし | 1K | 24.6m2 |
入居決定でお祝い金最大100,000円
- 保証金
- -
- 償却・敷引
- -
- 築年数
- 築20年
- 所在階
- 4階
- 向き
- 東
Point
まずはお問い合わせ!
不動産会社は街のプロ、あなたに合った物件がきっと見つかります。
提供:(有)ミライアン不動産市川店(SUUMO経由)

詳細情報 プライムレジデンス市川
物件紹介
プライムレジデンス市川は京成本線鬼越駅から徒歩10分にあり、駅近で通勤通学に便利なマンションです。
このお部屋は2階以上に位置しているので、通行人や周囲の住人からの視線が気になりにくく、防犯面でも安心。建物のエントランスはオートロックがついており、インターホンにはTVモニタもついているため、相手の顔を確認してから来客対応することができます。
フローリングのお部屋なのでお掃除もラクラク。キッチンはシステムキッチン仕様になっていますので、お料理好きの方にもぴったり。また、バス・トイレは別で、のんびりお風呂タイムも楽しめるでしょう。
通信設備面では、インターネット接続が可能です。また、CATVにも対応しているので、おうち時間も充実するでしょう(別途工事、契約料が必要な場合あり)。
建物にはエレベーターがついているので、重い荷物があっても安心。共用部には宅配ボックスが設定されているので、不在の時にも荷物を受け取ることができます。
このお部屋は2階以上に位置しているので、通行人や周囲の住人からの視線が気になりにくく、防犯面でも安心。建物のエントランスはオートロックがついており、インターホンにはTVモニタもついているため、相手の顔を確認してから来客対応することができます。
フローリングのお部屋なのでお掃除もラクラク。キッチンはシステムキッチン仕様になっていますので、お料理好きの方にもぴったり。また、バス・トイレは別で、のんびりお風呂タイムも楽しめるでしょう。
通信設備面では、インターネット接続が可能です。また、CATVにも対応しているので、おうち時間も充実するでしょう(別途工事、契約料が必要な場合あり)。
建物にはエレベーターがついているので、重い荷物があっても安心。共用部には宅配ボックスが設定されているので、不在の時にも荷物を受け取ることができます。
お金・契約の情報
※「-」と表示されているものは、実際は料金が発生するものもございます。詳細はお問い合わせください。
| 家賃 | 6.4万円 | 管理費・共益費 | 1.2万円 |
|---|---|---|---|
| 敷金 | なし | 礼金 | なし |
| 入居決定でお祝い金最大100,000円 | |||
| 保証金 | - | 償却・敷引 | - |
| 住宅保険料 | - | 更新料 | - |
| 保証会社利用 | 必須 | 保証会社名 | - |
| 保証会社費用 | - | 保証会社備考 | 保証会社利用必 初回保証料:月額総賃料の55% |
| 契約形態 | - | 契約期間 | - |
| 入居・引渡期間 | - | 現況 | - |
| 契約備考 | 巡回管理 合計7.26万円(内訳:室内抗菌処理1.76万円事務手数料1.1万円24Hサポート料2.2万円鍵交換代2.2万円) 1K 普通借家2年 損保【2.1万円2年】 バストイレ別、バルコニー、エアコン、ガスコンロ対応、クロゼット、フローリング、TVインターホン、オートロック、室内洗濯置、陽当り良好、シューズボックス、システムキッチン、温水洗浄便座、脱衣所、エレベーター、洗面所独立、洗面化粧台、駐輪場、宅配ボックス、CATV、光ファイバー、礼金不要、敷金不要、防犯カメラ、独立型キッチン、照明付、全居室洋室、保証人不要、二人入居相談、全居室フローリング、2沿線利用可、仲手0.55ヶ月、ネット専用回線、眺望良好、ダブルロックキー、24時間換気システム、耐火構造、2駅利用可、3駅以上利用可、駅徒歩10分以内、敷地内ごみ置き場、全居室6畳以上、都市ガス、LAN、年度内入居可、敷金・礼金不要、保証会社利用可、IT重説対応物件、初期費用カード決済可、通風良好 入居日:'26年2月中旬 | ||
部屋の情報
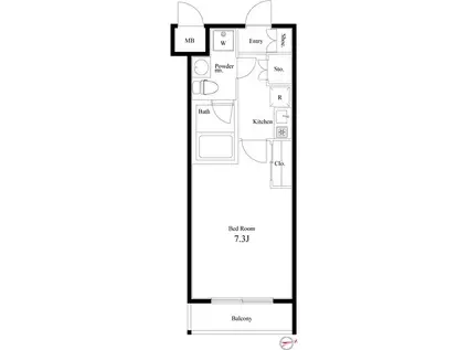
| 間取り | 1K | 専有面積 | 24.6m2 |
|---|---|---|---|
| 所在階 / 向き | 4階 / 東 | バルコニー面積 | - |
| 水道 / ガス | - | ||
| 設備 | バス・トイレ別、2階以上、オートロック、テレビドアホン、宅配ボックス、インターネット対応、システムキッチン、エアコン、エレベーター、温水洗浄便座、バルコニー、フローリング、洗髪洗面化粧台、コンロ:ガス、CATV、洗濯機:室内 | ||
| 当社物件ID | 3504002 | ||
建物の情報
| 建物名 | プライムレジデンス市川 | ||
|---|---|---|---|
| 所在地 | 千葉県市川市北方 | ||
| 交通 | 京成本線 鬼越駅 徒歩10分 京成本線 京成中山駅 徒歩14分 JR総武線 下総中山駅 徒歩16分 | ||
| 階数 | 5階建 | 総戸数 | 48戸 |
| 築年月 | 2006年12月 / 築20年 | エレベーター | あり |
| 駐車場 | 近隣 150m16500円 | バイク置き場 | - |
| 駐輪場 | あり | 管理人/管理会社 | - |
| 周辺環境 | その他 吉野家(飲食店)まで2114m その他 吉野家 市川鬼高店(飲食店)まで2181m その他 セブンイレブン 船橋本郷町店(コンビニ)まで2519m その他 快活CLUB 本中山店(その他)まで2276m その他 ベルクス 市川鬼高店(スーパー)まで2103m その他 マクドナルド 市川ショップス店(飲食店)まで2195m | ||
| 建物種別 | マンション | 建物構造 | RC(鉄筋コンクリート) |
この部屋の取扱い不動産会社
| 会社名 | (有)ミライアン不動産市川店(SUUMO経由) | ||
|---|---|---|---|
| 所在地 | 千葉県市川市市川南1-8-30 | 交通 | - |
| 営業時間 | 10時~19時 時間外もお気軽にご連絡ください! | 定休日 | 水曜日 |
| 免許番号 | 千葉県知事18316 | 取引態様 | 仲介 |
| 不動産会社管理番号 | 100478516000 | 当社管理番号 | 89 |
| 所属団体 | (公社)全日本不動産協会千葉県本部会員 | ||
| 公正取引協議会 | (公社)首都圏不動産公正取引協議会加盟 | ||
| 取扱い物件情報 | 物件詳細へ | ||
※各種情報と現状に差異がある場合は、現状優先となります。問い合わせをすることで、より詳しい条件、情報を確認する事ができます。
提供:(有)ミライアン不動産市川店(SUUMO経由)
この物件が気になったら掲載期限まであと10日
プライムレジデンス市川に条件(家賃・エリア)が近い物件一覧
| 写真 | 家賃 管理費等 | 敷金 礼金 | 間取り 専有面積 | 築年数 | 最寄り駅 所在地 | キープ | 詳細 |
|---|---|---|---|---|---|---|---|
アパート コーポ南行徳A棟(ワンルーム/2階) | |||||||
![]() | 4.8万円 なし | なし なし | ワンルーム 17.39m2 | 築41年 | 東京地下鉄東西線 南行徳駅 徒歩9分 東京地下鉄東西線 浦安駅(千葉) 徒歩14分 千葉県市川市新井3丁目 | 詳細を見る | |
マンション NORMA JEANノーマジーン(1K/2階) | |||||||
![]() | 6.7万円 5,000円 | 6.7万円 6.7万円 | 1K 28.05m2 | 築9年 | 京成松戸線 五香駅 徒歩7分 京成松戸線 元山駅(千葉) 徒歩10分 京成松戸線 くぬぎ山駅 徒歩21分 千葉県松戸市五香 | 詳細を見る | |
マンション ハイツ松戸II(ワンルーム/1階) | |||||||
![]() | 4.7万円 3,000円 | なし なし | ワンルーム 21.12m2 | 築39年 | JR常磐線 新松戸駅 徒歩9分 JR常磐線 馬橋駅 徒歩16分 JR武蔵野線 南流山駅 徒歩34分 千葉県松戸市新松戸 | 詳細を見る | |
マンション 大神宮下RESIDENCE(1K/1階) | |||||||
![]() | 6.7万円 1万円 | 6.7万円 なし | 1K 22.94m2 | 築1年 | 京成電鉄本線 大神宮下駅 徒歩2分 総武・中央緩行線 船橋駅 徒歩19分 千葉県船橋市宮本4丁目 | 詳細を見る | |
アパート セレーネ元山(1LDK/1階) | |||||||
![]() | 6.5万円 4,500円 | なし 6.5万円 | 1LDK 31.88m2 | 築2年 | 京成松戸線 元山駅(千葉) 徒歩5分 京成松戸線 くぬぎ山駅 徒歩20分 北総線 新鎌ケ谷駅 徒歩30分 千葉県松戸市五香南 | 詳細を見る | |
マンション オーパスホームズ南行徳(1K/7階) | |||||||
![]() | 9.95万円 1万円 | なし なし | 1K 22.47m2 | 築5年 | 東京地下鉄東西線 南行徳駅 徒歩6分 東京地下鉄東西線 浦安駅(千葉) 徒歩15分 千葉県市川市新井3丁目 | 詳細を見る | |
アパート コンフォルト中山(ワンルーム/1階) | |||||||
![]() | 7.5万円 4,000円 | 7.5万円 7.5万円 | ワンルーム 26.25m2 | 築11年 | JR総武線 下総中山駅 徒歩7分 京成本線 京成中山駅 徒歩13分 東京メトロ東西線 原木中山駅 徒歩15分 千葉県船橋市本中山 | 詳細を見る | |
アパート フロールN(2DK/2階) | |||||||
![]() | 5.7万円 なし | 5.7万円 5.7万円 | 2DK 38.83m2 | 築35年 | 京成電鉄松戸線 高根木戸駅 徒歩5分 京成電鉄松戸線 北習志野駅 徒歩10分 千葉県船橋市習志野台1丁目 | 詳細を見る | |









