賃貸マンション
ワンルーフレジデンス浅草橋の賃貸物件情報(2DK/8階)
| 家賃 | 管理費等 | 敷金 | 礼金 | 間取り | 専有面積 |
|---|---|---|---|---|---|
| 21万円 | 1.5万円 | 21万円 | なし | 2DK | 40.19m2 |
入居決定でお祝い金最大100,000円
- 保証金
- -
- 償却・敷引
- -
- 築年数
- 築5年
- 所在階
- 8階
- 向き
- 南
Point
初期費用分割払い可能☆最大24ヶ月払い☆カード決済も対応しております!!遠方の方や忙しい方向けオンライン内見実施中☆
提供:Ptif(株)(SUUMO経由)

詳細情報 ワンルーフレジデンス浅草橋
物件紹介
ワンルーフレジデンス浅草橋はJR総武線浅草橋駅から徒歩3分にあり、駅近で通勤通学に便利なマンションです。
このお部屋は2階以上に位置しているので、通行人や周囲の住人からの視線が気になりにくく、防犯面でも安心。建物のエントランスはオートロックがついており、インターホンにはTVモニタもついているため、相手の顔を確認してから来客対応することができます。
人気の南向き・フローリングのお部屋。室内にはウォークインクローゼットがありますので、たくさんの荷物も効率的に収納ができます。キッチンはシステムキッチン仕様になっていますので、お料理好きの方にもぴったり。また、バス・トイレは別で、のんびりお風呂タイムも楽しめるでしょう。
通信設備面では、インターネットが無料で使えるので、月々の出費を抑えられるのも魅力です。また、BSアンテナ・CSアンテナもありますので、おうち時間も充実するでしょう(別途工事、BS・CSの契約料等が必要な場合あり)。
建物にはエレベーターがついているので、重い荷物があっても安心。共用部には宅配ボックスが設定されているので、不在の時にも荷物を受け取ることができます。また、ペット飼育の相談ができますので、あなたの大切な家族の一員も快適に暮らせるか、ぜひ確認してみてください。
このお部屋は2階以上に位置しているので、通行人や周囲の住人からの視線が気になりにくく、防犯面でも安心。建物のエントランスはオートロックがついており、インターホンにはTVモニタもついているため、相手の顔を確認してから来客対応することができます。
人気の南向き・フローリングのお部屋。室内にはウォークインクローゼットがありますので、たくさんの荷物も効率的に収納ができます。キッチンはシステムキッチン仕様になっていますので、お料理好きの方にもぴったり。また、バス・トイレは別で、のんびりお風呂タイムも楽しめるでしょう。
通信設備面では、インターネットが無料で使えるので、月々の出費を抑えられるのも魅力です。また、BSアンテナ・CSアンテナもありますので、おうち時間も充実するでしょう(別途工事、BS・CSの契約料等が必要な場合あり)。
建物にはエレベーターがついているので、重い荷物があっても安心。共用部には宅配ボックスが設定されているので、不在の時にも荷物を受け取ることができます。また、ペット飼育の相談ができますので、あなたの大切な家族の一員も快適に暮らせるか、ぜひ確認してみてください。
お金・契約の情報
※「-」と表示されているものは、実際は料金が発生するものもございます。詳細はお問い合わせください。
| 家賃 | 21万円 | 管理費・共益費 | 1.5万円 |
|---|---|---|---|
| 敷金 | 21万円 | 礼金 | なし |
| 入居決定でお祝い金最大100,000円 | |||
| 保証金 | - | 償却・敷引 | - |
| 住宅保険料 | - | 更新料 | - |
| 保証会社利用 | 必須 | 保証会社名 | - |
| 保証会社費用 | - | 保証会社備考 | 保証会社利用必 初回保証委託料:月額賃料等の50%、2年目以降:10000円/年 詳細はお問い合わせください。 |
| 契約形態 | - | 契約期間 | - |
| 入居・引渡期間 | 相談 | 現況 | - |
| 入居可能条件 | ペット相談 | ||
| 契約備考 | 通勤管理 合計3.3万円(内訳:鍵交換代3.3万円) 更新料 新賃料1.00ヶ月分 2DK 二人入居可/ペット相談 普通借家2年 損保【2.15万円2年】 バストイレ別、バルコニー、エアコン、ガスコンロ対応、クロゼット、TVインターホン、オートロック、室内洗濯置、陽当り良好、シューズボックス、システムキッチン、南向き、温水洗浄便座、エレベーター、洗面所独立、駐輪場、宅配ボックス、礼金不要、閑静な住宅地、BS・CS、3口以上コンロ、防犯カメラ、ペット相談、ウォークインクロゼット、保証人不要、二人入居相談、全居室フローリング、ディンプルキー、ネット専用回線、ネット使用料不要、眺望良好、24時間換気システム、南面リビング、耐火構造、耐震構造、防犯ガラス、高気密住宅、2駅利用可、3駅以上利用可、駅前、防犯強化地域、駅徒歩5分以内、駅徒歩10分以内、耐風構造、高層階、24時間ゴミ出し可、敷地内ごみ置き場、築5年以内、東南向き、南西向き、日勤管理、備付食器棚、都市ガス、南面バルコニー、通風良好 敷金積み増し【ペット飼育の場合敷金2ヶ月(総額)】 | ||
部屋の情報
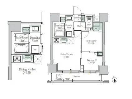
| 間取り | 2DK | 専有面積 | 40.19m2 |
|---|---|---|---|
| 所在階 / 向き | 8階 / 南 | バルコニー面積 | - |
| 水道 / ガス | - | ||
| 設備 | バス・トイレ別、2階以上、オートロック、テレビドアホン、宅配ボックス、ウォークインクローゼット、インターネット対応、システムキッチン、エアコン、エレベーター、温水洗浄便座、南向き、バルコニー、フローリング、洗髪洗面化粧台、2口コンロ、コンロ:ガス、CSアンテナ、BSアンテナ、インターネット使用料無料、洗濯機:室内 | ||
| 当社物件ID | 102345643 | ||
建物の情報
| 建物名 | ワンルーフレジデンス浅草橋 | ||
|---|---|---|---|
| 所在地 | 東京都台東区柳橋 | ||
| 交通 | JR総武線 浅草橋駅 徒歩3分 JR総武線快速 馬喰町駅 徒歩9分 JR総武線 両国駅 徒歩10分 | ||
| 階数 | 14階建 | 総戸数 | - |
| 築年月 | 2021年11月 / 築5年 | エレベーター | あり |
| 駐車場 | なし | バイク置き場 | - |
| 駐輪場 | あり | 管理人/管理会社 | - |
| 周辺環境 | その他 ファミリーマート 東神田二丁目店(コンビニ)まで783m その他 セブンイレブン 台東蔵前2丁目店(コンビニ)まで886m その他 ファミリーマート 台東鳥越店(コンビニ)まで1282m | ||
| 建物種別 | マンション | 建物構造 | RC(鉄筋コンクリート) |
この部屋の取扱い不動産会社
| 会社名 | PRA(株)青山店(SUUMO経由) | ||
|---|---|---|---|
| 所在地 | 東京都港区北青山1-3-3 三橋ビル8階 | 交通 | - |
| 営業時間 | 9:00~20:00 | 定休日 | 無し |
| 免許番号 | 東京都知事109775 | 取引態様 | 仲介 |
| 不動産会社管理番号 | 100484822646 | 当社管理番号 | 89 |
| 所属団体 | (公社)東京都宅地建物取引業協会会員 | ||
| 公正取引協議会 | (公社)首都圏不動産公正取引協議会加盟 | ||
| 取扱い物件情報 | 物件詳細へ | ||
※各種情報と現状に差異がある場合は、現状優先となります。問い合わせをすることで、より詳しい条件、情報を確認する事ができます。
提供:PRA(株)青山店(SUUMO経由)
この物件が気になったら掲載期限まであと10日
ワンルーフレジデンス浅草橋に条件(家賃・エリア)が近い物件一覧
| 写真 | 家賃 管理費等 | 敷金 礼金 | 間取り 専有面積 | 築年数 | 最寄り駅 所在地 | キープ | 詳細 |
|---|---|---|---|---|---|---|---|
アパート ヒル護国寺(1LDK/1階) | |||||||
![]() | 13.6万円 5,000円 | 13.6万円 13.6万円 | 1LDK 38.57m2 | 築8年 | 東京メトロ有楽町線 護国寺駅 徒歩5分 東京メトロ丸ノ内線 新大塚駅 徒歩7分 東京メトロ丸ノ内線 茗荷谷駅 徒歩9分 東京都文京区大塚 | 詳細を見る | |
マンション パークアクシス文京ステージ(2LDK/1階) | |||||||
![]() | 24.9万円 1.2万円 | 24.9万円 24.9万円 | 2LDK 56.37m2 | 築21年 | 東京メトロ有楽町線 江戸川橋駅 徒歩5分 東京メトロ東西線 神楽坂駅 徒歩13分 JR中央線 飯田橋駅 徒歩13分 東京都文京区水道 | 詳細を見る | |
マンション N35 イースト(1K/10階) | |||||||
![]() | 13.5万円 なし | 13.5万円 13.5万円 | 1K 25.42m2 | 築22年 | 東京メトロ日比谷線 小伝馬町駅 徒歩4分 都営新宿線 岩本町駅 徒歩6分 JR山手線 神田駅(東京) 徒歩10分 東京都千代田区岩本町 | 詳細を見る | |
マンション コンフォリア・リヴ文京護国寺(2LDK/3階) | |||||||
![]() | 30.2万円 2万円 | 30.2万円 なし | 2LDK 50.87m2 | 築1年 | 東京地下鉄有楽町線 護国寺駅 徒歩4分 東京都文京区目白台3丁目 | 詳細を見る | |
マンション メインステージ押上Ⅴ(1LDK/11階) | |||||||
![]() | 17.2万円 1.5万円 | なし なし | 1LDK 41.3m2 | 築8年 | 東武伊勢崎・大師線 曳舟駅 徒歩5分 東京都墨田区東向島1丁目 | 詳細を見る | |
アパート ブリーズ白山(3DK/1階) | |||||||
![]() | 19.2万円 1,000円 | 19.2万円 19.2万円 | 3DK 68.84m2 | 築24年 | 都営三田線 白山駅(東京) 徒歩7分 東京メトロ南北線 本駒込駅 徒歩9分 東京都文京区白山 | 詳細を見る | |
マンション トラック八丁堀(2K/8階) | |||||||
![]() | 25.6万円 2万円 | なし なし | 2K 35.01m2 | 築1年 | 東京メトロ日比谷線 八丁堀駅(東京) 徒歩2分 JR京葉線 八丁堀駅(東京) 徒歩2分 東京メトロ日比谷線 茅場町駅 徒歩7分 東京都中央区八丁堀 | 詳細を見る | |
マンション メゾン明神下(1LDK/3階) | |||||||
![]() | 20万円 1.6万円 | 20万円 20万円 | 1LDK 40.1m2 | 築11年 | JR山手線 秋葉原駅 徒歩7分 JR中央線 御茶ノ水駅 徒歩7分 東京メトロ銀座線 末広町駅(東京) 徒歩7分 東京都千代田区外神田 | 詳細を見る | |









