賃貸アパート
ルピナス横濱ポートサイドの賃貸物件情報(1SLDK/2階)
| 家賃 | 管理費等 | 敷金 | 礼金 | 間取り | 専有面積 |
|---|---|---|---|---|---|
| 17万円 | 1万円 | 17万円 | 17万円 | 1SLDK | 51.3m2 |
入居決定でお祝い金最大100,000円
- 保証金
- -
- 償却・敷引
- -
- 築年数
- 築28年
- 所在階
- 2階
- 向き
- 北東
Point
★追い焚きや浴室乾燥機能などの便利な設備が揃ったお部屋です★
提供:(株)タウンハウジング神奈川 菊名店(SUUMO経由)

詳細情報 ルピナス横濱ポートサイド
物件紹介
ルピナス横濱ポートサイドは京急本線神奈川駅から徒歩9分にあり、駅近で通勤通学に便利なアパートです。
このお部屋は2階以上に位置しているので通行人や周囲の住人からの視線が気になりにくく、建物のエントランスはオートロックがついているので防犯性が高くなっています。
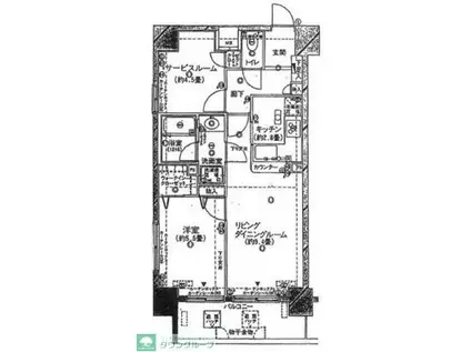
人気の角部屋で周囲の居住者の生活音も気になりにくく、また、フローリングのお部屋なのでお掃除もラクラク。室内にはウォークインクローゼットがありますので、たくさんの荷物も効率的に収納ができます。キッチンはシステムキッチン仕様になっていますので、お料理好きの方にもぴったり。バス・トイレは別なので、のんびりお風呂タイムも楽しめるでしょう。また、雨の日でも浴室乾燥機を使えば、お洗濯も問題ありません。
建物にはエレベーターがついているので、重い荷物があっても安心。
このお部屋は2階以上に位置しているので通行人や周囲の住人からの視線が気になりにくく、建物のエントランスはオートロックがついているので防犯性が高くなっています。
人気の角部屋で周囲の居住者の生活音も気になりにくく、また、フローリングのお部屋なのでお掃除もラクラク。室内にはウォークインクローゼットがありますので、たくさんの荷物も効率的に収納ができます。キッチンはシステムキッチン仕様になっていますので、お料理好きの方にもぴったり。バス・トイレは別なので、のんびりお風呂タイムも楽しめるでしょう。また、雨の日でも浴室乾燥機を使えば、お洗濯も問題ありません。
建物にはエレベーターがついているので、重い荷物があっても安心。
お金・契約の情報
※「-」と表示されているものは、実際は料金が発生するものもございます。詳細はお問い合わせください。
| 家賃 | 17万円 | 管理費・共益費 | 1万円 |
|---|---|---|---|
| 敷金 | 17万円 | 礼金 | 17万円 |
| 入居決定でお祝い金最大100,000円 | |||
| 保証金 | - | 償却・敷引 | - |
| 住宅保険料 | - | 更新料 | - |
| 保証会社利用 | 必須 | 保証会社名 | - |
| 保証会社費用 | - | 保証会社備考 | 保証会社利用必 賃貸保証料:0.50ヶ月 JRAG:初回保証料:総賃料50% 年次:12000円~、 外国籍様の場合:GTN 初回保証料:総賃料70% 月次:1000円 手数料:330円~ |
| 契約形態 | - | 契約期間 | - |
| 入居・引渡期間 | - | 現況 | - |
| 契約備考 | ※1年未満での解約時には、総賃料1ヵ月分の違約金が必要となります。 合計3.3万円(内訳:鍵交換代:33000円) 更新料新賃料(ヶ月):1.00ヶ月、エレマックス困ったときのサポート:2500円/月 1SLDK 二人入居可 普通借家2年 バストイレ別、バルコニー、エアコン、ガスコンロ対応、クロゼット、フローリング、浴室乾燥機、オートロック、室内洗濯置、シューズボックス、システムキッチン、追焚機能浴室、角住戸、温水洗浄便座、脱衣所、エレベーター、洗面所独立、3口以上コンロ、対面式キッチン、防犯カメラ、照明付、分譲賃貸、ウォークインクロゼット、敷金1ヶ月、二人入居相談、全居室フローリング、保証金不要、24時間換気システム、L字型キッチン、駅徒歩10分以内、都市ガス、玄関収納、礼金1ヶ月、IT重説対応物件、通風良好 入居日:'26年4月下旬 | ||
部屋の情報
| 間取り | 1SLDK | 専有面積 | 51.3m2 |
|---|---|---|---|
| 所在階 / 向き | 2階 / 北東 | バルコニー面積 | - |
| 水道 / ガス | - | ||
| 設備 | バス・トイレ別、2階以上、オートロック、浴室乾燥機、ウォークインクローゼット、追い焚き、システムキッチン、エアコン、エレベーター、温水洗浄便座、角部屋、バルコニー、フローリング、洗髪洗面化粧台、2口コンロ、コンロ:ガス、洗濯機:室内 | ||
| 当社物件ID | 158577277 | ||
建物の情報
| 建物名 | ルピナス横濱ポートサイド | ||
|---|---|---|---|
| 所在地 | 神奈川県横浜市神奈川区栄町 | ||
| 交通 | 京急本線 神奈川駅 徒歩9分 東急東横線 反町駅 徒歩15分 JR京浜東北線 東神奈川駅 徒歩15分 | ||
| 階数 | 10階建 | 総戸数 | - |
| 築年月 | 1998年07月 / 築28年 | エレベーター | あり |
| 駐車場 | なし | バイク置き場 | - |
| 駐輪場 | - | 管理人/管理会社 | - |
| 周辺環境 | その他 ローソン・スリーエフ横浜中央市場店(コンビニ)まで160m その他 ファミリーマート(コンビニ)まで340m その他 ポートサイド薬局(ドラッグストア)まで410m その他 まいばすけっと横浜青木町店(スーパー)まで420m その他 横浜ベイクォーター(ショッピングセンター)まで750m その他 オーケーストア(スーパー)まで1280m | ||
| 建物種別 | アパート | 建物構造 | SRC(鉄骨鉄筋コンクリート) |
この部屋の取扱い不動産会社
| 会社名 | (株)タウンハウジング神奈川 菊名店(SUUMO経由) | ||
|---|---|---|---|
| 所在地 | 神奈川県横浜市港北区篠原北2-1-17 第三松葉ビル2階 | 交通 | - |
| 営業時間 | AM10:00~PM7:00 | 定休日 | 水曜日 |
| 免許番号 | 国土交通大臣9928 | 取引態様 | 仲介 |
| 不動産会社管理番号 | 100492785768 | 当社管理番号 | 89 |
| 所属団体 | (公社)神奈川県宅地建物取引業協会会員 | ||
| 公正取引協議会 | (公社)首都圏不動産公正取引協議会加盟 | ||
| 取扱い物件情報 | 物件詳細へ | ||
※各種情報と現状に差異がある場合は、現状優先となります。問い合わせをすることで、より詳しい条件、情報を確認する事ができます。
提供:(株)タウンハウジング神奈川 菊名店(SUUMO経由)
この物件が気になったら掲載期限まであと11日
ルピナス横濱ポートサイドに条件(家賃・エリア)が近い物件一覧
| 写真 | 家賃 管理費等 | 敷金 礼金 | 間取り 専有面積 | 築年数 | 最寄り駅 所在地 | キープ | 詳細 |
|---|---|---|---|---|---|---|---|
アパート 藤沢大鋸2丁目アパート(1LDK/2階) | |||||||
![]() | 12万円 2,000円 | 24万円 12万円 | 1LDK 49.67m2 | 新築 | JR東海道本線 藤沢駅 徒歩11分 神奈川県藤沢市大鋸 | 詳細を見る | |
アパート ヴィラフロイデ(1LDK/2階) | |||||||
![]() | 11.5万円 2,000円 | 11.5万円 11.5万円 | 1LDK 47.2m2 | 築14年 | JR南武線 鹿島田駅 徒歩6分 湘南新宿ライン宇須 新川崎駅 徒歩11分 JR南武線 矢向駅 徒歩14分 神奈川県川崎市幸区塚越 | 詳細を見る | |
アパート グランセレッソ湘南(2LDK/1階) | |||||||
![]() | 12.9万円 5,000円 | 25.8万円 12.9万円 | 2LDK 50.61m2 | 築3年 | 小田急江ノ島線 藤沢本町駅 徒歩28分 JR東海道本線 藤沢駅 徒歩42分 神奈川県藤沢市羽鳥 | 詳細を見る | |
マンション カスタネア栗平(2LDK/5階) | |||||||
![]() | 16.4万円 5,000円 | 16.4万円 16.4万円 | 2LDK 68.42m2 | 築36年 | 小田急電鉄多摩線 栗平駅 徒歩3分 神奈川県川崎市麻生区栗平2丁目 | 詳細を見る | |
アパート クレールN(3LDK/1階) | |||||||
![]() | 15.6万円 6,000円 | なし 15.6万円 | 3LDK 84.88m2 | 築15年 | 湘南モノレール 富士見町駅(神奈川) 徒歩26分 湘南モノレール 湘南町屋駅 徒歩29分 神奈川県鎌倉市植木 | 詳細を見る | |
アパート たまみTOTOMONI(2LDK/1階) | |||||||
![]() | 14.5万円 4,000円 | 14.5万円 14.5万円 | 2LDK 63.46m2 | 築6年 | 小田急線 読売ランド前駅 徒歩6分 小田急線 百合ケ丘駅 徒歩18分 小田急線 生田駅(神奈川) 徒歩24分 神奈川県川崎市麻生区多摩美 | 詳細を見る | |
マンション アバンサール(1LDK/1階) | |||||||
![]() | 13万円 8,000円 | なし 26万円 | 1LDK 44.81m2 | 築7年 | 東急田園都市線 高津駅(神奈川) 徒歩14分 東急大井町線 溝の口駅 徒歩17分 東急田園都市線 二子新地駅 徒歩18分 神奈川県川崎市高津区坂戸 | 詳細を見る | |
マンション ベイ・イースト(2LDK/4階) | |||||||
![]() | 15.7万円 8,000円 | 15.7万円 15.7万円 | 2LDK 55.19m2 | 築35年 | 京急本線 京急東神奈川駅 徒歩3分 JR京浜東北線 東神奈川駅 徒歩5分 東急東横線 東白楽駅 徒歩11分 神奈川県横浜市神奈川区東神奈川 | 詳細を見る | |









