賃貸マンション
パークサイドビルの賃貸物件情報(1K/2階)
| 家賃 | 管理費等 | 敷金 | 礼金 | 間取り | 専有面積 |
|---|---|---|---|---|---|
| 6万円 | なし | 6万円 | なし | 1K | 26.73m2 |
入居決定でお祝い金最大100,000円
Point
飲食店街にあるマンションです。
提供:(株)森の不動産(SUUMO経由)

詳細情報 パークサイドビル
物件紹介
パークサイドビルはJR東北本線盛岡駅から徒歩16分にあるマンションです。
このお部屋は2階以上に位置しているので通行人や周囲の住人からの視線が気になりにくく、建物のエントランスはオートロックがついているので防犯性が高くなっています。
人気の南向きのお部屋。また、フローリングなのでお掃除もラクラク。バス・トイレ別の仕様で、のんびりお風呂タイムも楽しめます。
通信設備面では、インターネットが無料で使えるので、月々の出費を抑えられるのも魅力です。また、CATVにも対応しているので、おうち時間も充実するでしょう(別途工事、CATVの契約料等が必要な場合あり)。
建物にはエレベーターがついているので、重い荷物があっても安心。共用部には宅配ボックスが設定されているので、不在の時にも荷物を受け取ることができます。
このお部屋は2階以上に位置しているので通行人や周囲の住人からの視線が気になりにくく、建物のエントランスはオートロックがついているので防犯性が高くなっています。
人気の南向きのお部屋。また、フローリングなのでお掃除もラクラク。バス・トイレ別の仕様で、のんびりお風呂タイムも楽しめます。
通信設備面では、インターネットが無料で使えるので、月々の出費を抑えられるのも魅力です。また、CATVにも対応しているので、おうち時間も充実するでしょう(別途工事、CATVの契約料等が必要な場合あり)。
建物にはエレベーターがついているので、重い荷物があっても安心。共用部には宅配ボックスが設定されているので、不在の時にも荷物を受け取ることができます。
お金・契約の情報
※「-」と表示されているものは、実際は料金が発生するものもございます。詳細はお問い合わせください。
| 家賃 | 6万円 | 管理費・共益費 | なし |
|---|---|---|---|
| 敷金 | 6万円 | 礼金 | なし |
| 入居決定でお祝い金最大100,000円 | |||
| 保証金 | - | 償却・敷引 | - |
| 住宅保険料 | - | 更新料 | - |
| 保証会社利用 | 利用可 | 保証会社名 | - |
| 保証会社費用 | - | 保証会社備考 | 保証会社利用可 アーク賃貸保証 初期費用48,264円 |
| 契約形態 | - | 契約期間 | - |
| 入居・引渡期間 | 即時 | 現況 | - |
| 契約備考 | パルクアベニューカワトクまで122m/セブンイレブン盛岡映画館通店まで151m 1K 損保【1.3万円2年】 バストイレ別、バルコニー、エアコン、クロゼット、フローリング、オートロック、室内洗濯置、陽当り良好、シューズボックス、南向き、温水洗浄便座、エレベーター、宅配ボックス、CATV、即入居可、礼金不要、防犯カメラ、敷金1ヶ月、ネット使用料不要、始発駅、100円バス路線、バス停徒歩3分以内、敷地内ごみ置き場、都市ガス | ||
部屋の情報
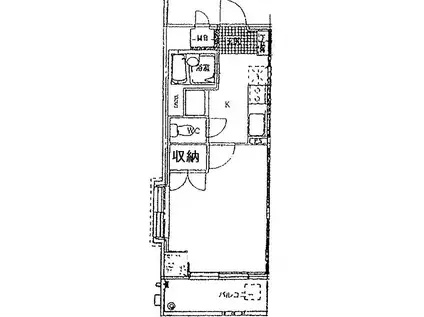
| 間取り | 1K | 専有面積 | 26.73m2 |
|---|---|---|---|
| 所在階 / 向き | 2階 / 南 | バルコニー面積 | - |
| 水道 / ガス | - | ||
| 設備 | バス・トイレ別、2階以上、オートロック、宅配ボックス、インターネット対応、エアコン、エレベーター、温水洗浄便座、南向き、バルコニー、フローリング、CATV、インターネット使用料無料、洗濯機:室内 | ||
| 当社物件ID | 2126487 | ||
建物の情報
| 建物名 | パークサイドビル | ||
|---|---|---|---|
| 所在地 | 岩手県盛岡市菜園 | ||
| 交通 | JR東北本線 盛岡駅 徒歩16分 JR山田線 上盛岡駅 徒歩18分 | ||
| 階数 | 8階建 | 総戸数 | - |
| 築年月 | 2004年03月 / 築23年 | エレベーター | あり |
| 駐車場 | なし | バイク置き場 | - |
| 駐輪場 | - | 管理人/管理会社 | - |
| 周辺環境 | その他 セブンイレブン盛岡映画館通店(コンビニ)まで151m その他 パルクアベニューカワトク(ホームセンター)まで122m | ||
| 建物種別 | マンション | 建物構造 | RC(鉄筋コンクリート) |
この部屋の取扱い不動産会社
| 会社名 | (株)森の不動産(SUUMO経由) | ||
|---|---|---|---|
| 所在地 | 岩手県盛岡市中央通2-1-27 | 交通 | - |
| 営業時間 | 平日9:00~18:00土曜日9:00~14:00 | 定休日 | 第2・4・5土曜日、日、祝日 |
| 免許番号 | 岩手県知事1808 | 取引態様 | 仲介 |
| 不動産会社管理番号 | 100474984943 | 当社管理番号 | 89 |
| 所属団体 | (一社)岩手県宅地建物取引業協会会員 | ||
| 公正取引協議会 | 東北地区不動産公正取引協議会加盟 | ||
| 取扱い物件情報 | 物件詳細へ | ||
※各種情報と現状に差異がある場合は、現状優先となります。問い合わせをすることで、より詳しい条件、情報を確認する事ができます。
提供:(株)森の不動産(SUUMO経由)
この物件が気になったら掲載期限まであと11日
パークサイドビルに条件(家賃・エリア)が近い物件一覧
| 写真 | 家賃 管理費等 | 敷金 礼金 | 間取り 専有面積 | 築年数 | 最寄り駅 所在地 | キープ | 詳細 |
|---|---|---|---|---|---|---|---|
マンション プライムレジデンス神明(1LDK/3階) | |||||||
![]() | 7.9万円 7,000円 | なし 7.9万円 | 1LDK 40.47m2 | 築4年 | JR東北本線 盛岡駅 徒歩29分 岩手県盛岡市神明町 | 詳細を見る | |
アパート LAPIS RURI(1K/2階) | |||||||
![]() | 3.8万円 3,000円 | なし なし | 1K 24.84m2 | 築25年 | JR山田線 上盛岡駅 徒歩12分 JR東北本線 盛岡駅 徒歩30分 JR山田線 山岸駅 徒歩37分 岩手県盛岡市上田 | 詳細を見る | |
アパート グランドール2(2DK/2階) | |||||||
![]() | 3.8万円 なし | 3.8万円 なし | 2DK 40.49m2 | 築36年 | 岩手県盛岡市稲荷町 | 詳細を見る | |
アパート トリシア大慈寺町 A(1LDK/3階) | |||||||
![]() | 9.7万円 4,500円 | なし 9.7万円 | 1LDK 52.32m2 | 新築 | JR東北本線 仙北町駅 徒歩18分 JR東北本線 盛岡駅 徒歩32分 JR山田線 上盛岡駅 徒歩37分 岩手県盛岡市大慈寺町 | 詳細を見る | |
アパート CIEL A棟(3LDK/1階) | |||||||
![]() | 9万円 4,000円 | なし なし | 3LDK 67.89m2 | 築1年 | JR東北本線 日詰駅 徒歩11分 JR東北本線 紫波中央駅 徒歩21分 岩手県紫波郡紫波町桜町才土地 | 詳細を見る | |
アパート プレテヴィアンカA棟(2DK/1階) | |||||||
![]() | 5.2万円 なし | なし なし | 2DK 51.11m2 | 築30年 | JR東北本線 盛岡駅 徒歩15分 岩手県盛岡市境田町 | 詳細を見る | |
アパート シャトーエレガンC(2LDK/1階) | |||||||
![]() | 6.8万円 4,500円 | なし 6.8万円 | 2LDK 53.76m2 | 築21年 | JR東北本線 仙北町駅 徒歩26分 JR東北本線 盛岡駅 徒歩41分 岩手県盛岡市向中野 | 詳細を見る | |
アパート ハイホーム杉土手Ⅰ(2LDK/1階) | |||||||
![]() | 4.3万円 2,000円 | 4.3万円 なし | 2LDK 44.71m2 | 築39年 | 岩手県盛岡市南大通 | 詳細を見る | |









