賃貸マンション
レジディア神田岩本町の賃貸物件情報(ワンルーム/11階)
| 家賃 | 管理費等 | 敷金 | 礼金 | 間取り | 専有面積 |
|---|---|---|---|---|---|
| 11.9万円 | 1.5万円 | なし | なし | ワンルーム | 22.78m2 |
入居決定でお祝い金最大100,000円
Point
まずはお問い合わせ!
不動産会社は街のプロ、あなたに合った物件がきっと見つかります。
提供:ハウスコム東東京株式会社 押上店

詳細情報 レジディア神田岩本町
物件紹介
レジディア神田岩本町は東京都新宿線岩本町駅から徒歩3分にあり、駅近で通勤通学に便利なマンションです。
このお部屋は2階以上に位置しているので、通行人や周囲の住人からの視線が気になりにくく、防犯面でも安心。建物のエントランスはオートロックがついており、インターホンにはTVモニタもついているため、相手の顔を確認してから来客対応することができます。
おしゃれなデザイナーズ物件!人気の南向きのお部屋。また、フローリングなのでお掃除もラクラク。キッチンはシステムキッチン仕様になっていますので、お料理好きの方にもぴったり。また、浴室乾燥機付きで、雨の日でもお洗濯は問題ありません。
通信設備面では、インターネット接続が可能です。また、BSアンテナ・CSアンテナがありCATVにも対応しているので、おうち時間も充実するでしょう(別途工事、契約料が必要な場合あり)。
建物にはエレベーターがついているので、重い荷物があっても安心。共用部には宅配ボックスが設定されているので、不在の時にも荷物を受け取ることができます。
コンビニまで徒歩12分の場所にあり、日用品や食料品のお買い物にも便利です。
このお部屋は2階以上に位置しているので、通行人や周囲の住人からの視線が気になりにくく、防犯面でも安心。建物のエントランスはオートロックがついており、インターホンにはTVモニタもついているため、相手の顔を確認してから来客対応することができます。
おしゃれなデザイナーズ物件!人気の南向きのお部屋。また、フローリングなのでお掃除もラクラク。キッチンはシステムキッチン仕様になっていますので、お料理好きの方にもぴったり。また、浴室乾燥機付きで、雨の日でもお洗濯は問題ありません。
通信設備面では、インターネット接続が可能です。また、BSアンテナ・CSアンテナがありCATVにも対応しているので、おうち時間も充実するでしょう(別途工事、契約料が必要な場合あり)。
建物にはエレベーターがついているので、重い荷物があっても安心。共用部には宅配ボックスが設定されているので、不在の時にも荷物を受け取ることができます。
コンビニまで徒歩12分の場所にあり、日用品や食料品のお買い物にも便利です。
お金・契約の情報
※「-」と表示されているものは、実際は料金が発生するものもございます。詳細はお問い合わせください。
| 家賃 | 11.9万円 | 管理費・共益費 | 1.5万円 |
|---|---|---|---|
| 敷金 | なし | 礼金 | なし |
| 入居決定でお祝い金最大100,000円 | |||
| 保証金 | - | 償却・敷引 | - |
| 住宅保険料 | 1円 | 更新料 | - |
| その他費用 | 入居者限定会員サービス会費/2年:1.1万円 | ||
| 保証会社利用 | 必須 | 保証会社名 | - |
| 保証会社費用 | - | 保証会社備考 | 【IRS③】IUCレジデンシャルサポート |
| 契約形態 | - | 契約期間 | 2年 |
| 入居・引渡期間 | 2026年04月上旬 | 現況 | - |
| 契約備考 | 月額(インターネット使用料 1650円) 鍵交換費用:22000 その他設備/条件:室内洗濯機置き場、防犯カメラ、クローゼット | ||
部屋の情報
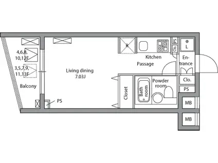
| 間取り | ワンルーム | 専有面積 | 22.78m2 |
|---|---|---|---|
| 所在階 / 向き | 11階 / 南東 | バルコニー面積 | - |
| 水道 / ガス | - | ||
| 設備 | オートロック、テレビドアホン、宅配ボックス、浴室乾燥機、システムキッチン、エアコン、エレベーター、フローリング、2口コンロ、CATV、CSアンテナ、BSアンテナ、給湯 | ||
| 当社物件ID | 30043036 | ||
建物の情報
| 建物名 | レジディア神田岩本町 | ||
|---|---|---|---|
| 所在地 | 東京都千代田区岩本町2丁目 | ||
| 交通 | 東京都新宿線 岩本町駅 徒歩3分 東京地下鉄日比谷線 秋葉原駅 徒歩5分 | ||
| 階数 | 地下1地上15階建 | 総戸数 | 65戸 |
| 築年月 | 2004年02月 / 築22年 | エレベーター | あり |
| 駐車場 | - | バイク置き場 | - |
| 駐輪場 | あり | 管理人/管理会社 | - |
| 周辺環境 | コンビニ 徒歩12分(957m) 販売店 徒歩14分(1046m) その他 ドラッグストア その他 公園 その他 銀行 その他 * | ||
| 建物種別 | マンション | 建物構造 | RC(鉄筋コンクリート) |
この部屋の取扱い不動産会社
| 会社名 | ハウスコム東東京株式会社 押上店 | ||
|---|---|---|---|
| 所在地 | 東京都墨田区16-2三橋ビル1階 | 交通 | - |
| 営業時間 | 10:00~18:00 | 定休日 | 水曜定休 |
| 免許番号 | 東京都知事(1)第108283号 | 取引態様 | 仲介 |
| 不動産会社管理番号 | HC5-4821392-1103-0072 | 当社管理番号 | 468 |
| 所属団体 | 、 | ||
| 取扱い物件情報 | 物件詳細へ | ||
※各種情報と現状に差異がある場合は、現状優先となります。問い合わせをすることで、より詳しい条件、情報を確認する事ができます。
提供:ハウスコム東東京株式会社 押上店
この物件が気になったら掲載期限まであと4日
レジディア神田岩本町に条件(家賃・エリア)が近い物件一覧
| 写真 | 家賃 管理費等 | 敷金 礼金 | 間取り 専有面積 | 築年数 | 最寄り駅 所在地 | キープ | 詳細 |
|---|---|---|---|---|---|---|---|
マンション サンスタレ浅草(1K/7階) | |||||||
![]() | 10.5万円 1万円 | なし 10.5万円 | 1K 23.65m2 | 築20年 | 東京都浅草線 浅草駅(東武・都営・メトロ) 徒歩4分 東京地下鉄銀座線 浅草駅(東武・都営・メトロ) 徒歩6分 東京地下鉄銀座線 田原町駅(東京) 徒歩7分 東京都台東区駒形1丁目 | 詳細を見る | |


