賃貸マンション
プレサンスジェネ上前津の賃貸物件情報(2LDK/14階)
| 家賃 | 管理費等 | 敷金 | 礼金 | 間取り | 専有面積 |
|---|---|---|---|---|---|
| 17万円 | 1.503万円 | なし | 10万円 | 2LDK | 60.14m2 |
入居決定でお祝い金最大100,000円
- 保証金
- -
- 償却・敷引
- -
- 築年数
- 築2年
- 所在階
- 14階
- 向き
- 北西
Point
共用部には宅配ボックスが付いているため、家で何時間も待機する必要がありません。収納はクロゼット・シューズボックスなど豊富なので、衣類や履き物の整理がしやすく便利です。
提供:フォーディールーム 名古屋店(株)Four D(SUUMO経由)

詳細情報 プレサンスジェネ上前津
物件紹介
プレサンスジェネ上前津は地下鉄鶴舞線上前津駅から徒歩7分にあり、駅近で通勤通学に便利なマンションです。
このお部屋は2階以上に位置しているので、通行人や周囲の住人からの視線が気になりにくく、防犯面でも安心。建物のエントランスはオートロックがついており、インターホンにはTVモニタもついているため、相手の顔を確認してから来客対応することができます。
おしゃれなデザイナーズ物件!人気の角部屋で周囲の居住者の生活音も気になりにくく、また、フローリングのお部屋なのでお掃除もラクラク。キッチンはシステムキッチン仕様になっていますので、お料理好きの方にもぴったり。バス・トイレは別なので、のんびりお風呂タイムも楽しめるでしょう。また、雨の日でも浴室乾燥機を使えば、お洗濯も問題ありません。
通信設備面では、インターネットが無料で使えるので、月々の出費を抑えられるのも魅力です。また、BSアンテナもありますので、おうち時間も充実するでしょう(別途工事、BSの契約料等が必要な場合あり)。
床暖房があり、冬も足元から暖かく快適に過ごすことができます。建物にはエレベーターがついているので、重い荷物があっても安心。共用部には宅配ボックスが設定されているので、不在の時にも荷物を受け取ることができます。
このお部屋は2階以上に位置しているので、通行人や周囲の住人からの視線が気になりにくく、防犯面でも安心。建物のエントランスはオートロックがついており、インターホンにはTVモニタもついているため、相手の顔を確認してから来客対応することができます。
おしゃれなデザイナーズ物件!人気の角部屋で周囲の居住者の生活音も気になりにくく、また、フローリングのお部屋なのでお掃除もラクラク。キッチンはシステムキッチン仕様になっていますので、お料理好きの方にもぴったり。バス・トイレは別なので、のんびりお風呂タイムも楽しめるでしょう。また、雨の日でも浴室乾燥機を使えば、お洗濯も問題ありません。
通信設備面では、インターネットが無料で使えるので、月々の出費を抑えられるのも魅力です。また、BSアンテナもありますので、おうち時間も充実するでしょう(別途工事、BSの契約料等が必要な場合あり)。
床暖房があり、冬も足元から暖かく快適に過ごすことができます。建物にはエレベーターがついているので、重い荷物があっても安心。共用部には宅配ボックスが設定されているので、不在の時にも荷物を受け取ることができます。
お金・契約の情報
※「-」と表示されているものは、実際は料金が発生するものもございます。詳細はお問い合わせください。
| 家賃 | 17万円 | 管理費・共益費 | 1.503万円 |
|---|---|---|---|
| 敷金 | なし | 礼金 | 10万円 |
| 入居決定でお祝い金最大100,000円 | |||
| 保証金 | - | 償却・敷引 | - |
| 住宅保険料 | - | 更新料 | - |
| 保証会社利用 | 必須 | 保証会社名 | - |
| 保証会社費用 | - | 保証会社備考 | 保証会社利用必 50% 入居時 1.5% 毎月 【家賃保証期間】入居期間中 【その他入居者家賃保証】利用不可 |
| 契約形態 | - | 契約期間 | - |
| 入居・引渡期間 | 即時 | 現況 | - |
| 契約備考 | 巡回管理 合計2.97万円(内訳:鍵交換費2.97万円) 更新料 11000円 プレサポ24 月額990円 2LDK 普通借家1年 損保【1.1万円1年】 バストイレ別、バルコニー、ガスコンロ対応、クロゼット、フローリング、TVインターホン、浴室乾燥機、オートロック、室内洗濯置、シューズボックス、システムキッチン、追焚機能浴室、温水洗浄便座、脱衣所、エレベーター、洗面所独立、洗面化粧台、駐輪場、宅配ボックス、即入居可、敷金不要、3口以上コンロ、対面式キッチン、防犯カメラ、保証人不要、デザイナーズ、2沿線利用可、ネット使用料不要、床暖房、2駅利用可、3駅以上利用可、駅徒歩10分以内、敷地内ごみ置き場、都市ガス、BS | ||
部屋の情報
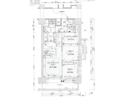
| 間取り | 2LDK | 専有面積 | 60.14m2 |
|---|---|---|---|
| 所在階 / 向き | 14階 / 北西 | バルコニー面積 | - |
| 水道 / ガス | - | ||
| 設備 | バス・トイレ別、2階以上、オートロック、テレビドアホン、宅配ボックス、浴室乾燥機、追い焚き、インターネット対応、システムキッチン、エレベーター、温水洗浄便座、バルコニー、フローリング、洗髪洗面化粧台、床暖房、2口コンロ、コンロ:ガス、デザイナーズ、BSアンテナ、インターネット使用料無料、洗濯機:室内 | ||
| 当社物件ID | 157079430 | ||
建物の情報
| 建物名 | プレサンスジェネ上前津 | ||
|---|---|---|---|
| 所在地 | 愛知県名古屋市中区橘 | ||
| 交通 | 地下鉄鶴舞線 上前津駅 徒歩7分 地下鉄鶴舞線 大須観音駅 徒歩10分 地下鉄名城線 東別院駅 徒歩12分 | ||
| 階数 | 15階建 | 総戸数 | - |
| 築年月 | 2024年05月 / 築2年 | エレベーター | あり |
| 駐車場 | なし | バイク置き場 | - |
| 駐輪場 | あり | 管理人/管理会社 | - |
| 周辺環境 | その他 ファミリーマート松原二丁目店(その他)まで437m その他 ローソン大須スケートリンク店(その他)まで361m その他 アミカ大須店(その他)まで375m その他 ヤマナカ松原店(その他)まで553m その他 名古屋橘郵便局(その他)まで289m | ||
| 建物種別 | マンション | 建物構造 | RC(鉄筋コンクリート) |
この部屋の取扱い不動産会社
| 会社名 | ホームメイトFC千種駅前店(株)メディア不動産愛知(SUUMO経由) | ||
|---|---|---|---|
| 所在地 | 愛知県名古屋市千種区内山3-25-6 一光千種ターミナルビル1階 | 交通 | - |
| 営業時間 | 10:00~18:00 | 定休日 | なし |
| 免許番号 | 愛知県知事22095 | 取引態様 | 仲介 |
| 不動産会社管理番号 | 100489726981 | 当社管理番号 | 89 |
| 所属団体 | (公社)全日本不動産協会愛知県本部会員 | ||
| 公正取引協議会 | 東海不動産公正取引協議会加盟 | ||
| 取扱い物件情報 | 物件詳細へ | ||
※各種情報と現状に差異がある場合は、現状優先となります。問い合わせをすることで、より詳しい条件、情報を確認する事ができます。
提供:ホームメイトFC千種駅前店(株)メディア不動産愛知(SUUMO経由)
この物件が気になったら掲載期限まであと10日
プレサンスジェネ上前津に条件(家賃・エリア)が近い物件一覧
| 写真 | 家賃 管理費等 | 敷金 礼金 | 間取り 専有面積 | 築年数 | 最寄り駅 所在地 | キープ | 詳細 |
|---|---|---|---|---|---|---|---|
マンション GRAN PASEO門前仲町II(1K/9階) | |||||||
![]() | 13.5万円 1.5万円 | なし なし | 1K 25.32m2 | 築4年 | 都営大江戸線 門前仲町駅 徒歩6分 東京メトロ東西線 木場駅 徒歩9分 JR京葉線 越中島駅 徒歩15分 東京都江東区富岡 | 詳細を見る | |
マンション PRIMAL千種STELO(1LDK/15階) | |||||||
![]() | 10.9万円 7,000円 | なし なし | 1LDK 44.28m2 | 築6年 | 中央本線 鶴舞駅 徒歩10分 名古屋市鶴舞線 鶴舞駅 徒歩12分 名古屋市東山線 千種駅 徒歩15分 愛知県名古屋市中区新栄2丁目 | 詳細を見る | |
マンション MAXIV大須観音(2LDK/13階) | |||||||
![]() | 12.9万円 1.2万円 | なし なし | 2LDK 45.88m2 | 築1年 | 名鉄名古屋本線 山王駅(愛知) 徒歩11分 名古屋市鶴舞線 大須観音駅 徒歩15分 東海道本線 尾頭橋駅 徒歩15分 愛知県名古屋市中区松原3丁目 | 詳細を見る | |
マンション FIRST RESIDENCE SAKAE(1LDK/8階) | |||||||
![]() | 14.1万円 7,000円 | なし なし | 1LDK 48.46m2 | 築9年 | 名古屋市名城線 矢場町駅 徒歩9分 名古屋市東山線 栄駅(名古屋) 徒歩10分 名古屋市東山線 新栄町駅(愛知) 徒歩13分 愛知県名古屋市中区新栄1丁目 | 詳細を見る | |
マンション ディームス東陽町(2LDK/4階) | |||||||
![]() | 26.9万円 1.5万円 | 26.9万円 26.9万円 | 2LDK 54.64m2 | 築8年 | 東京メトロ東西線 東陽町駅 徒歩7分 東京メトロ東西線 木場駅 徒歩10分 JR京葉線 潮見駅 徒歩34分 東京都江東区東陽 | 詳細を見る | |
マンション プレサンス栄ライズ(1LDK/3階) | |||||||
![]() | 10.756万円 1.244万円 | なし 12万円 | 1LDK 44.42m2 | 築10年 | 名古屋市東山線 新栄町駅(愛知) 徒歩5分 愛知県名古屋市中区新栄2丁目 | 詳細を見る | |
マンション プレサンス グラン 栄 THE TOWER(2LDK/7階) | |||||||
![]() | 20.306万円 1.694万円 | なし 22万円 | 2LDK 64.76m2 | 築5年 | 名古屋市名城線 矢場町駅 徒歩4分 名古屋市東山線 栄駅(名古屋) 徒歩8分 名古屋市鶴舞線 上前津駅 徒歩14分 愛知県名古屋市中区栄4丁目 | 詳細を見る | |
マンション プレサンス ロジェ 栄三丁目(1SLDK/4階) | |||||||
![]() | 15.038万円 1.162万円 | なし 16.2万円 | 1SLDK 54.9m2 | 築3年 | 名古屋市名城線 矢場町駅 徒歩7分 名古屋市鶴舞線 大須観音駅 徒歩10分 名古屋市東山線 伏見駅(愛知) 徒歩14分 愛知県名古屋市中区栄3丁目 | 詳細を見る | |






