賃貸アパート
グランクオール西国立の賃貸物件情報(1K/1階)
| 家賃 | 管理費等 | 敷金 | 礼金 | 間取り | 専有面積 |
|---|---|---|---|---|---|
| 6.5万円 | 5,000円 | なし | なし | 1K | 17.65m2 |
入居決定でお祝い金最大100,000円
- 保証金
- -
- 償却・敷引
- -
- 築年数
- 築6年
- 所在階
- 1階
- 向き
- 東
Point
オンラインにて申込みから契約までのお手続きも可能です。入居日が合わずにお悩みの方、契約金のお見積もりや室内写真のご要望などお気軽にお問い合わせください。初期費用の分割払いも承ります。
提供:(株)エールーム立川店(SUUMO経由)

詳細情報 グランクオール西国立
物件紹介
グランクオール西国立はJR南武線西国立駅から徒歩4分にあり、駅近で通勤通学に便利なアパートです。
建物のエントランスはオートロックがついており、防犯性が高くなっています。
フローリングのお部屋なのでお掃除もラクラク。キッチンはシステムキッチン仕様になっていますので、お料理好きの方にもぴったり。また、バス・トイレは別で、のんびりお風呂タイムも楽しめるでしょう。
共用部には宅配ボックスが設定されているので、不在の時にも荷物を受け取ることができます。
建物のエントランスはオートロックがついており、防犯性が高くなっています。
フローリングのお部屋なのでお掃除もラクラク。キッチンはシステムキッチン仕様になっていますので、お料理好きの方にもぴったり。また、バス・トイレは別で、のんびりお風呂タイムも楽しめるでしょう。
共用部には宅配ボックスが設定されているので、不在の時にも荷物を受け取ることができます。
お金・契約の情報
※「-」と表示されているものは、実際は料金が発生するものもございます。詳細はお問い合わせください。
| 家賃 | 6.5万円 | 管理費・共益費 | 5,000円 |
|---|---|---|---|
| 敷金 | なし | 礼金 | なし |
| 入居決定でお祝い金最大100,000円 | |||
| 保証金 | - | 償却・敷引 | - |
| 住宅保険料 | - | 更新料 | - |
| 保証会社利用 | 必須 | 保証会社名 | - |
| 保証会社費用 | - | 保証会社備考 | 保証会社利用必 初回保証料:総賃料50パーセント 10000円/年 |
| 契約形態 | - | 契約期間 | - |
| 入居・引渡期間 | - | 現況 | - |
| 契約備考 | 初期費用の分割・クレジットカード決済可能です!お気軽にご相談下さい。短期違約金として、2年未満の解約は賃料・管理費の1ヶ月となります。 合計5.28万円(内訳:エアコン内部洗浄費用1.21万円24時間サポート1.65万円鍵交換代2.42万円) 室内清掃費用 33000円 1K 普通借家2年 損保【要】 バストイレ別、バルコニー、エアコン、ガスコンロ対応、クロゼット、フローリング、オートロック、室内洗濯置、シューズボックス、システムキッチン、温水洗浄便座、洗面所独立、洗面化粧台、2口コンロ、駐輪場、宅配ボックス、礼金不要、敷金不要、2沿線利用可、保証金不要、3駅以上利用可、駅徒歩5分以内、敷地内ごみ置き場、敷金・礼金不要、保証会社利用可 入居日:'26年3月下旬 | ||
部屋の情報
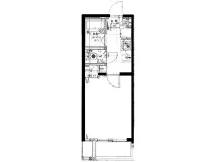
| 間取り | 1K | 専有面積 | 17.65m2 |
|---|---|---|---|
| 所在階 / 向き | 1階 / 東 | バルコニー面積 | - |
| 水道 / ガス | - | ||
| 設備 | バス・トイレ別、オートロック、宅配ボックス、システムキッチン、エアコン、温水洗浄便座、バルコニー、フローリング、洗髪洗面化粧台、2口コンロ、コンロ:ガス、洗濯機:室内 | ||
| 当社物件ID | 41537712 | ||
建物の情報
| 建物名 | グランクオール西国立 | ||
|---|---|---|---|
| 所在地 | 東京都立川市羽衣町 | ||
| 交通 | JR南武線 西国立駅 徒歩4分 JR中央線 立川駅 徒歩15分 JR中央線 国立駅 徒歩15分 | ||
| 階数 | 3階建 | 総戸数 | - |
| 築年月 | 2020年04月 / 築6年 | エレベーター | - |
| 駐車場 | なし | バイク置き場 | - |
| 駐輪場 | あり | 管理人/管理会社 | - |
| 周辺環境 | その他 西国立駅(その他)まで341m その他 矢川(その他)まで1468m その他 立川駅(その他)まで1393m その他 西友 西国立店(スーパー)まで241m その他 フーズマーケットさえき 国立さくら通り店(スーパー)まで1166m その他 サミットストア 羽衣いちょう通り店(コンビニ)まで180m | ||
| 建物種別 | アパート | 建物構造 | 木造 |
この部屋の取扱い不動産会社
| 会社名 | (株)エールーム立川店(SUUMO経由) | ||
|---|---|---|---|
| 所在地 | 東京都立川市柴崎町3-4-17 岡部ビル3階 | 交通 | - |
| 営業時間 | 10:00~19:00 | 定休日 | 水曜日 |
| 免許番号 | 国土交通大臣9710 | 取引態様 | 仲介 |
| 不動産会社管理番号 | 100490879254 | 当社管理番号 | 89 |
| 所属団体 | (公社)東京都宅地建物取引業協会会員 | ||
| 公正取引協議会 | (公社)首都圏不動産公正取引協議会加盟 | ||
| 取扱い物件情報 | 物件詳細へ | ||
※各種情報と現状に差異がある場合は、現状優先となります。問い合わせをすることで、より詳しい条件、情報を確認する事ができます。
提供:(株)エールーム立川店(SUUMO経由)
この物件が気になったら掲載期限まであと11日
グランクオール西国立に条件(家賃・エリア)が近い物件一覧
| 写真 | 家賃 管理費等 | 敷金 礼金 | 間取り 専有面積 | 築年数 | 最寄り駅 所在地 | キープ | 詳細 |
|---|---|---|---|---|---|---|---|
アパート メゾンモンペール(2K/1階) | |||||||
![]() | 5.5万円 5,000円 | なし なし | 2K 36.24m2 | 築41年 | 中央本線 豊田駅 徒歩14分 東京都日野市多摩平2丁目 | 詳細を見る | |
アパート BBハウス(2DK/2階) | |||||||
![]() | 10.5万円 なし | 21万円 10.5万円 | 2DK 52.1m2 | 築52年 | JR中央線 立川駅 徒歩6分 多摩都市モノレール 立川北駅 徒歩6分 JR南武線 立川駅 徒歩6分 東京都立川市曙町 | 詳細を見る | |
アパート ヴィラ・ア・ラ・モード(1K/2階) | |||||||
![]() | 5.4万円 2,000円 | なし なし | 1K 19.27m2 | 築24年 | 中央本線 日野駅(東京) 徒歩8分 東京都日野市大坂上3丁目 | 詳細を見る | |
マンション フローレンスAKISHIMA(ワンルーム/9階) | |||||||
![]() | 8.9万円 5,000円 | 8.9万円 8.9万円 | ワンルーム 42.28m2 | 築20年 | JR青梅線 昭島駅 徒歩3分 JR青梅線 中神駅 徒歩17分 西武拝島線 西武立川駅 徒歩29分 東京都昭島市昭和町 | 詳細を見る | |
マンション ラビアン桜(1K/3階) | |||||||
![]() | 5万円 なし | 5万円 5万円 | 1K 34.47m2 | 築53年 | 多摩都市モノレール 桜街道駅 徒歩21分 西武拝島線 武蔵砂川駅 徒歩28分 東京都武蔵村山市学園 | 詳細を見る | |
アパート FOREST PARK HILLS(1K/2階) | |||||||
![]() | 7.3万円 5,000円 | なし 7.3万円 | 1K 21.94m2 | 築1年 | JR八高線 拝島駅 徒歩16分 JR青梅線 昭島駅 徒歩27分 JR五日市線 熊川駅 徒歩29分 東京都昭島市緑町 | 詳細を見る | |
マンション シルクハイム国分寺(2DK/2階) | |||||||
![]() | 7.6万円 2,000円 | なし なし | 2DK 38.5m2 | 築40年 | 多摩モノレール 泉体育館駅 徒歩15分 東京都国分寺市西町5丁目 | 詳細を見る | |
アパート フォレスト パーク ヒルズ(1K/1階) | |||||||
![]() | 7.2万円 5,000円 | なし 7.2万円 | 1K 21.94m2 | 新築 | JR青梅線 拝島駅 徒歩15分 JR青梅線 昭島駅 徒歩25分 東京都昭島市緑町 | 詳細を見る | |


/105x80-f1-q70-wp1)






