賃貸マンション
グラントレゾール明大前の賃貸物件情報(1DK/1階)
| 家賃 | 管理費等 | 敷金 | 礼金 | 間取り | 専有面積 |
|---|---|---|---|---|---|
| 14.5万円 | 1万円 | なし | 14.5万円 | 1DK | 40.42m2 |
入居決定でお祝い金最大100,000円
- 保証金
- -
- 償却・敷引
- -
- 築年数
- 築18年
- 所在階
- 1階
- 向き
- 南東
Point
セキュリティ面は、オートロック・TVインターホンなど充実しているので、防犯対策もばっちりです。収納はシューズボックス・クロゼットなど豊富なので、衣類や履き物の整理がしやすく便利です。
提供:いい部屋ネット四ツ谷店(株)DoDoNPA(SUUMO経由)

詳細情報 グラントレゾール明大前
物件紹介
グラントレゾール明大前は京王線明大前駅から徒歩7分にあり、駅近で通勤通学に便利なマンションです。
建物のエントランスはオートロックがついており、インターホンにはTVモニタもついているため、相手の顔を確認してから来客対応することができます。
人気の南向きのお部屋。キッチンはシステムキッチン仕様になっていますので、お料理好きの方にもぴったり。バス・トイレは別なので、のんびりお風呂タイムも楽しめるでしょう。また、雨の日でも浴室乾燥機を使えば、お洗濯も問題ありません。
建物にはエレベーターがついているので、重い荷物があっても安心。共用部には宅配ボックスが設定されているので、不在の時にも荷物を受け取ることができます。また、ペット飼育の相談ができますので、あなたの大切な家族の一員も快適に暮らせるか、ぜひ確認してみてください。
建物のエントランスはオートロックがついており、インターホンにはTVモニタもついているため、相手の顔を確認してから来客対応することができます。
人気の南向きのお部屋。キッチンはシステムキッチン仕様になっていますので、お料理好きの方にもぴったり。バス・トイレは別なので、のんびりお風呂タイムも楽しめるでしょう。また、雨の日でも浴室乾燥機を使えば、お洗濯も問題ありません。
建物にはエレベーターがついているので、重い荷物があっても安心。共用部には宅配ボックスが設定されているので、不在の時にも荷物を受け取ることができます。また、ペット飼育の相談ができますので、あなたの大切な家族の一員も快適に暮らせるか、ぜひ確認してみてください。
お金・契約の情報
※「-」と表示されているものは、実際は料金が発生するものもございます。詳細はお問い合わせください。
| 家賃 | 14.5万円 | 管理費・共益費 | 1万円 |
|---|---|---|---|
| 敷金 | なし | 礼金 | 14.5万円 |
| 入居決定でお祝い金最大100,000円 | |||
| 保証金 | - | 償却・敷引 | - |
| 住宅保険料 | - | 更新料 | - |
| 保証会社利用 | 必須 | 保証会社名 | - |
| 保証会社費用 | - | 保証会社備考 | 保証会社利用必 初回保証料:賃料等の50%(最低2.5万)、更新料:1.2万/年、口振:550円 ※ナイトワーカーのみ初回保証料:賃料等の100% ※外国籍 留学生 海外審査OK(条件等の変更無し) ※生活保護受給者 高齢者 法人契約は要相談 |
| 契約形態 | - | 契約期間 | - |
| 入居・引渡期間 | - | 現況 | - |
| 入居可能条件 | ペット相談 | ||
| 契約備考 | 合計8.8万円(内訳:書類作成費1.1万円虫駆除サービス(任意)1.65万円除菌サービス(任意)1.65万円鍵交換代4.4万円) 更新料 新賃料1.50ヶ月分 あんしんサポート24 月額1100円 1DK ペット相談 普通借家2年 損保【2万円2年】 バストイレ別、バルコニー、エアコン、ガスコンロ対応、クロゼット、TVインターホン、浴室乾燥機、オートロック、室内洗濯置、シューズボックス、システムキッチン、温水洗浄便座、エレベーター、洗面所独立、洗面化粧台、2口コンロ、駐輪場、宅配ボックス、ペット相談、クロゼット2ヶ所、3駅以上利用可、3沿線以上利用可、敷地内ごみ置き場、東南向き、都市ガス 敷金積み増し【ペット飼育の場合敷金1ヶ月(総額)】 入居日:'26年2月中旬 | ||
部屋の情報
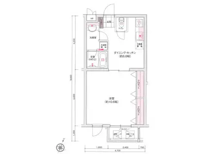
| 間取り | 1DK | 専有面積 | 40.42m2 |
|---|---|---|---|
| 所在階 / 向き | 1階 / 南東 | バルコニー面積 | - |
| 水道 / ガス | - | ||
| 設備 | バス・トイレ別、オートロック、テレビドアホン、宅配ボックス、浴室乾燥機、システムキッチン、エアコン、エレベーター、温水洗浄便座、南向き、バルコニー、洗髪洗面化粧台、2口コンロ、コンロ:ガス、洗濯機:室内 | ||
| 当社物件ID | 28655535 | ||
建物の情報
| 建物名 | グラントレゾール明大前 | ||
|---|---|---|---|
| 所在地 | 東京都世田谷区松原 | ||
| 交通 | 京王線 明大前駅 徒歩7分 京王井の頭線 東松原駅 徒歩7分 東急世田谷線 下高井戸駅 徒歩15分 | ||
| 階数 | 地下1地上3階建 | 総戸数 | - |
| 築年月 | 2008年08月 / 築18年 | エレベーター | あり |
| 駐車場 | なし | バイク置き場 | - |
| 駐輪場 | あり | 管理人/管理会社 | - |
| 建物種別 | マンション | 建物構造 | RC(鉄筋コンクリート) |
この部屋の取扱い不動産会社
| 会社名 | いい部屋ネット四ツ谷店(株)DoDoNPA(SUUMO経由) | ||
|---|---|---|---|
| 所在地 | 東京都新宿区四谷1-9-3 新盛ビル3階 | 交通 | - |
| 営業時間 | 10時~19時 | 定休日 | 水曜日 |
| 免許番号 | 東京都知事110262 | 取引態様 | 仲介 |
| 不動産会社管理番号 | 100477802270 | 当社管理番号 | 89 |
| 所属団体 | (公社)全日本不動産協会東京都本部会員 | ||
| 公正取引協議会 | (公社)首都圏不動産公正取引協議会加盟 | ||
| 取扱い物件情報 | 物件詳細へ | ||
※各種情報と現状に差異がある場合は、現状優先となります。問い合わせをすることで、より詳しい条件、情報を確認する事ができます。
提供:いい部屋ネット四ツ谷店(株)DoDoNPA(SUUMO経由)
この物件が気になったら掲載期限まであと10日
グラントレゾール明大前に条件(家賃・エリア)が近い物件一覧
| 写真 | 家賃 管理費等 | 敷金 礼金 | 間取り 専有面積 | 築年数 | 最寄り駅 所在地 | キープ | 詳細 |
|---|---|---|---|---|---|---|---|
マンション RJRプレシア千鳥(1LDK/5階) | |||||||
![]() | 13.1万円 1.2万円 | 13.1万円 13.1万円 | 1LDK 32.75m2 | 築2年 | 東急多摩川線 武蔵新田駅 徒歩5分 東急池上線 千鳥町駅 徒歩11分 東急多摩川線 矢口渡駅 徒歩12分 東京都大田区千鳥 | 詳細を見る | |
タウンハウス 大田菜園長屋(2LDK) | |||||||
![]() | 15.4万円 5,000円 | 15.4万円 23.1万円 | 2LDK 52.17m2 | 築9年 | 京浜急行電鉄本線 雑色駅 徒歩8分 京浜急行電鉄本線 六郷土手駅 徒歩13分 東京都大田区東六郷3丁目 | 詳細を見る | |
アパート M SONIA KUGAHARA(ワンルーム/1階) | |||||||
![]() | 9.5万円 3,000円 | 9.5万円 14.25万円 | ワンルーム 24.57m2 | 築1年 | 東急池上線 久が原駅 徒歩8分 東急池上線 御嶽山駅 徒歩9分 東急多摩川線 鵜の木駅 徒歩13分 東京都大田区西嶺町 | 詳細を見る | |
アパート SEED SAVE PETIRASU Ⅲ(1LDK/1階) | |||||||
![]() | 10.7万円 1万円 | 21.4万円 10.7万円 | 1LDK 30.55m2 | 新築 | 東京モノレール羽田 昭和島駅 徒歩12分 京浜急行電鉄本線 大森町駅 徒歩18分 東京都大田区大森東5丁目 | 詳細を見る | |
アパート フォレスタ世田谷(2LDK/2階) | |||||||
![]() | 18万円 1,000円 | 18万円 18万円 | 2LDK 47.7m2 | 築55年 | 東急池上線 雪が谷大塚駅 徒歩6分 東急東横線 田園調布駅 徒歩16分 東急目黒線 多摩川駅 徒歩16分 東京都世田谷区東玉川 | 詳細を見る | |
マンション オーベルグランディオ萩中(2DK/12階) | |||||||
![]() | 18万円 1万円 | 18万円 18万円 | 2DK 50m2 | 築20年 | 京急空港線 糀谷駅 徒歩6分 京急空港線 大鳥居駅 徒歩15分 京急空港線 京急蒲田駅 徒歩15分 東京都大田区萩中 | 詳細を見る | |
マンション NORUM VIENTO(1LDK/3階) | |||||||
![]() | 14.5万円 3,000円 | 14.5万円 14.5万円 | 1LDK 40.27m2 | 築18年 | 京浜東北・根岸線 蒲田駅 徒歩12分 東急池上線 蓮沼駅 徒歩16分 東京都大田区西蒲田4丁目 | 詳細を見る | |
マンション SEED JUST B-BASE II(1LDK/1階) | |||||||
![]() | 9.9万円 1.5万円 | 9.9万円 9.9万円 | 1LDK 25.41m2 | 新築 | 東京モノレール羽田 昭和島駅 徒歩11分 京浜急行電鉄本線 梅屋敷駅(東京) 徒歩19分 東京都大田区大森南4丁目 | 詳細を見る | |









