賃貸アパート
リトリートの賃貸物件情報(2LDK/1階)
| 家賃 | 管理費等 | 敷金 | 礼金 | 間取り | 専有面積 |
|---|---|---|---|---|---|
| 7.1万円 | 2,000円 | 9.9万円 | 7.1万円 | 2LDK | 54.79m2 |
入居決定でお祝い金最大100,000円
Point
当社管理のセキスイハイム施工物件です。ペット飼育可能、しかもオール電化、駐車場2台無料。新婚さんからペットのいるファミリー世帯にもオススメできる物件です。
提供:センチュリー21(株)リブライフ姫路中央店(SUUMO経由)

詳細情報 リトリート
物件紹介
リトリートはJR播但線香呂駅から徒歩16分にあるアパートです。
このお部屋のインターホンにはTVモニタがついているため、相手の顔を確認してから来客対応することができます。
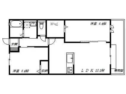
人気の南向き・フローリングのお部屋。室内にはウォークインクローゼットがありますので、たくさんの荷物も効率的に収納ができます。キッチンはシステムキッチン仕様になっていますので、お料理好きの方にもぴったり。バス・トイレは別なので、のんびりお風呂タイムも楽しめるでしょう。また、雨の日でも浴室乾燥機を使えば、お洗濯も問題ありません。
通信設備面では、インターネットが無料で使えるので、月々の出費を抑えられるのも魅力です。また、CATVにも対応しているので、おうち時間も充実するでしょう(別途工事、CATVの契約料等が必要な場合あり)。
ペット飼育の相談ができますので、あなたの大切な家族の一員も快適に暮らせるか、ぜひ確認してみてください。
このお部屋のインターホンにはTVモニタがついているため、相手の顔を確認してから来客対応することができます。
人気の南向き・フローリングのお部屋。室内にはウォークインクローゼットがありますので、たくさんの荷物も効率的に収納ができます。キッチンはシステムキッチン仕様になっていますので、お料理好きの方にもぴったり。バス・トイレは別なので、のんびりお風呂タイムも楽しめるでしょう。また、雨の日でも浴室乾燥機を使えば、お洗濯も問題ありません。
通信設備面では、インターネットが無料で使えるので、月々の出費を抑えられるのも魅力です。また、CATVにも対応しているので、おうち時間も充実するでしょう(別途工事、CATVの契約料等が必要な場合あり)。
ペット飼育の相談ができますので、あなたの大切な家族の一員も快適に暮らせるか、ぜひ確認してみてください。
お金・契約の情報
※「-」と表示されているものは、実際は料金が発生するものもございます。詳細はお問い合わせください。
| 家賃 | 7.1万円 | 管理費・共益費 | 2,000円 |
|---|---|---|---|
| 敷金 | 9.9万円 | 礼金 | 7.1万円 |
| 入居決定でお祝い金最大100,000円 | |||
| 保証金 | - | 償却・敷引 | - |
| 住宅保険料 | - | 更新料 | - |
| 保証会社利用 | 必須 | 保証会社名 | - |
| 保証会社費用 | - | 保証会社備考 | 保証会社利用必 初回:総賃料の50% 月額:1 000円 |
| 契約形態 | - | 契約期間 | - |
| 入居・引渡期間 | 即時 | 現況 | - |
| 入居可能条件 | ペット相談 | ||
| 契約備考 | 合計11.11万円(内訳:ハウスクリーニング費(退去時)9.9万円鍵交換代1.21万円) 更新料 33000円 緊急サポート 月額1100円 町会費 月額750円 2LDK 二人入居可/ペット相談/事務所利用不可 普通借家2年 損保【2.15万円2年】 バストイレ別、バルコニー、エアコン、クロゼット、フローリング、シャワー付洗面台、TVインターホン、浴室乾燥機、室内洗濯置、陽当り良好、シューズボックス、システムキッチン、南向き、追焚機能浴室、温水洗浄便座、洗面所独立、駐輪場、CATV、外壁タイル張り、閑静な住宅地、3口以上コンロ、対面式キッチン、ペット相談、IHクッキングヒーター、駐車場1台無料、全居室収納、グリル付、全居室洋室、ウォークインクロゼット、保証人不要、駐車2台可、CATVインターネット、オール電化、ディンプルキー、ネット使用料不要、駐車場2台無料、複層ガラス、敷地内ごみ置き場、当社管理物件、LDK12畳以上、全居室6畳以上、シャッター、初期費用カード決済可 | ||
部屋の情報
| 間取り | 2LDK | 専有面積 | 54.79m2 |
|---|---|---|---|
| 所在階 / 向き | 1階 / 南 | バルコニー面積 | - |
| 水道 / ガス | - | ||
| 設備 | バス・トイレ別、テレビドアホン、浴室乾燥機、ウォークインクローゼット、追い焚き、インターネット対応、システムキッチン、エアコン、温水洗浄便座、南向き、バルコニー、フローリング、洗髪洗面化粧台、オール電化、2口コンロ、コンロ:IH、CATV、インターネット使用料無料、洗濯機:室内 | ||
| 当社物件ID | 33623579 | ||
建物の情報
| 建物名 | リトリート | ||
|---|---|---|---|
| 所在地 | 兵庫県姫路市香寺町犬飼 | ||
| 交通 | JR播但線 香呂駅 徒歩16分 JR播但線 仁豊野駅 徒歩29分 JR播但線 溝口駅 徒歩42分 | ||
| 階数 | 2階建 | 総戸数 | - |
| 築年月 | 2019年11月 / 築7年 | エレベーター | - |
| 駐車場 | 空有 駐2台付 | バイク置き場 | - |
| 駐輪場 | あり | 管理人/管理会社 | - |
| 周辺環境 | その他 姫路市立 香呂小学校(小学校)まで1611m その他 ひのストアー 香呂店(スーパー)まで1515m その他 フレッシュさとう 香寺店(スーパー)まで1601m その他 ローソン(コンビニ)まで523m その他 香寺郵便局(郵便局)まで1428m | ||
| 建物種別 | アパート | 建物構造 | 軽量鉄骨造 |
この部屋の取扱い不動産会社
| 会社名 | センチュリー21(株)リブライフ姫路中央店(SUUMO経由) | ||
|---|---|---|---|
| 所在地 | 兵庫県姫路市飾磨区野田町 183 | 交通 | - |
| 営業時間 | 9:30~18:30 | 定休日 | 火・水曜日 |
| 免許番号 | 兵庫県知事451624 | 取引態様 | 仲介 |
| 不動産会社管理番号 | 100488828471 | 当社管理番号 | 89 |
| 所属団体 | (一社)兵庫県宅地建物取引業協会会員 | ||
| 公正取引協議会 | (公社)近畿地区不動産公正取引協議会加盟 | ||
| 取扱い物件情報 | 物件詳細へ | ||
※各種情報と現状に差異がある場合は、現状優先となります。問い合わせをすることで、より詳しい条件、情報を確認する事ができます。
提供:センチュリー21(株)リブライフ姫路中央店(SUUMO経由)
この物件が気になったら掲載期限まであと12日
リトリートに条件(家賃・エリア)が近い物件一覧
| 写真 | 家賃 管理費等 | 敷金 礼金 | 間取り 専有面積 | 築年数 | 最寄り駅 所在地 | キープ | 詳細 |
|---|---|---|---|---|---|---|---|
アパート エーワンハイム(2LDK/2階) | |||||||
![]() | 5.8万円 なし | なし 5.8万円 | 2LDK 56.69m2 | 築31年 | 山陽本線 網干駅 徒歩10分 山陽本線 はりま勝原駅 徒歩30分 兵庫県姫路市勝原区朝日谷 | 詳細を見る | |
一戸建て 山陽電気鉄道本線 山陽曽根駅 徒歩15分 築45年(3DK) | |||||||
![]() | 5万円 なし | なし 5万円 | 3DK 68.72m2 | 築45年 | 山陽電気鉄道本線 山陽曽根駅 徒歩15分 山陽本線 曽根駅(兵庫) 徒歩26分 山陽電気鉄道本線 伊保駅 徒歩28分 兵庫県高砂市曽根町 | 詳細を見る | |
アパート ヴァンベールⅡ(ワンルーム/1階) | |||||||
![]() | 6.3万円 4,600円 | なし 6.3万円 | ワンルーム 34.15m2 | 築5年 | 山陽本線 姫路駅 徒歩25分 兵庫県姫路市龍野町5丁目 | 詳細を見る | |
アパート サンリッチA(1LDK/3階) | |||||||
![]() | 6.2万円 3,500円 | なし 7.2万円 | 1LDK 53.33m2 | 築8年 | JR播但線 京口駅 徒歩8分 JR山陽本線 東姫路駅 徒歩10分 兵庫県姫路市宮上町 | 詳細を見る | |
マンション MISTRAL姫路駅前Ⅵ東駅前町(1K/10階) | |||||||
![]() | 7.5万円 5,000円 | なし 7.5万円 | 1K 25.87m2 | 築4年 | 山陽電気鉄道本線 山陽姫路駅 徒歩7分 東海道・山陽新幹線 姫路駅 徒歩8分 播但線 京口駅 徒歩20分 兵庫県姫路市東駅前町 | 詳細を見る | |
マンション ネオハイツ花の北(3LDK/4階) | |||||||
![]() | 5万円 5,000円 | なし 5万円 | 3LDK 60.16m2 | 築33年 | JR播但線 野里駅 徒歩7分 JR播但線 砥堀駅 徒歩15分 JR播但線 京口駅 徒歩42分 兵庫県姫路市保城 | 詳細を見る | |
アパート ブルックハイツA(1LDK/2階) | |||||||
![]() | 5.6万円 2,000円 | なし 11.2万円 | 1LDK 38.41m2 | 築27年 | JR山陽本線 宝殿駅 徒歩10分 JR山陽本線 加古川駅 徒歩39分 兵庫県加古川市米田町平津 | 詳細を見る | |
アパート エトワール(3DK/2階) | |||||||
![]() | 5万円 なし | なし 5万円 | 3DK 51.54m2 | 築32年 | 山陽電気鉄道本線 尾上の松駅 徒歩13分 山陽電気鉄道本線 高砂駅(兵庫) 徒歩26分 山陽電気鉄道本線 浜の宮駅 徒歩26分 兵庫県加古川市尾上町養田 | 詳細を見る | |









