賃貸マンション
MOGARO GINZA LIBERTE STYLEの賃貸物件情報(ワンルーム/3階)
| 家賃 | 管理費等 | 敷金 | 礼金 | 間取り | 専有面積 |
|---|---|---|---|---|---|
| 25.5万円 | 5,000円 | 25.5万円 | 25.5万円 | ワンルーム | 47.03m2 |
入居決定でお祝い金最大100,000円
- 保証金
- -
- 償却・敷引
- -
- 築年数
- 築45年
- 所在階
- 3階
- 向き
- 北西
Point
まずはお問い合わせ!
不動産会社は街のプロ、あなたに合った物件がきっと見つかります。
提供:(株)ユウキ・ホーム麻布十番網代公園店(SUUMO経由)

詳細情報 MOGARO GINZA LIBERTE STYLE
物件紹介
MOGARO GINZA LIBERTE STYLEは東京メトロ日比谷線築地駅から徒歩2分にあり、駅近で通勤通学に便利なマンションです。
このお部屋は2階以上に位置しているので、通行人や周囲の住人からの視線が気になりにくく、防犯面でも安心。建物のエントランスはオートロックがついており、インターホンにはTVモニタもついているため、相手の顔を確認してから来客対応することができます。
人気の角部屋で周囲の居住者の生活音も気になりにくく、また、フローリングのお部屋なのでお掃除もラクラク。キッチンはシステムキッチン仕様になっていますので、お料理好きの方にもぴったり。バス・トイレは別なので、のんびりお風呂タイムも楽しめるでしょう。また、雨の日でも浴室乾燥機を使えば、お洗濯も問題ありません。
通信設備面では、インターネットが無料で使えるので、月々の出費を抑えられるのも魅力です(別途工事等が必要な場合あり)。
建物にはエレベーターがついているので、重い荷物があっても安心。共用部には宅配ボックスが設定されているので、不在の時にも荷物を受け取ることができます。また、ペット飼育の相談ができますので、あなたの大切な家族の一員も快適に暮らせるか、ぜひ確認してみてください。
このお部屋は2階以上に位置しているので、通行人や周囲の住人からの視線が気になりにくく、防犯面でも安心。建物のエントランスはオートロックがついており、インターホンにはTVモニタもついているため、相手の顔を確認してから来客対応することができます。
人気の角部屋で周囲の居住者の生活音も気になりにくく、また、フローリングのお部屋なのでお掃除もラクラク。キッチンはシステムキッチン仕様になっていますので、お料理好きの方にもぴったり。バス・トイレは別なので、のんびりお風呂タイムも楽しめるでしょう。また、雨の日でも浴室乾燥機を使えば、お洗濯も問題ありません。
通信設備面では、インターネットが無料で使えるので、月々の出費を抑えられるのも魅力です(別途工事等が必要な場合あり)。
建物にはエレベーターがついているので、重い荷物があっても安心。共用部には宅配ボックスが設定されているので、不在の時にも荷物を受け取ることができます。また、ペット飼育の相談ができますので、あなたの大切な家族の一員も快適に暮らせるか、ぜひ確認してみてください。
お金・契約の情報
※「-」と表示されているものは、実際は料金が発生するものもございます。詳細はお問い合わせください。
| 家賃 | 25.5万円 | 管理費・共益費 | 5,000円 |
|---|---|---|---|
| 敷金 | 25.5万円 | 礼金 | 25.5万円 |
| 入居決定でお祝い金最大100,000円 | |||
| 保証金 | - | 償却・敷引 | - |
| 住宅保険料 | - | 更新料 | - |
| 保証会社利用 | 必須 | 保証会社名 | - |
| 保証会社費用 | - | 保証会社備考 | 保証会社利用必 初回保証料:月額総家賃の60% 詳細はお問い合わせください |
| 契約形態 | - | 契約期間 | - |
| 入居・引渡期間 | - | 現況 | - |
| 入居可能条件 | ペット相談 | ||
| 契約備考 | 巡回管理/鍵交換:+11000円でオートロック連動可能※ご用意に約1ヶ月要します ペット相談可:小型犬1匹に限る 敷金2ヶ月(退去時1ヶ月償却) 短期解約違約金あり(1年未満:賃料2ヶ月分、1年以上2年未満:賃料1ヶ月分) 合計3.3万円(内訳:鍵交換代3.3万円) 室内清掃費用 60500円 PLENDYサポート 月額1650円 ワンルーム 単身者可/ペット相談 普通借家2年 損保【要】 バストイレ別、バルコニー、エアコン、ガスコンロ対応、クロゼット、フローリング、TVインターホン、浴室乾燥機、オートロック、室内洗濯置、システムキッチン、追焚機能浴室、角住戸、温水洗浄便座、エレベーター、洗面所独立、洗面化粧台、2口コンロ、宅配ボックス、防犯カメラ、ペット相談、照明付、オートバス、保証人不要、ネット使用料不要、ダブルロックキー、3駅以上利用可、3沿線以上利用可、駅徒歩5分以内、駅徒歩10分以内、都市ガス、保証会社利用可 敷金積み増し【ペット飼育の場合敷金2ヶ月(総額)】 入居日:'26年4月下旬 | ||
部屋の情報
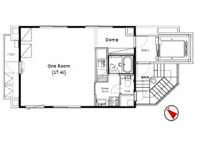
| 間取り | ワンルーム | 専有面積 | 47.03m2 |
|---|---|---|---|
| 所在階 / 向き | 3階 / 北西 | バルコニー面積 | - |
| 水道 / ガス | - | ||
| 設備 | バス・トイレ別、2階以上、オートロック、テレビドアホン、宅配ボックス、浴室乾燥機、追い焚き、インターネット対応、システムキッチン、エアコン、エレベーター、温水洗浄便座、角部屋、バルコニー、フローリング、洗髪洗面化粧台、2口コンロ、コンロ:ガス、インターネット使用料無料、洗濯機:室内 | ||
| 当社物件ID | 160198943 | ||
建物の情報
| 建物名 | MOGARO GINZA LIBERTE STYLE | ||
|---|---|---|---|
| 所在地 | 東京都中央区築地 | ||
| 交通 | 東京メトロ日比谷線 築地駅 徒歩2分 都営浅草線 東銀座駅 徒歩4分 東京メトロ銀座線 銀座駅 徒歩7分 | ||
| 階数 | 地下1地上7階建 | 総戸数 | - |
| 築年月 | 1981年06月 / 築45年 | エレベーター | あり |
| 駐車場 | なし | バイク置き場 | - |
| 駐輪場 | - | 管理人/管理会社 | - |
| 周辺環境 | その他 セブンイレブン 銀座3丁目店(コンビニ)まで271m その他 まいばすけっと 築地2丁目店(スーパー)まで307m その他 ココカラファイン 銀座4丁目店(ドラッグストア)まで442m | ||
| 建物種別 | マンション | 建物構造 | RC(鉄筋コンクリート) |
この部屋の取扱い不動産会社
| 会社名 | (株)ユウキ・ホーム麻布十番サテライト店(SUUMO経由) | ||
|---|---|---|---|
| 所在地 | 東京都港区麻布十番2-19-10 桂麻布十番ビル1階 | 交通 | - |
| 営業時間 | 9:30~21:30 | 定休日 | 年中無休 |
| 免許番号 | 東京都知事76214 | 取引態様 | 仲介 |
| 不動産会社管理番号 | 100482310186 | 当社管理番号 | 89 |
| 所属団体 | (公社)東京都宅地建物取引業協会会員 | ||
| 公正取引協議会 | (公社)首都圏不動産公正取引協議会加盟 | ||
| 取扱い物件情報 | 物件詳細へ | ||
※各種情報と現状に差異がある場合は、現状優先となります。問い合わせをすることで、より詳しい条件、情報を確認する事ができます。
提供:(株)ユウキ・ホーム麻布十番サテライト店(SUUMO経由)
この物件が気になったら掲載期限まであと11日
MOGARO GINZA LIBERTE STYLEに条件(家賃・エリア)が近い物件一覧
| 写真 | 家賃 管理費等 | 敷金 礼金 | 間取り 専有面積 | 築年数 | 最寄り駅 所在地 | キープ | 詳細 |
|---|---|---|---|---|---|---|---|
マンション ハーモニーレジデンス東京イーストコア♯004(2LDK/9階) | |||||||
![]() | 20.6万円 1.4万円 | なし なし | 2LDK 54.9m2 | 築11年 | 京成電鉄押上線 八広駅 徒歩5分 東武伊勢崎・大師線 東向島駅 徒歩7分 東武伊勢崎・大師線 鐘ケ淵駅 徒歩9分 東京都墨田区東向島5丁目 | 詳細を見る | |
マンション アーバネックス新御徒町駅前(1DK/8階) | |||||||
![]() | 18万円 2万円 | 18万円 なし | 1DK 27.3m2 | 築1年 | 東京都大江戸線 新御徒町駅 徒歩1分 つくばエクスプレス 新御徒町駅 徒歩1分 東京地下鉄日比谷線 仲御徒町駅 徒歩6分 東京都台東区台東4丁目 | 詳細を見る | |
マンション CREVANCE亀戸(1LDK/1階) | |||||||
![]() | 15.55万円 7,200円 | なし なし | 1LDK 45.98m2 | 築1年 | 東武鉄道亀戸線 東あずま駅 徒歩6分 総武・中央緩行線 平井駅(東京) 徒歩15分 東京地下鉄半蔵門線 押上駅 徒歩26分 東京都墨田区立花4丁目 | 詳細を見る | |
マンション CASA KEITO カーサ ケイト(1LDK/9階) | |||||||
![]() | 17.7万円 1.3万円 | 17.7万円 17.7万円 | 1LDK 40.47m2 | 築8年 | 都営浅草線 東日本橋駅 徒歩3分 都営新宿線 浜町駅 徒歩4分 JR総武線快速 馬喰町駅 徒歩8分 東京都中央区東日本橋 | 詳細を見る | |
マンション プレール・ドゥーク本所吾妻橋Ⅵ(1LDK/7階) | |||||||
![]() | 18.1万円 1万円 | なし 18.1万円 | 1LDK 40.89m2 | 築4年 | 東京都浅草線 本所吾妻橋駅 徒歩5分 東京地下鉄銀座線 浅草駅(東武・都営・メトロ) 徒歩7分 東京都墨田区東駒形2丁目 | 詳細を見る | |
マンション パークフィルヴェール(1LDK/14階) | |||||||
![]() | 18.5万円 1万円 | 18.5万円 18.5万円 | 1LDK 44.71m2 | 築14年 | 東京都大江戸線 両国駅 徒歩4分 総武・中央緩行線 両国駅 徒歩8分 東京都墨田区緑1丁目 | 詳細を見る | |
マンション ドムス・スタイル森下(1LDK/5階) | |||||||
![]() | 17.2万円 8,000円 | なし 17.2万円 | 1LDK 34.44m2 | 築6年 | 東京都大江戸線 森下駅(東京) 徒歩6分 東京都新宿線 森下駅(東京) 徒歩6分 東京都大江戸線 両国駅 徒歩7分 東京都墨田区立川1丁目 | 詳細を見る | |
マンション プラウドフラット浅草橋Ⅱ(1LDK/5階) | |||||||
![]() | 19.4万円 1.5万円 | 19.4万円 19.4万円 | 1LDK 39.54m2 | 築7年 | 東京都浅草線 浅草橋駅 徒歩4分 総武・中央緩行線 浅草橋駅 徒歩5分 総武本線 馬喰町駅 徒歩10分 東京都台東区柳橋2丁目 | 詳細を見る | |








